Umzug mit der Küche

Smilie

Mitglied
Beiträge
33
Liebe Küchenprofis,

ich wage mich nun auch einmal, euch um Rat zu fragen.
Wir haben derzeit ein Haus in Aussicht. Leider ist die Küche (und leider nicht nur die Küche :rolleyes:) sehr klein, so dass es mit unseren Vorstellungen, eine "Traumküche" zu bekommen, wohl leider nichts wird: der Raum misst nur in etwa 2,83 m x 3,28 m.
Wir würden gerne unsere 5 Jahre alte Küche (Schüller ) mitnehmen und ggf. erweitern bzw. reduzieren, ich habe mich aber noch nicht informiert, ob es die Front und Griffe noch gibt. Die Arbeitsplatte wird wohl neu müssen, denn wir hätten sie eh gerne tiefer.
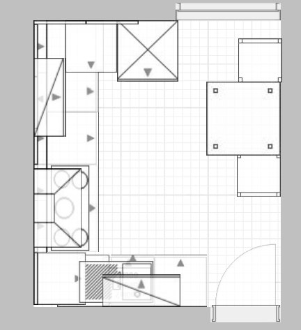
Hier mal ein Grundriss vom EG und von der Küche, ich habe Maße dazugeschrieben, weil man die originalen nicht wirklich lesen kann (ich habe die auch größtenteils selber berechnet und dabei gerundet, also wird es da wahrscheinlich auch noch Abweichungen geben):
DSC_6567.jpg
DSC_6571.jpg

Das Fenster (nach oben ist übrigens Osten) ist tiefer als normale Fenster, genau weiß ich es nicht, aber ich schätze höchstens 70 cm vom Boden aus. Ob unter dem Fenster eine Heizung ist, weiß ich gerade auch nicht genau. Die Anschlüsse sind alle an der linken Wand. Die baulichen Sachen können aber ggf. alle verändert werden, wenn es denn helfen sollte ;-).

Zuerst hatten wir gedacht, höchstens einen kleinen Frühstücksplatz für zwei Personen (wir sind derzeit ja auch nur zu zweit plus Hund) am Fenster einzurichten, weil es eben nach Osten geht und man morgens Sonne hätte. Das Esszimmer wäre rechts unten auf dem Plan. Zum Beispiel durch eine überstehende Arbeitsplatte. Nun sind wir am Grübeln, ob wir nicht besser einen kompletten Essplatz in der Küche hätten, denn im Fall der Fälle fehlt uns wohl ein Kinderzimmer, wenn wir im DG ein größeres Bad machen. Es wird irgendwann wahrscheinlich ein Anbau nach planoben erfolgen, der dann Esszimmer und Wohnzimmer umfassen wird... aber das ist erstmal nur Zukunftsmusik.

Ich habe unsere jetzige Küche mal wie sie ist (in zwei Blocks) in die neue Küche gestellt:
alteKüche1.JPG
alteKüche2.JPG

ALNO -Dateien dazu:
Anhang anzeigen vorhandene_Kueche_1.KPL
Anhang anzeigen vorhandene_Kueche_1.POS

Die Spüle wird irgendwie falsch dargestellt, wir haben nur ein großes und ein kleines Becken auf 60 cm, keine Abtropffläche. Auch das Ceranfeld ist nur 60 cm breit. Die Mikrowelle ist nicht eingebaut sondern hinter einer Klappe über dem Backofen . Im linken Teil vom Seitenschrank ist oben der Kühlschrank, unten ist eine Schublade.

Wir haben nun festgestellt, dass der Seitenschrank sehr schlecht unterzubringen ist. Fällt er aber weg, ist wahrscheinlich zu wenig Stauraum da. Wir haben noch einen Solitärkühlschrank (unten in der Checkliste auch angegeben), den wir statt des eingebauten stellen könnten.

In dem Haus ist derzeit eine neue Küche in U-Form an der unteren, linken und oberen Wand eingebaut. Eine solche Form habe ich einmal mit unserer Küche "nachgestellt", weil es dann noch Platz für einen kleinen Tisch an der rechten Wand gibt (so ist es derzeit auch eingerichtet). Der dargestellte Tisch ist nur 85x85. Bei Besuch müsste man also in jedem Fall ins Esszimmer ausweichen. Es käme dann nur ein Eckschrank anstelle des Seitenschranks dazu, und ein weiterer Unterschrank fällt teilweise dem Backofen zum Opfer. Und die Mikrowelle müsste wieder auf der Arbeitsfläche stehen :(. Der Stauraum könnte vielleicht reichen, wenn man den Keller für Vorräte miteinbezieht. Über dem Tisch könnte man zur Not ja auch noch ein Regal anbringen. Viele Gläser haben wir derzeit auch außerhalb der Küche untergebracht, das könnte auch wieder klappen.

Blick4.jpg
Blick2.JPG

Und für ALNO:
Anhang anzeigen Planung.POS
Anhang anzeigen Planung.KPL

Evtl. besteht auch noch die Möglichkeit eines Wanddurchbruchs zum Wohnzimmer (planoben rechts), wobei dann wohl das Wohnzimmer zum Esszimmer würde (und das Esszimmer dann zum Wohnzimmer ;-)).

Vielleicht habt ihr ja Anregungen, wie man es geschickter lösen könnte?
Ich hoffe, mit den Anhängen klappt alles.

Viele Grüße vom Smilie


Checkliste zur Küchenplanung von Smilie

Anzahl Personen im Haushalt : 2
Davon Kinder? : keine
Körpergrössen aller Hauptbenutzer (wegen Arbeitshöhe ) in cm : 184, 168
Art des Gebäudes? : Neu-/Umbau, Planänderungen möglich
Brüstungshöhe des Fensters (in cm) : 60-70 cm
Fensterhöhe (in cm) : ca. 140
Raumhöhe in cm: : ca. 250
Heizung : Heizkörper wie im Grundriss
Sanitäranschlüsse : vollkommen variabel
Ausführung Kühlgerät? : Stand-Alone bis 60 cm Breite
Kühlgerät Größe : bis 175 cm Höhe
Ausführung Tiefkühl (TK)-Gerät : Im Kühlschrank ab 3 Schubladen unten
Dunstabzugshaube? : Abluft
Hochgebauter Backofen ? : Ja
Hochgebauter Geschirrspüler ? : wenn möglich
Kochfeldart? : Ceran (herkömmlich)
Kochfeldbreite ca. (in cm)? : 60 cm
Spülenform: : 2 Becken ohne Abtropffläche
Weitere geplante Heißgeräte : Standmikrowelle
Küchenstil? : modern
Sitzmöglichkeit in der Küche / im Küchenbereich als : Gesonderter Tisch
Sitzmöglichkeit: Für wieviel Personen? : für 2 Personen
Sitzmöglichkeit: Tisch - wenn gesonderter Tisch oder offene Küche : Wird nach Bedarf neu gekauft
Gewünschte o. vorhandene Tischgröße : 120 x 75
Wofür soll der Sitzplatz in der Küche genutzt werden? Wie häufig? : Frühstück, Abendessen (warm), 2x täglich
Welche Arbeitshöhe ist angedacht (in cm)? : 99 cm
Was steht auf der Arbeitsplatte oder soll dort stehen? : Kaffeemaschine, Wasserkocher, Sonstiges (evtl. im Beitragstext benennen)
Welche weiteren Küchenmaschinen müssen in der Küche untergebracht werden? : Toaster, Handrührgerät, Pürierstab, Eierkocher
Was soll in der Küche außer den Standards untergebracht werden? : Sonstiges (evtl. im Beitragstext benennen)
Welchen Stauraum gibt es sonst noch? : Geschirr/Gläserschrank im Wohn-/Esszimmer, Keller
Was/wie wird gekocht? (Alltagsküche, Menüs, Snacks usw) : Alltagsküche
Wie häufig wird gekocht? : (fast) täglich 1x warm
Wird alleine gekocht? Oder auch gemeinsam? Mit und für Gäste? : meist alleine, seltener gemeinsam, noch seltener mit oder für Gäste(n)
Was stört an der bisherigen Küche und was soll die neue Küche unbedingt können? Warum? : Bisher wenig Arbeitsfläche, Geräte wie Kaffeemaschine und Wasserfilter nehmen zusätzlich Platz auf der Arbeitsfläche weg. Es sollte so viel wie möglich Arbeitsfläche zur Verfügung stehen, tiefere Arbeitsplatte würde wohl schon viel bringen (Wasserfilter)
Steht schon ein Küchenhersteller fest oder wird bevorzugt? : Schüller, zum erweitern
Steht schon ein Gerätehersteller fest oder wird bevorzugt? :
Preisvorstellung (Budget) : bis 3.000,-
 
AW: Umzug mit der Küche

:welcome:

im Küchenforum.

Schöne Thread-Eröffnung mit Grundriss (wennauch schlecht lesbar) und mit den Planungsdateien.

Wenn ich mir den Grundriss so anschaue, gäbe es die Option die Wand zwischen Küche und derzeitigem Wohnzimmer zu entfernen (der Dicke nach zu urteilen, ist es keine tragende) und das Wohnzimmer nach planunten links zu verlegen. So bekämst du eine schöne Wohnküche.
 
AW: Umzug mit der Küche

Hallo Mela,

danke für deine Antwort. Ja, das mit der Wand haben wir auch schon überlegt. Nur müssten wir dann später bei einem Anbau nach planoben wohl wieder eine ziehen. Ich weiß momentan nicht, was besser wäre: jetzt einen schöne Küche oder erst später (wenn man besser planen kann wegen Kindern). Eigentlich wäre ich für jetzt, also Wand weg, wenn man eh schon am Haus rumreißt. Aber nachher ist es dann vielleicht wieder aufwendiger, das rückgängig zu machen. Außerdem kann ich mich mit dem "Verschieben" des Wohnzimmers nach planunten rechts noch nicht so richtig anfreunden. Richtung Garten (planoben) wäre mir eigentlich lieber, und auch von der Größe her...
Hätte ja auch sein können, dass jemand hier die Küche sieht und denkt, da kann man so schon was tolles daraus machen ;-).

Viele Grüße
Smilie
 
AW: Umzug mit der Küche

Warum müsste eine nichttragende Wand wegen ein Anbaus wieder eingezogen werden?

Ich kann jetz nur von unsren Lebengewohnheiten sprechen. Wenn hier einmal Sommer ist oder sagen wir Wetter um draußen zu sein, dann ist unsere Terrasse das Wohnzimmer und wir nehmen die Mahlzeiten draußen ein. Da ist es praktischer, wenn am Zugang zur Terrasse die Wohnküche ist. In unserem Wohnzimmer halten wir uns nur im Winter, bei schlechtem Wetter oder Abends auf.
 
AW: Umzug mit der Küche

Wir würden die Wand wieder einziehen, weil wir dann aus dem (jetzigen) Wohnzimmer (also oben rechts) einen separaten Raum machen würden, z.B. zur Nutzung als Kinder- oder Arbeitszimmer, weil uns dafür sonst der Platz fehlt. Ess- und Wohnzimmer wäre dann in den Anbau verlagert.

Kann gut sein, dass es praktischer ist mit der Wohnküche zum Garten. Das habe ich noch gar nicht überlegt. Wir haben derzeit nur einen Balkon zur Straße, wo wir höchstens im Sommer mal essen. Wenn ich so drüber nachdenke, ist es dann schon wirklich lästig, alle Sachen erst durch die halbe Wohnung zu tragen, deshalb machen wir es wahrscheinlich so selten :cool:.
Ansonsten sind wir gar nicht so die "Draußen-Sitzer" - mag aber an den derzeitigen Wohnumständen liegen (Balkon zur Straße, Mieter unter uns etc.).


Viele Grüße
Smilie
 
AW: Umzug mit der Küche

Die Schränke, die du in "vorhandene Küche"-Alnodateien untergebracht hast, sind die Schränke, die ihr derzeit habt?

Wenn die Küche 5 Jahre alt ist, wie hoch sind denn die wohl unterschiedlich hohen Korpusse? Schüller hat nämlich zu der Zeit etwa das Korpusmaß geändert.
 
AW: Umzug mit der Küche

Wenn hier einmal Sommer ist oder sagen wir Wetter um draußen zu sein, dann ist unsere Terrasse das Wohnzimmer und wir nehmen die Mahlzeiten draußen ein.

An welchen zwei Tagen letztes Jahr war das denn?


Tschuldigung, konnte ich mir nicht verkneifen :rofl:
 
AW: Umzug mit der Küche

Tabetha,
bei uns war letztes Jahr vom 22. - 26. Juli Sommer. :tounge: Ich weiß das so genau, da mein GöGa dann Urlaub hatte.
 
AW: Umzug mit der Küche

Hallo Kerstin, ja, das sind unsere derzeitigen Schränke. Die Höhe des kleineren (mit Kochfeld) ist etwa 82,5 cm, die von den größeren nicht ganz 95 cm. Ich habe vom Fußboden bis Unterkante der Arbeitsplatte gemessen, ich hoffe, das war so richtig? Welche Maße werden denn momentan verwendet?
 
AW: Umzug mit der Küche

Nee, das war falsch. Es geht um die reine Korpushöhe, also ohne Sockel und ohne Arbeitsplatte ;-) ... deine Werte lesen sich aber so, als wenn es schon die neueren Korpushöhen sind. Ich vermute 65 und 78 cm.
 
AW: Umzug mit der Küche

Ups...:-[. Ok, habe nochmal nachgemessen. Die Arbeitsplatte hatte ich vorher auch schon nicht mitgemessen. Jetzt habe ich von der Unterseite, also da, wo z.B. die Front der untersten Schublade aufhört, bis zum oberen Seite der Front der obersten Schublade, also quasi Unterkante der Arbeitsplatte gemessen. Komme aber dann auf 72 und 84 cm. Kann das denn hinkommen, ist ja höher als du meintest? Oder habe ich mich schon wieder vertan?

Habe gerade festgestellt: unsere Küche wurde heute und morgen vor genau 5 Jahren, d.h. am 21./22.2.2008, eingebaut :kiss:. Und ich konnte nicht mal dabei sein, hatte extra Urlaub genommen, aber hatte dann krankheitsmäßig einen Totalausfall :rolleyes:.
 
AW: Umzug mit der Küche

Ok .. 72 und 84 cm ist das neue Maß. Ich habe auch eine Schüller mit dem neuen 84er Maß ... schöne hohe Korpusse. Jetzt bietet Schüller 65, 71,5 und 78 cm hohe Korpusse.

Mit Ergänzungen sieht es daher eher schlecht aus, es sei denn, sie würden ganz alleine für sich stehen.
 
AW: Umzug mit der Küche

Das ist ja schade. Aber gut zu wissen, danke. Dann können wir uns schon mal darauf einstellen, dass wir die Küche eher nicht mitnehmen können :(.
 
AW: Umzug mit der Küche

Warum nicht?
Nochmal die Frage:
Die Schränke, die du in "vorhandene Küche"-Alnodateien untergebracht hast, sind die Schränke, die ihr derzeit habt?

Vielleicht hast du ja auch noch die Planungsskizzen vom Kauf der Küche ... dann scan die doch mal ein (Namen abdecken).
 
AW: Umzug mit der Küche

Ja, das sind unsere derzeitigen Schränke in dem ALNO -Plan zur vorhandenen Küche. Ich schaue morgen mal nach Planungskizzen.
 
AW: Umzug mit der Küche

Hallo,

ich wollte nur Bescheid sagen, dass es mit dem Haus doch nichts wird, da es Probleme mit dem Erbbaurecht des Grundstücks gab :(. Also kein Umzug mit der Küche.
Aber wir suchen weiter, und wenn wir irgendwann mal fündig werden, melde ich mich vielleicht, wenn ich Hilfe bei der Planung brauche. Ich weiß ja jetzt, dass eine Erweiterung unserer Küche nicht so einfach sein wird.
Möchte mich für die Hilfe und Anregungen bedanken! Wirklich toll, was hier geleistet wird, habe schon so viel erfahren :2daumenhoch:.

Viele Grüße
Smilie
 
Neff Hausgeräte Ballerina Küchen Blum Bewegungstechnologie Weibel - Intelligente Küchenlüftung

Neff Spezial

Blum Zonenplaner

Weibel Abluft-Tuning

Weibel Abluft-Tuning
Zurück
Oben