lausi
Mitglied
- Beiträge
- 7
Hallo zusammen,
meine Schwiegermutter braucht eine neue Küche, weil die alte etwas in die Jahre gekommen ist und ich würde gerne mal eure Meinung bzw. Vorschläge zu meiner bisherigen Küchenplanung wissen.
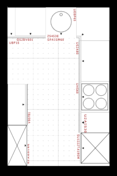
Es handelt sich um eine Küche in einem 6qm großen Raum unterm Dach. Die alte Küche soll nach über 30 Jahren erneuert werden und besteht momentan aus einem Zweizeiler mit einer Durchgangsbreite von 77 cm. Aus Budget-Gründen wird es wohl eine neue IKEA Küche werden und diese hat ja eine noch größere Tiefe bei den Küchenschränken, so dass die Durchgangsbreite noch weiter schrumpfen würde. Ich bin der Meinung, dass das etwas zu schmal wird und tendiere daher zu einer L-Form. Das Problem dabei ist, dass dadurch relativ wenig Stauraum und auch weniger Arbeitsfläche vorhanden ist als bei einer zweizeiligen Küche.
Die Geräte sind soweit alle vorhanden, nur der stand allone Kühlschrank soll irgendwann mal durch ein integriertes Gerät ersetzt werden (deshalb auch der Hochschrank in der Planung). Es wäre auch ein entscheidender Grund IKEA zu wählen, weil man dort die Möglichkeit hat, Teile oder ganze Schränke nachzukaufen.
Der Anschluss für die Spüle befindet sich momentan planrechts oben und kann bei Bedarf nach planoben verlegt werden. Bei dem Austausch des alten Dachfensters ist noch keine Entscheidung getroffen bezüglich der Größe. Es sollte auf jeden Fall so groß werden, dass man dort bequem stehen und arbeiten kann. Der Kniestock ist 1m.
Bin gespannt auf eure Anregungen und Verbesserungsvorschläge.
Vielen Dank schonmal
Checkliste zur Küchenplanung
Anzahl Personen im Haushalt: 1
Davon Kinder?:
Art des Gebäudes?: Bestandsbau, (kleinere) Umbauten möglich
Körpergrössen aller Hauptbenutzer (wegen Arbeitshöhe ) in cm: 160
Brüstungshöhe des Fensters (in cm): 127
Fensterhöhe (in cm):
Raumhöhe in cm: 240, Dachschräge mit Kniestock 100cm
Heizung: Keine Heizung
Sanitäranschlüsse: variabel an aktueller Wand
Ausführung Kühlgerät: Stand-Alone bis 60 cm Breite
Kühlgerät Größe:
Ausführung Tiefkühl (TK)-Gerät:
Dunstabzugshaube: keine
Backofen etc. hochgebaut?: Nein
Hochgebauter Geschirrspüler ?: Nein
Kochfeldart: Ceran (herkömmlich)
Kochfeldbreite ca. (in cm)?: 60
Spülenform: 1,5 Becken ohne Abtropffläche
Geplante Heißgeräte: Backofen
Küchenstil: Modern
Sitzmöglichkeit in der Küche / im Küchenbereich: Keine
Sitzmöglichkeit: Für wieviel Personen?:
Sitzmöglichkeit: Tisch - wenn gesonderter Tisch oder offene Küche:
Gewünschte o. vorhandene Tischgröße:
Wofür soll der Sitzplatz in der Küche genutzt werden? Wie häufig?:
Welche Arbeitshöhe ist angedacht (in cm)?: 92
Was steht auf der Arbeitsplatte oder soll dort stehen?: Wasserkocher, Allesschneider, Toaster, Brotbehälter
Welche weiteren Küchenmaschinen müssen in der Küche untergebracht werden?:
Was soll in der Küche außer den Standards untergebracht werden?:
Welchen Stauraum gibt es sonst noch?: Geschirr/Gläserschrank im Wohn-/Esszimmer, Hauswirtschaftsraum
Was/wie wird gekocht? (Alltagsküche, Menüs, Snacks usw): Alltagsküche
Wie häufig wird gekocht?: (fast) täglich 1x warm
Wird alleine gekocht? Oder auch gemeinsam? Mit und für Gäste?: meist alleine
Was stört an der bisherigen Küche und was soll die neue Küche unbedingt können? Warum?: alte Küche ist über 30 Jahre alt, nur Schranktüren und keine Auszüge, schmaler Mittelgang
Welche Mülltrennung soll in der Küche vorgehalten werden?: Biomüll, Restmüll
Steht schon ein Küchenhersteller fest oder wird bevorzugt?: IKEA
Steht schon ein Gerätehersteller fest oder wird bevorzugt?: Geräte sind schon vorhanden
Preisvorstellung (Budget): bis 3.000,-
meine Schwiegermutter braucht eine neue Küche, weil die alte etwas in die Jahre gekommen ist und ich würde gerne mal eure Meinung bzw. Vorschläge zu meiner bisherigen Küchenplanung wissen.
Es handelt sich um eine Küche in einem 6qm großen Raum unterm Dach. Die alte Küche soll nach über 30 Jahren erneuert werden und besteht momentan aus einem Zweizeiler mit einer Durchgangsbreite von 77 cm. Aus Budget-Gründen wird es wohl eine neue IKEA Küche werden und diese hat ja eine noch größere Tiefe bei den Küchenschränken, so dass die Durchgangsbreite noch weiter schrumpfen würde. Ich bin der Meinung, dass das etwas zu schmal wird und tendiere daher zu einer L-Form. Das Problem dabei ist, dass dadurch relativ wenig Stauraum und auch weniger Arbeitsfläche vorhanden ist als bei einer zweizeiligen Küche.
Die Geräte sind soweit alle vorhanden, nur der stand allone Kühlschrank soll irgendwann mal durch ein integriertes Gerät ersetzt werden (deshalb auch der Hochschrank in der Planung). Es wäre auch ein entscheidender Grund IKEA zu wählen, weil man dort die Möglichkeit hat, Teile oder ganze Schränke nachzukaufen.
Der Anschluss für die Spüle befindet sich momentan planrechts oben und kann bei Bedarf nach planoben verlegt werden. Bei dem Austausch des alten Dachfensters ist noch keine Entscheidung getroffen bezüglich der Größe. Es sollte auf jeden Fall so groß werden, dass man dort bequem stehen und arbeiten kann. Der Kniestock ist 1m.
Bin gespannt auf eure Anregungen und Verbesserungsvorschläge.
Vielen Dank schonmal
Checkliste zur Küchenplanung
Anzahl Personen im Haushalt: 1
Davon Kinder?:
Art des Gebäudes?: Bestandsbau, (kleinere) Umbauten möglich
Körpergrössen aller Hauptbenutzer (wegen Arbeitshöhe ) in cm: 160
Brüstungshöhe des Fensters (in cm): 127
Fensterhöhe (in cm):
Raumhöhe in cm: 240, Dachschräge mit Kniestock 100cm
Heizung: Keine Heizung
Sanitäranschlüsse: variabel an aktueller Wand
Ausführung Kühlgerät: Stand-Alone bis 60 cm Breite
Kühlgerät Größe:
Ausführung Tiefkühl (TK)-Gerät:
Dunstabzugshaube: keine
Backofen etc. hochgebaut?: Nein
Hochgebauter Geschirrspüler ?: Nein
Kochfeldart: Ceran (herkömmlich)
Kochfeldbreite ca. (in cm)?: 60
Spülenform: 1,5 Becken ohne Abtropffläche
Geplante Heißgeräte: Backofen
Küchenstil: Modern
Sitzmöglichkeit in der Küche / im Küchenbereich: Keine
Sitzmöglichkeit: Für wieviel Personen?:
Sitzmöglichkeit: Tisch - wenn gesonderter Tisch oder offene Küche:
Gewünschte o. vorhandene Tischgröße:
Wofür soll der Sitzplatz in der Küche genutzt werden? Wie häufig?:
Welche Arbeitshöhe ist angedacht (in cm)?: 92
Was steht auf der Arbeitsplatte oder soll dort stehen?: Wasserkocher, Allesschneider, Toaster, Brotbehälter
Welche weiteren Küchenmaschinen müssen in der Küche untergebracht werden?:
Was soll in der Küche außer den Standards untergebracht werden?:
Welchen Stauraum gibt es sonst noch?: Geschirr/Gläserschrank im Wohn-/Esszimmer, Hauswirtschaftsraum
Was/wie wird gekocht? (Alltagsküche, Menüs, Snacks usw): Alltagsküche
Wie häufig wird gekocht?: (fast) täglich 1x warm
Wird alleine gekocht? Oder auch gemeinsam? Mit und für Gäste?: meist alleine
Was stört an der bisherigen Küche und was soll die neue Küche unbedingt können? Warum?: alte Küche ist über 30 Jahre alt, nur Schranktüren und keine Auszüge, schmaler Mittelgang
Welche Mülltrennung soll in der Küche vorgehalten werden?: Biomüll, Restmüll
Steht schon ein Küchenhersteller fest oder wird bevorzugt?: IKEA
Steht schon ein Gerätehersteller fest oder wird bevorzugt?: Geräte sind schon vorhanden
Preisvorstellung (Budget): bis 3.000,-
Anhänge
-
oben.KPL3,7 KB · Aufrufe: 213
-
alno 1.PNG55,2 KB · Aufrufe: 295 -
Grundriss.PNG68,2 KB · Aufrufe: 308 -
Grundriss küche.PNG40,5 KB · Aufrufe: 298 -
alno 5.PNG194,5 KB · Aufrufe: 284 -
alno 4.PNG760,5 KB · Aufrufe: 312 -
alno 3.PNG542,1 KB · Aufrufe: 281 -
alno 2.PNG340,2 KB · Aufrufe: 281 -
oben.POS4,2 KB · Aufrufe: 202


