Richtige Größe (Maße) der DAH?

Tempo

Mitglied
Beiträge
250
Hallo,

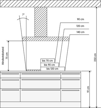
sollte die DAH nach vorne in etwa bündig zur APL abschließen oder macht es nichts - bzw. ist wegen dem Kopf sogar besser - wenn sie vielleicht 10 cm weniger Tiefe als die Arbeitsplatte hat?

Die Arbeitsplatte soll nämlich eine Tiefe von ca. 70cm haben. Eine nur 55cm tiefe Wandhaube wäre da evtl. etwas zu klein.

Nun könnte man auch eine Inselhaube mit 70cm Tiefe nehmen.
Nur habe ich Bedenken, daß die Haube dann wieder etwas zu groß ist.


Grüße Tempo
 
AW: Richtige Größe (Maße) der DAH?

Hallo Tempo,

ich empfehle meinen Kunden immer den Dunstabzug so zu wählen, dass mindestens ein seitlicher Überstand von ca. 10 cm verbleibt.

ZB. 60 cm Kochfeld + 90 cm Dunstabzug = seitliche Überdeckung je 15 cm.

Nach vorn und hinten ergibt sich meist die Überdeckung weil:

das Kochfeld vorn und hinten einen Abstand von ca 4-5 cm aufgrund der Einbautiefe hat. Ergibt sich aus den Maßen des Kochfelds, dass in der Regel breiter als tiefer ist.

In deinem Fall würde ich den Dunstabzug weiter nach vorn ziehen. Durch Trockenbau oder ähnliche Möglichkeiten. Ergonomisch ungünstig ist auf jeden Fall, wenn das Kochfeld in eine 70 cm Tiefe Arbeitsplatte ganz nach hinten versetzt eingebaut wird. Du mußt dich dann zu weit nach vorne beugen um beim kochen in die Töpfe gucken zu können.

Eine Inselhaube zu verbauen wir sicherlich Probleme mit der Abluft machen, da der Kanal ja mittig auf der Haube sitzt. Zumindest müßte dann was optisch Ansprechendes "gebastelt" werden.

Von der Größe her sollte es klappen, da die Tiefenmaße der Inselhauben ca. 65 - 70 cm betragen.

LG Wolfgang
 
AW: Richtige Größe (Maße) der DAH?

Hallo Wolfgang
:-)


Hallo Tempo,

ich empfehle meinen Kunden immer den Dunstabzug so zu wählen, dass mindestens ein seitlicher Überstand von ca. 10 cm verbleibt.

ZB. 60 cm Kochfeld + 90 cm Dunstabzug = seitliche Überdeckung je 15 cm.

Drunter sollen 2 Gaggenau Variokochfelder von je 38 cm Breite. Zusammen also knapp 80 cm. Da liege ich mit 90 - 100 cm Breite bei der DAH sicher richtig.


In deinem Fall würde ich den Dunstabzug weiter nach vorn ziehen. Durch Trockenbau oder ähnliche Möglichkeiten.

Antwort kommt im Zusammenhang weiter unten.


Ergonomisch ungünstig ist auf jeden Fall, wenn das Kochfeld in eine 70 cm Tiefe Arbeitsplatte ganz nach hinten versetzt eingebaut wird. Du mußt dich dann zu weit nach vorne beugen um beim kochen in die Töpfe gucken zu können.

Klar.
Ist auch nicht geplant die Kochfelder wegen der DAH nach hinten zu versetzen.

Eine Inselhaube zu verbauen wir sicherlich Probleme mit der Abluft machen, da der Kanal ja mittig auf der Haube sitzt. Zumindest müßte dann was optisch Ansprechendes "gebastelt" werden.

Dazu habe ich schon mal einen Fred gestartet:

https://www.kuechen-forum.de/forum/...22/6532-inselesse-als-wandesse-verwenden.html


Da sieht man auch, daß es in meinem Fall sogar ein Vorteil darstellt, daß der Kanal mittig sitzt.


Nur ist halt die Frage, ob eine 70cm tiefe DAH über einer 70cm tiefen APL nicht zu weit vorne ist.
Meist sind die Hauben doch um vielleicht 10cm zurück versetzt.

Die Brenner bzw. Töpfe stehen dann ja auch nicht direkt an der Kante des Kochfeldes.

Gruß
Tempo
:-)
 
AW: Richtige Größe (Maße) der DAH?

Ja Tempo, dass ist richtig. Die Hauben sitzen meist 10 cm versetzt nach hinten.

Aber ich denke mal es sollte gehen. Vielleicht hast du die Möglichkeit die Arbeitsplatte auf 75 cm tiefe zu bringen.

Oder halt eine Inselhaube mit einer Tiefe so um die 60 -65 cm zu wählen. Die gibt es ja auch.

LG Wolfgang
 
AW: Richtige Größe (Maße) der DAH?

Wolfgang,

Du würdest also auch sagen besser 5-10 cm weniger tief als die APL, wenn möglich?

90 x 60 cm würde sich da fast anbieten.

Gruß
Tempo
 

Anhänge

  • haubenbreite_wand.jpg
    haubenbreite_wand.jpg
    24 KB · Aufrufe: 1.032
AW: Richtige Größe (Maße) der DAH?

Hallo Samy,

Danke :-)
 
AW: Richtige Größe (Maße) der DAH?

Hi,
bei 70cm Tiefe würde ich das Kochfeld mit einem etwas breiteren vorderen Steg einbauen. 80mm zum Beispiel. Dann ist der Abstand des Kochfelds zur Rückwand letztlich nur ca. 6cm größer, als bei Standard-Tiefe. Dafür reicht dann aber auch eine Wandesse. Die 70cm tiefe Haube wäre schon ein ziemliches Brett vorm Kopf.
Grüße,
Jens
 
Neff Hausgeräte Ballerina Küchen Blum Bewegungstechnologie Weibel - Intelligente Küchenlüftung

Neff Spezial

Blum Zonenplaner

Weibel Abluft-Tuning

Weibel Abluft-Tuning
Zurück
Oben