mn77
Mitglied
- Beiträge
- 6
Hallo zusammen,
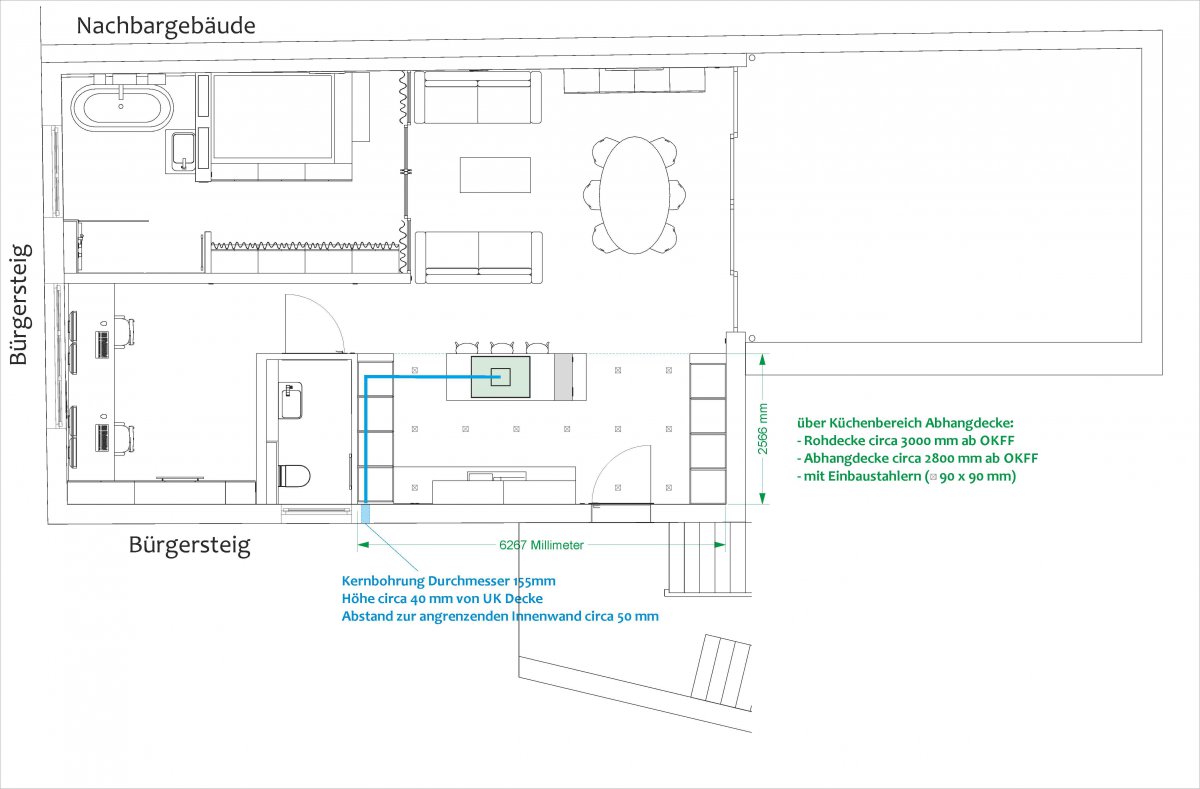
da ich neu in diesem Forum bin hoffe ich meine Anfrage richtig eingestellt zu haben. Zur Zeit befindet sich unsere Eigentumswohnung (EG mit offener Wohnküche) noch in der Bauphase, aber da zeitnah die Trockenbauarbeiten (abgehängte Decke über der Küche)beginnen sollen brauche ich dringend Hilfe bei der Planung der Abluftführung einer Inselhaube. Nach mehrmaligen Versuchen die entsprechende Haube samt Montage im Kölner Raum von einem Küchenstudio ausführen zu lassen (kein Rückruf nach Übersendung der Grundrisse bei drei Studios) habe ich jetzt diesen favorisierten Weg verworfen- jetzt müssen wir wohl selber ran und die Haube samt "Zubehör" online bestellen.
Mein Favorit ist zur Zeit die Novy Flatline 7640 Inselhaube- funktioniert diese wenn die Leitungslänge in der Abhangdecke schon circa 4,50 Meter lang ist? Im Forum habe ich schon über die Vorteile der Naber CompAir Technologie gelesen, welche wir dann auch gerne einsetzen möchten. Die Haube wird doch an der Rohecke (Raumhöhe 3 Meter welche circa 20 cm abgehängt wird) befestigt, oder?
Ist meine Skizze der Abluft (blaue Linie) so korrekt oder gibt es bessere Varianten?
Danke für Eure Vorschläge
da ich neu in diesem Forum bin hoffe ich meine Anfrage richtig eingestellt zu haben. Zur Zeit befindet sich unsere Eigentumswohnung (EG mit offener Wohnküche) noch in der Bauphase, aber da zeitnah die Trockenbauarbeiten (abgehängte Decke über der Küche)beginnen sollen brauche ich dringend Hilfe bei der Planung der Abluftführung einer Inselhaube. Nach mehrmaligen Versuchen die entsprechende Haube samt Montage im Kölner Raum von einem Küchenstudio ausführen zu lassen (kein Rückruf nach Übersendung der Grundrisse bei drei Studios) habe ich jetzt diesen favorisierten Weg verworfen- jetzt müssen wir wohl selber ran und die Haube samt "Zubehör" online bestellen.
Mein Favorit ist zur Zeit die Novy Flatline 7640 Inselhaube- funktioniert diese wenn die Leitungslänge in der Abhangdecke schon circa 4,50 Meter lang ist? Im Forum habe ich schon über die Vorteile der Naber CompAir Technologie gelesen, welche wir dann auch gerne einsetzen möchten. Die Haube wird doch an der Rohecke (Raumhöhe 3 Meter welche circa 20 cm abgehängt wird) befestigt, oder?
Ist meine Skizze der Abluft (blaue Linie) so korrekt oder gibt es bessere Varianten?
Danke für Eure Vorschläge
