Majore
Mitglied
- Beiträge
- 6
Nach 12 Jahren wollen/müssen wir endlich unsere Küche renovieren und wollen sie mit möglichst geringem finanziellen und zeitlichem Aufwand modernisieren.Da mir die Kreativität nicht wirklich in die Wiege gelegt wurde, bin ich beim Stöbern nach Ideen auf dieses Forum gestoßen
.
Vlt gibt es die eine od andere Idee, wie wir die Küche gestalten könnten. Die Küche ist in unserer Familie eigentlich der Mittelpunkt.Hier spielt sich der Alltag ab. Sie gliedert sich sowohl in Koch- und Essbereich, aber auch in Durchgangszimmer. Sie ist eigentlich sehr groß ist, jedoch fehlt es mir z.B. beim Backen an Arbeitsfläche, weil irgendwie alles mit irgendwelchen Geräten zugestellt ist.Ich bin am Überlegen, welche Möglichkeit es gibt, entweder die frühstücksrelavanten Geräte (Toaster,Kaffeemaschine,Wasserkocher) zusammen in greifbarer Nähe des Essplatzes zu positionieren oder die Schrankzeile auf der Herdseite nach vorn mit Schränken oder einer Arbeitsplatte ect zu ergänzen.Welche Möglichkeiten gibt es, am Übergang von der Arbeitsplatte zum Tisch ein Metallregal bis zur Decke auf die Arbeitsplatte zu bauen (z.B. mit Obstkorb oä).
Den schrägen Mauervorsprung würde ich am Liebsten nach unten begradigen (auf der Länge, wo die blaue Platte endet (80cm) - was könnte man (evtl von beiden Seiten) daraus machen? Genauso das schräge Teil, was darüber ist.
Der Fußboden soll sowohl im tiefergelegten Kochbereich, als auch im Durchgangsbereich einen neuen Belag erhalten (Venyl ?), der auf die Fliesen gelegt wird. Leider muss es dünnes Material sein, weil wir sonst alle 4 Türen höher setzen müssten. Als Tapete würde ich evtl etwas mit Steinmuster oder so bevorzugen. Weiß aber nicht genau, ob nur im Kochbereich, im Sitzbereich oder im Durchgangsbereich. Ein Problem ist noch der geringe Abstand zwischen Esstisch und Wand. Wenn mein Sohn zu seinem Platz geht, schleift er ständig mit der Hose an der Wand, was man nun auch deutlich an der Wand sieht. Welches Material könnte an dieser Seite an die Wand oder überstreiche ich die neue Tapete einfach als Schutz mit Tapetenhaut?
Da wir einen Indoor-Kater haben, muss ich auch an alle Außenecken einen Kratzschutz anbringen.Außerdem überlege ich, ob ich die Fronen der Küche überstreiche. Die Farbe ist momentan Wildbirne matt.
Checkliste zur Küchenplanung
Anzahl Personen im Haushalt: 5
Davon Kinder?: 3
Art des Gebäudes?: Bestandsbau, Umbauten ausgeschlossen
Körpergrössen aller Hauptbenutzer (wegen Arbeitshöhe ) in cm: 160 und 176cm
Brüstungshöhe des Fensters (in cm):
Fensterhöhe (in cm):
Raumhöhe in cm:
Heizung: Heizkörper wie im Grundriss
Sanitäranschlüsse: fix
Ausführung Kühlgerät:
Kühlgerät Größe:
Ausführung Tiefkühl (TK)-Gerät:
Dunstabzugshaube: Umluft
Backofen etc. hochgebaut?: Ja
Hochgebauter Geschirrspüler ?: Nein
Kochfeldart: Ceran (herkömmlich)
Kochfeldbreite ca. (in cm)?:
Spülenform: 1 Becken mit Abtropffläche
Geplante Heißgeräte:
Küchenstil: Modern
Sitzmöglichkeit in der Küche / im Küchenbereich: Arbeitsplatte in Tischhöhe
Sitzmöglichkeit: Für wieviel Personen?: für 5 Personen
Sitzmöglichkeit: Tisch - wenn gesonderter Tisch oder offene Küche: Vorhandener Tisch
Gewünschte o. vorhandene Tischgröße: vorhandener Tisch angeschlossen an Arbeitsplatte
Wofür soll der Sitzplatz in der Küche genutzt werden? Wie häufig?: für alle Mahlzeiten
Welche Arbeitshöhe ist angedacht (in cm)?:
Was steht auf der Arbeitsplatte oder soll dort stehen?: Kaffeemaschine, Wasserkocher, Allesschneider, Toaster, Brotbehälter, Obstschale
Welche weiteren Küchenmaschinen müssen in der Küche untergebracht werden?:
Was soll in der Küche außer den Standards untergebracht werden?: Geschirr komplett (nichts in Ess-/Wohnzimmer)
Welchen Stauraum gibt es sonst noch?: Speisekammer
Was/wie wird gekocht? (Alltagsküche, Menüs, Snacks usw): Alltagsküche
Wie häufig wird gekocht?: (fast) täglich 1x warm
Wird alleine gekocht? Oder auch gemeinsam? Mit und für Gäste?: alleine
Was stört an der bisherigen Küche und was soll die neue Küche unbedingt können? Warum?: zu wenig Arbeitsfläche, weil viele Geräte auf der Fläche stehen.Frühstücksrelevante Geräte sollen am Tisch stehen.Die Fronten sind farblich nicht mehr zeitgemäß (streichen?). An die Wände an den Arbeitsflächen sollten abwischbare Materialien (keine Fliesen).
Welche Mülltrennung soll in der Küche vorgehalten werden?: Altpapier, Biomüll, Gelber Sack Müll, Restmüll
Steht schon ein Küchenhersteller fest oder wird bevorzugt?: Wellmann
Steht schon ein Gerätehersteller fest oder wird bevorzugt?:
Preisvorstellung (Budget):
---------------------
Im Threadverlauf hinzugekommen:
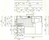
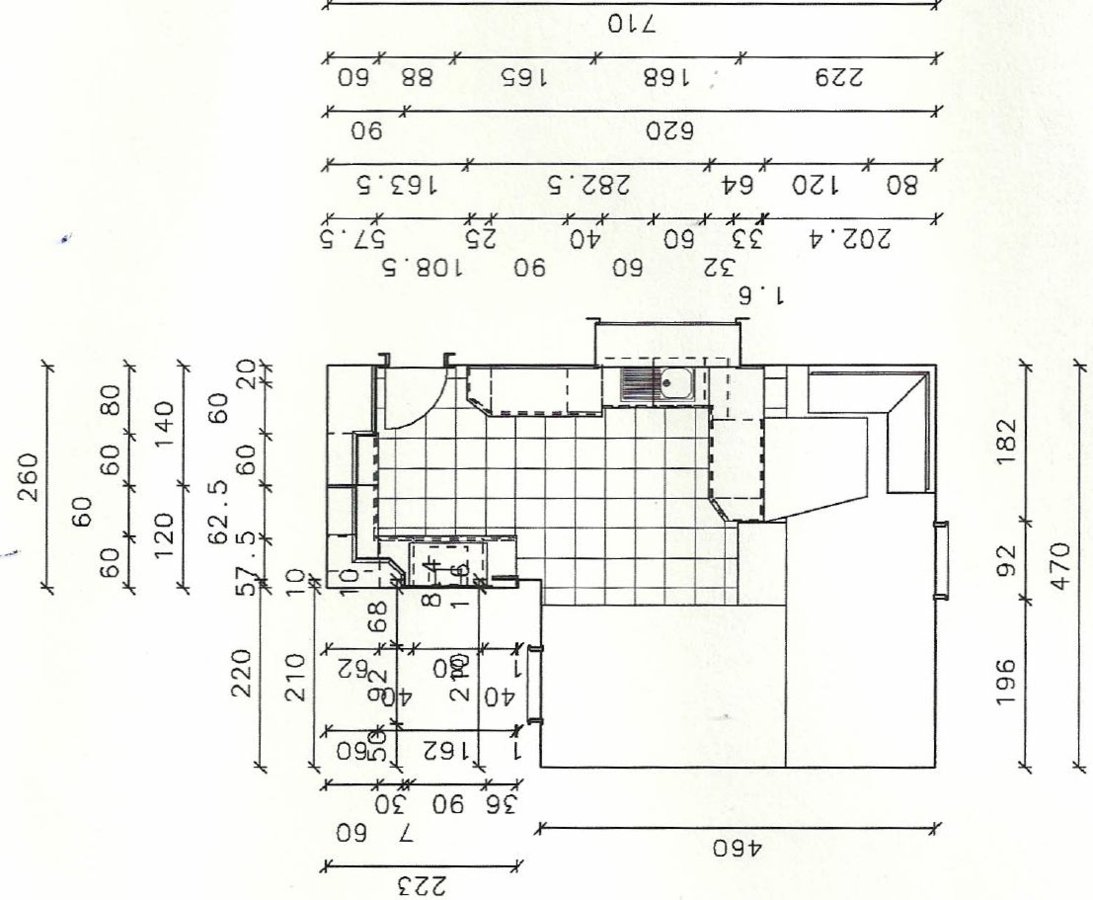
ehemaliger Küchenstudio -Grundriss als JPG
Küchengrundrissmaße lt. TE
Vlt gibt es die eine od andere Idee, wie wir die Küche gestalten könnten. Die Küche ist in unserer Familie eigentlich der Mittelpunkt.Hier spielt sich der Alltag ab. Sie gliedert sich sowohl in Koch- und Essbereich, aber auch in Durchgangszimmer. Sie ist eigentlich sehr groß ist, jedoch fehlt es mir z.B. beim Backen an Arbeitsfläche, weil irgendwie alles mit irgendwelchen Geräten zugestellt ist.Ich bin am Überlegen, welche Möglichkeit es gibt, entweder die frühstücksrelavanten Geräte (Toaster,Kaffeemaschine,Wasserkocher) zusammen in greifbarer Nähe des Essplatzes zu positionieren oder die Schrankzeile auf der Herdseite nach vorn mit Schränken oder einer Arbeitsplatte ect zu ergänzen.Welche Möglichkeiten gibt es, am Übergang von der Arbeitsplatte zum Tisch ein Metallregal bis zur Decke auf die Arbeitsplatte zu bauen (z.B. mit Obstkorb oä).
Den schrägen Mauervorsprung würde ich am Liebsten nach unten begradigen (auf der Länge, wo die blaue Platte endet (80cm) - was könnte man (evtl von beiden Seiten) daraus machen? Genauso das schräge Teil, was darüber ist.
Der Fußboden soll sowohl im tiefergelegten Kochbereich, als auch im Durchgangsbereich einen neuen Belag erhalten (Venyl ?), der auf die Fliesen gelegt wird. Leider muss es dünnes Material sein, weil wir sonst alle 4 Türen höher setzen müssten. Als Tapete würde ich evtl etwas mit Steinmuster oder so bevorzugen. Weiß aber nicht genau, ob nur im Kochbereich, im Sitzbereich oder im Durchgangsbereich. Ein Problem ist noch der geringe Abstand zwischen Esstisch und Wand. Wenn mein Sohn zu seinem Platz geht, schleift er ständig mit der Hose an der Wand, was man nun auch deutlich an der Wand sieht. Welches Material könnte an dieser Seite an die Wand oder überstreiche ich die neue Tapete einfach als Schutz mit Tapetenhaut?
Da wir einen Indoor-Kater haben, muss ich auch an alle Außenecken einen Kratzschutz anbringen.Außerdem überlege ich, ob ich die Fronen der Küche überstreiche. Die Farbe ist momentan Wildbirne matt.
Checkliste zur Küchenplanung
Anzahl Personen im Haushalt: 5
Davon Kinder?: 3
Art des Gebäudes?: Bestandsbau, Umbauten ausgeschlossen
Körpergrössen aller Hauptbenutzer (wegen Arbeitshöhe ) in cm: 160 und 176cm
Brüstungshöhe des Fensters (in cm):
Fensterhöhe (in cm):
Raumhöhe in cm:
Heizung: Heizkörper wie im Grundriss
Sanitäranschlüsse: fix
Ausführung Kühlgerät:
Kühlgerät Größe:
Ausführung Tiefkühl (TK)-Gerät:
Dunstabzugshaube: Umluft
Backofen etc. hochgebaut?: Ja
Hochgebauter Geschirrspüler ?: Nein
Kochfeldart: Ceran (herkömmlich)
Kochfeldbreite ca. (in cm)?:
Spülenform: 1 Becken mit Abtropffläche
Geplante Heißgeräte:
Küchenstil: Modern
Sitzmöglichkeit in der Küche / im Küchenbereich: Arbeitsplatte in Tischhöhe
Sitzmöglichkeit: Für wieviel Personen?: für 5 Personen
Sitzmöglichkeit: Tisch - wenn gesonderter Tisch oder offene Küche: Vorhandener Tisch
Gewünschte o. vorhandene Tischgröße: vorhandener Tisch angeschlossen an Arbeitsplatte
Wofür soll der Sitzplatz in der Küche genutzt werden? Wie häufig?: für alle Mahlzeiten
Welche Arbeitshöhe ist angedacht (in cm)?:
Was steht auf der Arbeitsplatte oder soll dort stehen?: Kaffeemaschine, Wasserkocher, Allesschneider, Toaster, Brotbehälter, Obstschale
Welche weiteren Küchenmaschinen müssen in der Küche untergebracht werden?:
Was soll in der Küche außer den Standards untergebracht werden?: Geschirr komplett (nichts in Ess-/Wohnzimmer)
Welchen Stauraum gibt es sonst noch?: Speisekammer
Was/wie wird gekocht? (Alltagsküche, Menüs, Snacks usw): Alltagsküche
Wie häufig wird gekocht?: (fast) täglich 1x warm
Wird alleine gekocht? Oder auch gemeinsam? Mit und für Gäste?: alleine
Was stört an der bisherigen Küche und was soll die neue Küche unbedingt können? Warum?: zu wenig Arbeitsfläche, weil viele Geräte auf der Fläche stehen.Frühstücksrelevante Geräte sollen am Tisch stehen.Die Fronten sind farblich nicht mehr zeitgemäß (streichen?). An die Wände an den Arbeitsflächen sollten abwischbare Materialien (keine Fliesen).
Welche Mülltrennung soll in der Küche vorgehalten werden?: Altpapier, Biomüll, Gelber Sack Müll, Restmüll
Steht schon ein Küchenhersteller fest oder wird bevorzugt?: Wellmann
Steht schon ein Gerätehersteller fest oder wird bevorzugt?:
Preisvorstellung (Budget):
---------------------
Im Threadverlauf hinzugekommen:
ehemaliger Küchenstudio -Grundriss als JPG
Küchengrundrissmaße lt. TE
Anhänge
-
DSCN2642.JPG128,6 KB · Aufrufe: 289 -
Küche Grundriss.pdf620,7 KB · Aufrufe: 260
-
Küche3.pdf247 KB · Aufrufe: 245
-
Küche2.pdf198,5 KB · Aufrufe: 250
-
Küche1.pdf275,1 KB · Aufrufe: 257
-
DSCN2648.JPG146 KB · Aufrufe: 295 -
DSCN2647.JPG122,8 KB · Aufrufe: 288 -
DSCN2645.JPG144,2 KB · Aufrufe: 299 -
DSCN2644.JPG161,3 KB · Aufrufe: 299 -
DSCN2643.JPG89,9 KB · Aufrufe: 317
Zuletzt bearbeitet von einem Moderator:
