Planung große Küche im Neubau - wir brauchen Eure Hilfe !!!

Ah verstanden. Wobei die hellblaue HS-Wand schon aufwändiger zu realisieren ist. Die Schränke sind an der Wand verankert und dann halb tief in Trockenbau gesetzt, um diese schweben Optik zu erzielen.

Ich würde diesen Aufwand nicht betreiben, lieber mehr Stauraum wollen, die Schränke deckenhoch machen und dann im Eingangsbereich eine dünne Trockenbauwand setzten, z.B. wie in dieser Küche.

Zum Fenster, das sieht nach festen Elementen aus. Falls sie doch zu öffnen sind, wie oft muss man denn genau das Fenster ganz öffnen, wo der KVA steht? 6 Mal im Jahr zum Fenster putzen? Da kann man auch den KVA mal wegräumen.
 
Hallo Ihr Lieben,

nachdem Ihr so wertvolle Beiträge geleistet habt, haben wir uns für die Umplanung entschieden. Meinen Küchenbauer musste ich erst einmal wieder friedlich stimmen, da wir die Küche zum xten Mal umgeschmissen haben, aber dann ging es :-)

Ich stelle Euch mal Bilder ein.

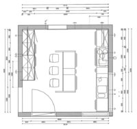
Fußboden wir Eiche natural.

Womit wir noch nicht ganz glücklich sind bzw. kleine Bedenken haben:

- Ist die Arbeitsfläche in der Arbeitszeile (Herd, Spüle) nicht viel zu wenig? Ich habe auch praktisch keine Stellfläche. Ich mag es eher "clean", aber ein Messerblock und Obstschale sollte da schon rumstehen und ich mag den Küchenblock eigentlich nicht vollstellen :-)

- Zum Anderen gefällt mir die Hängeschrank-Version neben der Dunste so gar nicht. Der Hinweis unseres Küchenbauers war: Wo sind Gewürze, Pfeffermühlen usw. Die Fragestellung kann ich nicht von der Hand weisen. Gäbe es eine andere Lösung?

- Momentan haben wir die Berbel Ergo in unserer Küche vorgesehen. Davor hatten wir die Franke Metis, da wir bei diesem Modell den "Kamin" weglassen konnten (was ich persönlich schöner finde). Kann man das bei der Berbel auch? Könnt Ihr uns noch andere empfehlen?

- Zur Wand mit den Hochschränken: Bild 3: Version Küchenbauer, Bild 4: so hätten wir es gerne - allerdings sollte das große offene Fach links in Hochglanz weiß sein und die 2 Regaleinsätze abgesetzt in Eiche oder Stil wie APL. Was meint Ihr?

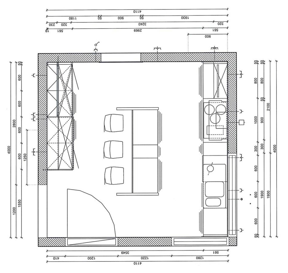
Aufgrund der wenigen Arbeitsfläche haben wir überlegt den Küchenblock auf der anderen Seite anzudocken (s. Bild 2 anbei), um die Küchenzeile zu "verlängern". Dadurch ergibt sich aber automatisch wieder das "slalom-laufen".....mmmhhhh

Ich freu mich auf Euer Feedback.

Liebe Grüße
Nici
 

Anhänge

  • Bild1.jpg
    Bild1.jpg
    109,7 KB · Aufrufe: 369
  • Bild2.jpg
    Bild2.jpg
    111,5 KB · Aufrufe: 368
  • Bild3.jpg
    Bild3.jpg
    113,5 KB · Aufrufe: 343
  • Bild4.jpg
    Bild4.jpg
    114,2 KB · Aufrufe: 361
Also die Gewürze kommen in die Schublade links neben dem Kochfeld - sehr praktisch.
Die Obstsschale steht auf der Insel und der Messerblock hat auf der Zeile Platz. ;-)

Bei der Hochschrankwand würde ich es machen wie der KFB.

Kannst du bitte ein Bild von der Zeile mit DAH einstellen, sonst kann man da wenig sagen.
 
Wie gewünscht anbei das Bild :-) eine direkte Frontansicht liegt mir leider nicht vor.
 

Anhänge

  • Bild5.jpg
    Bild5.jpg
    62,1 KB · Aufrufe: 320
Meinst Du den Oberschrank oder Hochschrank ?

Wir wollten den GSP von links und rechts bedienen können und uns deshalb dafür entschieden. Es bleiben noch ca. 30 cm Platz wenn die Klappe offen ist - genug um "vorbeizuschlupfen" ? oder
 
Sorry, wenn man schnell sein will. Ich meine natürlich den Oberschrank .

Der GSP ist halt am Rand praktischer, weil er offen dann nicht im Weg ist. Hat dann halt genau die Höhe an der man sich gerne stößt, weil man sie nicht wahrnimmt, auch wenn man gut dran vorbei kommen sollte.
 
Ich würde auch den Oberschrank weg lassen. Du verlierst zwar den Stauraum, aber optisch wäre es ohne den Schrank besser.

Warum ist in der Hochschrankwand das "Loch"?

Bei der Hochschrankwand gefällt mir die Variante mit den mittigen Heißgeräten besser.
 
Liebe Anke,

wie ist es dann aber mit Verschmutzung der angrenzenden Wand beim Geschirrspüler - man kennt das ja - Kaffeetassen mit Restpfütze drin o. ä. ;-)

Bzgl. der Abwicklung der Wand anbei nochmal ein genaueres Bild der Wand wie wir Sie gesehen haben und superschön fanden.

Was denkt Ihr über eine Küche in hellem graublau? Die Kombi sieht hier wirklich irre aus, aber ich befürchte dass man das in einigen Jahren nimmer sehen kann.
 

Anhänge

  • Bild6.jpg
    Bild6.jpg
    37,2 KB · Aufrufe: 346
So könnt Ihr Euch die gewünschte Symmetrie durch Asymmetrie besser vorstellen ;-)
 
Mir gefällt es diese Farbkombination. Und ich glaube nicht, dass in Paar Jahren nicht mehr sehen kannst. Ich habe auch eine Küche in Delphingrau, und ich glaube, dass mit verschieden Dekofarben da immer wieder variieren kann.
Aber den GSP würde ich wirklich nicht zwischen Kochfeld und Spüle planen. Und die Abtropfe von Spülbecken schon gar nicht...
Ich kann mir wirklich nicht nachvollziehen "die Spülmaschine von zwei Seiten zu bedienen". Räumt ihr die Spülmaschine grundsätzlich gleichzeitig zu zweit ein und aus? Ich bin froh, dass ich in eine Richtung ausräumen muss und so anderen in der Küche nicht störe.;-)
Hängeschrank würde ich auch weglassen...
 
also tatsächlich räumen mein mann und ich fast immer die gsp zusammen aus, einer steht dann auf der seite wo das geschirr in die nahen schränke muss und einer wo töpfe und tupper hin kommt, bei uns passt es so super, ein wenig im weg ist er allerdings offen schon manchmal und wir haben 120cm zeilenabstand
 
Bei uns ist es oft auch so - deswegen und wegen Wand überlegten wir das so zu machen.

Welchen Entwurf Küchenblock würdet ihr denn machen? Komplett freistehend oder den angedockten (womit mehr Arbeitsfläche zur Verfügung stehen würde, aber eher Slalomlaufen angesagt ist) ?
 
Ich würde das Kochfeld mittig über zwei US links machen, dann hättest du mehr Arbeitsfläche zwischen Kochfeld und Spüle.
 
Diese Hochschrankwand mit der asymetischen Aussparung ist überhaupt nicht meines, daher fällt mir schwer so zu 100 % eine Meinung dazu zu bilden. Wie schon oben geschrieben, ich würde die Heißgeräte mittig setzt, aber es stimmt schon, dass das dann nicht so richtig zu dem asymetrischen "Loch" passt.

Würde ich eine Hochschrankwand mit Aussparung planen würde ich entweder diese Aussparung über die ganze Breite vornehmen oder über die beiden mittigen Schränke. Die Heißgeräte wären dann immer mittig. Die Aussparung könnte ich mir dann gut komplett in einer anderen Farbe (z.B. APL- oder Nischrückwandfarbe) als die Frontfarbe vorstellen.

Eure Planung wirkt deutlich unruhiger als das Beispielfoto, da ihr die Front durch die Schrankaufteilung (= viele Auszüge) mehr unterbrochen habt. Die größeren durchgängigen Fronten auf dem Foto wirken trotz kompletter Asymetrie ruhig. Mir persönlich wäre eure Aufteilung (= Asymetrie + viele Unterteilung) optisch zu viel.

Ich glaube grau ist ähnlich wie weiß. Man sieht sich nicht so schnell satt daran und hat viele Möglichkeiten durch eine andere Wand- und/oder Dekofarbe der Küche ein neues Gesicht zu verleihen.
 
Hallo Ursina,

vielen Dank für Dein Feedback - unserem Küchenplaner habe ich das Foto gegeben mit der Bitte es genau sooo zu planen - wie Du im ersten Entwurf siehst wurde das leider nicht umgesetzt. Bzgl. der Unruhe bin ich absolut bei Dir - an der Wand passiert so viel zu viel. Das Besondere an der Abwicklung (abgesetzte Regale und vordere offene Nische) geht so natürlich völlig verloren. Also unser Wunsch ist eine Umsetzung wie im Bespielfoto :-)
 
Stimme den Vorredner zu:
  • GSP unbedingt an den Rand, so muss man immer drum herum beim Ausräumen und kann ihn auch bei der Arbeit nicht auf lassen
  • OS weg, der sieht da verloren aus
  • Nur eine Zeile und eine freistehende Insel, die andere Variante hat nicht viel mehr Platz, wirkt aber viel gequetschter und hat unnötige Ecken
  • Schrankbreiten, das ist mir noch alles zu wuselig, warum von der durchdachten Aufteilung von Zeile und Insel in #14 abweichen? MUPL sollte nach Möglichkeit 40cm breit sein. Und breite Schränke nebeneinander möglichst gleich breit. Und sonst schmale Schränke nur wo unbedingt nötig, sprich nicht in der Insel.
 
Hallo Nils,

unsere Küche wird Nobilia Lux - ich glaube die haben kein 6er Raster
in der Tat sind wir mit der Aufteilung der Schränke noch nicht durch und fanden es auch zu "durcheinander" :-)
 

Ähnliche Beiträge

Neff Hausgeräte Ballerina Küchen Blum Bewegungstechnologie Weibel - Intelligente Küchenlüftung

Neff Spezial

Blum Zonenplaner

Weibel Abluft-Tuning

Weibel Abluft-Tuning
Zurück
Oben