Plan- und Ideenlos! Neuplanung Küche mit Dachschräge

DonnieDarko

Mitglied
Beiträge
15
Hallo liebe Forenteilnehmer,

mein Name ist Benny und ich bin 29 Jahre alt!

Ich lese nun schon eine ganze Weile mit und beschäftige mich seit Wochen intensiv mit dem Thema „Küchenplanung “.

Meine Freundin und ich habe vor kurzem das Haus ihrer Oma überschrieben bekommen. Nun fangen wir an und bringen das OG auf Vordermann (die Großmutter wohnt noch im EG).

Nachdem in den anderen Räumenneue Farbe/Tapete und ein neuer Boden ausreichte kamen wir bei der Küche an.

Vieles haben wir gelesen und angeguckt – mit dem Ergebnis, dass wir nun total überfordert sind was das Thema „Planung“ angeht. Wir hoffen nun, dass wir hier vll. ein paar Anregungen bzw. Ideen aufgezeigt bekommen.

Wir waren auch bereits in mehreren Ausstellungen (z.B. Nolte , Siematic /Signia und Nieburg)

Aufgrund der dort gesammelten Eindrücke sind wir zu 3 Unterschiedlichen Küchenstudios gefahren und merkten, dass wir (trotz der vielen Eindrücke) überhaupt keine Vorstellung haben was bei uns in die Küche passen würde.

Leider sind die Erfahrungen die wir mit den örtlichen Küchenstudios machen mussten alles andere als gut.

Studio A vertrötet uns seit 3 Wochen und sagt die Termine immer 1-2 Tage vorher ab (angeblich wegen Krankheit, Todesfall, EDV-Ausfall usw)


Studio B machte anfangs einen sehr guten Eindruck. Allerdings will uns dieses Studio die ersten Planungen erst zeigen wenn wir 500 Euro Planungsgebührenpfand bezahlen. Dieser „Pfand“ würde bei Bestellung verrechnet werden.

Grundsätzlich fände ich dieses Vorgehen okay ABER: jede noch so kleine Umplanung würde ab diesem Zeitpunkt 100 Euro kosten – diese Kosten würden nicht verrechnet werden! < --- Nach Recherche im Netz zeigte sich, dass dieses Studio keinen guten Ruf hat.


Studio C fällt raus! Wir beiden hatten das Gefühl, das wir stören und nicht willkommen sind.


Nun zur Küche:


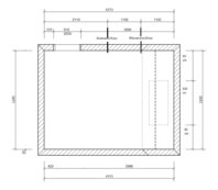
Der Raum hat eine Dachschräge. An dieser ist auch das einzige Fenster im Raum.

Wir würden gerne in die Wand gegenüber der Dachschräge einen Druchbruch machen um die Küche mit dem Esszimmer zu verbinden und die aktuelle Tür zumauern. Allerdings stellt sich dann die Frage ob dies sinnvoll wäre (Planungstechnisch).


Zum Design:

Wir hätte gerne eine Küche mit Hochglanzfronten. Farbtechnisch finden wir beide grau und weiß schön.

Der Backofen sollte hochgestellt sein und das Induktionsfeld sollte breit sein.

Die Arbeitshöhe ist bei uns das große Problem! Mein Freundin ist 1,66 m groß und ich 2,05 m.

Wir dachten an eine Höhe von 94 + cm. Sinnvoll?


Entschuldigt bitte den langen Text und hoffe das alle nötigen Informationen in den anliegenden Dateien zu finden sind.


Schon jetzt vielen Dank für eure Bemühungen J



Gruß


Benny

Checkliste zur Küchenplanung

Anzahl Personen im Haushalt: 2
Davon Kinder?:
Art des Gebäudes?:
Neu-/Umbau, Planänderungen möglich, Bestandsbau, (kleinere) Umbauten möglich
Körpergrössen aller Hauptbenutzer (wegen Arbeitshöhe) in cm: 166 und 205
Brüstungshöhe des Fensters (in cm): 126
Fensterhöhe (in cm): 150
Raumhöhe in cm: 253, Kniestockhöhe 126 cm, Schräge geht dann von planrechts 105 cm in den Raum
Heizung: Keine Heizung
Sanitäranschlüsse:
Ausführung Kühlgerät:
Kühlgerät Größe:
noch unbekannt
Ausführung Tiefkühl (TK)-Gerät: Im Kühlschrank ab 3 Schubladen unten
Dunstabzugshaube: Umluft
Backofen etc. hochgebaut?: Wenn möglich
Hochgebauter Geschirrspüler ?: Nein
Kochfeldart: Induktion
Kochfeldbreite ca. (in cm)?: ab 70
Spülenform: Noch nicht festgelegt
Geplante Heißgeräte: Einbaumikrowelle, Backofen , Entfällt: Dampfgarer ohne Wasseranschluß,
Küchenstil: Modern
Sitzmöglichkeit in der Küche / im Küchenbereich: Überstehende Arbeitsplatte
Sitzmöglichkeit: Für wieviel Personen?: für 4 Personen
Sitzmöglichkeit: Tisch - wenn gesonderter Tisch oder offene Küche:
Gewünschte o. vorhandene Tischgröße:
Wofür soll der Sitzplatz in der Küche genutzt werden? Wie häufig?:
täglich zum Frühstücken/Abendbrot. Selten mit Freunden zum gemeinsamen essen
Welche Arbeitshöhe ist angedacht (in cm)?:
Was steht auf der Arbeitsplatte oder soll dort stehen?:
Kaffeevollautomat, Toaster
Welche weiteren Küchenmaschinen müssen in der Küche untergebracht werden?:
Was soll in der Küche außer den Standards untergebracht werden?:
Getränkekisten
Welchen Stauraum gibt es sonst noch?: Geschirr/Gläserschrank im Wohn-/Esszimmer, Keller
Was/wie wird gekocht? (Alltagsküche, Menüs, Snacks usw): Alltagsküche, Menüs
Wie häufig wird gekocht?(fast) täglich 1x warm[/COLOR]
Wird alleine gekocht? Oder auch gemeinsam? Mit und für Gäste?: meistens alleine. Ab und an zu 2.
Was stört an der bisherigen Küche und was soll die neue Küche unbedingt können? Warum?: Aktuelle Küche ist von 1975. :-)
Welche Mülltrennung soll in der Küche vorgehalten werden?: Altpapier, Biomüll, Gelber Sack Müll, Restmüll
Steht schon ein Küchenhersteller fest oder wird bevorzugt?: Nolte oder Signia sind z.z unsere Favoriten
Steht schon ein Gerätehersteller fest oder wird bevorzugt?:
Preisvorstellung (Budget): bis 15.000,-
 
Zuletzt bearbeitet von einem Moderator:
Bilder:
 

Anhänge

  • Ansicht 3d 1.JPG
    Ansicht 3d 1.JPG
    114,6 KB · Aufrufe: 220
  • Ansicht 3d 2.JPG
    Ansicht 3d 2.JPG
    126 KB · Aufrufe: 222
  • IMG-20150214-WA0001.jpg
    IMG-20150214-WA0001.jpg
    83,9 KB · Aufrufe: 207
  • IMG-20150214-WA0002.jpg
    IMG-20150214-WA0002.jpg
    81,7 KB · Aufrufe: 204
  • Maße Küche.jpg
    Maße Küche.jpg
    68,7 KB · Aufrufe: 570
  • Plan 1.POS
    2,2 KB · Aufrufe: 232
  • Plan 1.KPL
    3,9 KB · Aufrufe: 242
  • Grundriss.JPG
    Grundriss.JPG
    48,5 KB · Aufrufe: 213
Hallo Donnie und herzlich willkommen im Forum.

alle Achtung, dafür dass du Küchenplanung das erste Mal machst, hast du dich richtig ins Zeug gelegt (inkl Wasseranschlüsse).:2daumenhoch:

Es wäre trotzdem gut, wenn du noch ein Bild deines Alnogrundrisses anhängen könntest (mit snipping tool von windows).

Ich beneide dich nicht. Es scheint so zu sein, dass man viel Glück braucht, um einen KFB zu finden, mit dem man klickt. Irgendwie seltsam, dass eine Branche soviel negative MundzuMundpropaganda produziert. Die müssen doch auch von was leben und brauchen den nächsten Kunden.
 
noch was, richte deine Pläne immer in die gleiche Richtung aus, sonst raffen wir das nicht.;-)

in welcher Höhe beginnt die Dachschräge?
 
Arbeitshöhe : wenn ihr beide gerne Kocht, dann sollte jeder für sich die optimale Arbeitshöhe ermittlen. Am besten geht das mit einem höhenverstellbaren Bügelbrett und schnibblen, schnibbeln, schnibbeln ;-)

Wenn ihr die bestehende Küchentüre schliesst, dann gibt das prima Platz für eine Garderobe - das ist nie verkehrt. Ausserdem kann man dann eine prima U-Küche möblieren, das ist auch kein Fehler. Durch die Oeffnung zum Essen käme auch mehr Licht in die Küche - auch das ein Vorteil. Von daher - ich würd's machen :-)
 
Hallo Evlin,

vielen Dank für die schnelle Antwort.
Wir haben mittlerweile das Gefühl, dass sämtliche Studios ihre Auftragsbücher voll haben - anders ist das Verhalten nicht zu erklären!



Gruß

Benny



Anbei der gewünschte Ausschnitt.




Edit: Wow und noch mehr Antworten. Klasse! :-)
Die Schräge beginnt auf einer Höhe von 126 cm
 

Anhänge

  • Grundriss.JPG
    Grundriss.JPG
    48,5 KB · Aufrufe: 218
Hallo Nice-nofret,

das Licht ist ein Grund warum wir diesen Durchbruch gerne hätten. Das Fenster liegt auf der Ostseite! Ab Mittags ist es also immer recht düster im Raum. Das gepaart mit der braunen Küche von 1975 ist einfach nur grausig! :-) (wobei die die alte Küche auch im hellen Licht Augenkrebs verursachen würde! :-)


Meine Freundin kocht sehr selten! Meist muss ich ran! Deswegen würden wir einen Kompromiss bei der Arbeitshöhe eher in meiner Richtung tendieren lassen. (zur Not muss sich meine Freundin halt 5-6 mal im Jahr auf einen Tritt stellen! :-P )
 
die 126cm müsstest du noch in deinem Leerplan abändern. Mit der F4 Taste. Du hast als Z Pos noch die 110cm drin.
 
Ich steige da nicht durch. Ich ändere die Z-Position immer auf 126 und speicher. Trotzdem springt er beim erneuten Laden des Plans immer wieder auf 110! Hatte das vorhin schon geändert.

Habe es jetzt gerade erneut getestet aber er springt immer wieder auf 110 cm.


Edit: So nun hat es doch geklappt! Habe die Datein im ersten Post durch die angepassten ersetzt!
 
Zuletzt bearbeitet:
Möblierungsvorschlag (430cm- Kniestock 126) - U-Küche.

Die Seitenschrankwand von Esszimmerwand bis Kniestock:
5cm Blende, 3x 60cm Vorratsschrank, BO, Kühlschrank, 80cm Arbeitsfläche mit Unterschränken auf Freundinhöhe bis zur toten Ecke - Unter der Dachschräge Unterschränke.

Die Arbeitsseite in Uebertiefe (90cm-100) und Deine optimale Arbeitshöhe:
Von Esszimmer bis Kniestock:
Blende 3x 80cm Unterschränke Kochfeld auf dem mittleren U-Schrank; Spüle, Gsp ,Tote Ecke.
 
Danke für deine Bemühungen! Das werde ich mal fix versuchen im Planer zu visualisieren :-)
 
Bin zwar kein Freund von unterschiedlichen Arbeitshöhen, stimme in Eurem Fall Nice-nofret voll zu. Bei knapp 40 cm Unterschied in der Körpergröße ergibt das mehr als Sinn.
 
noch was, wo kannst du noch stehen, ohne das du dir den Kopf anhaust, also von Wand planrechts in Richtung Raum?
 
Zuletzt bearbeitet:
Du meist an der Schräge? Also mein Kopf liegt an der Schräge direkt an wenn ich zum Trempel einen Abstand von 83cm habe.

Leider will der Alnoplaner seit gestern nicht mehr! Sobald ich eine eine Unterabteilung wähle, z.B. Unterschränke, schmiert das Programm ab!

Neuinstallation brachte bis jetzt keine abhilfe! Ich bin dran! :-)
 
also was richtig Schlaues ist mir noch nicht eingefallen, nur das.

Die Zeile planlinks hat die hohe AP, und planoben niedriger für die Freundin. im Moment habe ich aber die Höhen noch nicht angepasst.

Der GSP ist 26cm erhöht, links von der Spüle ist ein MUPL . Leider ist die Spüle etwas nah am GSP, aber mit der Schräge und deiner Körpergröße sind die Optionen begrenzt.

Die Zeile planlinks ist 10cm vorgezogen, der US planoben 27.5cm.

Wollt ihr wirklich 3 Heissgeräte? ich würde den BO zB mit Mikrofunktion wählen.

Die AP als Tisch liegt auf einem 40er US auf.
Wolltet ihr grifflos?

Die grüne Fläche ist die geöffnete GSP Tür.

Donnie1.JPG


Donnie2.JPG Donnie3.JPG
 

Anhänge

  • Donnie_Evelin_PLAN1.KPL
    3,9 KB · Aufrufe: 206
  • Donnie_Evelin_PLAN1.POS
    7,2 KB · Aufrufe: 217
Ich habe auch einmal geplant. Die Idee ist, dass die Spülen- und Fensterseite (Schräge) in deiner optimalen Arbeitshöhe ausgeführt werden und die Halbinsel in der Arbeitshöhe deiner Freundin. Da das Spülbecken Tiefe hat, wäre es auch für deine Freundin evtl. nicht zu hoch.

Außerdem würde ich zusätzlich zum Durchbruch die Küchentür lassen, denn dann ist der Zugang wesentlich einfacher. Toll wäre es, wenn der Durchbruch zum Esszimmer als Schiebetür oder ganz offen ausgeführt werden könnte.

Die Spülenzeile habe ich 10 cm wegen der Verlegung des Wasseranschlusses vorgezogen.

Zur Planung, beginnend planoben links, Zeile um 10 cm vorgezogen. Entweder übertiefe US oder nur übertiefe Arbeitsplatte :
Wange
60er Auszug
40er MUPL
60er Spülenschrank
GSM
tote Ecke

planrechts, ab toter Ecke in Übertiefe 75 cm:
80 - 90 - 80er Auszug 1-1-2-2

planunten; Halbinsel, beginnend an Wand:
Blende
80er Auszug 1-1-2-2
90 Auszug 1-1-2-2 - Kochfeld i Verhätlnis 2/3 zu 1/3 aufgesetzt
Wange

gegengestellt:
60er Drehtürenschrank, tiefenreduziert auf 45cm
überstehende Arbeitsplatte für Sitzplätze - ich finde zwei genügen, da sich das Esszimmer direkt im Anschluss befindet.

Planlinks, unten beginnend:
Blende
Kühli - Position etwas ungünstig - aber einen Tod musst du sterben
BO mit Mikrowelle und DGC - zu hoch eingebaut, aber der Alno kann nicht anders

Für den Grundriss habe ich die Schräge entfernt.
 

Anhänge

  • donnie_Mela.KPL
    3,9 KB · Aufrufe: 211
  • donnie_Mela.POS
    7,1 KB · Aufrufe: 212
  • donnie_Mela_Draufsicht.JPG
    donnie_Mela_Draufsicht.JPG
    96,3 KB · Aufrufe: 206
  • donnie_Mela_Grundriss.JPG
    donnie_Mela_Grundriss.JPG
    39 KB · Aufrufe: 212
  • donnie_Mela_HS.JPG
    donnie_Mela_HS.JPG
    72,8 KB · Aufrufe: 216
  • donnie_Mela_Schräge.JPG
    donnie_Mela_Schräge.JPG
    77,7 KB · Aufrufe: 215
  • donnie_Mela_Spüle.JPG
    donnie_Mela_Spüle.JPG
    78,9 KB · Aufrufe: 208
Wow, vielen Dank das ihr euch soviel Mühe gebt!
Wir finden beide Entwürfe total klasse.


@Evelin Danke für deinen Entwurf.
gefällt uns beiden sehr gut! Zumal wir dann auch wirklich sehr viel Platz hätten.



@Mela danke für die investierte Zeit! Besonders das getrennte Kochfeld mit der Möglichkeit dort zu essen finde ich super.


Der Durchbruch soll durch eine Doppelglasschiebetür dicht gemacht werden:


2 super Vorschläge und beide ganz unterschiedlich. Der Küchenkauf entwickelt sich langsam aber sicher zur wahren Schwerstarbeit! :-)
Als Kontext entnehme ich aber, dass ihr beiden def. einen Durchbruch befürworten würdet?
 
Ich denke mit Tür wird zuviel unter die Schräge "geschoben". bei deiner Grösse schon etwas problematisch.

Bei beidën Versionen musst du wirklich checken, wo du stehen kannst und wo's unangenehm wird. Ich glaube, das ist der entscheidende Faktor.

Bei Mela's Planung ist der Abstand zwischen Insel und Wasserzeile zu gering, nur 80cm.
Eventuell auch die Fenster zeile nicht tief genug, um deinen Kopf zu schonen.
 
Unter der Schräge wird Donnie wohl nicht arbeiten. Sie ist aber perfekt für Vorräte und sonstigen Stauraum sehr gut geeignet.

Würde der Wasseranschluss unter Putz verlegt werden, so würde die Übertiefe wegfallen und es wären, wenn die Blende an der Wand schmaler wird 92,5 cm Abstand. Finde ich jetzt nich üppig aber ausreichend.
 

Ähnliche Beiträge

Neff Hausgeräte Ballerina Küchen Blum Bewegungstechnologie Weibel - Intelligente Küchenlüftung

Neff Spezial

Blum Zonenplaner

Weibel Abluft-Tuning

Weibel Abluft-Tuning
Zurück
Oben