Fertig mit Bildern Neue Küche, was sonst ...

Ein Stück weit geb ich dir schon Recht, nur finde ich, dass der Grundriss dafür nicht so recht passt. Aber wie gesagt, da hat so jeder seine verschiedenen Vorlieben und Ansichten. ;-)
 
@Landmadl Auch planoben rechts ist der Übergang zwischen Küche und Esstisch ja noch offen und für unsere Verhältnisse auch großzügig. Ich freue mich total darauf, dass man sich in der Küche nicht mehr gegenseitig auf die Füße tritt und dass die Kinder mithelfen können, ohne dass sie ständig "im Weg" stehen. Aber ich bin auch nicht den halben Tag in der Küche zugange. Natürlich hat die riesige Wohn-Ess-Küche mit Gartenzugang ihren Reiz und war auch mein erster Gedanke. Aber ich gebe Sigi absolut Recht, dass die Ecke in der bislang die Küche ist nun wirklich kein traumhaftes Wohnzimmer abgibt. Das "Schlafzimmer" planoben links wird unser Fernsehzimmer, mehr aber auch nicht. Wir benötigen also schon noch einen Wohnzimmerbereich - nur dass der eben vorerst Kleinkindgerecht ausgestattet sein soll und keiner großen Sofalandschaft bedarf. Wenn wir mit den Kindern spielen oder Bücher vorlesen ist es eben auch reizvoll viel Licht, eine schöne Aussicht, direkten Zugang zum Garten und im Winter einen Ofen zu haben. Dass wir nicht in 5 Jahren nochmal alles über den Haufen schmeissen ist klar. Aber wenn die Kinder in 10 bis 15 Jahren nicht mehr ganz so viel mit uns Eltern abhängen wollen und sich das Familienleben wirklich hauptsächlich beim Kochen und Essen abspielt, kann man durchaus nochmal die Raumaufteilung im Haus überdenken.

@Evelin Ja, die Maße stimmen. Durch die Außenrolläden haben wir sehr hohe Fensterausschnitte und nur einen sehr schmalen Sturz. Habe meinen Mann mal beauftragt, die genaue Lage der Abluft in Erfahrung zu bringen. Da noch Hängeschränkchen und Blenden davor montiert sind haben wir das noch nicht genau ausgemessen. Danke für die tolle Küchenplanung . Durch den Kamin, der bleibt auch wenn wir den Ofen raus nehmen, passt allerdings nur ein Element weniger an die Wand. Und mit der Stellfläche wird es wirklich knapp. Der Kaffeevollautomat sollte noch Platz finden. Ohne den ist mein Mann nicht lebensfähig ;-).

Bezüglich Sanitär hat sich mein Mann nochmal im Keller umgesehen. Ein Waschbecken an der Wand wäre kein Problem, mitten im Raum - sprich auf der Insel - geht nicht, da die Kellerdecke im darunterliegenden Hobbyraum dann zu weit runter kommt. Waschbecken auf der Insel möchten wir auch nicht haben. In dem Bereich steht ja doch immer mal was rum und das ist mir dann zu präsent.

@Snow Danke für deinen Vorschlag. Gefällt mir auch sehr gut. Die Halbinsel links zu machen würde die Möglichkeit offen lassen das verbleibende Fenster irgendwann zu vergrößern und einen Zugang zum Garten zu schaffen. Auch das habe ich bereits überlegt. Wenn ich die Halbinsel rechts plaziere verbaue ich mir das, habe aber einen besseren Blick in den Wohn-Ess-Spiel-Raum.
 
Ich habe noch ein bißchen gespielt um mehr Abstellfläche zu bekommen. So ganz glücklich bin ich nicht. Mit dem großen Vollautomaten und der großen Küchenmaschine sieht das ganze einfach nicht mehr schick aus. Und ob es so noch praktisch ist? Den Geschirrspüler würde ich an die kurze Seite unter die Küchenmaschine stellen, den Backofen links vom Kochfeld in der Insel, MUPL rechts davon, Töpfe unter dem Kochfeld. Vorräte und Toaster in die Hängeschränke. Backformen unter den Kühlschrank, Voratsdosen und Trinkflaschen zweite Schublade unter der Spüle, darüber Spüllappen. Essgeschirr auf die andere Inselseite. Hm, ich weiß nicht ...
 

Anhänge

  • Küche im WoZi.JPG
    Küche im WoZi.JPG
    21,8 KB · Aufrufe: 277
  • Küche im WoZi 2.JPG
    Küche im WoZi 2.JPG
    23,2 KB · Aufrufe: 283
  • Küche im WoZi 3.JPG
    Küche im WoZi 3.JPG
    40,2 KB · Aufrufe: 261
Wenn du schreibst
Wir benötigen also schon noch einen Wohnzimmerbereich
würde ich persönlich schon mal den großen Raum nicht als Koch/Essbereich verballern wollen.
Wenn ich die Halbinsel rechts plaziere verbaue ich mir das, habe aber einen besseren Blick in den Wohn-Ess-Spiel-Raum
Das wollte ich mit meinen Vorschlag auch berücksichtigen.
Waschbecken auf der Insel möchten wir auch nicht haben. In dem Bereich steht ja doch immer mal was rum und das ist mir dann zu präsent.
Dann eben einfach tauschen, Kochfeld auf die Insel, Spüle an die Wand.
 
@Evelin Den Grundriss habe ich heute Nacht leider nicht mehr geschafft. Ich hoffe ihr kommt mit meiner Skizze zurecht.
 

Anhänge

  • 20190625_181415.jpg
    20190625_181415.jpg
    135,5 KB · Aufrufe: 218
danke für den Plan, völlig ausreichend. Ist zwar nicht wichtig, aber die Einangstür ist sicherlich breiter (inkl Türrahmen, das ist relevant nicht dsas Türblatt).

Schade, dass das Fenster planunten so niedrig ist, vielleicht kann man da was ändern.

Meine Tochter hat im Prinzip dieselbe Raumanordnung, nur dass der große Raum etwas breiter ist, das Spielzimmer hat ca die gleiche Größe. Sie haben dort eine Couch stehen, TV am Kaminschacht (ca 100cm breit) rechts und links davon Stauraum/Regale. Die Räume sind alle Richtung Terrasse. Im Wohnzimmer, dass zur Straße hin ist, ist nur jemand abends, wenn die kids im Bett sind.

Angenommen, man könnte das Fenster planunten ändern, Heizkörper neben die Terrassentür, dann würde ich es so machen.

krume31.JPGkrume32.JPGkrume33.JPG

die Insel ist 160x100cm groß, 90cm Tief würde auch reichen. Auf der Inselrückseite wäre Stauraum für das selten Genutzte wie Weihnachtsdeko.

Rechts von der Spüle ist ein 40er MUPL , links der GSP.

Ich habe im Prinzip dasselbe layout und finde es praktisch. Die nackte Insel nutzte ich für alles Mögliche, EInkäufe ablegen, Frühstück machen, Wäsche falten usw. Die Zeilenabstände 120 und 110cm.

Die Wege sind kurz, man kann vom Tisch direkt den GSP befüllen, man steht sich kaum im Weg. Besteck und Tagesgeschirr in der Insel, dito Gläser (kommt auf die Rasterung an).

Bei Bedarf wird der Tisch erweitert und gedreht.

In meinem Plan ist die AP Höhe nicht angepasst und meine Pläne erstelle ich im 2.5 Raster des Planers. Also wenn eine Wand real 93cm lang ist, ist sie in meinen Plänen 92.5cm lang. Das reicht völlig aus und man kann die Pläne schneller erstellen.
 

Anhänge

  • krume-evelin-PLAN3.KPL
    3,9 KB · Aufrufe: 177
  • krume-evelin-PLAN3.POS
    17,4 KB · Aufrufe: 164
@Evelin Wow, danke! Das sieht jetzt riesig aus. Allerdings sind mir Tisch und Insel so zu dicht gedrängt. Sowohl optisch als auch von der Nutzung her. In der Esszimmer zugewandten Seite der Insel würde ich gerne das Essgeschirr unterbringen. Selten genutze Dinge kommen in den Keller - endlich werden wir einen haben und dann auch noch größer als unsere jetzige Wohnung :2daumenhoch:
Aber den Tisch könnte ich ja auch gut drehen. Dann ist er auch schneller ausgezogen, wenn Besuch kommt.
Meine Planung basiert immer auf den IKEA -Möglichkeiten, daher die 100 cm tiefe Insel. Beim Schreiner / Küchenstudio würde ich auch auf 90 cm gehen und mit übertiefen Unterschränken liebäugeln.

Wäsche soll nach derzeitiger Planung gleich in der Waschküche im Keller zusammen gelegt werden. Aber so wie ich mich kenne, wird das im wahren Leben bei uns auch auf der Kücheninsel stattfinden :-)

Mein Kleiner hat netterweise heute mal ein langes Schläfchen gemacht, sodass ich jetzt endlich mein Kücheninventar mal aufgelistet habe und ordentlich planen kann, was wo untergebracht werden soll. Mehr Schränke als nötig sollen es ja auch nicht werden. Sonst sammelt sich wieder so viel unnötiges.

Und hoffentlich kann ich mich endlich entscheiden, was in welchen Raum soll. Beide Varianten haben Vor- und Nachteile.
 
@Evelin Funktioniert das mit der Dunstabzugshaube so nah am Hochschrank bei dir? Wir haben in der Mietwohnung einen ähnlichen Abstand zu einer Wand und eine Umlufthaube. Der Platz zum Kochen genügt mir vollkommen, aber wenn ich den Dunstabzug anschalte habe ich Lärm, wilde Luftverwirbelungen und so gut wie keinen Effekt. Wir schalten das Ding quasi nie an - Und verzichten auf's Fleisch braten. Steak gibts fast nur im Sommer vom Grill.
 
Mir kann es ja egal sein, aber nochmal, ich würde es mir gut überlegen, den Raum als Koch/Essbereich zu verbraten.
 
Wegen DAH und Budget würde ich vielleicht anfänglich mehr in die Hand nehmen für eine gute DAH und fürs erste evtl. auf die Insel verzichten. Die kann man mit Ikea locker auch 1 Jahr später dazukaufen. Wenn die DAH gut ist, macht der Schrank daneben nichts aus.
Ich mag Evelins Idee sehr, das wäre meine Vorstellung für eine junge Familie.
 
Warum soll die DAH da nicht funktionieren? Bei mir ist zwischen Kochfeld und HS nur 24cm Platz, was auch völlig reicht. Die DAH ist 90cm breit, 80er würde auch reichen. Mit Randabsaugung und wie Isabella schon sagt, ist hier der Preis ein guter Indikator für Qualität.
 
Zuletzt bearbeitet:
Bei der Dunstabzugshaube finde ich leider keine Modellbezeichnung. Da ist sie von Miele ist g, gehe ich einfach davon aus, dass sie nicht ganz schlecht ist. Leider habe ich noch keine induktionsgeeignete Pfanne, sonst könnte ich heute einfach mal ein Steak braten.

Gestern bin ich noch mal durchs Haus gegangen und habe verschiedene Varianten auf dem Boden gemalt. Die schönste Lösung für Küche, Esszimmer und Wohnzimmer ergäbe sich im Dachgeschoss. Aber dieses Thema schneiden wir lieber nicht an, die schönsten Zimmer sind die Kindern vorbehalten
Wir sind uns aber darüber einig geworden, dass die Küche dort bleibt wo sie ist. Je nach Gestaltung können wir dort einen Zugang zum Garten zum realisieren. Man käme dann direkt in den Kräuter- und Gemüsegarten. Die schönere Gartenseite möchten wir dem Wohnbereich vorbehalten. Auch den Ofen möchten wir erstmal erst einmal testen. Wenn er oft genutzt wird könnte ich mir dort langfristig einen schönen großen Kaminofen vorstellen.
 
Dann wäre, denke ich, die beste Option, das Fenster zum Carport zu schliesen. Wenn am WE Zeit ist, zeichne ich mal 2 Optionen die mir vorschweben.
 
Dann ist es gut, ausführlich darüber nachgedacht zu haben, damit die Entscheidung für die Küche an die ursprüngliche Stelle bewusst getroffen ist.
Da hatte Evelin auch Vorschläge gemacht, gibt es da was, das Euch zusagt, und womit man weitermachen könnte?
 
Ups, die sind leider untergegangen, weil ich nicht am PC war :-[. Mit dem aktuellen Planer kann ich sie nicht öffnen, die alte Version bekomm ich nicht installiert, aber ich kämpfe mal fröhlich weiter.
 
möbliere dann den Wohnbereich mal so, wie es werden soll, mit echten Maßen (zB im Planer). Als Couch nimmst du einfach eine AP oder Deckplatte. Und die Kinder bekommen dann eine Spielecke irgendwo oder wie?
 
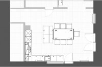
Hier mal ein Vorschlag:
Wand Planoben von links nach rechts:
Totes Eck; 30iger US MUPL ; 60iger US Spülenschrank; 60iger HS mit Spülmaschine; 60iger HS mit Backofen und darüber hinter Lifttür Mikowelle; 60iger Kühlschrank.

Linke Wand:
100er US mit Kochfeld

Halbinsel Aussen:
60iger US in totes Eck geschoben; 60iger US tiefengekürzt (46cm); 80iger US tiefengekürzt (46cm)
Kümmerle Küche2 Bild 1.PNG

Insel Innen:
60iger US, 80iger US
Kümmerle Küche2 Bild 2.PNG

Maße Halbinsel 237 x 110 cm mit vorgezogener Platte als Sitzbereich

ohne Sitzmöglichkeit ca 200 x 110 cm
Kümmerle Küche2 Bild ohne vorgezogene Platte.PNG

Reine Arbeitsfläche ermöglichen Backorgien, bei denen die Kinder schön mitwirken können, viel Platz zum schnibbeln und die Insel kann bei Bedarf mal als Buffet genutzt werden.
Kümmerle Küche2 Bild 1.PNG

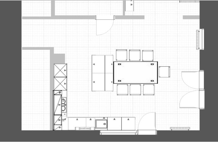
Mal möbliert (nur Beispiel) um sich die Räume vorstellen zu können:
Möbliert.PNG

Die Küche kann später bei Bedarf geschlossen werden ein Zugang zum Kräutergarten wäre ohne große Umbauaktionen möglich.
Im Wohnraum ist Platz zum spielen und Mutter hat die Kinder im Blick.
 
Zuletzt bearbeitet:
@Snow, die Spüle hat aber echt die Strafecke zugeteilt bekommen und man ist so ziemlich eingepfercht in dem U... keine Arbeitsfläche zwischen Spüle und Herd, Spüle direkt am Hochschrank ... 30 mq für den Esstisch und dann in der kleinen Ecke werkeln müssen wäre echt schade.
 
@Krümele, ich hab alles nochmal durchgelesen, unter den Prämissen würde ich mit der ersten Planung von Dir weitermachen und die Spüle auf der Halbinsel mit dem Gesicht zum Raum platzieren.
 

Ähnliche Beiträge

Neff Hausgeräte Ballerina Küchen Blum Bewegungstechnologie Weibel - Intelligente Küchenlüftung

Neff Spezial

Blum Zonenplaner

Weibel Abluft-Tuning

Weibel Abluft-Tuning
Zurück
Oben