Unbeendet neue Küche in U-Form

BigBoi

Mitglied
Beiträge
3
Hallo zusammen,

hab schon viel hier gelesen und einige Ratschläge auch gleich für unsere Küchenplanung umgesetzt. Dabei ist folgender Entwurf rausgekommen. Jetzt wollte ich mal bei euch Experten fragen, inwieweit wir hier noch optimieren können bzgl. optimaler Nutzung von Stauraum und auch möglichst preisgünstige Planung (z.B. lieber ein breites anstatt zwei schmale Elemente).

Unser Hauptproblem ist aber, dass wir gerne noch den Geschirrspüler integrieren würden, aber wir keine Ahnung haben, wo wir ihn jetzt optimal unterkriegen. Habt ihr eine Idee?

Vielen, lieben Dank schon mal für alle Anregungen.

Viele Grüße,
Sascha


Checkliste zur Küchenplanung von BigBoi

Anzahl Personen im Haushalt : 3
Davon Kinder? : 1
Körpergrössen aller Hauptbenutzer (wegen Arbeitshöhe ) in cm : 165
Art des Gebäudes? : Neu-/Umbau, Planänderungen möglich
Brüstungshöhe des Fensters (in cm) : 95
Fensterhöhe (in cm) : 110
Raumhöhe in cm: : 250
Heizung : Fussbodenheizung
Sanitäranschlüsse : vollkommen variabel
Ausführung Kühlgerät? : Stand-Alone bis 60 cm Breite
Kühlgerät Größe : bis 175 cm Höhe
Ausführung Tiefkühl (TK)-Gerät : Im Kühlschrank ab 3 Schubladen unten
Dunstabzugshaube? : Abluft
Hochgebauter Backofen ? : Ja
Hochgebauter Geschirrspüler ? : wenn möglich
Kochfeldart? : Induktion
Kochfeldbreite ca. (in cm)? : 60
Spülenform: : 1,5 Becken mit Abtropffläche
Weitere geplante Heißgeräte : Standmikrowelle
Küchenstil? : modern
Sitzmöglichkeit in der Küche / im Küchenbereich als : Keine
Sitzmöglichkeit: Für wieviel Personen? : nein
Sitzmöglichkeit: Tisch - wenn gesonderter Tisch oder offene Küche : Keine
Gewünschte o. vorhandene Tischgröße : kein Esstisch in Küche
Wofür soll der Sitzplatz in der Küche genutzt werden? Wie häufig? : gar nicht
Welche Arbeitshöhe ist angedacht (in cm)? : 85
Was steht auf der Arbeitsplatte oder soll dort stehen? : Wasserkocher, Messerblock, Toaster
Welche weiteren Küchenmaschinen müssen in der Küche untergebracht werden? :
Was soll in der Küche außer den Standards untergebracht werden? : Geschirr komplett (nichts in Ess-/Wohnzimmer)
Welchen Stauraum gibt es sonst noch? : Keller
Was/wie wird gekocht? (Alltagsküche, Menüs, Snacks usw) : zweimal am Tag warm, asiatisch
Wie häufig wird gekocht? : (fast) täglich 2x warm
Wird alleine gekocht? Oder auch gemeinsam? Mit und für Gäste? : Höchstens zu zweit
Was stört an der bisherigen Küche und was soll die neue Küche unbedingt können? Warum? : Die aktuelle Küche ist eine Studentenküche ;-)
Steht schon ein Küchenhersteller fest oder wird bevorzugt? : nein
Steht schon ein Gerätehersteller fest oder wird bevorzugt? : nein
Preisvorstellung (Budget) : bis 10.000,-
 

Anhänge

  • PLAN1.POS
    3,7 KB · Aufrufe: 157
  • PLAN1.KPL
    4,1 KB · Aufrufe: 151
  • Küche1.jpg
    Küche1.jpg
    22,7 KB · Aufrufe: 200
  • Küche3.JPG
    Küche3.JPG
    47,6 KB · Aufrufe: 173
  • Küche2.JPG
    Küche2.JPG
    35,6 KB · Aufrufe: 171
  • Küche4.jpg
    Küche4.jpg
    15,9 KB · Aufrufe: 180
Zuletzt bearbeitet:
AW: neue Küche in U-Form

:welcome:

Schöne Vorstellung ;-) - perfekt wäre sie, wenn Du noch einen vermassten Küchengrundriss, einen Wohnungsgrundriss und den Alno -Grundriss einhängen würdest.

Vorher können wir Deinen Fragen leider nicht beantworten
 
AW: neue Küche in U-Form

Hallo Vanessa,

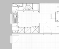
danke für das herzliche Willkommen. Ich habe die Bilder ergänzt. Meinst du, das reicht in der Form? Es handelt sich um einen Neubau, wobei der Bau gerade beginnt. Somit ist noch relativ viel variabel. Wir haben zum Beispiel die Küchenwand zum Esszimmer um 50cm versetzen lassen im Vergleich zum Plan. Die Skizze zeigt nun die neue Größe.

Viele Grüße,
Sascha
 
AW: neue Küche in U-Form

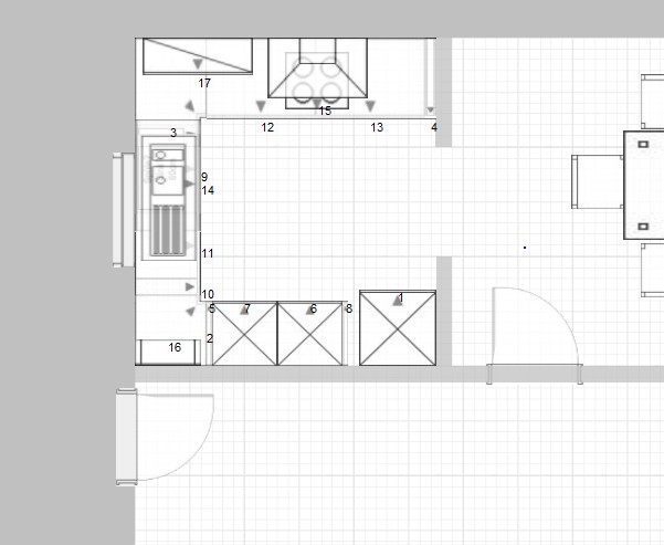
Prima Sacha :-). Wir bitten immer darum, die Grundrisse alle in der gleichen Ausrichtung einzustellen, bei der Gelegenheit habe ich den Grundriss mal erweitert, bitte passe den Ess/Wohnraum in den Massen und der Gestaltung noch an, sowie die Grösse eures Esstischses. So kannst Du Dich durch die Räume bewegen und bekommst ein besseres Gefühl für die Platzverhältnisse

Warum soll es ein Standalone werden? Ein Einbaukühli wäre einfacher zu integrieren und gäbe mehr Stauraum.

Wie kommt ihr auf eure Arbeitshöhe ? Ich arbeite bei gleicher Grösse z.B: auf 93cm. Habt ihr das mal getestet? Ab einer Arbeitshöhe von 90cm könntet ihr auch 6-Rastrig bauen, das gibt mehr Stauraum - ich habe deshalb so geplant.
==> 6rasterig:
full

Typische Korpushöhen für 5-rasterig: 65cm, 70 cm, 72 cm, 75cm.
Typische Korpushöhen für 6-rasterig: 78cm, 79,8cm, 86,4cm
In Korpushöhen - Rastermaße - Auszugs-Innenmaße - Stauraumplanung sind diverse Hersteller mit ihren Standardkorpushöhen verlinkt.
Wenn man dann z. B. einen 78cm hohen Korpus wählt, ergeben sich folgende Maße
- 78 cm Korpushöhe
- 4 cm APL-Höhe
- 12 cm Sockelhöhe
-----------------
= 94 cm Gesamthöhe=Arbeitshöhe
ARBEITSHÖHE ermitteln​


  • [*=1]z. B. Bügelbrett nehmen und in verschiedenen Höhen Probeschnippeln und messen, wenn es einem am bequemsten erscheint.
    [*=1]Höhe Beckenknochen sollte nicht überschritten werden.

Sobald man anfängt die Schultern hochzuziehen, ist es zuhoch; Wenn man sich vornüberbeugt, zu niedrig


Ich habe jetzt mal mit den Standalone geschoben und euch einen hochgebauten GSP 'spendiert' Die Seitenschränke habe ich auf die gleiche Höhe wie den Kühli gewählt; ihr solltet mal eine Stauraumplanung machen, man kann den Kühli auch umbauen und alle Schränke maximalhöhe einbauen - das gibt zusätzlichen Platz.

bigboi10.JPGbigboi14.jpg

Neben dem Kühli kommen BO & Microwelle, dann der hochgebaute GSP mit noch etwas Stauraum - in der Nische finden Kaffemaschine & Kochbüche ihren Platz


bigboi12.jpg

nach der toten Ecke ein $
15cm (oder 30cm) für Handtücher (&Brettchen / Bleche / Tabletts)
60cm (od. 45cm) für Müll unter der APL und drunter Flaschen
80cm Spülenunterschrank, Becken ganz links eingebaut

bigboi11.jpg so ist der Platz unter meiner Spüle genutzt...


Die Hersseite besteht aus 2x 100cm Unterschränken, das Kochfeld mittig über den Schränken eingebaut und die Schränke in übertiefe (75cm) das ist mehr als 1/3 mehr Stauraum wie in normalen U-Schränken. Ein 100cm breiter Hänger noch neben der DAH gibt nochmal etwas Stauraum
bigboi13.jpg
 

Anhänge

  • kf_bigboi_nn_v1.KPL
    4,1 KB · Aufrufe: 155
  • kf_bigboi_nn_v1.POS
    9,2 KB · Aufrufe: 161
AW: neue Küche in U-Form

Hi Vanessa,

das sieht ja gleich viel professioneller aus. Vielen Dank für die Tipps. Wir haben das mit dem Bügelbrett mal probiert und sowas um die 93cm passt bei meiner Liebsten auch noch zum gemütlichen Schnibbeln. :2daumenhoch:

Dachte nur ich hätte irgendwo gelesen, dass es so um die 15cm tiefer als Unterkante Ellenbogen sein sollte. Haben wir auch aktuell, aber wir haben mal verglichen und aktuell steht sie tatsächlich etwas gebeugt.

Ach ja, der Kühlschrank ist einfach schon vorhanden. Da wir keinen Platz für Einbau hatten, haben wir einen freistehenden gekauft und mit dem sind wir auch sehr zufrieden. Somit kommt er mit uns ins neue Heim.

Die Aufteilung finde ich schon ganz gut. Allerdings wäre die Frage, ob das Regal links noch erreichbar ist in der Ecke. Rechts die Seite finden wir super, weil sie sehr aufgeräumt und luftig wirkt. Dafür ist jetzt links ganz schön klobig. Hat sowas zufällig schon jemand in Realität? Im Planer wirkt's ja doch noch ein kleines Stück anders als in Realität. Haben irgendwie Angst, dass es etwas erdrückend wirkt.

Ist der Einbau vom Herd in der Mitte über zwei Unterschränken unproblematisch? Das gibt ja gleich ganz neue Freiheiten bei der Planung. :dance:

Ich glaube, beim Unterschrank unter der Spüle machen wir es doch klassisch und bauen dort den Mülleimer ein.

Dann begeben wir uns jetzt mal an die Stauraumplanung . Bisher sind wir mit einer Miniküche ausgekommen. Bei so viel Platz hat man gleich so viele Optionen, wo man alles hinräumen kann. :2daumenhoch:

LG,
Sascha
 
AW: neue Küche in U-Form

Keine Sorge - diese Konfiguration erschlägt überhaupt nicht - selbst wenn man die Schränke bis zur Decke plant - euer Küchenraum ist hierzu breit genug.

Ja, auch an die Regale in der Ecke kommt man Problemlos - bei mir ist das Regal 80cm tief -weilich eine übertiefe APL habe - aber ich komme trotzdem an alles. Wann bestückt das Regal ja auch nicht mit den am häufigsten benötigten Dingen ;-) - zumindest nicht die im obersten Regal ganz hinten.

Blätter mal durch die 'fertiggestellten Küchen' dort findest Du sowohl Beispiele für Kochfeld über zwei U-Schränken als auch für umbaute Kühlis und übertiefe Arbeitsflächen & Stauraum.
 

Ähnliche Beiträge

Neff Hausgeräte Ballerina Küchen Blum Bewegungstechnologie Weibel - Intelligente Küchenlüftung

Neff Spezial

Blum Zonenplaner

Weibel Abluft-Tuning

Weibel Abluft-Tuning
Zurück
Oben