Kayleigh
Mitglied
- Beiträge
- 101
- Wohnort
- im Schwabenländle (LKR Tuttlingen)
Hallo,
ich bin neu hier (seit ein paar Tagen erstmal nur stille Mitleserin) und sehr froh, das Forum hier gefunden zu haben
Wir (also ich
) sind dabei, eine neue Küche zu planen und in Auftrag zu geben, allerdings muß erst in hoffentlich 3-4 Wochen die neue Küche rausgerissen werden.
Trotzdem macht Frau sich ja so ihre Gedanken, wie das dann werden soll
- jetzt war ich in einem Küchenstudio hier auf dem Land, und war zumindest von der Verkäuferin schon mal positiv überrascht, sie hat sich wirklich sehr viel Zeit genommen, nur um mal meine ungefähren Vorstellungen aufzunehmen und mir so einiges in der Ausstellung zu zeigen. Jetzt werde ich diese Woche die ersten Pläne vorgelegt bekommen und bin schon sehr gespannt, zumal ich mich mit jedem Blick und jedem "Vorbeischleichen" an einer Zeyko (Palazzo) Küche mehr in sie verliebt habe...
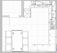
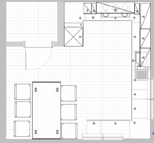
Anbei die Checkliste und ich hoffe, ich bekomme meine eigene Planung mit dem Nolte -Planer hier irgendwie hochgeladen...
wenn mir jemand grobe (oder auch feine) Planungsfehler aufzeigt und vielleicht ein paar Vorschläge macht, auf die ich nicht gekommen bin, freue ich mich.
Checkliste zur Küchenplanung
Anzahl Personen im Haushalt: 4
Körpergrösse des Hauptbenutzers (wegen Arbeitshöhe ) in cm: 1,70
Hochgebauter Geschirrspüler ?: Nein
Hochgebauter Backofen ?: evtl.
Art des Gebäudes: Altbau Eigentum
Sanitäranschlüsse: vorgegeben, aber zur Not noch änderbar
Dunstabzugshaube: Flachpaneel
Sitzmöglichkeit in der Küche erforderlich?: für 6 Personen
Gefriermöglichkeit?: nein
Ausführung Kühlgerät: integriert
Küchen Stil: modern, Landhaus (ab wann ist etwas "Landhaus"?)
Kochfeldbreite ca. (in cm): 90
Spülenform: 1 VB Passione 6725
Raumhöhe in cm: 237
Brüstungshöhe des Fensters (in cm): 92cm
Fensterhöhe (in cm): dito
Preisvorstellung (Budget): EUR 20.000
ich bin neu hier (seit ein paar Tagen erstmal nur stille Mitleserin) und sehr froh, das Forum hier gefunden zu haben
Wir (also ich
Trotzdem macht Frau sich ja so ihre Gedanken, wie das dann werden soll
Anbei die Checkliste und ich hoffe, ich bekomme meine eigene Planung mit dem Nolte -Planer hier irgendwie hochgeladen...
wenn mir jemand grobe (oder auch feine) Planungsfehler aufzeigt und vielleicht ein paar Vorschläge macht, auf die ich nicht gekommen bin, freue ich mich.
Checkliste zur Küchenplanung
Anzahl Personen im Haushalt: 4
Körpergrösse des Hauptbenutzers (wegen Arbeitshöhe ) in cm: 1,70
Hochgebauter Geschirrspüler ?: Nein
Hochgebauter Backofen ?: evtl.
Art des Gebäudes: Altbau Eigentum
Sanitäranschlüsse: vorgegeben, aber zur Not noch änderbar
Dunstabzugshaube: Flachpaneel
Sitzmöglichkeit in der Küche erforderlich?: für 6 Personen
Gefriermöglichkeit?: nein
Ausführung Kühlgerät: integriert
Küchen Stil: modern, Landhaus (ab wann ist etwas "Landhaus"?)
Kochfeldbreite ca. (in cm): 90
Spülenform: 1 VB Passione 6725
Raumhöhe in cm: 237
Brüstungshöhe des Fensters (in cm): 92cm
Fensterhöhe (in cm): dito
Preisvorstellung (Budget): EUR 20.000
Zuletzt bearbeitet:
