Fertig mit Bildern Neue Küche für neue Wohnung

StefanB.

Mitglied
Beiträge
52
Hallo zusammen!

Meine Freundin und ich ziehen demnächst um, und wir brauchen eine neue Küche.

Hier die Details zur neuen Wohnung/Küche:
Wohnzimmer und Küche sind quasi ein Raum (offene Küche), durch eine Wand über die halbe Breite geteilt.
An dieser "Teilerwand" werden Tisch und Stühle stehen.
Der Bereich für eine Küche ist ca. 4,3 x 3,0m, wir haben eine L-Form geplant.

Alle Wände sind Rigips, (noch) keine Ahnung ob Holz- oder Metallständer.
Die bisher eingebaute Küche ist mit Oberschränken ausgestattet, die an einer Stahlschiene aufgehängt sind.

Kleines Hindernis: Die alte ranzige und kaputte Küche ist noch (teilweise) eingebaut, so dass ich nicht alle Aufmaße nehmen konnte, aber hoffentlich ist sie bald komplett weg.
Wo die Herdanschlussdose (HAD) sitzt weiß ich noch nicht, aber da ist die Position ja nicht unbedingt wichtig.
Allerdings weiß ich nicht, ob überhaupt eine HAD vorhanden ist.
Denn in der schon teilweise abgebauten Küche sieht man zwei nur halb eingebaute Steckdosen, an die jeweils von hinten ein Kabel gepfuscht wurde, das jeweils Richtung Einbauherd geht, also "russische Installation".
An eine dieser Steckdosen wurde sogar noch der Geschirrspüler gesteckt.
Einen kombinierten 3x16A Automaten gibt es im Sicherungskasten auch nicht, alles einzelne 16A-Automaten.

Allerdings sitzt der Sicherungskasten in der "Rumpelkammer" neben der Küche (an die Wand planunten anschließend).
Da müsste eine eventuelle Nachrüstung von HAD und extra abgesichertem GS-Anschluss relativ einfach möglich sein.

Diese Rumpelkammer ist nur der mit einer Tür abgeschlossene Raum unterhalb der Treppe ins OG, mehr als ein paar Getränkekisten, Staubsauger, Wischmopp und Co. wird also nicht reinpassen.
Die Vorräte müssen also alle in der Küche unterkommen.

Der Wasseranschluss beginnt bei 65cm von der Ecke entfernt an der langen Wand (planrechts) und nimmt eine Breite von ca. 21cm ein (inklusive Wandanschlussmanschetten).

An den zwei für die Küche vorgesehenen Wänden ist ein Fliesenspiegel mit großformatigen Fliesen 45x90cm.
Der Fliesenspiegel beginnt bei ca. 77cm Höhe und endet bei ca. 169cm.
An der langen Wand (planrechts) ist er 299cm breit, an der kurzen Wand (planunten) 182cm breit.
Er steht ca. 1,2 bis 1,8cm von der Wand vor.

Die Möbel werden von IKEA sein, Front "Ringhult" Hochglanz cremefarben.
Arbeitsplatte HPL (Getalit o.ä.) vom Baumarkt oder Schreiner mit gefräster Verbindung.
Aufbau mach ich selbst, ich hab noch ne Woche Resturlaub der weg muss... ;D

Elektrogeräte haben wir folgende ausgesucht:
Kühl-/Gefrierschrank: Bosch 185x60cm freistehend, genaues Modell weiß ich jetzt nicht, aber A+++ und keine 3 Jahre alt, schon vorhanden und wird weitergenutzt
Backofen : Neff BCS 5524 N mit Slide&Hide, Pyrolyse und ComfortFlex-Auszug (Herstellerlink)
Kochfeld: Neff TT 5355 N mit FlexInduction Zonen(Herstellerlink)
Geschirrspüler : Neff S72N65X4EU, muß XXL mit VarioScharnier sein wegen 8cm Sockel (Herstellerlink)
Mikrowelle : Neff HWE 1260 N (Herstellerlink)

Spüle: Franke Neptun NEX 251 Edelstahl (Herstellerlink).
Armatur: Villeroy & Boch Primara Edelstahl (Herstellerlink).

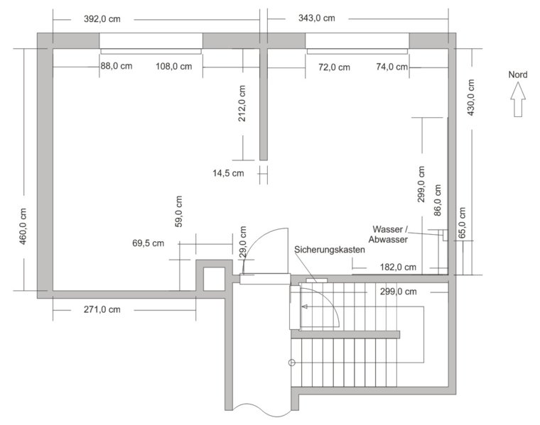
Ich zeichne noch einen genaueren Grundriss und stelle ihn dann hier ein.
Edit: Hier der (soweit bekannt) bemaßte Grundriss:

Planung Draufsicht:
Es fehlt die Trennwand Wohn-/Küchenbereich, die ist bei der 3D-Ansicht im Weg...
1): Hochschrank 60cm für Vorräte
2): Unterschrank 80cm für Vorräte
3): Unterschrank 20cm für Spülmittel, Putzzeug etc., soll gleichzeitig als Wärmebarriere zwischen dem Vorrats-Unterschrank und dem Geschirrspüler dienen
4): Geschirrspüler
5): Spülenschrank 60cm mit Müllauszug
6): Tote Ecke
7): Unterschrank 40cm
8): Unterschrank 80cm für 60er Kochfeld
9): Unterschrank 40cm
10): Hochschrank 60cm für Backofen und Mikrowelle
11): Oberschrank 40cm
12) - 14): Oberschrank 60cm
15): Eckoberschrank
16) & 17): Oberschrank 40cm

Der Kaffevollautomat würde links auf Unterschrank 2 stehen.

Ob ein Oberschrank über der Spüle so sinnvoll ist, darüber bin ich mir noch recht unsicher.
Er könnte das Spülen und die Sicht vielleicht zu sehr beeinträchtigen...

3D-Ansicht:

Anregungen und Kritik zur Geräteauswahl sind natürlich ebenfalls willkommen.
Und sorry für den Monster-Beitrag...

MfG Stefan

Checkliste zur Küchenplanung

Anzahl Personen im Haushalt: 4
Davon Kinder?: 2
Art des Gebäudes?: Bestandsbau, Umbauten ausgeschlossen
Körpergrössen aller Hauptbenutzer (wegen Arbeitshöhe ) in cm: 170cm und 168cm
Brüstungshöhe des Fensters (in cm):
Fensterhöhe (in cm):
Raumhöhe in cm:
245
Heizung: Heizkörper wie im Grundriss
Sanitäranschlüsse: fix
Ausführung Kühlgerät: Stand-Alone bis 60 cm Breite
Kühlgerät Größe: bis 178 cm Höhe
Ausführung Tiefkühl (TK)-Gerät: Im Kühlschrank ab 3 Schubladen unten
Dunstabzugshaube: Umluft
Backofen etc. hochgebaut?: Ja
Hochgebauter Geschirrspüler ?: Nein
Kochfeldart: Induktion
Kochfeldbreite ca. (in cm)?: 60
Spülenform: 1,5 Becken mit Abtropffläche
Geplante Heißgeräte: Einbaumikrowelle, Backofen
Küchenstil: Modern
Sitzmöglichkeit in der Küche / im Küchenbereich: Gesonderter Tisch
Sitzmöglichkeit: Für wieviel Personen?: für 6 Personen
Sitzmöglichkeit: Tisch - wenn gesonderter Tisch oder offene Küche: Vorhandener Tisch
Gewünschte o. vorhandene Tischgröße:
Wofür soll der Sitzplatz in der Küche genutzt werden? Wie häufig?:
Welche Arbeitshöhe ist angedacht (in cm)?:
92cm
Was steht auf der Arbeitsplatte oder soll dort stehen?: Kaffeevollautomat, Wasserkocher, Toaster
Welche weiteren Küchenmaschinen müssen in der Küche untergebracht werden?: Handrührgerät, Mixer, Pürierstab, Eierkocher
Was soll in der Küche außer den Standards untergebracht werden?: ALLE Vorräte, Geschirr komplett (nichts in Ess-/Wohnzimmer)
Welchen Stauraum gibt es sonst noch?:
Was/wie wird gekocht? (Alltagsküche, Menüs, Snacks usw):
Alltagsküche, Kuchen/Torten
Wie häufig wird gekocht?(fast) täglich 1x warm[/COLOR]
Wird alleine gekocht? Oder auch gemeinsam? Mit und für Gäste?: allein oder zu zweit
Was stört an der bisherigen Küche und was soll die neue Küche unbedingt können? Warum?: alt: zu wenig Schubladen mit zu wenig Platz, viele Schranktüren
neu: Schubladen in Unterschränken, Backofen hochgebaut

Welche Mülltrennung soll in der Küche vorgehalten werden?: Altpapier, Bio/Restmüll ungetrennt, Gelber Sack Müll
Steht schon ein Küchenhersteller fest oder wird bevorzugt?: IKEA
Steht schon ein Gerätehersteller fest oder wird bevorzugt?: Neff
Preisvorstellung (Budget): bis 7.500,-

Ergebnisse ab Fertig mit Bildern - Neue Küche für neue Wohnung
 
Zuletzt bearbeitet von einem Moderator:
Hallöle, und erst ein Mal ganz herzlich :welcome: hier.
Tolle Thread-eröffnung, soweit ich sehe alles drin:top:.

Derzeit ist mal wieder viel los im Planungsboard , deshalb nicht ungeduldig werden, wenn sich die PlanerInnen nicht gleich auf deine Küche stürzen.

Bis dahin viel Spass hier und viel nützlichen Input wünscht

Samy
 
Hallo und Danke!

Ja ich habe versucht so viele Infos wie möglich zu geben, habe aber irgendwie die Befürchtung dass es vielleicht zu viel war...
Aber ich habe noch mehr Infos, für alle die viel Zeit zum Lesen haben :read:

Ich hoffe, es liest sich trotzdem jemand durch, und gibt uns Tipps zum Optimieren! :-)

Ich habe mich bei meiner Planung an die Küche in unserer jetzigen Wohnung angelehnt, die teilweise ähnlich ist.

Ich habe auch mal eine ungefähren Grundriss im ALNO -Planer angelegt, und die Küche mit angepassten Schränken angelegt (nach den Maßen der IKEA -Teile), siehe Anhang.

Unsere momentane Küche (vom Vormieter übernommen) in der alten Wohnung sieht wie folgt aus (mal schnell im ALNO-Planer zusammengeklopft):
Alte Küche.jpg

Die Küchenfronten sind übrigens knallblau, mit so einer fein genoppten Oberfläche wie bei Arbeitsplatten . Die Fliesenfugen sind ebenfalls blau eingefärbt.

Von links nach rechts:
  • Kühl-/Gefrierschrank
  • Unterschrank 60 mit Schublade und Tür:
    in der Schublade Geschirrtücher
    in der Tür Tupperschüsseln und -Siebe, Bräter
    auf der Arbeitsplatte steht der Kaffeevollautomat
  • Teilintegrierter Geschirrspüler 60cm
  • Spülenschrank 50cm 1,5 Becken mit Abtropffläche:
    Spülmittel, Geschirrspüler -Tabs, Putzmittel und Restmüll
  • Eckunterschrank mit einschwenkbaren Türen und Rondell:
    Töpfe, Pfannen
    auf der Arbeitsplatte stehen Toaster und Wasserkocher sowie Schneidbretter
  • Unterschrank 40cm mit Schublade und zwei Auszügen:
    in der Schublade sämtliche Messer, Kochlöffel, Pfannenwender, Schöpfkelle, Schneebesen, Sparschäler etc. bis zum Platzen voll
    mittlerer Auszug Backzutaten, Instantbrühe etc.
    unterer Auszug Tupper
  • Unterschrank 60cm mit Einbauherd und Kochfeld
  • Unterschrank 40cm mit Schublade und zwei Auszügen:
    in der Schublade sämtliches Besteck, Tortenheber, Korkenzieher, Dosenöffner etc.
    mittlerer Auszug mehrere Messbecher, Tupper
    unterer Auszug Handrührgerät, Rührschüssel, Tupper
  • Eckoberschrank:
    Gläser, Tassen
  • Oberschrank 60cm:
    Ess- und Kaffeegeschirr
  • Oberschrank 60cm mit Einbau-Dunstabzug:
    Gewürze
  • Oberschrank 40cm:
    Kochbücher, Medikamente
Es ist also recht wenig Platz.
Zum Glück haben wir noch eine kleine Speisekammer, in der ungefähr ein Hochschrank voll Vorräte gelagert wird, sowie Getränke, Backformen, Tortenhauben.
Dann noch Gelber Sack, Papier und leere PET-Getränkeflaschen, sowie Eierkocher, Sandwichtoaster, Waffeleisen, Crêpepfanne und Raclette.
Und (wer errät es?) ein Schränkchen voll Tupper.

Dieser zusätzliche Platz in der Speisekammer entfällt in der neuen Wohnung, es muss alles bis auf die Getränke und die leeren Flaschen in der Küche verstaut werden.

Mit der Arbeitsflächeneinteilung der jetzigen Küche sind wir eigentlich grundsätzlich zufrieden:
  • Fleisch, Gemüse, Salat etc. wird entweder zwischen Kaffevollautomat und Abtropffläche oder auf der Abtropffläche geschnitten und vorbereitet.
    Ist ja quasi direkt neben dem Kühlschrank.

    Aber der Platz ist ein bisschen eng durch die Kaffeemaschine, weswegen dann meistens auf den Abtropf ausgewichen wird, der dann natürlich nicht mehr als Abstellfläche für heiße Töpfe und Pfannen zur Verfügung steht.
    Hier sollte in der neuen Küche auf jeden Fall mehr Platz sein.

  • Zutaten die in Topf oder Pfanne zubereitet werden, werden nach dem Vorbereiten ebenfalls links neben dem Herd bereitgestellt.

  • Kuchenteig wird links neben dem Herd angerührt und dann in die Form gefüllt, die mitsamt Backrost auf dem Kochfeld steht.

  • Zum Nudeln abgießen finde ich den kurzen Weg übers Eck zur Spüle sehr praktisch, genauso zum Füllen der Töpfe oder Ablöschen.
 

Anhänge

  • Kueche.KPL
    3,9 KB · Aufrufe: 220
  • Kueche.POS
    6,8 KB · Aufrufe: 197
Stefan, alle Achtung, du bist sehr akkurat.

Trotzdem verstehe ich was nicht. Im vermaßten Raumplan ist der Raum 343cm breit. Im nächsten Plan wird der 408.3cm breit und im ALNO 409cm.

Habe ich was überlesen (sehr viel Text)?

wie weit steht der Heizkörper vor?
 
Zuletzt bearbeitet:
Danke für das Lob!
Ich versuche so viele Infos wie möglich gleich am Anfang zu geben, und mir nicht alles einzeln aus der Nase ziehen zu lassen.

Die richtige Breite ist 343cm, tut mir leid für die Verwirrung!

Für den Ikea -Planer habe ich die Trennwand entfernen müssen, weil die nicht automatisch ausgeblendet wird und somit die 3D-Ansicht teilweise verdeckt.

Im Alno -Planer hab ich die Trennwand dann auch der Einfachheit halber weggelassen.

Schließlich kann/soll die Küche ja nur an den Wänden planrechts und planunten stehen.

Die horizontale Position von Fenster und Tür ist aber immer korrekt eingezeichnet, von kleinen Abweichungen im mm-Bereich abgesehen.
Also die planuntere Wand hat 299cm bis zur Türzarge, und die planrechte Wand 430cm. Das Fenster planoben beginnt bei 74cm von der planrechten Wand aus.

Planlinksoben, also bei Trennwand und Fenster, soll ja der Tisch (Buche massiv geölt) mit Bank und 3 Stühlen hin.
Also scheidet ein U aus, und es muss eine L-Form werden.

MfG Stefan
 
ok, und der Fliesenspiegel ist Fakt?

Denn, das Kochfeld ganz planunten ist eine dustere Ecke.

Es fehlt ein MUPL in deiner Planung. Bei IKEA wäre das ein 40er US mit einem 4er Raster oben. Das erleichtert die Arbeit ungemein, kein Bücken wegen dem Müll. Der MUPL sollte an der stelle sein, wo die meiste "Späne" fällt.

Wäre es meine Küche, wäre mir der Flieselspiegel ziemlich egal, wenn er nicht gerade mittig hinter dem Kochfeld endet.

Meine Reihenfolge wäre von planoben

20er Regal
60 GSP
40er MUPL (hier wegen dem Fliesenspiegel, ansonsten nach der Spüle)
60er US mit Spüle
60er US
60er US mit Kochfeld
60er US
tote Ecke

danach von planlinks
40er US
2 x HS
Kühli, hier damit man gleich von überall aus rankommt.

Ich verstehe, warum du Kühli und HS oben neben dem Fenster platzierst hast, aber die Aktion unten in der Ecke wäre nicht mein Wunsch. aber ich verstehe es. Zumindest plane einen MUPL ein.

Auch wie rum soll der Kühli in deinem Vorschlag öffnen? Egal wie, praktisch ist es nicht ganz, denn entweder nimmst du dir das Licht weg oder er öffnet falsch rum.
 
Beim Kühlschrank ist momentan Türanschlag links, könnte aber geändert werden.

Wegen dem Licht: Das Fenster geht nach Norden und ist knappe 2m breit.
Und meine Freundin steht irgendwie sowieso nicht so auf Licht.
Oft wenn die Sonne schön scheint, macht sie die Rollos runter, und in der Nacht räumt sie den Geschirrspüler nur mit eingeschalteter Arbeitsplattenbeleuchtung aus, ohne Hauptlicht.
Liegt vielleicht daran, dass sie Dauernachtschicht arbeitet...

Der Fliesenspiegel ist leider Fakt.
Vielleicht kann ich noch irgendwo passende Fliesen zur Erweiterung auftreiben, aber runtermachen ist nicht.
Reicht schon, wenn die elektrischen Anschlüsse vielleicht erweitert werden müssen...

Und 40er MUPL gibts bei IKEA nicht serienmäßig, nur 60 oder 80, bei 40 müsste ich basteln.
Deshalb meine Überlegung, den unteren Auszug des 60er Spülenschranks für Müll zu verwenden, im mittleren können dann Geschirrtücher rein.
Oder eben den Spülenschrank 80 breit mit 3 großen Eimern unten, und dafür den 20er Unterschrank wegfallen lassen.

Und ich hab noch was wichtiges vergessen fällt mir grade auf: Die Steckdosen der Arbeitsfläche haben gefehlt!
Hier noch mal die leere Ansicht:
Grundriss 3D.jpg


Meinst du deinen Vorschlag so:
Evelin01.jpg

Hier würde der Fliesenspiegel an der planrechten Wand genau hinter der Spüle enden.
Außerdem müsste ich Wasser und Abwasser für die Spüle jeweils ca. 2m verlängern.
Dafür müssten die Schränke planrechts vorgerückt werden, und dann passt es an der planunteren Wand nicht mehr mit der Tür...
Die Steckdosen wären genau hinter Spüle und Kochfeld, und zwei weitere hinter dem Hochschrank für den Ofen und Mikrowelle verdeckt.

Und hier mit meinem Entwurf zum Vergleich (ohne Oberschränke):
Meins Nahaufnahme.jpg

Hier hört der Fliesenspiegel nach dem Kochfeld auf, auch nicht gerade schön...
Zwei Steckdosen wären direkt hinter dem Kochfeld, aber der Rest einigermaßen gut verteilt.

Oh Mann, alles nicht so einfach...

LG Stefan
 
Ich würde die Mittlere Planung aus Post #7 Vorschlagen - wie wäre es, dwenn Du Kochfeld und Spüle tauschst? dann kann die Spüle am vorgesehenen Platz bleiben. Die Funktionszeile würde ich mit übertiefer Arbeitsplatte ausstatten - das ist sehr viel angenehmer zum Arbeiten.

Mit dem Fliesenspiele muss man irgendwie Stückeln / überdecken - aber da findet sich schon eine attraktive Lösung.

Der Vorteil von der langen Arbeitszeile und das unverstellte Fenster sind IMHO das suchen nach kreativen Lösungen für das Fliesenproblem auf jeden Fall wert.
 
Kochfeld und Spüle tauschen wäre eine Idee, sieht dann so aus:
Nice-nofret01.jpg

Ist schon besser von der Position der Steckdosen her.
Allerdings ist der Geschirrspüler schon arg weit vom Spülbecken weg.

Was mir bei dieser Positionierung allerdings nicht so gefällt, wären die Laufwege.
Wenn einer z.B. Salat schnippelt (zwischen Kochfeld und Spüle), und der andere muss Nudeln abgießen, dann muss der heiße volle Topf durch die ganze Küche an der zweiten Person vorbei zur Spüle getragen werden.

Den 60er US vom Kochfeld würde ich gern durch einen 80er tauschen, dann bekommt man zwei Pfannenstapel oder Pfannen und Bräter nebeneinander in der Schublade unter.
Dann müsste noch ein 60er US durch einen 40er ersetzt werden, damit es wieder passt.
Oder ich fasse den 40er US und den 40er MUPL zu einem 80er MUPL zusammen.
 
ich hatte noch diesen Plan gemacht.

Nachteil ist, dass der GSP etwas ungünstig zur Spüle positioniert ist, aber dafür bleibt das Wasser wo's ist. Grün ist die GSP Tür.

StefanB1.JPG


StefanB2.JPG StefanB3.JPG
 

Anhänge

  • StefanB_Evelin_PLAN1.KPL
    3,9 KB · Aufrufe: 202
  • StefanB_Evelin_PLAN1.POS
    10,4 KB · Aufrufe: 180
Hallo,

ich bringe auch mal eine Idee ein.

Meine Überlegung war, das Kochfeld planlinks zu verschieben, direkt neben den Fliesenspiegel. Statt Fliesen könnte man dort dann eine Glasrückwand anbringen.

So hier meine Planung:

von planlinks nach planrechts
- Blende
- 15er offenes Regal
- 40er US (1-1-2-2)
- 60er US mit Kochfeld und DAH (1-1-2-2)
- 60er GSP
- 45er MUPL (3-3)
- 60er Spüle (3-3)
- 80er US (1-2-3)
- totes Eck mit Aufsatzschrank
- 60er HS für Vorräte
- 60er HS mit Mikro und Backofen
- anschließend Kühlschrank
 

Anhänge

  • Grundriss Stefan.JPG
    Grundriss Stefan.JPG
    27,5 KB · Aufrufe: 224
  • Küchenplanun Stefan 2.JPG
    Küchenplanun Stefan 2.JPG
    120,4 KB · Aufrufe: 312
  • Küchenplanun Stefan.JPG
    Küchenplanun Stefan.JPG
    141,8 KB · Aufrufe: 321
  • Küchenplanung Stefan.KPL
    3,9 KB · Aufrufe: 181
  • Küchenplanung Stefan.POS
    10,6 KB · Aufrufe: 186
Als Hersteller ist Ikea gewünscht, da kommen einige Schrankmaße nicht hin ;-), die Idee im Herdbereich eine große Glasplatte o.ä. an zu bringen finde ich allerdings gut und so eine Funktionszeile ist nicht so *schlimm*, wie man denkt, der mit den heißen Töpfen und langen Messern hat grundsätzlich Vorfahrt:cool:.
Haben wir auch und praktizieren wir auch so, auch wenn ich meistens allein koche, so bereitet mein Mann dann doch mal zwischendrin den Kaffee oder das Hundefutter zu, in der Eckküche, die wir vorher hatten, war das Gewühle schlimmer, gerade weil zwischen Spüle und Herd nur so wenig Platz war, wie in deiner Ausgansplanung.
 
Oh, das hab ich leider nicht gewusst, dass bei Ikea nicht alle Schrankmaße gehen. *schäm*
Ich finde so eine Funktionszeile auch nicht schlimm. Im Gegenteil - gerade in dieser Küche ist es sehr geschickt: von Kühlschrank zur Spüle, dann daneben schnibbeln und dann weiter zum Herd. So eine richtige "Kochstraße" ;-)

LG
Andrea
 
Ja, genau so habe ich es auch, nur gespiegelt, bietet sich hier einfach an.

Und Andrea, man muss nicht alles wissen;-), irgendwer findet sich hier schon, der es weiß.
 
Ich finde das "Gemeinschaftswissen" hier im Forum immer wieder unglaublich! Irgendjemand weiß immer weiter. Absolut toll!

Aktuell hab ich so eine "Kochstraße" auch in meiner Küche (in meiner neuen dann leider nicht mehr). Ich finde das auch sehr praktisch.

LG
Andrea
 
Danke für die vielen Anregungen!
So langsam kommt Leben in die Sache, gefällt mir! :2daumenhoch:

Von IKEA gibt es nur noch 20, 40, 60 und 80 Breite, 30 und 50 sind mWn mit der Umstellung von FAKTUM auf METOD weggefallen.

Ich hab mir mal alle Vorschläge durchgelesen, und eine Art Kombination daraus erstellt (von links nach rechts):
  • 20er, entweder Blindblende oder offenes Regal
  • 40er
  • 80er für 60er Kochfeld, Dunstabzug kann bis 90 breit werden
  • 60er
  • 40er MUPL
  • 60er Geschirrspüler
  • 60er Spülenschrank
  • Tote Ecke
  • 40er, hier könnte der Kaffeevollautomat stehen
  • 60er Hochschrank Mikrowelle und Backofen
  • 60er Vorratsschrank
  • Kühlschrank
Die Spüle ist ca 1m breit, wenn der MUPL neben dem Spülenschrank wäre, wäre er unterhalb des Abtropfs.
So ist er jetzt frei von der Arbeitsplatte zugänglich.
Und man kann dreckiges Geschirr direkt von der Spüle aus in den Geschirrspüler räumen, ohne auf den Boden zu tropfen.

In die linke Ecke könnte evtl. noch ein offenes Regal für Kochbücher Platz finden.

Was haltet ihr davon?

Meins 02 Perspektive.jpg

Meins 02 Ansicht 1.jpg

Meins 02 Ansicht 2.jpg
 
Könntest du Spüle und GSP tauschen und die Abtropfe dann über der GSP? Oder sind da Anschlüsse im Weg?
Schmutziges Geschirr spült man nicht vor, abkratzen reicht, sonst verbraucht man ja wieder so viel Wasser.
 
Tauschen funktioniert leider nicht, da der Wasseranschluss im Weg ist.
Für den rechten Wasseranschluss (Kaltwasser) muss sowieso eine Aussparung in den Korpus, weil die Anschlüsse 65cm von der Ecke weg beginnen.

Vorspülen tun wir auch nicht, außer vielleicht den fettigen Bräter mal kurz grob von festgebrannten Zwiebeln und so reinigen, wenn es mal Schweinebraten gibt, und so was in der Art.

Aber dreckiges Geschirr fliegt während dem Kochen/Backen meistens erst in die Spüle wenns schnell gehen muss, und wird erst später in den Geschirrspüler geräumt.
 
So, habe heute endlich meiner Freundin den Plan zeigen können, der durch eure Hilfe hier entstanden ist.

Sie ist ganz begeistert so wie es jetzt geworden ist!
Nach anfänglicher Verwunderung über den MUPL, weil sie von sowas noch nie was gehört oder gesehen hat.

Habt ihr noch irgendwelche Kritikpunkte oder Verbesserungen?

Morgen werden erst mal die Elektrogeräte bestellt.
Bei einem lokalen Händler, der mit den ungefähren Internetpreisen super mithalten kann.

LG Stefan
 

Ähnliche Beiträge

Neff Hausgeräte Ballerina Küchen Blum Bewegungstechnologie Weibel - Intelligente Küchenlüftung

Neff Spezial

Blum Zonenplaner

Weibel Abluft-Tuning

Weibel Abluft-Tuning
Zurück
Oben