Meinungen zu Elektrogeräten und Umluft-DAH

denz

Mitglied
Beiträge
13
Hallo zusammen,

wir planen unseren Neubau, der dieses jahr starten soll und haben hierzu auch schon Küchenstudios besucht.
Als Ergebnis kam folgende Planung heraus. Uns erscheint sie logischerweise als gelungen und passend. Solltet ihr anderer Meinung sein, möchte ich die natürlich gerne hören.
Hauptsächlich geht es aber um die Elektrogeräte.
Die wichtigste Frage vorne weg: Umluft oder Abluft? Ich habe gelesen, dass die Umlufthauben von heute nicht mehr mit älteren Modellen vergleichbar sind und ebenso gut sind wie die Ablufthauben. Aus meinem Bekannten-/Verwandtenkreis, die alle nur Ablufthauben haben wird mir dringend zu einer Ablufthaube geraten. Wie ist eure Erfahrung?

Unser Kühlschrank ist 2 Jahre alt, der kommt mit.
Der Backofen ist auch erst 2 Jahre alt, den können wir auch mitnehmen oder den Siemens HB274ABS0für 500€ Aufpreis dazunehmen.

(Wir wollen eine 80cm breite Induktionsplatte statt der momentanen 60cm. Die 60cm Platte geht an die Oma, der Ofen evtl. auch. Da wissen wir noch nicht ob wir den mitnehmen oder den auch der Oma geben.)

Angeboten wurde:
Induktionsplatte Siemens EX875LVC1E
Geschirrspüler Siemens SX636X03ME
Dunstabzugshaube Siemens LC87JHM60

Was sagen die Erfahrungen zu den Geräten? Und vorallem taugt die Abzugshaube? Oder sollten wir generell lieber eine Ablufthaube nehmen?

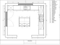
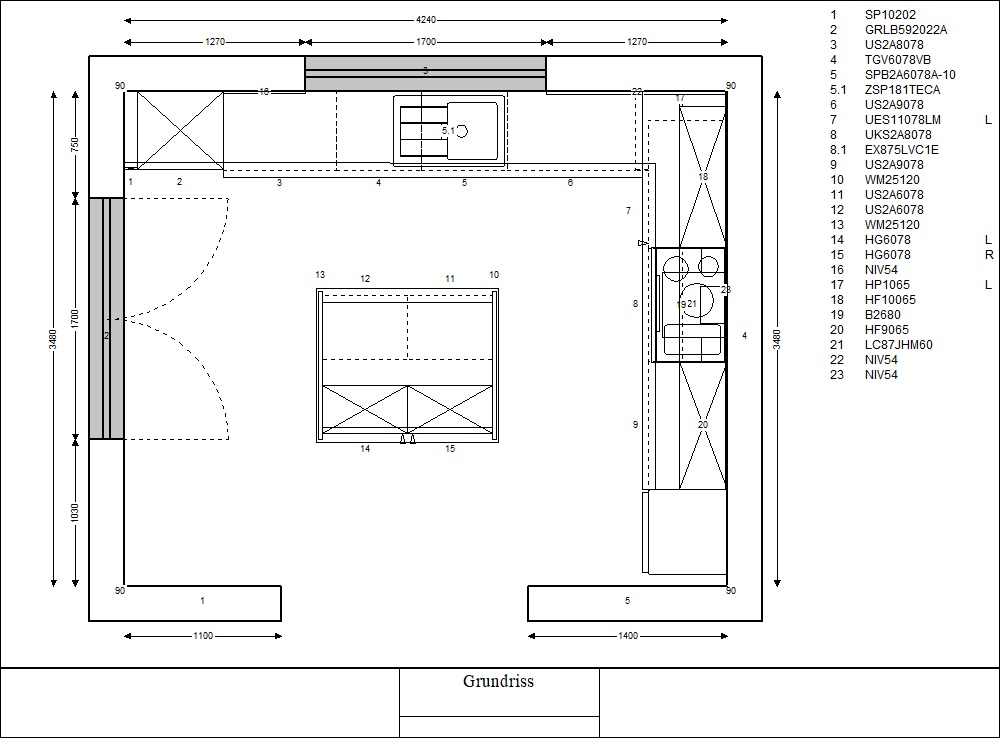
PS: Beim Grundriss ist ein kleiner Fehler (Kühlschrank und Hochschrank sind getauscht). Das Bild ist richtig.

Küche Grundriss.jpg Küche.jpg 3. Entwurf EG.png
 
Das Problem ist ja immer, neue Gerätegenerationen, da liegen noch nicht soviele Erfahrungen vor. Erfahrungen zu älteren Gerätegenerationen passen nicht.

Grundsätzlich fehlt auch ein wenig Aussage zu eurem Kochverhalten, um z. B. zu sagen, Kochfeldwahl ok oder nicht.

DAH .. ich bin Fan von Abluft und würde definitiv keine DAH wählen, die schon von vornherein nur für Umluft gedacht ist. Persönlich mag ich diese Schräghauben in der Form auch nicht. Habe da schon (allerdings bereits einige Jahre her) kondensierende Wrasen gesehen, die dann als Tropfen an der Haube heruntergelaufen sind.

Zur Küchenplanung ... was wollt ihr mit der Insel erreichen?
 
Hallo Kerstin,

danke für deine Rückmeldung.

Hm ok.
Kochverhalten? Was genau ist damit gemeint? Wir kochen bisher einmal am Tag alleine oder zu zweit.

Fan von Abluft. Gibt es da objektive Gründe oder ist das eher subjektiv?
Naja die Schräghaube hat in meinen Augen 2 Vorteile: Einmal die offensichtliche Kopffreiheit und zum Anderen wird die Luft schräg nach oben geleitet und dann abgesaugt, was weniger Energie für den Lüfter bedeutet.
Kondensatbildung wäre natürlich doof.
Wie sieht es denn mit den Filtern aus? Muss man die alle 2 Monate neu kaufen oder kann man die einfach waschen oder so?

Die Insel: Bei der Grundrissplanung hat sich die Küche so in der Form und den Maßen ergeben. Da wir keinen großen Tanzsaal in der Küche brauchen wollen wir den Platz halt mit der Arbeitsinsel nutzen. Zudem kann man dann wenn man an der Arbeitsinsel Essen vorbereitet (bei offener Schiebetür) mit dem Partner (oder den Kindern) im Wohn-/Essbereich kommunizieren.

Gruß denz
 
Für Abluft oder Umluft gibts objektive Gründe. Der Dunstabzug dient in erster Linie der Fettfilterung, welches ansonsten auf den Möbeln landet. Es ist einfacher, die Fettfilter im Gsp zu reinigen als das Fett von den Schränken zu wischen.
Erst in zweiter Linie geht es um die Beseitigung von Gerüchen. Diese erfolgt bei Abluft durch die Ableitung der Wrasen nach außen. Bei Umluft kann diese auf verschiedene Arten erfolgen, die gängiste ist per Aktivkohlefilter .

Wichtig bei Abluft und Umluft: Haube vor dem Kochen einschalten und die Haube nachlaufen lassen.

Eine Kondensatbildung kann man mit der Wahl der richtigen Haube vermeiden, einige haben unten noch eine zweite Absaugfläche.
 
Beispiele Kochverhalten:
  • große Töpfe, Bedarf für eine Bräterzone?
  • sehr kleine Töpfe, Espressokanne: Bedarf für eine kleine Zone?
  • viel im Backofen ? Kochfeld muss nicht riesig sein
  • viel Kurzgebratenes, viele Pfannen gleichzeitig? Großes Kochfeld
  • Wok?
  • komplexe Gerichte, Soßen, viel Bain-Marie? Großes Kochfeld, präzise Steuerung
  • Frisch Kochen vs. Convenience aufwärmen
  • oft große Menüs für vielen Gäste...
Jenachdem, wie Ihr kocht, sind die Anforderungen an das Kochfeld unterschiedlich.
 
Ok. :-\

Ich versuch's mal:
Meist kochen wir mit einer großen Pfanne, einem mittelgroßen Topf und einem kleinen Topf. Dann passt auch alles auf das 60 cm Induktionsfeld. Manchmal haben wir aber auch statt einem mittelgroßen Topf einen großen. Dann kommen sich der große Topf und die große Pfanne schon ins Gehäge. Ähnlich wenn statt großer Pfanne ein Bräter im Einsatz ist. Espressokanne haben wir nicht. Es reicht in der regel ein kleines Kochfeld. Ich kann mich nicht erinnern das wir jemals mehr als 2 kleine gebraucht haben. Ja wir machen auch viel im Ofen (Auflauf usw.) Große Menüs machen wir bisher weniger. Aber kann ja noch kommen ;-)

Also ich denke die 80cm sind schon gut dimensioniert. :-[

EDIT: Achso und bzgl. der Filter. Also den fettfilter kann man im GSP reinigen - also wiederverwenden. Wie sieht es mit dem Aktivkohlefilter aus? Der kann nicht gereinigt werden oder? Wie lange hält so einer bei 6x kochen pro Woche? Sind die teuer?
 
Ja, die Fettfilter kommen in den Gsp und sind jahrelang wieder zu verwenden. Bei den Aktivkohlefiltern kommt es drauf an, da gibt reaktivierbare, die kosten aber meist mehr als die normalen - das muss man je Modell gegenrechnen.
Ein normaler Aktivkohlefilter hält ca. 6-12 Monate, Hochleistungsfilter länger, reaktivierbare werden dann einfach "wiederaufbereitet".
 
Miss den Bodendurchmesser (unten außen) der größten Pfanne aus (wahrscheinlich 26 cm) und such ein Kochfeld, der eine passende Zone hat. Wäre sonst ärgerlich.
 
Ich selbst besitze die Geräte nicht, jedoch habe ich ein paar der Geräte bereits mehrmals verkauft.

Siemens SX636X03ME : Da kannst du wohl nichts mit falsch machen. Ich verkaufe meistens diesen Geschirrspüler oder den SX636X01. Bisher habe ich nur positives gehört und Reklamationen bzgl. dieses GSP habe ich noch keine erhalten. Auch soll dieser sehr gut spülen, zumindest kamen bisher nur positive Reaktionen meiner Kunden.

Siemens EX875LVC1E : Super Kochfeld. Wird bei uns wohl am meisten verkauft, dadurch das rechts die Flex Zone vorhanden ist und man trotzdem links 3 Kochzonen hat. Dort gilt dasselbe wie beim GSP. Bisher habe ich noch nichts negatives über das Kochfeld gehört und es traten bisher noch keine Reklamationen bei dem Kochfeld auf, von welchen ich mitbekommen habe. Auch hier gab es bisher nur positive Reaktionen.

Die anderen beiden Geräte habe ich zwar bereits verkauft, jedoch nicht oft genug damit ich dir versichern kann, dass diese sehr gut sind.
Die obrigen Geräte kannst du beide ohne Probleme wählen und du wirst damit wohl nichts falsch machen, jedoch kommt es wie meine Vorgänger bereits erwähnt haben, auch auf deine Kochgewohnheiten drauf an ob du ein solches Kochfeld benötigt.

Liebe Grüße :-)
 
Ok danke für deine Antwort.

Gibt es noch andere Meinungen?

Bzgl. der Abzugshaube soll eine Berbel Umlufthaube sehr gut sein habe ich jetzt hier gelesen.
Die Smartline gibt es als ST U für gut 1500€ also etwa 3x so teuer wie die mir angebotene Siemens Umlufthaube. Ist sie es wert?
Ich weiß schwierige Frage. Aber irgendwie muss ich ja für mich abwägen ob es Sinn macht hier noch 1000€ mehr zu investieren oder nicht.

Im Gegensatz zur Siemens hat die Berbel Haube keinen Filter sondern eine Auffangwanne für das Fett. Also spare ich mir den Kauf des Filters ?jährlich?. Wie oft muss man den wechseln(, wenn man nichts außergewöhnliches kocht)?

Habe ich bei der Siemens mehr Gerüche die ins angrenzende Wohnzimmer ziehen?

Also wo liegt der 1000€ Unterschied? Wäre schön wenn mir das jemand erklären könnte.

Danke.
 
Im Gegensatz zur Siemens hat die Berbel Haube keinen Filter sondern eine Auffangwanne für das Fett. Also spare ich mir den Kauf des Filters ?jährlich?. Wie oft muss man den wechseln(, wenn man nichts außergewöhnliches kocht)?

[...]

Also wo liegt der 1000€ Unterschied? Wäre schön wenn mir das jemand erklären könnte.

1. Falsch. Die Umluft-Berbel hat, zusätzlich zur Fettwanne, was immer dabei ist, eine Aktivkohleschüttung die natürlich irgendwann ausgetauscht werden muss. Von Berbel gibt es ansonsten wahlweise für den Umluftbetrieb den Permalyt-Filter (Link anklicken).

2. Berbel ist ein DAH-Spezialist, das Zentrifugalsystem ist einmalig, die DAH sind sehr hochwertig verarbeitet. BSH ist ein generalist, es sind einfach andere Produkte mit anderen Ansprüchen. Schau Dir die Tauschintervalle und Preise der Clean-Air-Module an und rechne hoch auf, sagen wir mal, 10 Jahre Normalbetrieb. Ist ein wenig wie mit Drucker und Tintenpatronen, in meinen Augen.
 
Ok. Nun habe ich eine Angabe gefunden. Lt. Berbel sollte die Aktivkohle nach 350 Stunden ausgetauscht werden. Das sind etwa 2-3 Jahre. Kostenpunkt 50-60€.
Diesen Permalyt-Filter kann man statt der Aktivkohle verwenden oder zusätzlich? Generell bin ich erstmal skeptisch demgegenüber. Also wenn es heißt entweder , oder, würde ich die Aktivkohle wählen, weil bei diesem Permalyt-Filter regelmäßig eine Regenerationsphase eintritt, wo das Ding 2h lang elektrisch auf 140°C heizt - Thema Stromkosten.
Wie oft diese Regenerationsphase nötig ist, habe ich nicht gefunden.
 
Man kann auch die Wahl haben etwas zusätzlich zu nehmen oder nicht. ;-)
 
Naja, ich bin keine Muttersprachlerin, das wirst Du besser wissen, was „wahlweise“ bedeutet. Hättest Du dennoch den Link angeklickt, den ich gepostet hatte, hättest Du gesehen, dass beides zusammen wenig Sinn ergibt. Die Auflistung war ohne Wertung meinerseits, ich habe Abluft und daher mich nicht tiefer mit der Thematik beschäftigt.
 

Ähnliche Beiträge

Neff Hausgeräte Ballerina Küchen Blum Bewegungstechnologie Weibel - Intelligente Küchenlüftung

Neff Spezial

Blum Zonenplaner

Weibel Abluft-Tuning

Weibel Abluft-Tuning
Zurück
Oben