Fertiggestellte Küche Margret's Küche

ich habe den boden für ganze wohnung schon bestellt: click vinyl diele auburn oak..
hab gedacht harmoniert gut mit weiss und grau und wrd auf mich beruhigend wirken..
eine sofa in die küche wo man die beine hoch liegen kann hätte ich auch sehr gerne..
heizkörper befinden sich unter fenstern..die brüstunhöhe denke ist auch 91( ich messe morgen noch mal)
ich habe erst seit nicht ganz drei wochen die wohnungsschlüssell. von anfang an habe ich ein problem mit die gastherme in die küche...die war schon in kinderzimmer und jetzt kommt sie ins wohnzimmer.
werde gerne mein eckcouch mit in die neue wohnung integriert..der ist aber 2x3 m (zimlich groß für kinderzimmer)...

wie groß der esstisch: denke 6-8 personen
ich bin ausnahmefall: eine entscheidung zu treffen ist ein große problem für mich..man brauch viel geduld mit mir.
bin froh das ich nicht alleine bin
danke euch
 
Mela, die u form finde ich auch nicht schlecht..ob ich heute nacht schlafen kann :rolleyes:
 
Kann man beim vorhandenen Sofa Teile abbauen? Evtl. mal ein Foto davon machen. Wobei 2x3 m ..(Schlafsofa?) würden in dem alten Kinderzimmer schon passen. Paßt dann halt sonst nicht mehr viel, ist aber auch nicht notwendig.
 
eine aternative: aus schlafzimmer wohnzimmer, in kinderzimmer nur bett, kleiderschrank ins wirtschaftraum- alte küche :-)
 
mache morgen ein paar bilder.. man kann die teile abbauen,ob einzeln stellen kann ?
 
Das würde ich nicht machen.

Die ehemalige Küche sehe ich eher als Hauswirtschaftsraum mit Waschmaschine/Trockner und Wäscheplatz, Platz für Staubsauger, Wischer und Konsorten. Dann noch zusätzlichen Stauraum für Schuhe, Winterjacken, Bettwäsche, Handtücher, Koffer, Taschen usw.

Daher muss das Schlafzimmer neben Bett auch Platz Schrank/Kommodenplatz für Tagesgarderobe/Unterwäsche etc. bieten. Und das hat im ehemaligen Kinderzimmer nicht sinnvoll Platz.

Im ehemaligen Kinderzimmer ist aber sinnvoll ein TV-Zimmer unterzubringen.

Und im ehemaligen Wohnzimmer ist sinnvoll der Allraum für Besuch, Kochen, Essen, Spielen, Terrasse, Aktivität unterzubringen.

Und jetzt gleich mal das "Wohnzimmer" mit 3x2 m Sofa. Viel mehr muss doch gar nicht in den Raum. Und der Allraum mit einem 100x180 cm großem Tisch ( in dem Raum würde ich übrigens auch einen TV stellen, nicht so groß wie im Wohn-TV-Zimmer, aber immerhin). Schlafzimmer mit 300 cm Schrank und 200 cm Kommode. Sowie 140x200 cm großem Bett.
MelaMargret_201609VS2.jpg
 
hallo, also das ist mein sofa und meine jetzige küche, mein jetzige tisch..mein bett ist 180x200,
IMG_20160921_101605.jpg
IMG_20160921_101624.jpg
IMG_20160921_105513.jpg
 
Zuletzt bearbeitet von einem Moderator:
und das bin ich:-)

Mod: auf Wunsch der TE gelöscht
 
Zuletzt bearbeitet von einem Moderator:
ich habe nicht mehr viel zeit ...der installateur will wissen wo die wasseranschlüsse kommen,
der wohnizmmer als allraum ist einfach die beste lösung..selber wäre ich auf die idee nicht gekommen.das wohnzimmer, das auch als gästezimmer genutzt werde kann ist optimal in meine situation, weil wenn meine tochter die auf rollstuhl angewissen ist zum besuch kommt, hat ein raum wo sie sich zurück ziehen kann.:2daumenhoch: kerstin
 
Das können nach so langer Zeit nur die Moderatoren und Admins. Welches Bild möchtest du denn gelöscht haben, in welchem Beitrag?
 
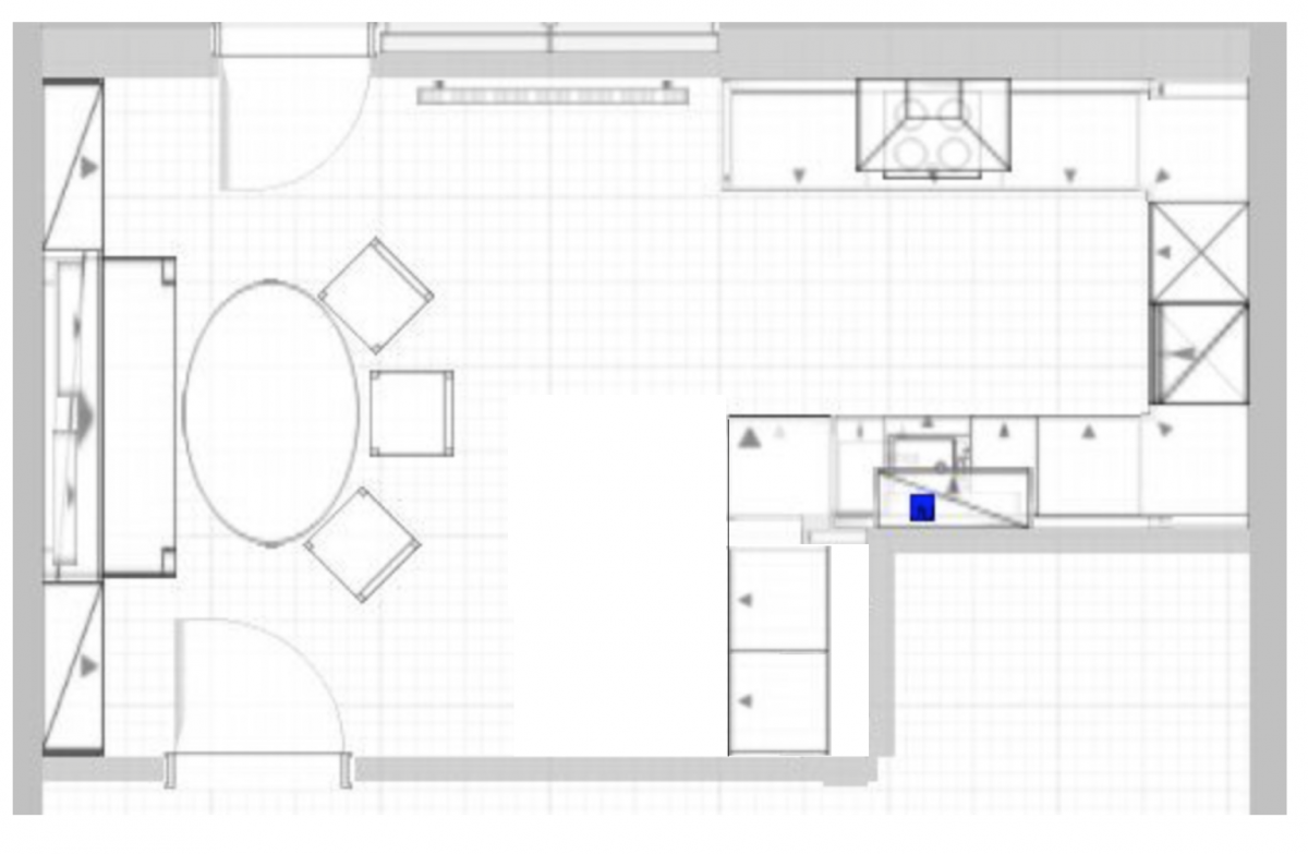
Ich würde die Hochschränke mittig an die planrechte Wand nehmen. Damit können die beiden Unterschrankschenkel dann jeweils ca. eine APL-Tiefe von 68 cm haben.

Bei den Hochschränken 2x * Ulla-Schrank *, am Kochfeld, um dort im unteren Bereich die Standmikrowelle unterzubringen, darüber eher seltener benötigte Teile.

An der Spülenzeile für Elektrokleingeräte.

Planoben dann 3x80er Auszugsunterschränke fürs Kochfeld.

Planunten nach der Ecke
- 60er Auszugsunterschrank
- 40er * MUPL *
- 80er Spülenschrank, Spüle dann linksbündig mit Abstand zur dann folgenden erhöhten GSP eingebaut. Im unteren Auszug z. B. Altglas/Altpapier-Sammelstelle
- erhöhte GSP mit überstehender APL für einen Tresen-Sitzplatz als echte Abwechslung zum Tisch-Sitzplatz.
Um die Ecke dann in Höhe der GSP aber nur in Tiefe von ca. 40 cm noch einen Auszugsunterschrank insbesondere für Tischdeko, Serviergeschirr und ähnliches.

Wasser-Position ist mit blauem Kästchen markiert.
 

Anhänge

  • MelaMargret_20160921_kb1_12b_Grundriss.jpg
    MelaMargret_20160921_kb1_12b_Grundriss.jpg
    22 KB · Aufrufe: 279
  • MelaMargret_20160921_kb1_12b.KPL
    4,1 KB · Aufrufe: 186
  • MelaMargret_20160921_kb1_12b.POS
    13,7 KB · Aufrufe: 212
  • MelaMargret_20160921_kb1_12b_Ansicht7.jpg
    MelaMargret_20160921_kb1_12b_Ansicht7.jpg
    31,6 KB · Aufrufe: 285
  • MelaMargret_20160921_kb1_12b_Ansicht6.jpg
    MelaMargret_20160921_kb1_12b_Ansicht6.jpg
    32,3 KB · Aufrufe: 274
  • MelaMargret_20160921_kb1_12b_Ansicht5.jpg
    MelaMargret_20160921_kb1_12b_Ansicht5.jpg
    28,2 KB · Aufrufe: 282
  • MelaMargret_20160921_kb1_12b_Ansicht4.jpg
    MelaMargret_20160921_kb1_12b_Ansicht4.jpg
    32,6 KB · Aufrufe: 284
  • MelaMargret_20160921_kb1_12b_Ansicht3.jpg
    MelaMargret_20160921_kb1_12b_Ansicht3.jpg
    39,4 KB · Aufrufe: 278
  • MelaMargret_20160921_kb1_12b_Ansicht2.jpg
    MelaMargret_20160921_kb1_12b_Ansicht2.jpg
    37,3 KB · Aufrufe: 284
  • MelaMargret_20160921_kb1_12b_Ansicht1.jpg
    MelaMargret_20160921_kb1_12b_Ansicht1.jpg
    37 KB · Aufrufe: 268
Ich finde Kerstins Vorschlag top, vor allem auch die HS-Wand in Holz abzusetzen.

Persönlich würde ich wohl darauf verzichten den GSP hoch zusetzen und die Schränke um die Ecke in der normalen Küchenschrank-Tiefe mit Auszügen machen (dann vorgezogen, damit sie mit dem GSP abschließen. Auf den Sitzplatz würde ich verzichten, da der Tisch ja gleich daneben steht und der Durchgang so breiter.
Screen Shot 2016-09-22 at 09.48.27.png
 
Zuletzt bearbeitet:
hallo annette,
das bild wo ich drauf bin gehört einfach nicht hier hin, also bitte löschen.danke ;-)
lg m
 
Kerstin,
dein Entwurf gefällt mir super! :dance::2daumenhoch::rose:

Allerdings möchte Margret keine so hohen Schränke. Ich habe ihr von 175 cm abgeraten, aber des Menschen Wille sei sein Himmelreich. Deswegen habe ich einmal auf Wunsch umgeplant.
Die hochgesetzte GSM habe ich in die HS-Wand gesetzt und darüber den DGC. Nach neuesten Überlegungen benötigt sie keine zwei Heißgeräte.
 

Anhänge

  • Meggi3_KBgeändert.POS
    14,3 KB · Aufrufe: 190
  • Meggi3_KBgeändert.KPL
    3,9 KB · Aufrufe: 178
  • Meggi3_KBgeändert_Draufsicht.JPG
    Meggi3_KBgeändert_Draufsicht.JPG
    99,1 KB · Aufrufe: 239
  • Meggi3_KBgeändert_HS.JPG
    Meggi3_KBgeändert_HS.JPG
    93,7 KB · Aufrufe: 235
  • Meggi3_KBgeändert_Kochfeld.JPG
    Meggi3_KBgeändert_Kochfeld.JPG
    93,2 KB · Aufrufe: 230
  • Meggi3_KBgeändert_Spüle.JPG
    Meggi3_KBgeändert_Spüle.JPG
    80,8 KB · Aufrufe: 235
ich finde kerstin`s plan auch top..wenn ich auf den einzelen backofen verzichte und einen mit dampfgarer nehme, kann dann die gsp an diese stelle hochgesetz werden? ich glaube mir wüde auch besser gefallen, wenn die rechte seite gleich tief ist..
 
Auch ich finde Kerstins Vorschlag sehr gut. Vielleicht erscheinen die Hochschränke durch das Holzdekor etwas wuchtig, in ihnen verbirgt sich gedoch wunderbarer Stauraum, der mir fehlen würde.
Tauschen würde ich den GPS und ihn näher zur Spüle setzen. Den Tisch finde ich überflüssig, da die Essgruppe gleich nebenan ist.
Ansonsten hatte das Bild eine nette, sympatische Frau gezeigt:-).
 
vielleicht hat herta recht mit das holzdekor...bin mir noch nicht sicher was die hochschränke betrifft..
vorschlag von kerstin finde ich gut..wirkt viel harmonischer ohne den sitzplatz..
denke wir sind fast am ziel :-)
schade das meine deutschkenntnisse mir nicht erlauben mich mit euch auf gleichen niveau zu unterhalten...aber ich kann sehr gut lesen und kommt alles an ;-)...nur mit antworten und stellungnahme ist bisschen problematisch...
mela hat euch schon aufgeklärt...bin ihr sehr sehr dankbar für die unterstützung ..
 

Ähnliche Beiträge

Neff Hausgeräte Ballerina Küchen Blum Bewegungstechnologie Weibel - Intelligente Küchenlüftung

Neff Spezial

Blum Zonenplaner

Weibel Abluft-Tuning

Weibel Abluft-Tuning
Zurück
Oben