Unbeendet L-Küche, Platzmangel

T33QU1l4

Mitglied
Beiträge
3
L-Küche, Platzmangel

Hallo liebes KüchenForum,

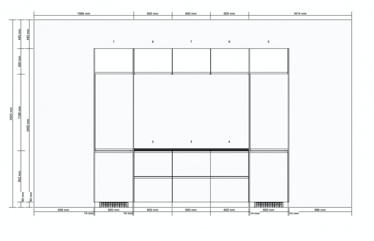
meine kompakte Küche mit niedrigen Decken habe ich bis jetzt wie in den Bildern geplant.

Damit das Fenster komplett geöffnet werden kann, sollen die Füße um 20mm, also auf 60mm, gekürzt werden. Die Sockelleiste würde entsprechend angepasst werden.

Der Abstand von Spülbecken (nicht Schrank) zur Außenkante der APL beträgt 50mm. Empfohlen werden mindestens 10cm. Würde ich dem Folgen, müsste ich die Breite des Unterschranks mit Auszug von 30cm auf 20cm reduzieren.

Der Kühlschrank wird sich nicht in der Küche befinden.

Ich würde mich über konstruktive Kritik/Verbesserungsvorschläge jeder Art freuen.

Schon einmal vielen Dank im Voraus!

Checkliste zur Küchenplanung

Personenkriterien und Ergonomie
Anzahl Personen im Haushalt: 1
Davon Kinder: N. a.
Körpergrößen aller Hauptbenutzer in cm (wegen Arbeitshöhe ): 175
Welche Arbeitshöhe ist angedacht (in cm)?: 888

Gebäudekriterien
Art des Gebäudes: Eigentum
Brüstungshöhe des Fensters (in cm): 904
Fensterhöhe (in cm): 1.193
Raumhöhe in cm: 212
Heizung: Keine Heizung
Sanitäranschlüsse: fix

Einbaugerätekriterien
Ausführung Kühlgerät: N. a.
Einbaukühlgerät Größe: N. a.
Ausführung Tiefkühl (TK)-Gerät: Nicht erforderlich bzw. steht woanders
Dunstabzugshaube: keine
Hochgebauter Backofen : wenn möglich
Geplante Heißgeräte: Dampfbackofen (DGC) ohne Wasseranschluß
Hochgebauter Geschirrspüler : nein
Art des Kochfeldes: Induktion
Kochfeldbreite (ca. in cm): 59

Sitzmöglichkeiten
Sitzmöglichkeit in der Küche / im Küchenbereich: Keine
Sitzmöglichkeit: Für wieviel Personen?: nein
Sitzmöglichkeit: Tisch - wenn gesonderter Tisch oder offene Küche: Keiner
Gewünschte oder vorhandene Tischgröße:
Wofür soll der Sitzplatz in der Küche genutzt werden und wie häufig:

Stauraumplanung
Was steht auf der Arbeitsplatte oder soll dort stehen?: Wasserkocher, Messerblock, Toaster
Welche weiteren Küchenmaschinen müssen in der Küche untergebracht werden: Mixer
Was soll in der Küche außer den Standards untergebracht werden: N. a.
Welchen Stauraum gibt es sonst noch: Geschirr/Gläserschrank im Wohn-/Esszimmer

Kochgewohnheiten
Was/wie wird gekocht? (Alltagsküche, Menüs, Snacks usw):
Wie häufig wird gekocht: Ab und zu
Wird alleine gekocht? Oder auch gemeinsam? Mit und für Gäste?:

Spülen und Müll
Spülenform: 1 Becken ohne Abtropffläche
Welche Mülltrennung soll in der Küche vorgehalten werden: N. a.

Sonstiges
Steht schon ein Küchenhersteller fest oder wird bevorzugt: IKEA
Steht schon ein Gerätehersteller fest oder wird bevorzugt:
Küchenstil: N. a.
Was stört an der bisherigen Küche und was soll die neue Küche unbedingt können? Warum?:
Preisvorstellung (Budget): 4000EUR

Angehängte Dateien
 

Anhänge

  • Gesamtbild.png
    Gesamtbild.png
    628,7 KB · Aufrufe: 204
  • Grundriss.png
    Grundriss.png
    527,3 KB · Aufrufe: 188
  • Planung GSP-Seite frontal.png
    Planung GSP-Seite frontal.png
    483,3 KB · Aufrufe: 183
  • Planung Herdseite frontal.png
    Planung Herdseite frontal.png
    547,4 KB · Aufrufe: 178
  • Planung von oben.png
    Planung von oben.png
    453,9 KB · Aufrufe: 165
  • Wand 1.png
    Wand 1.png
    475,6 KB · Aufrufe: 168
  • Wand 2 Zeile GSP.png
    Wand 2 Zeile GSP.png
    379,5 KB · Aufrufe: 178
  • Wand 3 Zeile Herd.png
    Wand 3 Zeile Herd.png
    339,6 KB · Aufrufe: 153
  • Wand 4 Tür.png
    Wand 4 Tür.png
    429,2 KB · Aufrufe: 163
Hallo und :welcome: im Küchenforum!

Das mit dem tieferlegen wird nichts, du bekommst dann den Geschirrspüler nicht mehr auf. Ich weiß nicht, ob es passende 45er Geräte gibt für niedrige Sockel . Vielleicht könnte man die Kochfeldseite einfach etwas niedriger legen, denn auch deine Arbeitshöhe käme damit gut klar, wenn der Rest oben bleibt.

ARBEITSHÖHE ermitteln - 3 Methoden haben sich da etabliert:
  • abgewinkelter Ellbogen bis Boden messen und 15 cm abziehen
  • Höhe Beckenknochen messen
  • z. B. Bügelbrett nehmen und in verschiedenen Höhen Probeschnippeln und messen, wenn es einem am bequemsten erscheint, wobei dies der wichtigste Test ist.
Idealerweise ergeben alle 3 Methoden ca. denselben Wert. Ausführlicher in Optimale Arbeitshöhen beschrieben.

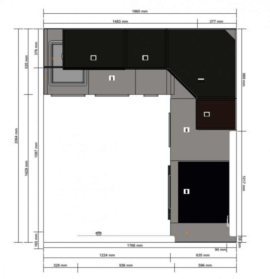
Kannst du bitte einen Grundriss mit den Anschlüssen beifügen?
 
Vielen Dank, Nörgli!

[...]
Das mit dem tieferlegen wird nichts, du bekommst dann den Geschirrspüler nicht mehr auf.[...]

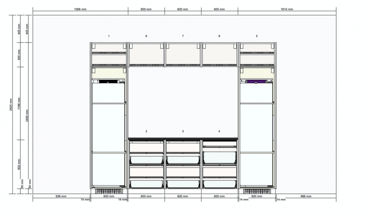
Das mit dem Kürzen der Füße und die damit einhergehende Anpassung der Sockelleisten wurde so von 2 Mitarbeitern von IKEA bestätigt. Im Beratungsprotokollwird der GSP nicht einmal erwähnt. Ich werde es aber dennoch zur Sprache bringen. Ohne GSP will ich keine Küche :-)

ARBEITSHÖHE ermitteln - 3 Methoden haben sich da etabliert: [...]
92cm, 97cm. Bis heute kam ich mit APL-Höhe von 85cm super zurecht.

Kannst du bitte einen Grundriss mit den Anschlüssen beifügen?

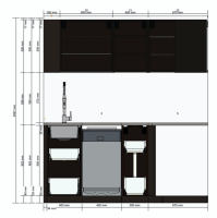
Ja, gerne. Ich hoffe, man kann daraus schnell alles Nötige erkennen und es ist nicht zu kompliziert dargestellt.
 

Anhänge

  • Grundriss mit Winkelebene.png
    Grundriss mit Winkelebene.png
    288,8 KB · Aufrufe: 148
  • Wand 2 mit Anschlüssen.png
    Wand 2 mit Anschlüssen.png
    360,1 KB · Aufrufe: 151
  • Wand 2.png
    Wand 2.png
    734,7 KB · Aufrufe: 145
Hm, vielleicht kommt der MEDELSTOR sogar mit niedrigerem Sockel zurecht? Sieht glatt so aus:

medelstor.png


Dann stünde deiner Planung ja nicht viel im Wege... wobei ich dir empfohlen hätte, das mit einer höheren Arbeitshöhe mal ein paar Tage zu testen. Dein Rücken dankt es dir ja vielleicht doch? ;-) Und passt die Steckdose, die da so hervorsteht, in den Spülenschrank rein? Denn das sieht nicht so aus, wenn ich den Plan richtig lese, d.h. der 30er wird eh nicht passen, weil die Zeile etwas rutschen muss.

Ich würde auch von so vielen Vitrinen abraten, denn das wirkt nur mit hübschem Geschirr und Beleuchtung, was ich bei deinem Stauraum jetzt nicht so als Prio 1 sehen würde. Vielleicht sogar einen kleinen Abtropfschrank über der Spüle einplanen?

Zum Dampfbackofen, das ist so weit unten nicht sehr angenehm mit dem heißen Dampf. Ist der ein Muss? Ein 45 hohes Gerät wäre hier vllt. besser, wegen Stauraum.

Passt die Waschmaschine echt nicht ins Bad? Überlege gerade, ob man das noch optimieren könnte...
 
Hey, nochmals Danke :-)

[...] Dann stünde deiner Planung ja nicht viel im Wege... wobei ich dir empfohlen hätte, das mit einer höheren Arbeitshöhe mal ein paar Tage zu testen. Dein Rücken dankt es dir ja vielleicht doch? ;-) [...]

An sich wäre mir das eig. auch lieber, dann würde ich auch gleich eine 3,8cm dicke APL statt 2,8cm nehmen, dann braucht das Induktionskochfeld unter der APL nicht so viel Platz ein. IKEA rät mir aber dringend davon ab, da die Arbeitshöhe mit 2,8cm-APL bei gekürzten Füßen/Sockel bereits bei 888m (+ca.4mm? Kochfeld) liegt. Das Fenster hat eine relativ unerhebliche Neigung und der -minimale- Abstand zum Boden wäre erst bei fast -vollständiger- Öffnung des Fensters erreicht (92mm), macht man das Fenster nur ein wenig weit in horizontaler Drehrichtung auf (so 30°), dann beträgt die Höhe zumindest 94-95mm. Das heißt, ich könnte im schlimmsten Fall das Fenster nicht **vollständig** auf 90° öffnen, wenn ich eine dickere APL nehme oder die Füße um lediglich einen cm kürzen lasse. Mir persönlich ist das erst einmal egal, aber da ich zugegebenermaßen nicht sehr kocherfahren bin (soll sich ändern), kann ich evt. nicht wissen, warum ich das Fenster so weit geöffnet haben will. Auf Kipp geht mit der Fensternische immer. Und wenn ich nicht gerade koche, kann man das Fenster auch zumindest ein gutes Stück horizontal öffnen. Das sollte im Ernstfall doch reichen oder nicht, zumal unmittelbar hinter der Küchentür eine >2m hohe Balkontür habe. Reinigung des Küchenfensters ist kein Problem, geht vom Balkon aus.

Und passt die Steckdose, die da so hervorsteht, in den Spülenschrank rein? Denn das sieht nicht so aus, wenn ich den Plan richtig lese, d.h. der 30er wird eh nicht passen, weil die Zeile etwas rutschen muss.

Vergessen zu erwähnen. Steckdosen wurden allesamt ausgetauscht, selbe Position.Keine klobigen Dinger mehr. Ich messe das heute Abend noch mal genau aus, wenn ich in die Wohnung gehe. Danke für den Hinweis!

Ich würde auch von so vielen Vitrinen abraten, denn das wirkt nur mit hübschem Geschirr und Beleuchtung, was ich bei deinem Stauraum jetzt nicht so als Prio 1 sehen würde. Vielleicht sogar einen kleinen Abtropfschrank über der Spüle einplanen?
Hab zig überteuerte Nachtmann-Bleikristallgläser in jeder Farbe und jeglicher Art seit Jahren rumstehen, und die wollen sich mal zeigen :-) Zum Abtropfschrank: Es kommt alles in den GSP, bis auf das, was nicht passt. Ich lasse nie etwas abtropfen, sondern trockne es direkt ab.

Zum Dampfbackofen, das ist so weit unten nicht sehr angenehm mit dem heißen Dampf. Ist der ein Muss? Ein 45 hohes Gerät wäre hier vllt. besser, wegen Stauraum.

Nein, ist sicherlich kein Muss. Ich dache mir, vielleicht will ich es irgendwann mal nutzen und so ein Riesenaufpreis war das jetzt auch nicht. Wirklich interessant fand ich nur die Pyrolyse -Funktion. Es gäbe auch die Möglichkeit, den Backofen ganz von der Küche zu nehmen und ins Wohnzimmer zu integrieren. Dort ist auch der Kühlschrank/Tiefkühler.

Passt die Waschmaschine echt nicht ins Bad? Überlege gerade, ob man das noch optimieren könnte...

Ja. Ausgeschlossen.Entweder Waschmaschine in die Küche, oder gar keine. An sich habe ich die Küche aufgrund von Platzmangel auch zuvor ohne WM geplant. Da stand vorher ein Unterbaukühlgerät. Die Idee habe ich aber schnell wieder verworfen. Ich glaube nicht, dass ich auch in 5 Jahren mit so einen Mini-KS zufrieden bin.

Ofen könnte ich hier noch mit reinintegrieren, dann sieht es aber nicht mehr nach Wohnzimmer aus. Das geht wohl ohne Dreiphasenwechselstrom?:
 

Anhänge

  • Balkonwand, anliegend zur Küchentür.png
    Balkonwand, anliegend zur Küchentür.png
    432,6 KB · Aufrufe: 142
  • Front Zeile.png
    Front Zeile.png
    531,7 KB · Aufrufe: 160
  • Gesamteindruck.png
    Gesamteindruck.png
    514,1 KB · Aufrufe: 159
  • Ohne Fronten.png
    Ohne Fronten.png
    527,6 KB · Aufrufe: 150
  • WZ oben.png
    WZ oben.png
    403 KB · Aufrufe: 138

Ähnliche Beiträge

Neff Hausgeräte Ballerina Küchen Blum Bewegungstechnologie Weibel - Intelligente Küchenlüftung

Neff Spezial

Blum Zonenplaner

Weibel Abluft-Tuning

Weibel Abluft-Tuning
Zurück
Oben