Unbeendet L-Küche 3mx3m Neubau

luxomax

Mitglied
Beiträge
2
Hallo liebe Gemeinde,

wir planen die Anschaffung einer neue Küche für eine DHH die noch gebaut werden muss (Fertig Stellung Ende 2017).
Thema Küche hatten wir bisher unterschätzt, ich dachte nicht daß es eine Wissenschaft werden kann :-).
Ich hoffe ich habe hier alles richtig gemacht, geplant würde das ganze mit einen online Küchenplaner da ich nur ein Mac gerade habe und den Alno Planer nicht nutzen kann da Windows.
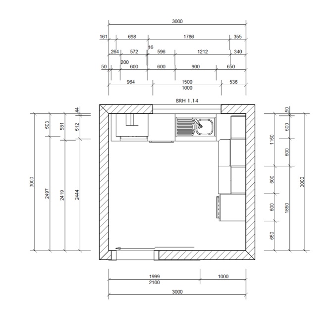
Die Küche ist 3m x 3m und hat eine Schiebetür, die Frei 60 cm Ecke ist für einen Stand Kühlschrank vorgesehen.
Ansonsten für Anregungen, Verbesserungsvorschläge wäre sehr dankbar.
Im Küchenstudio war ich schon und habe schon:
1.- eine Nolte Nova Lack mit Neff Geräten (Wie in die Planung dargestellt!) für ca. 10K mit einen Sitzmöglichkeit.
2.- eine Wellmann mit echt Lack und Bosch Geräten (Wie in die Planung dargestellt!) und eine Berbel Ergoline BKH 90 EG "Ausstellungsware" für ca. 9K

Vielen Dank für die Unterstützung!

Checkliste zur Küchenplanung

Anzahl Personen im Haushalt: 3
Davon Kinder?: 1
Art des Gebäudes?: Neu-/Umbau, Planänderungen möglich
Körpergrössen aller Hauptbenutzer (wegen Arbeitshöhe ) in cm: 178 cm und 168
Brüstungshöhe des Fensters (in cm): noch frei Wählbar *Neubau*
Fensterhöhe (in cm): 114 mit einem Unterlicht
Raumhöhe in cm: 244
Heizung: Fussbodenheizung
Sanitäranschlüsse: vollkommen variabel
Ausführung Kühlgerät: Stand-Alone bis 60 cm Breite
Kühlgerät Größe: bis 178 cm Höhe
Ausführung Tiefkühl (TK)-Gerät: Nicht erforderlich bzw. steht woanders
Dunstabzugshaube: Abluft
Backofen etc. hochgebaut?: Ja
Hochgebauter Geschirrspüler ?: Wenn möglich
Kochfeldart: Induktion
Kochfeldbreite ca. (in cm)?: 60
Spülenform: 1 Becken mit Abtropffläche
Geplante Heißgeräte: Einbaumikrowelle, Backofen
Küchenstil: Modern
Sitzmöglichkeit in der Küche / im Küchenbereich: Arbeitsplatte in Tischhöhe
Sitzmöglichkeit: Für wieviel Personen?: für 4 Personen
Sitzmöglichkeit: Tisch - wenn gesonderter Tisch oder offene Küche:
Gewünschte o. vorhandene Tischgröße:
Wofür soll der Sitzplatz in der Küche genutzt werden? Wie häufig?: Frühstücken, Besucher... gelegentlich
Welche Arbeitshöhe ist angedacht (in cm)?: 90cm bis 94cm
Was steht auf der Arbeitsplatte oder soll dort stehen?: Kaffeemaschine, Wasserkocher, Küchenmaschine, Toaster
Welche weiteren Küchenmaschinen müssen in der Küche untergebracht werden?: Küchenmaschine, Handrührgerät, Mixer, Pürierstab
Was soll in der Küche außer den Standards untergebracht werden?: ALLE Vorräte, Staubsauger/Wischer etc., Geschirr komplett (nichts in Ess-/Wohnzimmer)
Welchen Stauraum gibt es sonst noch?: Keller
Was/wie wird gekocht? (Alltagsküche, Menüs, Snacks usw): Alltagsküche, Fisch, Fleisch, Nudeln
Wie häufig wird gekocht?: (fast) täglich 1x warm
Wird alleine gekocht? Oder auch gemeinsam? Mit und für Gäste?: zu Zweit ab und zu mal.
Was stört an der bisherigen Küche und was soll die neue Küche unbedingt können? Warum?: Bewegungsfreiheit, Stauraum, Robust, Schmutz Wasser und Dampf resistant.
Welche Mülltrennung soll in der Küche vorgehalten werden?: Bio/Restmüll ungetrennt, Gelber Sack Müll
Steht schon ein Küchenhersteller fest oder wird bevorzugt?: Wellmann, Nolte, Alno
Steht schon ein Gerätehersteller fest oder wird bevorzugt?: Bosch, Neff
Preisvorstellung (Budget): bis 10.000,-
 

Anhänge

  • 1.png
    1.png
    103,8 KB · Aufrufe: 797
  • Zusammenfassung_2016_12_20-22_17_48.pdf
    506,1 KB · Aufrufe: 374
  • 2.jpg
    2.jpg
    55,5 KB · Aufrufe: 540
  • 3.jpg
    3.jpg
    65,7 KB · Aufrufe: 1.274
  • 4.jpg
    4.jpg
    66,3 KB · Aufrufe: 387
  • 6.jpg
    6.jpg
    62 KB · Aufrufe: 451
hallo, fast alles richtig gemacht, ein gesamtgrundriss des hauses wäre von vorteil denn eine gute küchenplanung bezieht auch die umliegenden räume ein, da wie ich annehme, die räume auch noch veränderbar sind.
deine planung finde ich nicht so gut. der abstand zwischen spüle und kochfeld ist zu klein. beim arbeiten in der küche geht man (wenns ergonimisch werden soll) wie folgt vor: kühlschrank (zutaten) -> spüle (zum abwaschen) -> schnippeln und weiteres vorbereiten (hier braucht man platz und hier wäre auch der müll sinvoll untergebracht hier mupl genannt) -> kochfeld . idealerweise sollten diese punkte in dieser reihenfolge in einer "reihe" liegen. in deinem fall müsste man erst vom kühlschrank zur spüle, dann wieder nach rechts vom schnippeln und dann nach ganz links zum kochfeld. das stört den arbeitsfluss und was noch mehr stört ist der gsp (geschirrspüler ) der einfach mitten im weg ist.
also ohne die restlichen gegebenheiten des grundrisses zu kennen und ohne das layout zu ändern würde ich die spüle nach rechts auf die hochschrankseite setzen, so ergibt sich eine schöne hauptsarbeitsfläche vor dem fenster (stichwort tageslicht). das kochfeld würde ich ein klein wenig weiter nach links setzen für mehr ellenbogenfreiheit. den gsp würde ich dann neben den BO setzen. die abtropfe (mal überlegen ob man die wirklich braucht in zeiten da fast alles in dne gsp wandert) dann nach rechts über den gsp legen

allerdings hast du in der checkliste angegeben das eine sitzmöglichkeit in arbeitshöhe gewünscht ist, in deinem plan scheinst du diesen icht berücksichtig zu haben.

aber wie gesagt ohne einen gesamtgrundriss würde ich nciht wirklich weiter planen da sich noch vieles ergeben kann wenn alles berücksichtig werden kann ;-)
 
Hallo Dieentebrtram,

Vielen Dank für die Tipps:

deine planung finde ich nicht so gut. der abstand zwischen spüle und kochfeld ist zu klein. [/QUOTE hat gesagt.:
Könnte mann hier die Spüle gespiegelt einsetzen so daß die Abtropfe rechts steht?
Die Abtropfe wird benötigt da wir viel Eisenguss haben (Le Creuset) was wir nicht in die GSP waschen.
Die Sitzmöglichkeit anzuzeichnen ist leider mit den Online Planer nicht möglich.
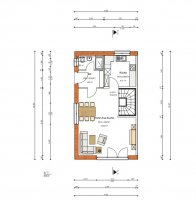
Anbei auch unsere EG Grundriss, hier ist zu beachten daß eine Schiebetür geplant ist.
 

Anhänge

  • EG.jpg
    EG.jpg
    59,7 KB · Aufrufe: 343
Eisenguss sollte man doch am Besten gar nicht waschen? Eins der Dinge, auf die ich mich bei Induktion am Meisten freue ist, dass das Ausbrennen der großen Bräter etc nicht mehr so lang dauern wird.

Mamas Le Creuset ist jetzt seit 35 Jahren im Einsatz und wird immer nur ausgebrannt und gelegentlich geölt :-). Meiner hat erst 7 Jahre, aber auch der wird super sauber mit der Methode.

Also wenn Abtropfe nur wegen Eisenguß würde ich das besonders wenn ihr Induktions-Kochfelder bekommt nochmal überlegen.
 
sehe ich auch so, für ein paar töpfe und pfannen würde ich eine mobile abtropfe vorschlagen. hier gibt es sehr schöne alternativen zu den hässlichen klapprigen plastik schalen die es so gibt, zb etwas dickere saugstarke tücher die extra dafür gedacht sind (vllt hat jemand hier einen schönen link parat ?) :-)

danke für den gesamtgrundriss. ich finde es immer schade das die küche in den RH grundrissen häufig so kurz kommt, zum einen was die fläche angeht, aber auch was die ausrichtung betrifft. ins hinterste eck geschoben und das bei so viel freifläche im wohnzimmer, schade.
 
Die Planung ist schlecht, weil nur schmale Schränke verbaut sind und die Anordnung ein Krampf ist ( z.B.: GSP gehört NICHT zwischen Kochfeld und Spüle).

Ich schlage folgende Abfolge der Schränke vor wenn es tatsächlich nur diese L-Küche werden soll:

GSP, Spüle, 40cm MUPL , 80cm U-Schrank, tote Ecke, 100cm U-Schrank mit Kochfeld, BO, Kühlschrank.




Wichtig wäre zu wissen, wie genau ihr euch den 'Essplatz' in der Küche vorstellt. Für mehr als zwei Sitzplätze ist dort kein Platz, da ja die Tür in der Raumecke ist und man Bewegungsfreiheit und Durchgänge benötigt.
 
Hallo Luxomax!
Deine Planung erinnert mich doch arg an meine eigene: ICH WILL ALLES :kiss:; nur, dass meine noch ein bisschen kleiner ist und wir nicht ganz so viel unterbringen wollen/ müssen.

Bei Deiner Planung (abgesehen von schon erwähnten Punkten) ist mir folgendes durch den Kopf gegangen:
- braucht Ihr im Gästeklo eine Dusche oder könnte man durch Umgestaltung von Flur und Klöchen noch ein bisschen Küche gewinnen?
- könnte man die Schiebetür in die Wand verlegen? So, dass sie quasi in der Wand verschwindet, wenn sie geöffnet ist? Das würde wertvolle Wandfläche gewinnen.
- wie festgenagelt seid Ihr an der Abluft für die DAH?
- Brüstungshöhe Fenster würde ich so wählen, dass die Arbeitsplatte als Fensterbank bis zum Fenster ragt.
- warum ein Stand-Alone in dieser kleinen Küche? Ein integrierter Kühli gibt ein viel ruhigeres Bild.
- hochgebauter BO, hochgebauter GSP, hochgebauter Kühli, Staubsauger und Vorräte. Das sind mindestens 4 Hochschränke! Was ist wichtiger: Staubsauger in der Küche oder Arbeitsplatte?

LG Oma
 
Damit Du siehst, was ich meine, hier ein kleiner Entwurf. Mir persönlich wäre das zu `voll` und ich laufe eher für den Staubsauger in den Keller, aber ich habe an einem ähnlichen Plan für meine Küche lange festgehalten.
Ich habe Dein Klöchen und Flur auf 2 Meter gekürzt, den Garderobenschrank vom Esszimmer ´abgezwackt`, die Küchen-Treppenhaus-Wand verlängert und die Schiebetür in die Wand verlegt (der Durchgang sind die Glasbausteine).
Dann ergibt sich folgen Möglichkeit:
Ab Eingangstür im Uhrzeigersinn:
Blende
HS als Lager
HS mit Kühli
HS mit GSP unter BO, evtl. plus Mikrowelle drüber
30 Auszüge und Stellplatz für Kaffeemaschine und Toaster
tote Ecke
Blende
60 Spüle (über der Spüle ggf. ein OS mit Abtropfgitter als untersten Boden)
50 MUPL
100 Auszüge
tote Ecke
90 cm Auszüge mit 60 KF, darüber ein Deckenlüfter mit Abluft im Koffer
tote Ecke
Ansetztisch 60X160cm

Die Sitzgelegenheiten an der planunteren Wand würde ich allerdings wie eine `Kneipenbank` gestalten, damit man nicht hinter den Barhockern noch herlaufen können muss; die Tiefe gibt der Raum nicht her.

LG Oma
 

Anhänge

  • Luxomax ohne Dusche Ansicht.PNG
    Luxomax ohne Dusche Ansicht.PNG
    708,3 KB · Aufrufe: 280
  • Luxomax Ohne Dusche.PNG
    Luxomax Ohne Dusche.PNG
    105,8 KB · Aufrufe: 309

Ähnliche Beiträge

Neff Hausgeräte Ballerina Küchen Blum Bewegungstechnologie Weibel - Intelligente Küchenlüftung

Neff Spezial

Blum Zonenplaner

Weibel Abluft-Tuning

Weibel Abluft-Tuning
Zurück
Oben