Malisch
Mitglied
- Beiträge
- 10
Hallo Experten und Mitstreiter in diesem schwierigen und interessanten Thema: Küchenplanung !
Nachdem wir nun letzte Woche den Kaufvertrag für unsere Doppelhaushälfte unterschrieben haben, wird nächste Woche angefangen zu bauen. Es wäre schön, wenn wir uns in den nächsten drei Monaten (ca. Bauzeit für Rohbau) über die Küche einig werden, denn die Anschlüsse sind noch völlig frei planbar und wir müssen dann sagen, wo was hinkommt.
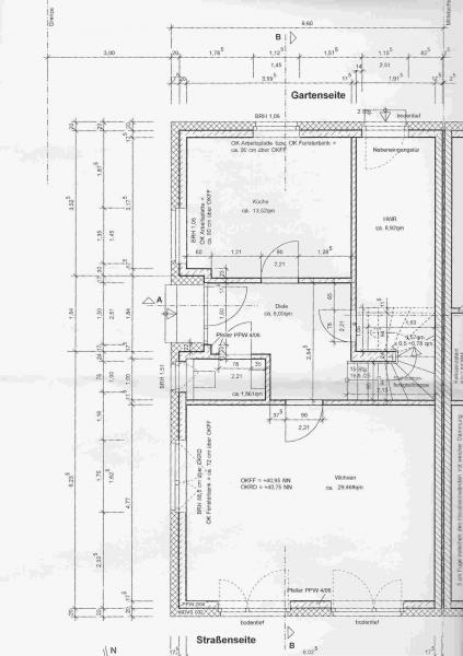
Wir waren mit unserem Grundriss schon bei drei KFB. Diese schlagen uns immer eine L-Küche vor (ein Vorschlag als Bild angehängt). Finden wir grundsätzlich auch gut. Aber nachdem ich hier im Forum einige sinnvolle und geniale Tipps gelesen habe, dachte ich mal, viell. fällt euch noch was Schönes ein.
Da wir 2 Kinder (6 +1 Jahren) haben, würden wir gerne einen Esstisch in der Küche lassen, vor allem da das Wohnzimmer ja über den Flur ist und ich keine Lust habe, das Essen ständig hin und her zu schleppen. Und ein Putzteufel bin ich nicht gerade, eher Gegenteil: putzfaul.
Meine Ideen wären: Farbe Fronten Magnolie Lack, APL z.Z. Mandelholz bzw. franz. Walnuss, lange runde Griffe.
Geräte stehen - dank hier im Forum - soweit fest:
hochgestellter Miele Backofen Backofen - H 5241 B - Miele & Cie. KG Deutschland
Die Mikro habe ich schon und verstecke diese über dem BO
Induktionsfeld Neff 80-er Neff - TwistPad Induktions-Kochfeld Autarkes Elektro-Kochfeld mit integrierten Kochstellenreglern
GSP Neff Neff - GX 552 Großraum-Geschirrspüler 60 cm Vollintegrierbar
DAH Miele (steht noch nicht fest, nur als Beispiel) Dunstabzugshaube - DA 420-4 Umluft - Miele & Cie. KG Deutschland
Ein Kühlschrank als Standgerät ist vorhanden und soll nicht intergriert werden (würde übrigens rechts neben BO stehen, gleich hinter der Tür).
Als Spüle schwebt mir eine "Granitspüle" von Franke vor z.B. Strata - STG 614 Graphit
Als Armatur sollte eine ausziehbare Brause mit (falls es das für Küche auch gibt) Sparfunktion. Farbe entw. passend zur Spüle oder Stahl.
Hinter dem Esstisch haben wir gedacht, könnte man eine kleine Bar unterbringen, wobei die Frage ist, ob es dann nicht zu eng wird. Durch Glastüren wird´s wohl etwas transparenter.
Mit dem Müllordnungssystem überlege ich noch, aber die Idee Müll unter der APL unterzubringen - wie hier im Forum vorgestellt, finde ich super. Im Eckschrank möchte ich Topfkarussel unterbringen.
Würde z.B. eine grauere APL auch gut aussehen (da ich nicht so zimperlich mit der umgehe und bei mir wohl schnell hier und da Kratzer auftauchen)? Als Fliesenspiegel denke ich da an größe Glasfliesen mit Muster der Bodenfliesen, falls ich die mal finde. Ansonsten gerne etwas mit Kaffeefarben / Bildern.
Ich hoffe, Ihr könnt mit dem Wust an Informationen was anfangen. Wäre toll, wenn ich ein paar Tipps hättet.
Vielen Dank schon mal.
Liebe Grüße
Malisch
Checkliste zur Küchenplanung von Malisch
Anzahl Personen im Haushalt : 4
Davon Kinder? : 2
Körpergrössen aller Hauptbenutzer (wegen Arbeitshöhe ) in cm : 168/ 170
Art des Gebäudes? : Neu-/Umbau, Planänderungen möglich
Brüstungshöhe des Fensters (in cm) : 91 cm über OKFF (kein Fensterbrett, APL)
Fensterhöhe (in cm) :
Raumhöhe in cm: :
Heizung : Fussbodenheizung
Sanitäranschlüsse : vollkommen variabel
Ausführung Kühlgerät? : Stand-Alone bis 60 cm Breite
Kühlgerät Größe : bis 175 cm Höhe
Ausführung Tiefkühl (TK)-Gerät : Im Kühlschrank ab 3 Schubladen unten
Dunstabzugshaube? : Umluft
Hochgebauter Backofen ? : Ja
Hochgebauter Geschirrspüler ? : nein
Kochfeldart? : Induktion
Kochfeldbreite ca. (in cm)? : 80
Spülenform: : 1 Becken mit Abtropffläche
Weitere geplante Heißgeräte : Standmikrowelle
Küchenstil? : modern
Sitzmöglichkeit in der Küche / im Küchenbereich als : Gesonderter Tisch
Sitzmöglichkeit: Für wieviel Personen? : für 4 Personen
Sitzmöglichkeit: Tisch - wenn gesonderter Tisch oder offene Küche : Vorhandener Tisch
Gewünschte o. vorhandene Tischgröße : 80/120
Wofür soll der Sitzplatz in der Küche genutzt werden? Wie häufig? : Täglich 3 Mal zum Essen
Welche Arbeitshöhe ist angedacht (in cm)? : 88-91
Was steht auf der Arbeitsplatte oder soll dort stehen? : Kaffeevollautomat, Wasserkocher, Messerblock
Welche weiteren Küchenmaschinen müssen in der Küche untergebracht werden? :
Was soll in der Küche außer den Standards untergebracht werden? : Geschirr komplett (nichts in Ess-/Wohnzimmer)
Welchen Stauraum gibt es sonst noch? : Hauswirtschaftsraum
Was/wie wird gekocht? (Alltagsküche, Menüs, Snacks usw) : Täglich wird gekocht/ meistens gebacken
Wie häufig wird gekocht? : (fast) täglich 1x warm
Wird alleine gekocht? Oder auch gemeinsam? Mit und für Gäste? : ich allein (168 cm)
Was stört an der bisherigen Küche und was soll die neue Küche unbedingt können? Warum? : größere Arbeitsfläche / Induktionsherd / ausschließlich Auszüge, keine Türenschränke
Steht schon ein Küchenhersteller fest oder wird bevorzugt? :
Steht schon ein Gerätehersteller fest oder wird bevorzugt? : Neff / Miele
Preisvorstellung (Budget) : bis 10.000,-
Nachdem wir nun letzte Woche den Kaufvertrag für unsere Doppelhaushälfte unterschrieben haben, wird nächste Woche angefangen zu bauen. Es wäre schön, wenn wir uns in den nächsten drei Monaten (ca. Bauzeit für Rohbau) über die Küche einig werden, denn die Anschlüsse sind noch völlig frei planbar und wir müssen dann sagen, wo was hinkommt.
Wir waren mit unserem Grundriss schon bei drei KFB. Diese schlagen uns immer eine L-Küche vor (ein Vorschlag als Bild angehängt). Finden wir grundsätzlich auch gut. Aber nachdem ich hier im Forum einige sinnvolle und geniale Tipps gelesen habe, dachte ich mal, viell. fällt euch noch was Schönes ein.
Da wir 2 Kinder (6 +1 Jahren) haben, würden wir gerne einen Esstisch in der Küche lassen, vor allem da das Wohnzimmer ja über den Flur ist und ich keine Lust habe, das Essen ständig hin und her zu schleppen. Und ein Putzteufel bin ich nicht gerade, eher Gegenteil: putzfaul.
Meine Ideen wären: Farbe Fronten Magnolie Lack, APL z.Z. Mandelholz bzw. franz. Walnuss, lange runde Griffe.
Geräte stehen - dank hier im Forum - soweit fest:
hochgestellter Miele Backofen Backofen - H 5241 B - Miele & Cie. KG Deutschland
Die Mikro habe ich schon und verstecke diese über dem BO
Induktionsfeld Neff 80-er Neff - TwistPad Induktions-Kochfeld Autarkes Elektro-Kochfeld mit integrierten Kochstellenreglern
GSP Neff Neff - GX 552 Großraum-Geschirrspüler 60 cm Vollintegrierbar
DAH Miele (steht noch nicht fest, nur als Beispiel) Dunstabzugshaube - DA 420-4 Umluft - Miele & Cie. KG Deutschland
Ein Kühlschrank als Standgerät ist vorhanden und soll nicht intergriert werden (würde übrigens rechts neben BO stehen, gleich hinter der Tür).
Als Spüle schwebt mir eine "Granitspüle" von Franke vor z.B. Strata - STG 614 Graphit
Als Armatur sollte eine ausziehbare Brause mit (falls es das für Küche auch gibt) Sparfunktion. Farbe entw. passend zur Spüle oder Stahl.
Hinter dem Esstisch haben wir gedacht, könnte man eine kleine Bar unterbringen, wobei die Frage ist, ob es dann nicht zu eng wird. Durch Glastüren wird´s wohl etwas transparenter.
Mit dem Müllordnungssystem überlege ich noch, aber die Idee Müll unter der APL unterzubringen - wie hier im Forum vorgestellt, finde ich super. Im Eckschrank möchte ich Topfkarussel unterbringen.
Würde z.B. eine grauere APL auch gut aussehen (da ich nicht so zimperlich mit der umgehe und bei mir wohl schnell hier und da Kratzer auftauchen)? Als Fliesenspiegel denke ich da an größe Glasfliesen mit Muster der Bodenfliesen, falls ich die mal finde. Ansonsten gerne etwas mit Kaffeefarben / Bildern.
Ich hoffe, Ihr könnt mit dem Wust an Informationen was anfangen. Wäre toll, wenn ich ein paar Tipps hättet.
Liebe Grüße
Malisch
Checkliste zur Küchenplanung von Malisch
Anzahl Personen im Haushalt : 4
Davon Kinder? : 2
Körpergrössen aller Hauptbenutzer (wegen Arbeitshöhe ) in cm : 168/ 170
Art des Gebäudes? : Neu-/Umbau, Planänderungen möglich
Brüstungshöhe des Fensters (in cm) : 91 cm über OKFF (kein Fensterbrett, APL)
Fensterhöhe (in cm) :
Raumhöhe in cm: :
Heizung : Fussbodenheizung
Sanitäranschlüsse : vollkommen variabel
Ausführung Kühlgerät? : Stand-Alone bis 60 cm Breite
Kühlgerät Größe : bis 175 cm Höhe
Ausführung Tiefkühl (TK)-Gerät : Im Kühlschrank ab 3 Schubladen unten
Dunstabzugshaube? : Umluft
Hochgebauter Backofen ? : Ja
Hochgebauter Geschirrspüler ? : nein
Kochfeldart? : Induktion
Kochfeldbreite ca. (in cm)? : 80
Spülenform: : 1 Becken mit Abtropffläche
Weitere geplante Heißgeräte : Standmikrowelle
Küchenstil? : modern
Sitzmöglichkeit in der Küche / im Küchenbereich als : Gesonderter Tisch
Sitzmöglichkeit: Für wieviel Personen? : für 4 Personen
Sitzmöglichkeit: Tisch - wenn gesonderter Tisch oder offene Küche : Vorhandener Tisch
Gewünschte o. vorhandene Tischgröße : 80/120
Wofür soll der Sitzplatz in der Küche genutzt werden? Wie häufig? : Täglich 3 Mal zum Essen
Welche Arbeitshöhe ist angedacht (in cm)? : 88-91
Was steht auf der Arbeitsplatte oder soll dort stehen? : Kaffeevollautomat, Wasserkocher, Messerblock
Welche weiteren Küchenmaschinen müssen in der Küche untergebracht werden? :
Was soll in der Küche außer den Standards untergebracht werden? : Geschirr komplett (nichts in Ess-/Wohnzimmer)
Welchen Stauraum gibt es sonst noch? : Hauswirtschaftsraum
Was/wie wird gekocht? (Alltagsküche, Menüs, Snacks usw) : Täglich wird gekocht/ meistens gebacken
Wie häufig wird gekocht? : (fast) täglich 1x warm
Wird alleine gekocht? Oder auch gemeinsam? Mit und für Gäste? : ich allein (168 cm)
Was stört an der bisherigen Küche und was soll die neue Küche unbedingt können? Warum? : größere Arbeitsfläche / Induktionsherd / ausschließlich Auszüge, keine Türenschränke
Steht schon ein Küchenhersteller fest oder wird bevorzugt? :
Steht schon ein Gerätehersteller fest oder wird bevorzugt? : Neff / Miele
Preisvorstellung (Budget) : bis 10.000,-
Anhänge
-
Küche.jpg38,4 KB · Aufrufe: 375 -
EG ganz.jpg37 KB · Aufrufe: 389 -
Vorschlag.jpg52 KB · Aufrufe: 212 -
PLAN1.KPL4,1 KB · Aufrufe: 177
-
PLAN1.POS4,8 KB · Aufrufe: 186
-
Bild ALNO zur Küche.jpg40,9 KB · Aufrufe: 211 -
Bild ALNO zur Tür.jpg24,3 KB · Aufrufe: 204 -
Bild ALNO zur Bar.jpg37 KB · Aufrufe: 206 -
Bild ALNO.jpg18,4 KB · Aufrufe: 201





