Unbeendet Küchenplanung Neubau

Wizard

Mitglied
Beiträge
8
Küchenplanung Neubau

Hallo zusammen,

wir haben nun auch die Planung für unser Haus abgeschlossen und sind dabei uns Gedanken über die neue Küche zu machen.

Die Küche wird zum Wohnraum hin offen sein und eine Sitzmöglichkeit soll als Raumteiler dienen, an dem auch gefrühstückt werden kann.

Von den Farben der Fronten gefallen uns magnolie, jedoch auch beispielsweise waldgrün mit einer Arbeitsplatte in Eiche Nachbildung.

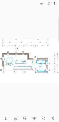
Eine erste Planung mit dem Alno -Küchenplaner und den Küchenmaßen, sowie einer 3D-Ansicht füge ich hinzu.

Aus unserer Sicht wirkt die kleine Kochinsel mit nur etwas über 1m Breite etwas "verloren" in der Küche. Auch haben wir Küchen gesehen, die im Landhausstill etwas "verspielter" wirken, mit Regalen oder Schränken in Eichefarbe, die besondere Farbakzente setzen.

Ich freue mich über Eure Gestaltungs-Vorschläge zu dem beigefügten Küchengrundriss oder auch Optimierungen.



Folgende Wünsche haben wir für die neue Küche:


Vielen Dank und viele Grüße.

Checkliste zur Kuechenplanung

Personenkriterien und Ergonomie
Anzahl Personen im Haushalt:
2
Davon Kinder: keine
Körpergrößen aller Hauptbenutzer in cm (wegen Arbeitshoehe): 178
Welche Arbeitshöhe ist angedacht (in cm)?: 91

Gebäudekriterien
Art des Gebäudes:
Neu-/Umbau > Planänderungen nicht möglich
Bruestungshöhe des Fensters (in cm): 88
Fensterhöhe (in cm): 120
Raumhöhe in cm: 245
Heizung: Fußbodenheizung
Sanitäranschlüsse: vollkommen variabel

Einbaugerätekriterien
Ausführung Kühlgerät:
Integriert im Hochschrank (60cm)
Einbaukühlgerät Größe: 178cm
Ausführung Tiefkühl (TK)-Gerät: Nicht erforderlich bzw. steht woanders
Dunstabzugshaube: Umluft
Hochgebauter Backofen : ja
Geplante Heißgeräte: Backofen
Hochgebauter Geschirrspüler : nein
Art des Kochfeldes: Induktionskochfeld
Kochfeldbreite (ca. in cm): 80

Sitzmöglichkeiten
Sitzmöglichkeit in der Küche / im Küchenbereich:
Arbeitsplatte in Tischhöhe
Sitzmöglichkeit: Für wieviel Personen?: Für 2 Personen
Sitzmöglichkeit: Tisch - wenn gesonderter Tisch oder offene Küche: N. a.
Gewünschte oder vorhandene Tischgröße: 120x60
Wofür soll der Sitzplatz in der Küche genutzt werden und wie häufig: Schneidarbeiten / Frühstück oder einfach einen Kaffee trinken.

Stauraum-Planung
Was steht auf der Arbeitsplatte oder soll dort stehen?:
Kaffeevollautomat, Wasserkocher, Küchenmaschine, Toaster, Obstschale
Welche weiteren Küchenmaschinen müssen in der Küche untergebracht werden: N. a.
Was soll in der Küche außer den Standards untergebracht werden: Geschirr komplett (nichts in Ess-/Wohnzimmer)
Welchen Stauraum gibt es sonst noch: Hauswirtschaftsraum

Kochgewohnheiten
Was/wie wird gekocht? (Alltagsküche, Menüs, Snacks usw):
Alltagsküche
Wie häufig wird gekocht: (fast) täglich 1x warm
Wird alleine gekocht? Oder auch gemeinsam? Mit und für Gäste?: Allein, gemeinsam; auch für Gäste.

Spülen und Müll
Spülenform:
1 Becken mit Abtropffläche
Welche Mülltrennung soll in der Küche vorgehalten werden: N. a.

Sonstiges
Steht schon ein Küchenhersteller fest oder wird bevorzugt:
Steht schon ein Gerätehersteller fest oder wird bevorzugt:
BSH-Gruppe (Bosch, Siemens, Neff)
Küchenstil: Landhausküche
Was stört an der bisherigen Küche und was soll die neue Küche unbedingt können? Warum?: Viel Stauraum, eine Kochinsel wäre schön.
Preisvorstellung (Budget): k.A.

Angehängte Dateien
 

Anhänge

  • Küche_Grundriss.jpg
    Küche_Grundriss.jpg
    71,4 KB · Aufrufe: 224
  • Küche_ALNO_3D.jpg
    Küche_ALNO_3D.jpg
    77,6 KB · Aufrufe: 220
  • Grundriss_EG_Küche.jpg
    Grundriss_EG_Küche.jpg
    168 KB · Aufrufe: 215
Zuletzt bearbeitet:
Hallo,

du schreibst, dass eure Hausplanung abgeschlossen ist. Stelle bitte einen vermaßten Etagenplan, damit wir uns orientieren können.

Eine Mini-Insel wie von dir eingezeichnet ist auf keinen Fall eine Lösung.
 
Zuletzt bearbeitet:
Gewünschte oder vorhandene Tischgröße: 120x60
das ist eigentlich kein Tisch, eher eine Abstellfläche. Der Raum ist 5.6 m lang und hat nur 2 x 1m Fenster. Viel Licht kommt planunten nicht an.

Du hast auch was von Thekenplätzen geschrieben. Aus deinem Eingangspost kann man nicht entnehmen, wie viel Stauraum ihr braucht. ZB würde man versuchen Geschirr. zumindest Teller, in einem US zu verstauen.

Ohne Etagenplan ist es schwierig, sich ein Bild zu machen.
 
danke,

wir hätten deine Küche ohne diesen Grundriss nie verstanden, denn was du uns gezeigt hast, ist eine geschlossene Küche mit einer fehlenden Tür. Ich dachte die Terrassentür ist der Eingang in den Raum.

Und bis zur Ecke sind es keine 560 sondern nur 525 cm und die Fensterwand ist auch etwas anders als dein Plan.

Die Wand planunten kann man nicht nachprüfen, weil die Maße abgeschnitten sind.
 
Hallo Evelin,

vielen Dank für deine Antwort, ich habe einen Querschnitt des Grundrisses mit Abmessungen hinzugefügt.

Die Länge der unteren Küchenwand, zwischen der schrägen Tür, welche vom Flur in die Küche führt - bis zur Wand mit dem Küchenfenster - beträgt 288,5 cm.

Somit kommt Licht von den beiden Fenstern in die Küche, zusätzlich von der Terassentür und auch vom hinteren Wohnbereich.

Stauraum kann man immer gebrauchen. Bislang hatten wir Teller und Tassen beispielsweise in Hängeschränken untergebracht. In Unterschränken mit Auszügen dann auch einige haltbare Vorräte, die ständig gebraucht werden, Auszüge für Töpfe unter dem Herd,...

Viele Grüße.
 
Hallo, ist die Raumverteilung mit Wohn, Essbereich und Küche schon fix?
Mir würde es spontan besser gefallen die Küche in die Mitte zu stellen, dann käme auch ein Gebilde in Frage, welches den Namen Insel verdient. Warum sind planoben nur so schmale Fenster? Was gibt's zu sehen, oder eher nicht zu sehen? In welche Himmelsrichtung geht der planobere Bereich?
Warum muss die Tür diagonal sitzen? Könntest du noch den ganzen Etagengrundriss mit hochladen, wie geht es vom Wohnbereich nach planunten weiter? Wo ist der Hauswirtschaftsraum usw.
Grüße Sabine
 

Anhänge

  • Screenshot_20250104-060253_Gallery.jpg
    Screenshot_20250104-060253_Gallery.jpg
    64,9 KB · Aufrufe: 126
Hallo auch von mir!

Zur Arbeitshöhe ; 91 könnte etwas niedrig sein für euch, versucht sie genauer zu bestimmen.

Arbeitshöhe - Küchen-Lexikon

Die Brüstungshöhe ist 88; wie hoch ist die Unterkante Fensterflügel? Die Arbeitsplatte kann dann statt dem Fensterbrett ins Fenster laufen.

Ganz sehe ich das Problem mit der Küche nicht. Warum nicht die Kochinsel an die Wand andocken; dann kannst du eine 180 lange Kochinsel planen. Wenn du das Kochfeld asymmetrisch einbaust, bleibt dir auch Platz zum Arbeiten auf der Insel. An der Wand planrechts mit Geschirrspüler , Spüle, Mupl , US, Ecke, US, HSmit BO, HS mit KS. Das wäre ähnlich wie hier.

Neue Küche im Altbau (naja, 1980erBJ :-)) - Fertig mit Bildern -

L-Küche mit Halbinsel im offenen Wohnraum - Fertig mit Bildern -
 

Anhänge

  • IMG_7446.jpeg
    IMG_7446.jpeg
    225,8 KB · Aufrufe: 69
Zuletzt bearbeitet:
Hallo,

vielen Dank für eure Antworten.

@Sabine Ohneplan : Ja, die Raumverteilung ist bereits festgelegt. Bei dem Haus handelt es sich um ein Fehnhaus, eine für die Gegend typische Landhausbauart, welches traditionell diese kleinen Fenster, wie sie planoben eingezeichnet sind, besitzt. Dort befindet sich die Ostseite.

@Melanie 75 : Die Arbeitsplatte in die Fenster einzusetzen ist eine schöne Idee. Die Brüstungshöhe der Fenster kann noch angepasst werden. Eine an die Wand angedockte Küchenzeile, also eine Halbinsel haben wir auch bereits überlegt, es gefiel uns jedoch nicht so bzw. wirkte nicht harmonisch.

Viele Grüße.
 
@Melanie 75 , die Tür in der schrägen Wand, die geht dann nicht mehr auf bzw haut an die Insel

und wo wären die beiden Thekenplätze?
 
Zuletzt bearbeitet:
tut mir leid, aber ich kann dir keinen Vorschlag zeigen, nicht für dein Raumlayout.

Der Platz zwischen den Türen und dem Essbereich bleibt dann bis auf ein Sideboard unmöbliert?
 
@Evelin , die Tür habe ich auch gesehen, ich dachte mir
- vielleicht geht es sich aus?
- kann man den Türanschlag ändern?
- oder eine Schiebetür einbauen?

Es ist ja ein Neubau.

Eventuell könnte man das Ganze auch spiegeln? Planunten dann die Hochschränke, planoben die Halbinsel. 250 sind etwas knapp. Sind die Positionen der Türen schon in Stein gemeißelt oder können sie noch etwas verschoben werden?

@Wizard, hast du dir meine verlinkten Beispiele angesehen? Ich persönlich finde die Halbinsel harmonischer als diese Minikochinsel in der Mitte, mit der man eigentlich auch nichts anfangen kann. Du musst dir vorstellen, dass du neben dem Kochfeld auch Platz brauchst, um Dinge abzustellen.
 
Planunten kann man keine HS stellen, das Fenster wird verdeckt.

Planoben ist die Wand rechts von der Tür nur 250, man kann keine Insel stellen.

Man kann ein U von Tür zu Tür stellen.

Die BRH der winzigen Fenster im Wohnbereich ist 125 cm. Man kann beim Essen immer nur Wände anschauen, 7m. Stört euch das nicht?
 
Zuletzt bearbeitet:
Auch schade, dass einige Fragen nicht beantwortet werden. Ich verstehe den Sinn der traditionellen Bauweise schon, allerdings sind die Raumbedingungen sehr ungünstig, die Fenster nach Osten könnten wunderbare Morgensonne ins Haus bringen, leider sind sie winzig. Warum die Raumverteilung nicht variabel ist, bleibt unbegründet. Was soll man machen?
 
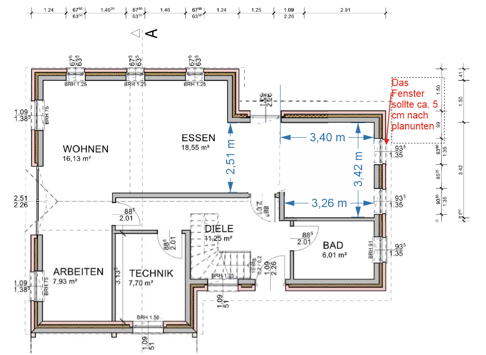
Leider finde ich den Grundriss des Raumes auch mehr als ungeeignet für die Küchenwünsche. Es fehlt auch das Maß vom roten Pfeil ... die Wand planunten soll ja 288 cm Rohbaumaß sein.

1736011965149.png

Und, leider fehlt auch ein Gesamtgrundriss des Geschosses ... gebaut ist ja noch nicht, evtl. könnte man ein oder zwei Vorschläge zur Verbesserung machen. Auch, wenn ihr denkt, ihr seid fertig. Ihr solltet das Brainstorming hier nutzen.

Z. B. so, dass an die Wand planunten die Hochschränke passen (Fenster also verschieben, bzw. nur eines planrechts und dafür vielleicht planoben noch eines und die Terrassentür etwas anpassen. Tür evtl. versetzen, denn an der vermutlich Flurwand links der Küchentür kann ja auch nichts richtiges passieren.

Ist das eigentlich EG, weil links der Giebel eingezeichnet ist?

Auf jeden Fall ist die im Vorplan eingeplante Mini-Insel und der Katzensitzplatz, der ja dann gleich neben dem richtigem Esstisch wäre, nicht zielführend.

Hängeschränke für Geschirr
So wie aktuell Fensteraufteilung etc. ist, bleibt ja nur der schlecht erreichbare Hängeschrank über der Ecke. Geschirr ist an sich übrigens gut in Unterschrank -Auszügen aufbewahrt. * Stauraumplanung mit ganz vielen Beispielen *
 
Hallo,

vermutlich ist es wirklich besser den gesamten Grundriss des Hauses einmal zu zeigen, dann wird es sicher klar, dass die Fenster in der Küche so positioniert sind, damit die Außenansicht des Hauses nicht gestört wird. Somit ist auch kein Verschieben der Fenster möglich.

Es handelt sich bei dem Grundriss um das Erdgeschoss. Bei einem Fehnhaus sind die Dächer jedoch traditionell tief heruntergezogen, so dass bereits im Erdgeschoss leichte Dachschrägen auftreten.

Die Terrassentür hingegen könnte noch etwas versetzt werden. Es geht dort zu einer kleinen Terrasse, auf der mit der aufgehenden Morgen-Sonne auch draußen gefrühstückt oder einfach ein Kaffee oder Tee getrunken werden kann.

Ich habe mir die Links von Melanie mit den Halbinseln angesehen. Das sieht für die geplanten Küchen wirklich gut aus.

Vielleicht wird es bei uns auch einfach nur eine L- oder U-Küche. Wünsche lassen sich selten komplett erfüllen. Aber es scheint auch mit diesem Grundriss bereits einiges möglich zu sein, was harmonisch wirkt.

Das fehlende Mass habe ich noch in den Grundriss eingetragen.

Die Position der Küche möchten wir nicht ändern. Der Grund ist einfach, da wir an der Stelle des Neubaus zuvor viele Jahre ein altes Haus hatten, welches leider nicht wirtschaftlich saniert werden konnte und die Küche befand sich zuvor auch dort.

Mitgenommen habe ich bereits, dass eine Insel nicht möglich ist und auch der kleine Sitzplatz, falls überhaupt, dann größer ausfallen sollte.
 

Anhänge

  • Grundriss_EG.jpg
    Grundriss_EG.jpg
    125 KB · Aufrufe: 117
Die BRH der winzigen Fenster im Wohnbereich ist 125 cm. Man kann beim Essen immer nur Wände anschauen, 7m. Stört euch das nicht?
Ja, das würde stören. Auf dem Grundriss sind Wohn- und Essbereich falsch bezeichnet. Vom den Esstisch wird man durch eine sehr grosse Terrassentür in den Garten sehen können.
 
Wo habt ihr denn eine Garderobe geplant?
Kann die Kücheneingangstür noch geändert werden?
Kannst du vielleicht grob die restliche Einrichtung skizzieren?
 
Auf dem Grundriss sind Wohn- und Essbereich falsch bezeichnet. Vom den Esstisch wird man durch eine sehr grosse Terrassentür in den Garten sehen können.
Wo soll das denn sein? Es wäre vielleicht ganz gut, die geplante Möblierung ca. in den Rest-Grundriss einzutragen. .. Ups, sehe gerade, das hat auch @Melanie 75 schon geschrieben.

Und, wenn ich mit den gegebenen Maßen die rote Pfeil-Strecke messe, dann komme ich auf max. 254 cm und nicht 266 cm.

Wg. Kücheneingangstür .. sehe ich auch so, vor allem vielleicht auch die Schräge wegbringen. Vielleicht so
1736030500637.png


Dann müsste rechts das planuntere Fenster vermutlich auch ca. 5 cm nach planoben geschoben werden.

Ich empfehle übrigens eine Badplanung vorzunehmen, denn aktuell kann ich mir gar nicht vorstellen, was da drin sein soll.

Zu dieser Raumplanung würde mir auch eine Küchenplanung vorschweben ... aber heute nicht mehr, morgen dann :cool:
 
Hallo,
Kerstin hat die Frage von Melanie direkt im Grundriss umgesetzt. Erstaunlich wie sich dann die Abmessungen ändern.

Ich denke schon, dass der Grundriss für die Küche so geändert werden kann. Da müsste ich fragen, zumindest für das Fenster.

Das eigentliche Bad befindet sich im Obergeschoss. Unten befindet sich nur eine Dusche, WC, Waschbecken und Schränke. So kann man nach der Gartenarbeit unten schnell duschen.

Bin gespannt, was Kerstin nun für eine Idee hat.

Schönen Sonntag.
 

Ähnliche Beiträge

Neff Hausgeräte Ballerina Küchen Blum Bewegungstechnologie Weibel - Intelligente Küchenlüftung

Neff Spezial

Blum Zonenplaner

Weibel Abluft-Tuning

Weibel Abluft-Tuning
Zurück
Oben