Jacqueline_Daniel
Mitglied
- Beiträge
- 8
Küche in neu gekauftem Einfamilienhaus 
Hallo liebes Forum,
nachdem wir nun unseren Traum vom Einfamilienhaus wahr gemacht haben, geht es auch schon an die Küchenplanung .
Ich bin schon länger stiller Mitleser und habe in der aktuellen Planung schon einige Hinweise übernommen.
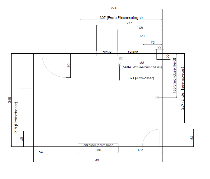
Da das Haus erst 10 Jahre alt ist und die Fliesen noch top sind, wollen wir diese auch so lassen. Ebenso sollten dann auch Wasseranschlüsse und die Position des Kochfeldes beibehalten werden, um die Renovierungskosten niedrig zu halten.
Die Wand planrechts, an der die Abzugshaube ist, ist eine Brandwand, deswegen ist leider kein Abzug nach außen möglich.
Wir haben uns erstmal mit Nolte beschäftigt, da wir gerne eine farbige Landhausküche hätten. Folienfronten wollen wir nicht haben, Echtholz liegt leider nicht im Budget. Nach meinen ersten Recherchen blieb nicht mehr viel übrig, so fiel unsere erste Wahl auf eine Nolte Windsor Lack in Tiefblau, evtl. auch Quarzgrau, da müssen wir nochmal ein paar Nächte drüber schlafen.
Kinder sind noch nicht da, aber zukünftig geplant, deswegen ein Tisch für 4 Personen.
In der Küche bräuchten wir nur ein kleines Gefrierfach, für alltägliche Dinge. Der Rest kommt in eine Gefriertruhe im Keller.
Vorräte werden hauptsächlich in der Speisekammer gelagert. Gutes Geschirr im Wohnzimmer. Dort soll auch noch ein Tisch für bis zu 10 Personen hin.
Altpapier und Plastikmüll soll in der Speisekammer gesammelt werden.
Meine bisherige Planung sieht vor:
Planoben von links:
60er Kühlgefrierkombi, 150cm hoch
60er Auszugsschrank
60er Geschirrspüler
60er Spülenschrank
30er MUPL
Tote Ecke
Planrechts von oben:
30er Auszug für Gewürze
80er Kochfeld mit Auszügen
30er Auszug für Öle etc.
60er Schrank für DGC, evtl später Mikrowelle 150cm hoch
Planlinks von unten:
60er Auszugsschrank
15er Weinregal
60er Auszugsschrank
darüber passend dazu Hängeschränke mit Sprossen
in der Mitte ein 100er Auszugsschrank für zusätzlichen Stauraum, als reine Arbeitsinsel mit angrenzendem Tisch. Dieser soll in Arbeitsplattendekor sein, aber gerne auf Tischhöhe.
Habt ihr noch Anregungen und Verbesserungsvorschläge für uns?
Liebe Grüße
Jacqueline und Daniel
Checkliste zur Küchenplanung
Personenkriterien und Ergonomie
Anzahl Personen im Haushalt: 2
Davon Kinder: keine
Körpergrößen aller Hauptbenutzer in cm (wegen Arbeitshöhe ): 158, 178
Welche Arbeitshöhe ist angedacht (in cm)?: 91
Gebäudekriterien
Art des Gebäudes: Bestandsbau > Umbauten ausgeschlossen, Eigentum
Brüstungshöhe des Fensters (in cm): 91
Fensterhöhe (in cm):
Raumhöhe in cm: 250
Heizung: Heizkörper wie im Grundriss
Sanitäranschlüsse: fix
Einbaugerätekriterien
Ausführung Kühlgerät: Integriert im Hochschrank (60cm)
Einbaukühlgerät Größe: Noch unbekannt
Ausführung Tiefkühl (TK)-Gerät: Im Kühlschrank bis 2 Schubladen unten
Dunstabzugshaube: Umluft
Hochgebauter Backofen : ja
Geplante Heißgeräte: Dampfbackofen (DGC) ohne Wasseranschluß
Hochgebauter Geschirrspüler : nein
Art des Kochfeldes: Induktion
Kochfeldbreite (ca. in cm): 80
Sitzmöglichkeiten
Sitzmöglichkeit in der Küche / im Küchenbereich: Arbeitsplatte in Tischhöhe
Sitzmöglichkeit: Für wieviel Personen?: Für 4 Personen
Sitzmöglichkeit: Tisch - wenn gesonderter Tisch oder offene Küche: Wird nach Bedarf neu gekauft
Gewünschte oder vorhandene Tischgröße: 80 x 120
Wofür soll der Sitzplatz in der Küche genutzt werden und wie häufig: Frühstück, Mittagessen, Abendessen, wenn kein Besuch da ist
Stauraumplanung
Was steht auf der Arbeitsplatte oder soll dort stehen?: Kaffeemaschine, Wasserkocher, Küchenmaschine, Allesschneider, Obstschale
Welche weiteren Küchenmaschinen müssen in der Küche untergebracht werden: Pürierstab
Was soll in der Küche außer den Standards untergebracht werden: N. a.
Welchen Stauraum gibt es sonst noch: Geschirr/Gläserschrank im Wohn-/Esszimmer, Speisekammer, Keller
Kochgewohnheiten
Was/wie wird gekocht? (Alltagsküche, Menüs, Snacks usw): Alltagsküche
Wie häufig wird gekocht: Ab und zu
Wird alleine gekocht? Oder auch gemeinsam? Mit und für Gäste?: meistens zu zweit
Spülen und Müll
Spülenform: 1 1/2 Becken mit Abtropffläche
Welche Mülltrennung soll in der Küche vorgehalten werden: Biomüll, Restmüll
Sonstiges
Steht schon ein Küchenhersteller fest oder wird bevorzugt: Nolte
Steht schon ein Gerätehersteller fest oder wird bevorzugt:
Küchenstil: Landhausküche
Was stört an der bisherigen Küche und was soll die neue Küche unbedingt können? Warum?:
Preisvorstellung (Budget): 12000€
Angehängte Dateien
Hallo liebes Forum,
nachdem wir nun unseren Traum vom Einfamilienhaus wahr gemacht haben, geht es auch schon an die Küchenplanung .
Ich bin schon länger stiller Mitleser und habe in der aktuellen Planung schon einige Hinweise übernommen.
Da das Haus erst 10 Jahre alt ist und die Fliesen noch top sind, wollen wir diese auch so lassen. Ebenso sollten dann auch Wasseranschlüsse und die Position des Kochfeldes beibehalten werden, um die Renovierungskosten niedrig zu halten.
Die Wand planrechts, an der die Abzugshaube ist, ist eine Brandwand, deswegen ist leider kein Abzug nach außen möglich.
Wir haben uns erstmal mit Nolte beschäftigt, da wir gerne eine farbige Landhausküche hätten. Folienfronten wollen wir nicht haben, Echtholz liegt leider nicht im Budget. Nach meinen ersten Recherchen blieb nicht mehr viel übrig, so fiel unsere erste Wahl auf eine Nolte Windsor Lack in Tiefblau, evtl. auch Quarzgrau, da müssen wir nochmal ein paar Nächte drüber schlafen.
Kinder sind noch nicht da, aber zukünftig geplant, deswegen ein Tisch für 4 Personen.
In der Küche bräuchten wir nur ein kleines Gefrierfach, für alltägliche Dinge. Der Rest kommt in eine Gefriertruhe im Keller.
Vorräte werden hauptsächlich in der Speisekammer gelagert. Gutes Geschirr im Wohnzimmer. Dort soll auch noch ein Tisch für bis zu 10 Personen hin.
Altpapier und Plastikmüll soll in der Speisekammer gesammelt werden.
Meine bisherige Planung sieht vor:
Planoben von links:
60er Kühlgefrierkombi, 150cm hoch
60er Auszugsschrank
60er Geschirrspüler
60er Spülenschrank
30er MUPL
Tote Ecke
Planrechts von oben:
30er Auszug für Gewürze
80er Kochfeld mit Auszügen
30er Auszug für Öle etc.
60er Schrank für DGC, evtl später Mikrowelle 150cm hoch
Planlinks von unten:
60er Auszugsschrank
15er Weinregal
60er Auszugsschrank
darüber passend dazu Hängeschränke mit Sprossen
in der Mitte ein 100er Auszugsschrank für zusätzlichen Stauraum, als reine Arbeitsinsel mit angrenzendem Tisch. Dieser soll in Arbeitsplattendekor sein, aber gerne auf Tischhöhe.
Habt ihr noch Anregungen und Verbesserungsvorschläge für uns?
Liebe Grüße
Jacqueline und Daniel
Checkliste zur Küchenplanung
Personenkriterien und Ergonomie
Anzahl Personen im Haushalt: 2
Davon Kinder: keine
Körpergrößen aller Hauptbenutzer in cm (wegen Arbeitshöhe ): 158, 178
Welche Arbeitshöhe ist angedacht (in cm)?: 91
Gebäudekriterien
Art des Gebäudes: Bestandsbau > Umbauten ausgeschlossen, Eigentum
Brüstungshöhe des Fensters (in cm): 91
Fensterhöhe (in cm):
Raumhöhe in cm: 250
Heizung: Heizkörper wie im Grundriss
Sanitäranschlüsse: fix
Einbaugerätekriterien
Ausführung Kühlgerät: Integriert im Hochschrank (60cm)
Einbaukühlgerät Größe: Noch unbekannt
Ausführung Tiefkühl (TK)-Gerät: Im Kühlschrank bis 2 Schubladen unten
Dunstabzugshaube: Umluft
Hochgebauter Backofen : ja
Geplante Heißgeräte: Dampfbackofen (DGC) ohne Wasseranschluß
Hochgebauter Geschirrspüler : nein
Art des Kochfeldes: Induktion
Kochfeldbreite (ca. in cm): 80
Sitzmöglichkeiten
Sitzmöglichkeit in der Küche / im Küchenbereich: Arbeitsplatte in Tischhöhe
Sitzmöglichkeit: Für wieviel Personen?: Für 4 Personen
Sitzmöglichkeit: Tisch - wenn gesonderter Tisch oder offene Küche: Wird nach Bedarf neu gekauft
Gewünschte oder vorhandene Tischgröße: 80 x 120
Wofür soll der Sitzplatz in der Küche genutzt werden und wie häufig: Frühstück, Mittagessen, Abendessen, wenn kein Besuch da ist
Stauraumplanung
Was steht auf der Arbeitsplatte oder soll dort stehen?: Kaffeemaschine, Wasserkocher, Küchenmaschine, Allesschneider, Obstschale
Welche weiteren Küchenmaschinen müssen in der Küche untergebracht werden: Pürierstab
Was soll in der Küche außer den Standards untergebracht werden: N. a.
Welchen Stauraum gibt es sonst noch: Geschirr/Gläserschrank im Wohn-/Esszimmer, Speisekammer, Keller
Kochgewohnheiten
Was/wie wird gekocht? (Alltagsküche, Menüs, Snacks usw): Alltagsküche
Wie häufig wird gekocht: Ab und zu
Wird alleine gekocht? Oder auch gemeinsam? Mit und für Gäste?: meistens zu zweit
Spülen und Müll
Spülenform: 1 1/2 Becken mit Abtropffläche
Welche Mülltrennung soll in der Küche vorgehalten werden: Biomüll, Restmüll
Sonstiges
Steht schon ein Küchenhersteller fest oder wird bevorzugt: Nolte
Steht schon ein Gerätehersteller fest oder wird bevorzugt:
Küchenstil: Landhausküche
Was stört an der bisherigen Küche und was soll die neue Küche unbedingt können? Warum?:
Preisvorstellung (Budget): 12000€
Angehängte Dateien
Anhänge
-
20200720_200112.jpg103,2 KB · Aufrufe: 171 -
20200720_200120.jpg98,6 KB · Aufrufe: 164 -
20200720_200140.jpg63,1 KB · Aufrufe: 153 -
20200720_200148.jpg77,2 KB · Aufrufe: 190 -
Ansicht 1.PNG729,9 KB · Aufrufe: 181 -
Ansicht 2.PNG674,9 KB · Aufrufe: 183 -
Ansicht 3.PNG891,8 KB · Aufrufe: 192 -
Draufsicht.PNG67 KB · Aufrufe: 188 -
Grundriss EG.jpg689,2 KB · Aufrufe: 172 -
Küche aktueller Plan.PNG35,9 KB · Aufrufe: 167
