Unbeendet Küche in Dachgeschosseigentumswohnung

Menina1

Mitglied
Beiträge
29
Hallo Ihr Lieben,

ich bin wieder zurück.
Leider ist uns was mit dem Haus dazwischen gekommen und nun haben wir uns eine Eigentumswohnung angeschafft, in die eine neue Küche eingebaut werden muss.

Ich füge euch ein Bild mit dem Grundriss bei und ein richtiges Bild, wie ich mir die Küche vorstelle, stelle ich rein, wenn ich kapiert habe, wie ich die Wände verschieden einstellen kann beim Alnoplaner, falls das überhaupt geht. Weiß das einer von euch?
(Füge schon mal eins mit geraden Wänden ein :-))

Könnt ihr euch mal meine Idee ansehen und mir evtl. mit Verbesserungsvorschlägen aushelfen?

Vorab sei gesagt, dass im Moment eine Ikea -Küche drin steht, die über Eck geht. Also unter der Schräge und unterm Fenster. An der Wand gegenüber dem Fenster steht ein Side-By-Side Kühlschrank und ein rechteckiger Esstisch. Ich werde mal darum bitten, dass sie mir Fotos von der jetzigen Situation schicken.

Vielen Dank schon mal im Voraus für eure Ideen..
LG
Jessi


Checkliste zur Küchenplanung von Menina1

Anzahl Personen im Haushalt : 2
Davon Kinder? : keine
Körpergrössen aller Hauptbenutzer (wegen Arbeitshöhe ) in cm : 159 cm und 172 cm
Art des Gebäudes? : Bestandsbau, Umbauten ausgeschlossen
Brüstungshöhe des Fensters (in cm) : 110
Fensterhöhe (in cm) :
Raumhöhe in cm: : 250
Heizung : Heizkörper wie im Grundriss hinter der Tür
Sanitäranschlüsse : fix
Ausführung Kühlgerät? : Integriert im Hochschrank
Kühlgerät Größe : noch unbekannt
Ausführung Tiefkühl (TK)-Gerät : Im Kühlschrank ab 3 Schubladen unten
Dunstabzugshaube? : Umluft / Abluft
Hochgebauter Backofen ? : Ja
Hochgebauter Geschirrspüler ? : nein
Kochfeldart? : Induktion
Kochfeldbreite ca. (in cm)? : 80 cm oder größer
Spülenform: : 1 Becken
Weitere geplante Heißgeräte : Einbaumikrowelle
Küchenstil? : schlicht modern
Sitzmöglichkeit in der Küche / im Küchenbereich als : Keine
Sitzmöglichkeit: Für wieviel Personen? : nein
Sitzmöglichkeit: Tisch - wenn gesonderter Tisch oder offene Küche : Keine
Gewünschte o. vorhandene Tischgröße : keine
Wofür soll der Sitzplatz in der Küche genutzt werden? Wie häufig? : gar nicht
Welche Arbeitshöhe ist angedacht (in cm)? : 91 cm
Was steht auf der Arbeitsplatte oder soll dort stehen? : Kaffeemaschine, Wasserkocher, Messerblock, Obstschale
Welche weiteren Küchenmaschinen müssen in der Küche untergebracht werden? : Toaster, Schneidemaschine (z. B. in Schublade), Handrührgerät, Mixer, Pürierstab
Was soll in der Küche außer den Standards untergebracht werden? : Sonstiges (evtl. im Beitragstext benennen)
Welchen Stauraum gibt es sonst noch? : Geschirr/Gläserschrank im Wohn-/Esszimmer, Speisekammer
Was/wie wird gekocht? (Alltagsküche, Menüs, Snacks usw) : alles immer mal
Wie häufig wird gekocht? : (fast) täglich 1x warm
Wird alleine gekocht? Oder auch gemeinsam? Mit und für Gäste? : zu zweit, manchmal mit Gästen
Was stört an der bisherigen Küche und was soll die neue Küche unbedingt können? Warum? : wenig Stauraum
Preisvorstellung (Budget) : bis 10.000,-
 

Anhänge

  • Grundriss.jpg
    Grundriss.jpg
    54,9 KB · Aufrufe: 257
Zuletzt bearbeitet:
AW: Küche in Dachgeschosseigentumswohnung

Hello again!

Du kannst Wände schräg stellen, indem du unten links bei Drehen die passende Zahl selber eingibst. Wenn du den Winkel nicht kennst, dann eben 1° eingeben und solange drehen, bis es stimmt.
Dabei auch das Häkchen bei "Rotation bei Wandberührung" entfernen.
 
AW: Küche in Dachgeschosseigentumswohnung

okay, mache ich dann direkt mal, wenn ich nach Hause komme ;-)

DANKE
 
AW: Küche in Dachgeschosseigentumswohnung

Verstehe ich das richtig: es ist sowas wie eine Maisonette und das da oben sind wirklich nur Küche, Wohnzimmer, Abstell und WC? Was ist das für eine Wand da senkrecht zwischen Wohnzimmer und Küche? Leichtbau? BEstimmt nix Tragendes, oder?
Wie würdest Du ggf. zum Thema offene Küche und "Leichtbauwand entfernen" stehen? ;-)
 
AW: Küche in Dachgeschosseigentumswohnung

genau tantchen, unten sind die Schlafräume..
ähm, Wand kann raus, sind keine tragenden Wände.
Möchte ich aber nicht.. :-)

Müssen also so wie bisher weiter planen..
 
AW: Küche in Dachgeschosseigentumswohnung

Wo kommt denn dann der Esstisch hin? Würde sich halt anbieten im Wohnzimmer planoben, wenn man von der Küche aus noch einen Durchgang macht mit Schiebetüre. Sonst rennt man ja mit dem Essen immer durch die halbe Wohnung, sogar zum Frühstücken. Ihr habt ja derzeit auch keinen kleinen Sitzplatz in der Küche gewünscht.

OK, ich ess derzeit auch oft im Stehen in der Küche, aber sobald man mal zu zweit ist oder es sich gemütlich machen will, trag ich auch alles ins Wohnzimmer rüber. Mein Essplatz in der Küche ist eben immer vollgestellt.
Weg dürfte etwa gleich weit sein. Nicht, dass das jetzt soooo schlimm wäre, aber der direkte Weg wäre mir schon auch lieber. Ging halt net. Bei Euch ginge es ;-)

Wo genau ist denn die Heizung? Und an welcher Wand der Wasseranschluss? Hätte ja vermutet, zum Bad rüber oder in der Wand zwischen WZ. und Küche köntne was sein (nach dem geg. Grundriss halt)
Und das Fenster dort ist das Einzige? Keine Dachfenster mehr?
 
AW: Küche in Dachgeschosseigentumswohnung

tantchen:
Esstisch kommt ans untere Ende vom Wohnzimmer.
Habe sonst keinen Platz für meine Wohnwand, die ich behalten möchte.

Vll sollte ich mir doch überlegen an der Insel einen Platz für zwei Personen zu "basteln"
Da kann man immerhin beim Kochen zusehen bequem sitzen :-) ist mir gerade eingefallen :-) und in 37 cm tiefen Schränken passt auch nicht sooo viel rein. Ich probiere das mal

So, die Heizung ist glaub ich an der Wand zum Wohnzimmer.
Wie gesagt, ich frag mal nach aktuellen Bildern. (Ziehe erst im Oktober da ein)
Aber bei acht Wochen Lieferzeit und es soll ja die Küche werden, die die nächsten 20 Jahre da drin steht möchte ich ein bischen "länger" planen.
Ja, wo ist die Spüle.. ich glaube die war unterm Fenster. Menno, ich brauche echt Fotos..
Achja ein Dachfenster hab ich auch. Das ist genau mittig. (habe ich bei Alno aber nicht gefunden)

Versuche mich jetzt an die Schrägstellung, klappt irgendwie nicht.
ich stell wieder ein :-)
 
AW: Küche in Dachgeschosseigentumswohnung

so, habe mich noch mal rangesetzt.
Jetzt hab ich zwar die Küche schief, aber die Wand nicht, naja, wird schon passen :-)
 

Anhänge

  • PLAN1.POS
    5,4 KB · Aufrufe: 207
  • PLAN1.KPL
    4,1 KB · Aufrufe: 186
  • Plan1.jpg
    Plan1.jpg
    30,7 KB · Aufrufe: 214
AW: Küche in Dachgeschosseigentumswohnung

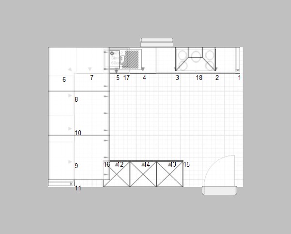
:grundriss:

Hmm, das kann doch so gar net funktionieren mit dem spitzen Winkel im Grundriss planoben links. Oder hast da die AP tiefer und dem Winkel angepasst?
 
AW: Küche in Dachgeschosseigentumswohnung

Grundriss kommt:
 

Anhänge

  • GrundrissPlan1.KPL
    4,1 KB · Aufrufe: 187
  • GrundrissPlan1.POS
    5,4 KB · Aufrufe: 187
  • Unbenannt.jpg
    Unbenannt.jpg
    14,8 KB · Aufrufe: 191
AW: Küche in Dachgeschosseigentumswohnung

Nein, ich meinte ein Bild vom Grundriss (edit: etwas größer bitte...) und vll. noch ein paar weitere Ansichten. Einige Leut hier können mit den Alnodateien nichts anfangen. ;-)
 
AW: Küche in Dachgeschosseigentumswohnung

wie krieg ich den richtig hier rein?
 
AW: Küche in Dachgeschosseigentumswohnung

Ich glaub es war Strg + Alt + S in der Planungsansicht im Alno . Dann bietet er an, das Bild zu speichern.
 
AW: Küche in Dachgeschosseigentumswohnung

okay, kommt die Tage.. hab ein bisl Arbeit

da ist es..
 

Anhänge

  • Plan1I.jpg
    Plan1I.jpg
    39,6 KB · Aufrufe: 199
  • Plan1II.jpg
    Plan1II.jpg
    37,8 KB · Aufrufe: 201
  • Plan1III.jpg
    Plan1III.jpg
    44 KB · Aufrufe: 202
  • Plan1IV.jpg
    Plan1IV.jpg
    39,7 KB · Aufrufe: 194
  • GrundrisPlan1.jpg
    GrundrisPlan1.jpg
    24,7 KB · Aufrufe: 203
AW: Küche in Dachgeschosseigentumswohnung

ich weiß, dass das nicht richtig passt.
Können die Küchenbauer die APL durchziehen? Ja, das geht, oder? Ich hätte die gerne auch zum Fenster durch, wenn das mit der Brüstung klappt. Die von Magnolia gefällt mir sehr gut, die ganze Küche :-)

in meiner jetzigen Küche, habe ich z.B. (weil Altbau und auch so schräg) nur einen 45 cm tiefen Auszugsschrank.
Wisst ihr, wie das funktioniert mit 60 cm Schränken? Weil die Küche die jetzt drinsteht (in der neuen Wohnung) hat nur 60er Schränke (also tief)
 
AW: Küche in Dachgeschosseigentumswohnung

Ich denke, das mit der Insel geht so nicht. Die Durchgänge sind rundherum alle zu schmal, vor allen die Ecke gleich links neben der Türe. Es sollten mindestens 85-90cm sein.
 
AW: Küche in Dachgeschosseigentumswohnung

hm.. ich hätte so gerne eine Insel und einen hochgebauten Backofen ..
habt ihr noch eine Idee?

Ich hab da nochmal getestet..
siehe Anlage!!

mein Problem ist, dass ich nicht wirklich weiß wohin mit dem Herd. Wegen der Schrägen hab ich das Problem mit der Abzugshaube, ich will die nicht weglassen.
 

Anhänge

  • GrundrissPlan2.JPG
    GrundrissPlan2.JPG
    28,7 KB · Aufrufe: 190
  • Plan2I.jpg
    Plan2I.jpg
    34 KB · Aufrufe: 192
  • Plan2II.jpg
    Plan2II.jpg
    32,3 KB · Aufrufe: 199
  • Plan2III.jpg
    Plan2III.jpg
    34 KB · Aufrufe: 196
  • Plan2IV.jpg
    Plan2IV.jpg
    30,8 KB · Aufrufe: 183
  • Plan2.KPL
    4,1 KB · Aufrufe: 178
  • Plan2.POS
    8,8 KB · Aufrufe: 192
AW: Küche in Dachgeschosseigentumswohnung

Als erstes musst Du den Raum mal richtig nachbauen. Hierzu legst Du ihn etwas grösser an und arbeitest mit den Zusatzwänden, welche Du dann schräg stellen kannst.

So wird das nix.

Es gibt Dachschrägenhauben und Adapterstücke für Dachschrägen .. also daran muss Kochen unter der Schräge nicht scheitern.

Durchgänge müssen mindestens 90cm breit sein - das wird sonst eine Kombüse (da brauchst Du zumindest einen Segelschein ;-), wenn nicht ein Hochseepatent).
 
AW: Küche in Dachgeschosseigentumswohnung

so, noch ein Versuch,
ich glaube Insel geht echt nicht :-(
sehr schade..
 

Anhänge

  • PLAN3.KPL
    4,1 KB · Aufrufe: 185
  • PLAN3.POS
    6,8 KB · Aufrufe: 196
  • Plan3I.jpg
    Plan3I.jpg
    26,9 KB · Aufrufe: 218
  • Plan3II.jpg
    Plan3II.jpg
    22,3 KB · Aufrufe: 186
  • Plan3III.jpg
    Plan3III.jpg
    22,6 KB · Aufrufe: 203
  • GrundrissPlan3.jpg
    GrundrissPlan3.jpg
    33,9 KB · Aufrufe: 184
AW: Küche in Dachgeschosseigentumswohnung

Ne Insel ist nicht, aber evt. wäre es sinnvoll die Unterschränke unter der Schräge übertief zu machen bzw. nach vorne zu ziehen.
 

Ähnliche Beiträge

Neff Hausgeräte Ballerina Küchen Blum Bewegungstechnologie Weibel - Intelligente Küchenlüftung

Neff Spezial

Blum Zonenplaner

Weibel Abluft-Tuning

Weibel Abluft-Tuning
Zurück
Oben