Unbeendet Küche für Neubau

trebor3

Mitglied
Beiträge
3
Hallo,

ich bin neu hier im Forum und wir planen für unseren Neubau unsere Küche (logisch, sonst würde ich hier ja nichts schreiben :-)). Wir sind vor allem dankbar für Tipps bzgl. des optimalen Küchenherstellers für uns.

Ergänze an dieser Stelle nun den Text ein wenig, da ich gemerkt habe, dass der Eintrag ewig geworden ist. Uns geht es wirklich hauptsächlich darum, den optimalen Hersteller zu finden, was das Preis-Leistungs-Verhältnis betrifft. Also wen der lange Text abschreckt vielleicht einfach nur einen Blick auf den Grundriss werfen und hier die allgemeinen Informationen.

Hier erst mal allgemeine Informationen zur geplanten Küche:
- grifflos, also keine aufgesetzten Griffe
- Front: Lack, weiß matt
- Arbeitsplatte : Kunststoff beschichtet (Beton schiefergrau, Arbeitsplattenhöhe ca. 91-92 cm), alternativ: Granitarbeitsplatte
- 7 Hochschränke (fast alle für Geräte-Einbau)
- 1 aufgesetzter Jalousieschrank
- 4 Schubladen-Unterschränke je 1,00 m (davon 1x Spüle)
- 4 Schubladen-Unterschränke je 0,90 m (davon 1x Induktionskochfeld)
- 4 Schränke (35 cm tief) hinter der Kochinsel, aber auf dem Boden stehend

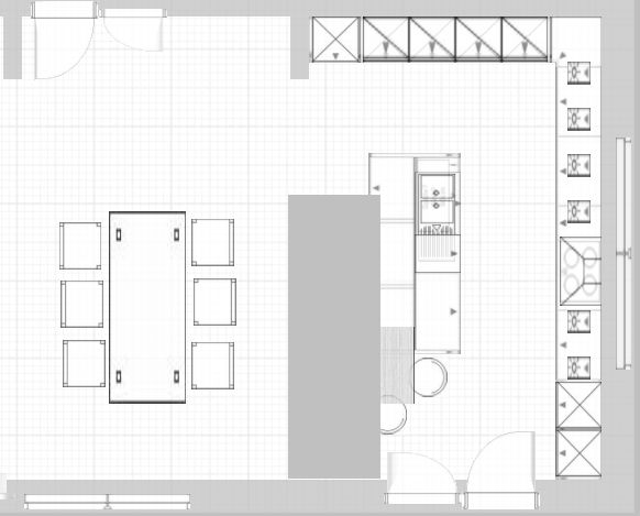
Zum besseren Verständnis des Grundrisses:
Schrankseite (3,80 m lange Seite)
- Die fünf Hochschränke auf der 3,80 m langen Seite sollen möglichst hoch sein, da wir 2,67 m Raumhöhe haben.
- In diese Hochschränke kommen folgende Einbaugeräte:
- ein großer Kühlschrank von Neff
- Backofen /Dampfgarer-Kombination von Siemens
- Backofen von Siemens (mit Pyrolyse ) von Siemens
- Bockofen/Mikrowelle -Kombination von Siemens
- ein großer Tiefkühlschrank von Neff
- Die Schränke sollen unten alle Schubladen haben.
- Platztechnisch muss hier grifflos so geplant werden, dass neben Kühlschrank (rechts) und neben dem Tiefkühlschrank (links) die Griffleiste ist und dann ein Abschluss, damit für die drei Schränke in der Mitte jeweils horizontale Grifleisten hinkommen können.
- In der Ecke ein aufgesetzter Jalousieschrank (von der Höhe passend zu den Schränken daneben und möglichst so tief wie möglich)
- In die Ecke unter dem Jalousieschrank keinen Unterschrank (also tote Ecke)

Arbeitsplatte und zwei Schränke auf der langen Seite am 3,01 m Fenster
- Über der Arbeitsplatte keine Oberschränke
- Vier Unterschränke je 1,00 m breit mit zwei Auszügen
- davon ein Spülenschrank mit Sockel -Cargo 1,00 m breit; 2x24 und 2x10 Liter
- breite Spüle (Silgranit von BLANCO ) nur ein Spülbecken, ohne Abtropfbereich
- Einhebelmischer wie BLANCO ALTA Compact (keine Ahnung, ob Hochdruck oder Niederdruck), in Edelstahl gebürstet
- der erste Hochschrank mit Schubladen unten und einem hochgebauten Geschirrspüler
- Beim Geschirrspüler ein Großraum-Geschirrspüler hochgebaut, da geht bei grifflos und ohne Griffmulde vermutlich nur "knock to open"
- Der andere Hochschrank mit Schubladen unten und oben Schranktüren

Kochinsel

- 4x 90 cm Unterschränke
- Die Unterschränke so, dass oben jeweils eine Besteckschublade ist
- ein Unterschrank für den Einbau eines 80 cm Induktionskochfelds von Siemens
- Die Arbeitsplatte ca. 92 cm tief.
- Auf der Rückseite dann 35 cm tiefe Schränke (bei Nolte dann wohl Oberschränke)

Folgende Geräte sollen eingebaut werden (da sind wir aber prinzipiell auch flexibel):
- Geschirrspüler : Siemens SX836D01PE
- Backofen : Siemens HB674GBS1
- Backofen /Mikrowelle : Siemens HM656GNS1
- Backofen /Dampfgarer: Siemens HS636GDS1
- Kühlschrank: Neff KI1813F30
- Tiefkühlschrank: Neff GI7813C30
- Kochfeld: Siemens EX875KYE1E
- Dunstabzugshaube: Berbel Skyline Edge 2 (115 cm, weiß)

So, das war dann doch ein ewig langer Eintrag ;-).

Hoffe, ich habe alles richtig beschrieben.

Vielen Dank im Voraus und viele Grüße
Robert

Checkliste zur Küchenplanung

Anzahl Personen im Haushalt: 4
Davon Kinder?: 2
Art des Gebäudes?: Neu-/Umbau, Planänderungen nicht möglich
Körpergrössen aller Hauptbenutzer (wegen Arbeitshöhe ) in cm: 1,72 und 1,63
Brüstungshöhe des Fensters (in cm): 1,07
Fensterhöhe (in cm): 1,14
Raumhöhe in cm: 2,67
Heizung: Fussbodenheizung
Sanitäranschlüsse: fix
Ausführung Kühlgerät: Integriert im Hochschrank (60cm)
Kühlgerät Größe: bis 178 cm Höhe
Ausführung Tiefkühl (TK)-Gerät: Eigenständiges Gerät bis 178 cm Höhe
Dunstabzugshaube: Umluft
Backofen etc. hochgebaut?: Ja
Hochgebauter Geschirrspüler ?: Ja
Kochfeldart: Induktion
Kochfeldbreite ca. (in cm)?: 80 oder 90
Spülenform: 1 Becken ohne Abtropffläche
Geplante Heißgeräte: Einbaumikrowelle, Backofen, Dampfbackofen (DGC) ohne Wasseranschluß
Küchenstil: Grifflos
Sitzmöglichkeit in der Küche / im Küchenbereich: Tresen in Barhöhe
Sitzmöglichkeit: Für wieviel Personen?: für 4 Personen
Sitzmöglichkeit: Tisch - wenn gesonderter Tisch oder offene Küche: Keiner
Gewünschte o. vorhandene Tischgröße: Es ist eine offene Küche und der Esstisch steht parallel zur Theke.
Wofür soll der Sitzplatz in der Küche genutzt werden? Wie häufig?: zum Helfen, für Freunde,
selten

Welche Arbeitshöhe ist angedacht (in cm)?: 92 cm
Was steht auf der Arbeitsplatte oder soll dort stehen?: Obstschale
Welche weiteren Küchenmaschinen müssen in der Küche untergebracht werden?: Küchenmaschine, Wasserkocher, Toaster, Handrührgerät, Mixer, Pürierstab, Sonstiges (evtl. im Beitragstext benennen)
Was soll in der Küche außer den Standards untergebracht werden?: ALLE Vorräte, Geschirr komplett (nichts in Ess-/Wohnzimmer)
Welchen Stauraum gibt es sonst noch?: Hauswirtschaftsraum
Was/wie wird gekocht? (Alltagsküche, Menüs, Snacks usw): Alltagsküche
Wie häufig wird gekocht?: (fast) täglich 1x warm
Wird alleine gekocht? Oder auch gemeinsam? Mit und für Gäste?: eher alleine
in Zukunft mit den Kindern
ab und zu für Gäste, weniger mit Gästen

Was stört an der bisherigen Küche und was soll die neue Küche unbedingt können? Warum?: großer Tiefkühlschrank, momentan ist unser ca. 100 l
Welche Mülltrennung soll in der Küche vorgehalten werden?: Altpapier, Gelber Sack Müll, Restmüll
Steht schon ein Küchenhersteller fest oder wird bevorzugt?: nein, flexibel
Steht schon ein Gerätehersteller fest oder wird bevorzugt?: Backöfen von Siemens; Induktionskochfeld von Siemens; Kühlschrank und Tiefkühlschrank von Neff; Geschirrspüler von Miele
Preisvorstellung (Budget): bis 25.000,-
-----------------
Im Threadverlauf hinzugekommen:
Planskizze als JPG aus PDF-Datei gewandelt:

trebor3_201703_PlanskizzealsJPG.jpg
 

Anhänge

  • kueche.pdf
    1,3 MB · Aufrufe: 290
Zuletzt bearbeitet von einem Moderator:
:welcome:

Das nenne ich mal ein große Küche. An der Seite planrechts ist eine Längenangabe von 600 cm.
Die Schrankmaße ergeben aber ca. 584 cm.
Möchtest du die Hochschrankwand vorziehen ?
Wenn der GSP hochgebaut wird reichen nicht die angegebenen 122 cm, bsw. nur wenn der rechte Hochschrank ganz an der Wand steht, da links neben dem GSP Umbau eine Wange stehen muss.Hier würde ich rechts auch noch eine Wange setzen ( Gesamtbreite dann 125 cm )
Die 380cm HS Wand müsste gerade soeben passen. Je nach Hersteller variieren die Breiten der Profilwangen für den KS und GS.
Ich gehe mal davon aus, dass der Tresen noch auf die 92cm tiefe APL soll. Bedenke das da beim Kochen keiner im Kochfeldbereich sitzen kann, da er sonst in Fett etc. badet. ;-)
 
auch von mir ein herzliches :welcome:.
Für Spülmaschinen gibt es ein Push to open zum nachrüsten, benötigt m.W. ca. 8 cm in der Höhe.
Ansonsten *nette* Küche, bin mal gespannt wo sich das hin entwickelt.
Einige Anbieter haben auch einen Open-assist (p2o), das klopfen ist glaub out ;-)

Viel Spass hier und viel nützlichen Input wünscht Küchenschreiner Samy
 
ihr wollt wirklich soviel laufen, in der Länge und zwischen den Zeilen (2,30m)? ne oder? ihr müsst sehr jung und fit sein. Schreib mal die Gesamtlänge rein, ich rechne es nicht aus.

Und verlinke die Geräte, denn suchen tuen wir auch nicht.

Der KS ist soooo weit weg von allem, man kann nicht mal was ablegen (Zeilenabstand 150cm zur Insel).
 
Danke für die Tipps und Hinweise :-)
  • @llllincoln: Die beiden Schränke mit dem Geschirrspüler werden sicherlich durch die Wangen insgesamt breiter, stimmt.
  • Bei den 3,80 m haut es gerade so mit den Schränken hin, haben wir uns schon mal durchrechnen lassen.
  • Bei der Tresenlösung sind wir uns selber noch nicht 100% im Klaren, wie es nachher aussehen soll. Wollen von der Esstischseite auf jeden Fall einen erhöhten Tresen zum Dransitzen. Der soll dann auch noch zu sein, so dass man ein wenig Sichtschutz in der Küche hat und nicht jeder gleich das Schlachtfeld vom Esstisch aus sieht ;-). Könnte eine aufgesetzte Theke sein, wo ein Teil über dem Küchenblock ist und mind. 25 cm herausragen, damit man nachher dran sitzen kann. Variante 2 wäre, dass die hinteren Schränke gleich höher sind und da drauf dann die Theke montiert ist.
  • @Schreinersam: Danke für den Tipp mit dem Open-Assist beim Geschirrspüler . Da werde ich mal nach schauen.
  • @Evelin: In unserer alten (also aktuellen) Küche im jetzigen Haus ist die Küche ein U und zwischen Kühlschrank und Theke 1,70 m Abstand. Das U hatte uns immer genervt, da man sich gegenseitig schnell im Weg stand. Und auch innerhalb des "Schlauchs" denken wir, dass es in Zukunft mit den 2,30 m anz angenehm ist etwas Abstand zu haben, um auch mal mit mehreren Personen sich nicht ständig auf die Füße zu treten. Zumal hat halt der Grundriss mit der Fensterbreite den Abstand sowieso vorgegeben. Mal sehen wie unsere Erfahrung mit der Küche ist. Beim nächsten Haus planen wir dann vielleicht wieder ganz anders ;-).

Hat denn jemand noch einen Tipp, welcher Küchenhersteller bei einer grifflosen Küche am besten geeignet ist? Wir sind momentan da ziemlich ratlos und jeder Verkäufer erzählt etwas anderes. Auch sind wir uns nicht sicher, was einer fairer Preis für die Küchenmöbel inkl. Montage ist :rolleyes: ?????
Aktuell wurden uns Schüler, Nobili und Nolte vorgeschlagen...

Da ich einen Mac habe, war ich schon mit dem Nolte-Online-Küchenplaner am Basteln, aber sehr lustig ist das irgendwie nicht ;-). Mal sehen, ob ich es noch hinkriege.
 
Zum Thema Hersteller denke ich das es keine schlechten Lieferanten mehr gibt. Bauformat und Wellmann sind als sehr preiswerte Hesteller gleich zu setzen mit deinen genannten. Ich finde die grifflosen Bauformat Küchen mit unten Tipp on sehr chic und praktisch.
IMG_2223.JPG

Nach unten zu greifen ist sehr unbequem.
Vorteil ist, dass unten noch ein Kasten Wasser passt.
 
Zuletzt bearbeitet:
@trebor3 ... ich fürchte, da werdet ihr schon nach einem Jahr die Riesenabstände verteufeln.

Zeig doch mal den Gesamtgrundriss ... Inseln kann man ja auch stellen und man kann drehen usw.

Ich finde auch die Hochschränke planunten rechts nicht toll. 122 cm reicht auch nicht für erhöhte GSP und Hochschrank . Da ist ja dann kein Spiel zur Wand mehr.
 
Hallo Kerstin,

zwischen Arbeitsplatte und Theke sind ca. 2,00 m Abstand. Wir wollen die Küche durch die erhöhte Theke auf jeden Fall ein wenig "zumachen". Somit muss die Theke zwangsläufig bis zur Wand gehen und das Fenster gibt halt den Abstand dann vor. In einem Jahr wissen wir mehr, ob es uns da schon stört und wir werden berichten ;-).

Man könnte höchstens den "Eingang" in die Küche kleiner machen, also die Theke noch etwas verlängern. Hätte den Vorteil zur Ablage von Sachen aus dem Kühlschrank und andersrum. Nachteil aber natürlich, dass man sich am "Eingang" in die Küche gegenseitig im Weg steht (noch dazu bei offener Kühlschranktür).

Alternativ könnte der Kühlschrank auch auf die andere Seite der fünf Hochschränke. ist das besser?

Zu den zwei Schränken (im Plan unten rechts):
Momentan haben wir über der Arbeitsplatte auch ein schmales Fenster und darüber Hängeschränke. Uns hatte immer gestört, dass man durch das schmale Fenster nicht so richtig rausschauen kann. Deswegen jetzt beim neuen Haus ein höheres Fenster. Aber dadurch kriegt man oben keine Hängeschränke mehr hin. Damit wir noch Stauraum haben (vor allem für Geschirr) muss da ein Schrank hin. Spielraum haben wir ja noch, die beiden Schränke haben von der Breite her eigentlich 1,40 m Platz bis zum Fenster. Da habe ich im handgezeichneten Plan einfach ein schlechtes Maß verwendet ;-).

Infos zum Grundriss:
- Die Theke soll bündig mit dem Mauerbacken abschließen.
- An der Theke soll man sitzen können.
- Der Esstisch steht dann parallel dazu (am "DA" kann man sich orientieren).
- Ein Raumteiler (nicht raumhoch) trennt Wohnen vom Essen, damit es keinen Hallencharakter hat.
- Im Raumteiler ist dann ein Tunnelkamin und dann zum Wohnen hin der Fernseher.
- Hinter dem Fernseher ist auf der Seite "Essen" ein eingebautes Regal für Receiver, Lautsprecher etc.

Wohnen Essen Kochen.jpg
 
@trebor3 ... also ... sorry .. das ist ein Riesenraum, sitzen an der Theke dann wieder parallel zum Tisch, da dürften dann die Stuhlrücken nicht allzuweit voneinander entfernt sein.

Wie weit ist denn der Hausbau? Lohnt es sich, noch Änderungen anzudenken und dir mal etwas ganz anderes zu zeigen? Also, was ich konkret meine ist insbesondere Wasser und Elektro?

Geschirr bringt man übrigens besser in Auszugsunterschränken unter, da kommen dann auch kleinere Kinder gut ran ;-) und, man muss keine Tellerstapel in die Höhe hiefen.

Zum Angucken, wie Stauraum genutzt werden kann:
Gerbera mit ganz vielen übertiefen Auszügen
Stauraumnutzung von doppelkeks und die Küche dazu
Küche von Moiree
Küche von KerstinB und nach dem Umzug (hier kann man gut sehen, was man alles alleine in Schubladen unterbringen kann)
Menorcas Küche (auch viele Schubladen)

Küche von Jelena
Küche von Ulla
Nekos Küche
Darlas Küche
Magnolias Küche
Vanessas Küche
Hemerocallis Küche
Littlequeenies Küche
Angelikas Küche
Küche von atmos
Küche von biggimaus
Küche von Bodybiene
Küche von Missjenny
Küche von Conny (auch übertiefe Auszüge)
Küche von träumerle
Muckelinas Küche (interessante Variante mit aufgesetzten Griffen)
Mr. Woms (Esthers) ;-) Schreinerküche
Küche von Ullmann
Küche von chrome17
 
Zuletzt bearbeitet:
Brüstungshöhe des Fensters (in cm): 1,07
Fensterhöhe (in cm): 1,14
Raumhöhe in cm: 2,67
Die BRH von 128 cm im Gesamtplan ist dann wohl ab Rohfußboden und da kommen noch 21 cm Fußbodenaufbau dazu?
Zwischen Decke und Fensteroberkante sind aber auf jeden Fall ca. 46 cm Platz? Oder ist die Raumhöhe von 267 cm auch auf Rohfußboden bezogen und im Endstadium dann 246 cm?
 
Ich musste es jetzt machen. Wie immer mit Spüleninsel, weil man ja vielmehr vorbereitet, als dass man wirklich am Kochfeld steht.

Und jetzt vor allem mit echter Insel, rundum mind. 120 cm Zeilenabstand
trebor3_20170320_kb1_12b_Grundriss.jpg


TK-Schrank ist nach planunten rechts zum Vorratsschrank gewandert, erhöhte GSP dafür zwischen die Heißgeräte.

Statt Jalousienschrank ein * Ulla-Schrank *.

In der Spüleninsel 100 Spülenschrank für 80er Doppelbecken (da kann man auch mal etwas verstecken) -50 er * MUPL * - 100er Auszugsunterschrank.

Von der Rückseite 3x80er mit Blenden unterbrochen.

Thekenplatz als aufgesetzte Tischplatte 100x100 auf der Ecke, dann sitzt man auch kommunikativer.

Den Tisch auf Mitte Deckenauslass Lampe ausgerichtet mit 100x250 cm.
Da sieht man gut, was ich im vorherigen Beitrag mit Stühlen "Rücken an Rücken" meinte:
trebor3_20170320_kb1_12b_GrundrissEigPlan.jpg

Der graue Block entspricht der aktuell geplanten Halbinsel.

Muss jetzt leider weg.
 

Anhänge

  • trebor3_20170320_kb1_12b.KPL
    4,1 KB · Aufrufe: 150
  • trebor3_20170320_kb1_12b.POS
    14,4 KB · Aufrufe: 173
  • trebor3_20170320_kb1_12b_Ansicht6.jpg
    trebor3_20170320_kb1_12b_Ansicht6.jpg
    34,2 KB · Aufrufe: 206
  • trebor3_20170320_kb1_12b_Ansicht5.jpg
    trebor3_20170320_kb1_12b_Ansicht5.jpg
    23,4 KB · Aufrufe: 231
  • trebor3_20170320_kb1_12b_Ansicht4.jpg
    trebor3_20170320_kb1_12b_Ansicht4.jpg
    26,1 KB · Aufrufe: 231
  • trebor3_20170320_kb1_12b_Ansicht3.jpg
    trebor3_20170320_kb1_12b_Ansicht3.jpg
    22,1 KB · Aufrufe: 221
  • trebor3_20170320_kb1_12b_Ansicht2.jpg
    trebor3_20170320_kb1_12b_Ansicht2.jpg
    24,5 KB · Aufrufe: 199
  • trebor3_20170320_kb1_12b_Ansicht1.jpg
    trebor3_20170320_kb1_12b_Ansicht1.jpg
    30,6 KB · Aufrufe: 217
für die Kochfeldzeile übrigens eine * Decken-DAH, Links und Bild im Lexikon * verwendet. Da kann dann auch die Beleuchtung in die Abhängung integriert werden und man braucht keine Löcher in der Betondecke.

Über der Spüleninsel kann man 2 Deckenauslässe machen für schöne Pendelleuchten. Und im Gang vor den Hochschränken die geplanten Deckenleuchten.
 

Ähnliche Beiträge

Neff Hausgeräte Ballerina Küchen Blum Bewegungstechnologie Weibel - Intelligente Küchenlüftung

Neff Spezial

Blum Zonenplaner

Weibel Abluft-Tuning

Weibel Abluft-Tuning
Zurück
Oben