Kleine Küche mit Essbereich

@ Omas Garten. Stimmt der Eingangsbereich wirkt dadurch offener freundlicher und die Sitzgelegenheit wirkt im stimmiger. Jedoch wäre das GästeWC dann ohne Fenster und man müsste ein Lüfter installieren. Müssen mir abwägen.

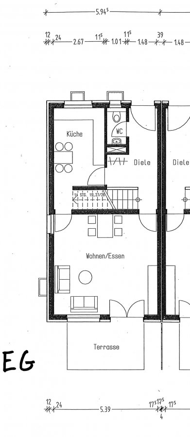
Die Sitzgelegenheit ist halt der große Wunsch den wir haben. Glaube von dem hohen GSP haben wir uns schon verabschiedet. 39 ist falsch dass soll 393 heißen. Sorry
 

Anhänge

  • 733C0297-CA88-473E-A28A-3FE5C4F856C4.jpeg
    733C0297-CA88-473E-A28A-3FE5C4F856C4.jpeg
    112,6 KB · Aufrufe: 159
  • DF01BAFD-21A4-4A9E-8F71-0C3E4D67B056.jpeg
    DF01BAFD-21A4-4A9E-8F71-0C3E4D67B056.jpeg
    46,8 KB · Aufrufe: 168
also das ist auch wieder mal eine ungeschickte Wasserposition. Bitte messen von der Wand planlinks bis außen warm bis außen kalt, bzw von planrechts bis außen kalt.
 
Zuletzt bearbeitet:
ich weiß nicht, wie man da mehr Sitzplätze hinbekommen will, ohne ständig Slalom zu laufen. Ich habe die OS mal ausgeblendet.

282651

grün ist die GSP Tür.

Könnte Sanitär auch woandershin vom Keller aus verlegt werden?
 
Ohne mit meinem Sanitärmann zu sprechen würde ich mal sagen dass es geht. War der Meinung dass die Leitungen und Abfluss im Moment eh vom Keller hoch kommen.
 
Ach Du Schande, ich hatte in Omas Planung die neue Tür völlig übersehen - ich schiebe es mal auf das Alter... Omas Lösung ist ziemlich clever und würde Eure Wünsche verwirklichen. Das fensterlose Gästeklo ist nicht perfekt, abet das ist ein Problem, dass sich lösen lässt. Ich würde eine Nacht drüber schlafen (jetzt, dass ich sie auch verstanden habe ;-)
 
@isabella, trotzdem ist Oma's Küche vom Stauaum her sehr wenig. Mit 2 Kleinkindern (älteste 2.5J) brauch man sehr viel Platz und Abstellfläche. Und das sehe ich in Oma's Planung nicht gegeben.

Für die kids braucht man einen kleinen Tisch für die triptraps + Platz für den "Fütterer". Auch bin ich mir nicht sicher, wie einfach der Toilettenabgang zu realisieren ist.

Und wo ist dann die Garderobe für 4 Personen. Wo steht eigentlich der Kinderwagen?
 
oder den Durchgang planlinks unten schließen. Stauraum und Abstell-/Arbeitsfläche äre mehr, der Raum wäre auch luftiger.

282708282709
 
@Evelin, ja, der Grundriss passt nicht zu den Wünschen, aber die Idee, den direkten Zugang zum Wohnzimmer zu schließen, würde die Situation entschärfen und ist gut!
Oder eine schöne Küche mit großem Esstisch im unteren Raum mit direktem Terrassenzugang und ein Kuschel-Familien-TV-Raum dort, wo heute die Küche ist. Wenn das Haus unterkellert ist würde das gehen.
 
Die Überlegung, planunten eine große, gemütliche Wohnküche und in der eigentlichen Küche ein kuscheliges Wohnzimmer zu planen, finde ich auch super Erfahrungsgemäß findet ja ein Großteil des Familienlebens in der Küche statt.
Dafür bräuchten wir die Maße des Raumes und das Okay des Installateurs, wohin das Wasser/Abwasser verlegt werden könnte. Strom ist ja an der Kellerdecke relativ flexibel zu verlegen...
 
@Evelin Den Zugang zum Keller zuzumachen haben wir uns auch überlegt. Da die Küche wie schon oft gesagt relativ klein ist und Stauraum fehlt wollten wir vieles im Keller aufbewahren. Zudem wäre die Bewirtung/Essenslieferung ins Wohn/Esszimmer erschwert.
@isabella Generell finde ich die Idee nicht schlecht jedoch glaube ich dass der Raum auch für ein Wohnzimmer zu klein ist zumindest kann ich mir es noch nicht vorstellen. Das Wohnzimmer ist 5,30 x 5,1m (ohne Gewehr :-)) jedoch könnte die Treppe (Beton) in Keller ein Problem sein die Leitung dort hinzubekommen.

Mit solchen Ideen habe ich ja garnicht gerechnet aber ich sagte ja zu allen Schandtaten bereit :rofl:. Nicht falsch verstehen, denn genau solche Ideen wollte wo man selber nie daran denke würde wollte ich. Klasse
 
tja, dann kann ich hier nicht mehr weiterhelfen, der Raum ist zu klein, für das, was du möchtest.
 
Von wegen alle Schandtaten: wie wäre die Idee, das WC in den Keller zu verlegen? Das würde richtig Platz in EG schaffen für Garderobe, Küche, Kinderwagen-Parkplatz u.ä.
 
Habe meiner Frau auch mal vorgeschlagen das WC zu entfallen lassen aber das fand sie nicht so toll. Stimmt für den Kinderwagen gibt es kein Platz den lassen wir jedoch draußen in einem Gartenhäuschen direkt vor dem Hauseingang.
 
Hier mal noch eine Idee für Eure Küche mit geschlossenem Kellerzugang und WC an alter Stelle:
282733

Ab planlinksoben gegen den Uhrzeigersinn:
Blende
HS Vorräte
HS Kühli
HS GSP (grün davor die offene Klappe)
30 Auszüge (Stellplatz für Kaffee)
60 Spüle
40 MUPL
tote Ecke
100 Auszüge und Schubladen
90 Auszüge mit 60er KF rechtsbündig
Wange
HS mit Heißgeräten
Blende
Nische für 60er Garderobenschrank

Der Esstisch steht planobenrechts in der Ecke; ich habe jetzt mal mit einem abgerundeten geplant, der mehr Bewegungsfreiheit in der Küche bietet. Der planoberste HS ist nicht so gut zu erreichen; deshalb dort Vorräte.

282732
 

Ähnliche Beiträge

Neff Hausgeräte Ballerina Küchen Blum Bewegungstechnologie Weibel - Intelligente Küchenlüftung

Neff Spezial

Blum Zonenplaner

Weibel Abluft-Tuning

Weibel Abluft-Tuning
Zurück
Oben