Unbeendet Hilfe benötigt bei zweizeiliger Küche

In meinen Augen großer Unsinn, du verlierst mit jedem kleinen Schrank Stauraum und Geld. Ich würde mich an Evelins (oder meinen Vorschlag) halten.

Außerdem kein MUPL und Spülmaschine maximal im Weg
 
Ihr Lieben,

nachdem wir noch einmal einen neuen KFB bemüht haben, hat dieser noch folgende Aufteilung in den Raum geworfen.
Dazu müsste zumindest der Wandteil planoben entfernt werden, was ja aber machbar wäre.
MUPL bliebe erhalten, was mir sehr wichtig ist. Ansonsten ergäbe sich eine recht schöne Durchreichesituation. Der Durchgang wäre mMn eventuell etwas eng, GSP recht mittig.
Mögt ihr eventuell noch einmal optimieren?
Den Plan habe ich eben ganz dilettantisch aus dem Kopf nachgestellt, bevor ich ihn wieder vergesse.
Noch einmal ganz lieben Dank an euch.
 

Anhänge

  • Neue Planung.JPG
    Neue Planung.JPG
    27,5 KB · Aufrufe: 176
Ganz ehrlich, ich traue mittlerweile keinem KFB mehr über den Weg:stocksauer:
Interessanterweise hat er uns diese Variante aber günstiger angeboten, als die zweizeilige Variante, die E-Geräte sind verblieben.
 
Kitty, entweder hängst du die pos+kpl an oder beschreibst die Planung mit ein paar Bildern, ansonsten kann man nicht viel sagen.
 
Sorry...
Ich dachte, der Ausschnitt mit dem Snipping Tool wäre ausreichend gewesen für einen kurzen Blick.
 

Anhänge

  • PLAN2.POS
    5,5 KB · Aufrufe: 167
Ich hab mich auch noch einmal über deine Planung hergemacht.

Ein paar Frage hab ich noch zu den Maßen:
- Die Breite der planoberen, also der Fensterwand ist mit 340cm angegeben, richtig?
Diese 340cm stehen im vermaßten Plan aber auf der Wohnzimmerseite. Muss man dann auf der Küchenseite die 11cm Wandstärke der linken Wand noch abziehen?
- Ebenso ist die Tiefe der Küche mit 301cm angegeben, im Alnoplaner hast du den Raum aber nur mit 296cm angelegt (was jetzt nicht wirklich einen entscheidenden Unterschied macht)?

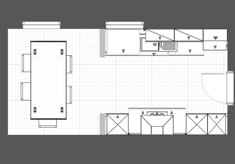
Und nun zur Küche:
Der Wasseranschluss und das Loch für die DAH sind recht nah beieinander. Das ist unpraktisch, da die Hauptarbeitsfläche - wenn möglich - zwischen Spüle und Kochfeld sein sollte.
Welchen Durchmesser hat das DAH-Loch überhaupt? Früher waren 10cm üblich, heutige Hauben verlangen mindestens 12,5 oder besser noch 15cm Durchmesser. Das würde bedeuten: größer bohren, neu bohren oder die Alternative Umlufthaube.

Es gibt sehr gute Umlufthauben, die halt auch ihren Preis haben, aber nachdem du kein Budget angegeben hast ... ;-). Aus eigener Erfahrung kann ich den Hersteller Berbel für Umluft empfehlen. Effizient gegen Fett, gut gegen Gerüche (das Essen auf dem Teller oder aus dem BO riecht auch, und hoffentlich lecker) und recht leise.

Deshalb, und auch um dir den höhergestellten Geschirrspüler zu ermöglichen, habe ich das Kochfeld mit Umlufthaube auf die planuntere Seite verlegt (die ich jetzt auch 340cm breit angelegt habe).
Der Zeilenabstand mit knapp 150cm ist bei jeweils Übertiefe der Zeilen von 75cm noch im Bereich des machbaren, empfohlen wird ja mindesten 90cm bis 120cm.

Spülenzeile: 90cm US - 60cm Spüle - 40cm MUPL - 80cm US - 60cm GSP mit Wangen. Hier wegen des Fensters circa 92cm Arbeitshöhe .
Kochfeldzeile: Blende - 60cm Kühlkombi - 2x80cm US mit Kochfeld mittig - 60cm BO - 50cm Vorratsschrank mit Innenauszügen. Hier gerne auch etwas höhere Arbeitshöhe. Ich habe bei 173cm Größe meine Halbinsel auf 96cm.

kittyrama_mca_V1_A1.JPG kittyrama_mca_V1_A3.JPG

kittyrama_mca_V1_A2.JPG kittyrama_mca_V1_G.JPG
 

Anhänge

  • kittyrama_mca_V1.KPL
    3,9 KB · Aufrufe: 157
  • kittyrama_mca_V1.POS
    7,7 KB · Aufrufe: 160

Ähnliche Beiträge

Neff Hausgeräte Ballerina Küchen Blum Bewegungstechnologie Weibel - Intelligente Küchenlüftung

Neff Spezial

Blum Zonenplaner

Weibel Abluft-Tuning

Weibel Abluft-Tuning
Zurück
Oben