Unbeendet Austausch Küche im Reihenhaus

Eri

Mitglied
Beiträge
6
Hallo zusammen,

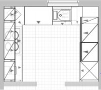
nachdem ich hier schon sehr viel gelesen habe möchte ich meine Planung gerne zur Diskussion stellen, da ich mit den Gegebenheiten nicht so zurecht komme wie ich gerne wollte. Mein Problem ist die linke Seite - Dunstabzug - Eckoberschrank - Spülmaschine....Der Wasserab- und zulauf ist Aufputz von rechts (Versorgungsschacht) kommend bis Mitte Spüle. Der alte Mauerkasten 10 cm führt durch den Versorgungschacht und kann nicht erweitert werden!!! Daher Seitenwechsel....
Es gibt keine Türe nur einen Durchgang. Das Wohnzimmer befindet sich 6 Stufen tiefer(Halbstockversetzte Bauweise) das Esszimmer auf gleicher Höhe. Entfernung der Wände entfällt leider, da der Aufwand zu groß wäre. Der Geschoßgrundriß ist ohne endgültige Türplanung...
So jetzt habe ich hoffentlich alles was für einen 1. Eindruck notwendig ist beigefügt.
Ich freu mich über eure Meinung zu dieser Kleinküchenplanung.
Liebe Grüße Erika

Checkliste zur Küchenplanung

Anzahl Personen im Haushalt: 2
Davon Kinder?:
Art des Gebäudes?:
Bestandsbau, (kleinere) Umbauten möglich
Körpergrössen aller Hauptbenutzer (wegen Arbeitshöhe ) in cm: 168/178
Brüstungshöhe des Fensters (in cm): 124
Fensterhöhe (in cm): 94
Raumhöhe in cm: 243
Heizung: Keine Heizung
Sanitäranschlüsse: fix
Ausführung Kühlgerät: Integriert im Hochschrank (60cm)
Kühlgerät Größe: bis 178 cm Höhe
Ausführung Tiefkühl (TK)-Gerät: Im Kühlschrank als kleines Fach oben
Dunstabzugshaube: Abluft
Backofen etc. hochgebaut?: Ja
Hochgebauter Geschirrspüler ?: Nein
Kochfeldart: Induktion
Kochfeldbreite ca. (in cm)?: 80
Spülenform: 1,5 Becken ohne Abtropffläche
Geplante Heißgeräte: Dampfgarer ohne Wasseranschluß, Backofen
Küchenstil: Modern
Sitzmöglichkeit in der Küche / im Küchenbereich: Keine
Sitzmöglichkeit: Für wieviel Personen?: Nein
Sitzmöglichkeit: Tisch - wenn gesonderter Tisch oder offene Küche: Keiner
Gewünschte o. vorhandene Tischgröße:
Wofür soll der Sitzplatz in der Küche genutzt werden? Wie häufig?:
Welche Arbeitshöhe ist angedacht (in cm)?:
92
Was steht auf der Arbeitsplatte oder soll dort stehen?: Kaffeemaschine, Wasserkocher, Küchenmaschine
Welche weiteren Küchenmaschinen müssen in der Küche untergebracht werden?: Allesschneider (z. B. in Schublade)
Was soll in der Küche außer den Standards untergebracht werden?: ALLE Vorräte
Welchen Stauraum gibt es sonst noch?: Geschirr/Gläserschrank im Wohn-/Esszimmer, Hauswirtschaftsraum, Keller
Was/wie wird gekocht? (Alltagsküche, Menüs, Snacks usw): Alltagsküche
Wie häufig wird gekocht?: (fast) täglich 1x warm
Wird alleine gekocht? Oder auch gemeinsam? Mit und für Gäste?: 2 Personen manchmal auch für Gäste
Was stört an der bisherigen Küche und was soll die neue Küche unbedingt können? Warum?: Geringe Arbeitshöhe, Eckrondell.
Dampfgaren, da ich Gemüse über alles liebe

Welche Mülltrennung soll in der Küche vorgehalten werden?: Biomüll, Gelber Sack Müll, Restmüll
Steht schon ein Küchenhersteller fest oder wird bevorzugt?: Schüller C2 (Contur Resopal) oder Ballerina
Steht schon ein Gerätehersteller fest oder wird bevorzugt?: Gerne Neff aber nicht zwingend
Preisvorstellung (Budget): bis 15.000,-
-------------------
Im Threadverlauf hinzugekommen:
Gedrehter vermaßter Küchenplan der bisherigen Küche
kueche-alt-jpg.215335

Dazu Maße Wasseranschluß der Wand planoben:

img_2984-jpg.215333
 

Anhänge

  • Alnoplaner.JPG
    Alnoplaner.JPG
    129 KB · Aufrufe: 516
  • Grundriss.JPG
    Grundriss.JPG
    125,2 KB · Aufrufe: 394
  • Küche alt.JPG
    Küche alt.JPG
    78,2 KB · Aufrufe: 295
  • Typenplan.JPG
    Typenplan.JPG
    180,8 KB · Aufrufe: 432
Zuletzt bearbeitet von einem Moderator:
:welcome: im Küchen-Forum.

Super, dass du dich bereits in den Alno eingearbeitet hast. Würdestdu noch bitte die kpl.- und pos.-Dateien hochladen. Welchen Planer benutzt du? Ich vermute den 16beta. Der ist leider nicht mit den früheren Versionen, die wir verwenden, kompatibel.
 
Hallo Mela, ich hatte den Alno KPL 15b, kann aber nichts hochladen, da ständig eine Fehlermeldung kommt. Reicht der bereits abfotografierte Typenplan (oben) nicht aus? Müsste ich evtl. eine andere Version benützen (haben Windows 10 installiert) bin techn. leider nicht so versiert - sorry.
Danke für eine kurze Info.
Erika
 
Der eingestellte Plan ist ausreichend, da die Zahlen leserlich sind. Allerdings sollten wir uns auf eine Ausrichtug einigen, damit es nicht zu Begriffsverwirrungen kommt. Du darfst festlegen. ;-)
 
Danke...
Der Alnoplan ist von der Ausrichtung her mit dem Bauplan identisch. Habe das Foto gedreht und die restlichen Ansichten der alten Küche beigefügt.

Grüssle
Erika
 

Anhänge

  • IMG_2984.JPG
    IMG_2984.JPG
    141,8 KB · Aufrufe: 1.770
  • IMG_2985.JPG
    IMG_2985.JPG
    105,4 KB · Aufrufe: 262
  • Küche alt.JPG
    Küche alt.JPG
    123,3 KB · Aufrufe: 2.395
  • IMG_2983.JPG
    IMG_2983.JPG
    119,3 KB · Aufrufe: 251
Jetzt habe ich den Kopf frei, um mich um deine Planung zu kümmern. Sie bereits sehr gut und ich habe nur Kleinigkeiten geändert.
Beachten musst du, dass der OS zwischen den HS und dem Schacht ein Sondermaß hat, und deswegen etwas mehr kosten wird. Allerdings wird dies, wenn dein Küchenstudio die Blockverrechnung anwendet, nicht gesondert ausgewiesen.

Getauscht habe ich an der Spülenseite die GSM mit dem US, damit diese nicht im Laufweg ist, und an der Kochfeldseite das Kochfeld rechtsbündig auf den letzten US gesetzt. Rechtsbündig deswegen, damit die Ellenbogenfreiheit zur Wand hin hast.
Ich habe die Schränke oben eingekoffert. Auf der Kochfeldseite wegen der Abluftführung und an den HS, damit dir das lästige Putzen auf den Schränken erspart bleibt.
Ich habe einen Lüfterbaustein als DA gewählt, da du beim Reinigen Schwierigkeiten bekommst, wenn diese Press zwischen den OB sitzt.
Der Abstand zu den Wänden ist bewusst gewählt. Einmal dass die DA korrekt über dem Kochfeld sitzt und zum Zweiten, dass die Optik stimmt.
Auf einen Eckoberschrank würde ich verzichten, denn er ist eine Katastrophe. Kann ich behaupten, da meine Tochter einen besitzt.
Übrigens habe ich die Alno -Version 14b.
 

Anhänge

  • eri_Mela.KPL
    3,9 KB · Aufrufe: 197
  • eri_Mela.POS
    6,8 KB · Aufrufe: 189
  • eri_Mela_Draufsicht.JPG
    eri_Mela_Draufsicht.JPG
    105,3 KB · Aufrufe: 312
  • eri_Mela_Grundriss.JPG
    eri_Mela_Grundriss.JPG
    40,8 KB · Aufrufe: 285
  • eri_Mela_HS.JPG
    eri_Mela_HS.JPG
    94,5 KB · Aufrufe: 284
  • eri_Mela_Kochfeld.JPG
    eri_Mela_Kochfeld.JPG
    83,9 KB · Aufrufe: 287
  • eri_Mela_Spüle.JPG
    eri_Mela_Spüle.JPG
    74,8 KB · Aufrufe: 286
Hallo Mela,
lieben Dank für deine Planung. Der rechte Oberschrank neben den HS könnte vielleicht ein 80er werden - habe bei der jetzigen Küche 81,5 cm bis zur Wand!???? Den Geshirrspüler kann ich nicht tauschen, da Frisch- und Abwasser auf der Wand bis Mitte Spüle vom Versorgungsschacht her kommend laufen und der 50er Schrank verkürzt sein muss - oder ich müsste die Küche vorsetzen und die Arbeitsplatte tiefer machen.
Leider kann ich die KPL und POS Datei nicht öffnen. Lüfterbaustein ist wahrscheinlich besser wie Flachschirmhaube oder? Dann kümmere ich mich jetzt mal um die Geräte.

Lieben Gruß
Erika
 
Der GSP kann mit längeren Schläuche auch weiter weg vom Anschluss platziert werden.
.kpl und .pos musst Du im entsprechenden Alno -Verzeichnis herunterladen und dann im Alno öffnen.
 
Das der geschirrspüler nicht zu tauschen ist, ist schade. Anscheinend habe deinen Hinweis überlesen. Mach aber auf jeden Fall den KFB darauf aufmerksam.
In welcher Höhe verlaufen denn die Rohre? Im Sockelbereich, der wäre bei euch 14 cm ist es doch kein Problem.
Mir persönlich gefallen Lüfterbausteine besser als Unterbauhauben.
 
isabella,
das ist schon klar, aber es geht darum, dass die Wasseranschlüsse auf Putz verlegt wurden und planrechts ist nur ein 50er US möglich.
 
Hallo zusammen,
ich habe mir gestern mal eine Pseudowand neben meinem jetzigen Herd aufgebaut und muss sagen ich bin nicht sehr glücklich damit die Kochstelle ganz außen auf der linken Seite einzubauen. Da ich eh noch am rumspielen bin...würdet ihr die APL der Fensterseite tiefer machen um den Geschirrspüler nach rechts verlegen zu können oder ist das in Bezug auf die linken Oberschränke unpraktisch? Was für einen Lüfterbaustein könntet mir empfehlen - er sollte nicht zu laut sein...Weiß Jemand wie die Kanten der weißen Resopalfronten bei Ballereinaküchen verarbeitet sind (weiß oder dunkel??)
Freu mich was dazu zu hören.

Liebe Grüße Erika
 
hier mein Vorschlag.

Links neben die HS ein 80er Rolloschrank auf dem 50er US, darüber noch ein 80er OS.

Planoben rechts beginnend
tote Ecke
60er US 3-3 mit Spüle
50er US 3-3 mit MUPL oben
60er GSP
totes Eck

60er US
90er US mit Kochfeld
15er US für öle/Backbleche/Geschirrhandtücher
Blende

OS nur an der planlinken Seite. Es müsste ein neues Loch für die Abluft gebohrt werden.

Eri1.JPG Eri2.JPG Eri3.JPG Eri4.JPG
 

Anhänge

  • Eri_E_PLAN1.KPL
    3,9 KB · Aufrufe: 179
  • Eri_E_PLAN1.POS
    8,1 KB · Aufrufe: 171
Ich denke die Übertiefe an der Spülenseite bringt dir nichts, denn weder die Spüle noch den GSM gibt es in Übertiefe. Außerdem müsste planlinks der 80er US schmaler werden.
Wenn dann planlinks die Übertiefe, die GSM leider im Laufweg und den US schmaler.
 
@Eri, wenn das Wasser aus dem Schacht kommt, dann kann man es ja evtl. nach planrechts rübersetzen.

Idealerweise würde man für die folgende Planung den Durchgang in die Küche etwas nach rechts versetzen, dann könnte man die Hochschränke an die Wand links planunten stellen. Ich denke aber, so müßte es auch noch gehen. Daher einmal von rechts unten:
  • leicht erhöhte GSP mit Stellplatz Kaffeemaschine
  • 50er Auszugsunterschrank 1-1-2-2 Raster, Stellplatz Küchenmaschine
  • 60er Spülenschrank
  • tote Ecke um den Schacht
  • 30er * MUPL *
  • 80er Auszugsunterschrank 1-1-2-2
  • 80er Auszugsunterschrank 1-1-2-2
  • 40er Auszugsunterschrank 1-1-2-2 oder 2-2-2 (Gewürze, Kochvorräte etc.)
Hochschrank dann links an der Wand.

Auszüge sollten so gerade aufgehen, Platz vorm Kochfeld wäre ausreichend. DAH-Ausgang könnte direkt nach außen gebohrt werden. Und schöne Arbeitsfläche am Fenster zwischen Spüle und Kochfeld.
 

Anhänge

  • Eri_20160626_kb1-alt.KPL
    4,1 KB · Aufrufe: 178
  • Eri_20160626_kb1-alt.POS
    6,2 KB · Aufrufe: 174
  • Eri_20160626_kb1-alt_Grundriss.jpg
    Eri_20160626_kb1-alt_Grundriss.jpg
    16,7 KB · Aufrufe: 232
  • Eri_20160626_kb1-alt_Ansicht5.jpg
    Eri_20160626_kb1-alt_Ansicht5.jpg
    20,7 KB · Aufrufe: 237
  • Eri_20160626_kb1-alt_Ansicht4.jpg
    Eri_20160626_kb1-alt_Ansicht4.jpg
    25,7 KB · Aufrufe: 254
  • Eri_20160626_kb1-alt_Ansicht3.jpg
    Eri_20160626_kb1-alt_Ansicht3.jpg
    24,3 KB · Aufrufe: 227
  • Eri_20160626_kb1-alt_Ansicht2.jpg
    Eri_20160626_kb1-alt_Ansicht2.jpg
    25,4 KB · Aufrufe: 275
  • Eri_20160626_kb1-alt_Ansicht1.jpg
    Eri_20160626_kb1-alt_Ansicht1.jpg
    18,9 KB · Aufrufe: 236
Und, wenn das mit dem Wasser so gar nicht möglich ist, dann nochmal eine Variante mit ebenfalls erhöhter GSP.

Backofen und DGC hier getrennt untergebracht. Oberkante Gerät wäre bei ca. 165 cm ... das könnte grenzwertig sein. Obere Einschubebene wäre jeweils bei ca. 145 cm. Das muss man auf jeden Fall probieren.

Wieder von rechts unten:
  • Blende
  • 60er Hochschrank für Kühlschrank
  • erhöhte GSP mit 45er Heißgerät obendrüber
  • 50er Auszugsunterschrank 7 rasterig 2-3-2, im oberen Raster noch 10 cm Blende daneben. Obendrüber dann der 60er Backofen . Wie würde sich ein Slide&Hide-Backofen von Neff anbieten.
  • Bis zum Schacht dann eine ca. 20 bis 22 cm breite Drehtürfront hinter der nur 1 oder 2 Fachbretter sind. Da kann man ganz unten ein schmales Gerät einstellen und im nächsten Brett nicht benötigte Backbleche etc. senkrecht einstellen.
  • tote Ecke
  • 80er Auszugsunterschrank für die Spüle, so dass man gut 20 cm vom Schacht wegkommt.
  • 90er * Samy-Schrank *, unten ein 90 cm breiter Auszug, rechts oben dann 45 cm in 3-rasterig als * MUPL * und links dann 1-2rasterig auch in 45 cm Breite z. B. für Messer, Küchenhelfer etc.
  • tote Ecke
  • 90er Auszugsunterschrank 1-1-2-2
  • 80er Auszugsunterschrank 1-1-2-2
DAH auch als Lüfterbaustein. Dafür würde ich dann 120 cm DAH-Schrankbreite vorsehen. Schränke nur in ca. 78 cm Höhe, nach oben Verkofferung mit einer Blende. Dahinter kann dann der Abluftkanal (Flachkanal) auf den Schränken zur Außenwand geführt werden.
 

Anhänge

  • Eri_20160626_kb2-alt.KPL
    4,1 KB · Aufrufe: 190
  • Eri_20160626_kb2-alt.POS
    8,2 KB · Aufrufe: 190
  • Eri_20160626_kb2-alt_Grundriss.jpg
    Eri_20160626_kb2-alt_Grundriss.jpg
    32,8 KB · Aufrufe: 253
  • Eri_20160626_kb2-alt_Ansicht5.jpg
    Eri_20160626_kb2-alt_Ansicht5.jpg
    29,9 KB · Aufrufe: 240
  • Eri_20160626_kb2-alt_Ansicht4.jpg
    Eri_20160626_kb2-alt_Ansicht4.jpg
    22,3 KB · Aufrufe: 281
  • Eri_20160626_kb2-alt_Ansicht3.jpg
    Eri_20160626_kb2-alt_Ansicht3.jpg
    25 KB · Aufrufe: 250
  • Eri_20160626_kb2-alt_Ansicht2.jpg
    Eri_20160626_kb2-alt_Ansicht2.jpg
    24,1 KB · Aufrufe: 247
  • Eri_20160626_kb2-alt_Ansicht1.jpg
    Eri_20160626_kb2-alt_Ansicht1.jpg
    19,4 KB · Aufrufe: 251
Hallo zusammen,
nachdem ich jetzt 2 Wochen nur mit Küche und Geräten beschäftigt war hier meine voraussichtliche "Endlösung". Es wird jetzt doch wieder eine Flachchirmhaube - an einen Lüfterbaustein traut sich keiner so recht ran...

Geräte:
Induktionsfeld 80 cm Siemens EH 845SP17E
Backofen 60 cm Neff BCR2522 mit Pyrolyse
Dampfbackofen 45 Neff CFS1524N
Kühlschrank Siemens KI40FP60
Spüle Blanco Andano 340/180-IF-A
Beim Dunstabzug hänge ich noch in den Seilen...
Neff D49ED52XO (einfach) oder Berbel BEH 90 FLT
Bin mir leider nicht im klaren darüber ob ich etwas falsch mache, wenn ich die Neff nehme.
Sorry, aber ich bin technisch etwas minderbemittelt und habe die Verlinkung der Geräte nicht hinbekommen.
Schaut doch bitte mal drüber - aber ich denke es ist so eine gute Entscheidung.
Rechts neben der Spüle ist ein verkürzter Schrank mit 3-2-1 Innenschubladen.

Danke und Grüße
Erika
 

Anhänge

  • Küche 1.JPG
    Küche 1.JPG
    44,8 KB · Aufrufe: 290
  • Küche 2.JPG
    Küche 2.JPG
    37,2 KB · Aufrufe: 296
  • Küche 4.JPG
    Küche 4.JPG
    43,8 KB · Aufrufe: 724
  • Küche 3.JPG
    Küche 3.JPG
    34 KB · Aufrufe: 270
  • Küche 2.JPG
    Küche 2.JPG
    37,2 KB · Aufrufe: 239
  • Küche 3.JPG
    Küche 3.JPG
    34 KB · Aufrufe: 236
  • Küche 4.JPG
    Küche 4.JPG
    43,8 KB · Aufrufe: 271
  • Küche 26.06.16.JPG
    Küche 26.06.16.JPG
    61,2 KB · Aufrufe: 240
Vielleicht solltest du dir noch meine Lösung ansehen @Eri

Und, zum Link einfügen. Einfach die Adresse der Herstellerseite mit dem Produkt kopieren und dann hier im Beitrag mit dem "Kettensymbol" einfügen. Wenn man dadrüber schwebt erscheint der Hinweis "Link einfügen", es öffnet sich dann ein kleines Fenster und man kann den vorher kopierten Link mit STRG+V einfügen.
 
@Eri bleibt's bei deiner Lösung? Sie ist ja gut, auch wenn ich KerstinB's #14 auch ganz pfiffig gefunden hätte. Wäre halt etwas mehr Aufwand mit dem Wasserverlegen, dafür bekämst du eine hochgestellte GSP.

Schon bestellt?
Ansonsten würde ich noch etwas ändern und die Oberschränke nicht um die Ecke ziehen. An den Eckhängeschrank kommt man nur mäßig gut, der wird dann zum "Dinge- die-man-selten-benutzt-Grab". Statt der zwei schmalen OS rechts und links von der Ecke dann einen weiteren viel besser zu nutzenden und zu bestückenden breiten OS.
Die Optik wird dadurch auch deutlich moderner.
 

Ähnliche Beiträge

Neff Hausgeräte Ballerina Küchen Blum Bewegungstechnologie Weibel - Intelligente Küchenlüftung

Neff Spezial

Blum Zonenplaner

Weibel Abluft-Tuning

Weibel Abluft-Tuning
Zurück
Oben