Fertig mit Bildern "Alte" Küche in Eigentumswohnung mitnehmen

Vielleicht habe ich irgendwo was verpasst... im Originalgrundriss steht die Kloschüssel ganz woanders als in Kerstins Variante, daher mein Kommentar. Aber dafür gibt es Architekten.
 
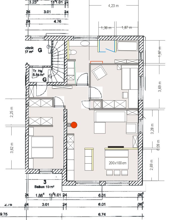
Wir haben nocheinmal ein bisschen rumgespielt, und sind zu einem neuen Bad gekommen, naja, fast neu :-)

Mit einem seperatem WC, nicht ganz am Ende des Raumes
 

Anhänge

  • variante8_bild1.JPG
    variante8_bild1.JPG
    152,6 KB · Aufrufe: 231
Ich denke, du wirst im Wohnzimmereingangsbereich sehr eng. Der Kamin erscheint mir unrealistisch klein. Du mußt ja berücksichtigen, dass auch noch ein Kaminschacht dazukommt. Die Kücheninsel wird auch immer länger ;-)

Im Flur .. Durchgangsbereich Kommode? (gibt es die schon?) und Türen Kinderzimmer/Bad ist auch relativ eng.

Bad: Mir gefällt die Tür gleich neben der Dusche nicht so gut. Und, nur 80 cm Tiefe für die Dusche? Die würde ich schon versuchen mit 90 cm Tiefe zu planen. Nachteil des WCs am Ende ist, jeder Gast muss immer komplett durch den Bad-Privat-Bereich.

Soll an der 180 cm Wand im Schlafzimmer noch etwas gestellt werden? Wenn nein, dann würde ich mir den Wandstummel, der den SZ-Eingang eng macht, sparen.

Der 225 cm - Schrank, den ihr da habt, ist der so schön, wertvoll etc.? Ich würde ja die Schlafzimmeraufteilung aus meinem Vorschlag 2 bevorzugen:
patrick_p_20150208_Grundrissvorschlag2.jpg


Da ist die Nische im Schlafzimmer eben ca. 204 cm breit und es passen 4x100er Schränke, z. B. eben Ikea -Pax. Und im Bett liegend sieht man nichts von dieser Kleiderecke. Tür kann dann eben nur ca. 80 cm breit sein.
 
Hmm, ja, stimmt, der Schacht... Da warten wir mal auf Mittwoch was der Architekt da sagt.
Die Kücheninsel is nicht länger.... 1x 60er Spülenunterschrank, links und rechts daneben je ein 90er US (neu kaufen).
die Küchenzeile planlinks ist länger geworden, weil wir alle unsere US dort nun untergebracht haben. Zur Not muss da eben 1 Schrank draußen bleiben.
Ja, die blöde lange Kommode gibt es schon, kein muss, aber es soll erstmal mit. Muss ma dann schauen ob es eng wird.
Die Türen Kinderzimmer/Bad sind mit 90er Türen gerechnet, wie es im Original Architektenplan steht. Ob eine 80er auch reicht? was genau heist denn das eigentlich? ist das Türblatt selbst 80/90 oder muss das Loch in der Wand das sein?
Die zwei Türen sind aber bei dir sind noch enger beinander gerechnet? Oder was meinst du da genau?
Die Dusche können wir noch 10 cm breiter machen, das geht mit den Wänden Bad Planunten, ich dachte, das 80 ein "Standard" ist.
Naja, alles geht halt nicht im Bad. Und so haben wir einen Kompromiss, der ein Clogänger und ein Duscher zulässt. Und dann sieht der Gast eben unsere tolle Badewanne :-)
Am Wandstummel soll nocheinmal ein Schrank oder eine Kommode hin für Unterwäsche z.b. Irgendwann vielleicht auch nocheinmal ein Schwebetürenschrank, dafür die 180cm.
Der Frau gefällt die deinige andere, waagrechte Schrankaufteilung leider nicht. Mal schauen was der Architekt sagt, vielleicht kann er sie noch umdrehen :-) Der Schrank ist nicht schön/wertvoll. Aber wir wollen nicht alles neu kaufen. Das Schlafzimmer ist nun vielleicht 2 Jahre alt... Wir überlegten auch schon, den großen Schrank gleich in das Gästezimmer zu packen. Und für uns dann zwei gleich große Schränke zu kaufen. Mal sehen was Mittwoch rauskommt
 
Ich meine den Durchgang vorbei an Kommode quasi in die Türennische zu Kinderzimmer/Bad.

Ich denke, dass 240 cm für die Insel in dem Raum doch recht lang sind. Ich hatte ja an z. B. 60er Spülenschrank, 40er MUPL und 60 bis 80er Unterschrank gedacht. Dafür nach planoben und nach planrechts Trockenbauwand um dort jeweils die APL leicht überstehen zu lassen.
 
Bzgl. Dusche kann ich anmerken:
Wir haben derzeit eine Dusche mit ca. 80x80cm, 3 Seiten gemauert, vorne eine Doppeltür.
Die Duschtasse ist sogar noch etwas kleiner (70x80 oder 75x80cm?) und dann geht die Duscharmatur noch von der Breite ab. Die Dusche ist uns nicht zu klein.
Ihr plant nun 120x80, d.h. mindestens 1/3 größer als wir es derzeit haben. Das reicht locker, auch wenn man z.B. stark übergewichtig ist. Ich würde nur darauf achten, dass die Armaturen an einer der kurzen Seiten hängen, denn wenn sie an der 120cm Wand hängen, wird die Dusche schmaler. Oder ihr hängt es in die Ecke, aber ich würde die kurze Seite präferieren.
 
So, ich habe die Küche mal gebaut ;-)

Alles untergebracht, neu ein 30er MUPL und ein 80er Auszugsunterschrank in der Spülenzeile sowie Regalbretter auf Inselrückseite in Verlängerung des vorhandenen tiefengekürzten Schrankes.

Ich habe die Insel jetzt doch lieber 100 cm tief gemacht. Eine Trennwand mit ca. 110 bis 115 cm sah blöd im Vergleich zur Trennwand beim Fernseher aus.

Das Kochfeld mittig über dem Backofenschrank .. damit ist die DAH dann auch recht mittig zwischen Hänge- und Aufsatzschrank.

Gangbreite Küche jetzt ca. 92 cm, andere Seite ca. 100 cm.

Dann die Abkofferung des Hochschrankes .. beispielhaft ca. 60 cm bis zu einem Kaminschacht, ausgefüllt mit Regalen für Holzlagerung, Bücher, Nippes.
 

Anhänge

  • patrick_p_20150216_kb1-alt.KPL
    4,1 KB · Aufrufe: 140
  • patrick_p_20150216_kb1-alt.POS
    13,2 KB · Aufrufe: 159
  • patrick_p_20150216_kb1-alt_Grundriss.jpg
    patrick_p_20150216_kb1-alt_Grundriss.jpg
    26,2 KB · Aufrufe: 344
  • patrick_p_20150216_kb1-alt_Ansicht6.jpg
    patrick_p_20150216_kb1-alt_Ansicht6.jpg
    35,9 KB · Aufrufe: 193
  • patrick_p_20150216_kb1-alt_Ansicht5.jpg
    patrick_p_20150216_kb1-alt_Ansicht5.jpg
    24,7 KB · Aufrufe: 179
  • patrick_p_20150216_kb1-alt_Ansicht4.jpg
    patrick_p_20150216_kb1-alt_Ansicht4.jpg
    29,8 KB · Aufrufe: 514
  • patrick_p_20150216_kb1-alt_Ansicht3.jpg
    patrick_p_20150216_kb1-alt_Ansicht3.jpg
    30,2 KB · Aufrufe: 183
  • patrick_p_20150216_kb1-alt_Ansicht2.jpg
    patrick_p_20150216_kb1-alt_Ansicht2.jpg
    28,3 KB · Aufrufe: 175
  • patrick_p_20150216_kb1-alt_Ansicht1.jpg
    patrick_p_20150216_kb1-alt_Ansicht1.jpg
    29,9 KB · Aufrufe: 780
Zur Dusche .. ich bin vielleicht verwöhnt, aber ich liebe meine 105 cm breite Dusche, die an der längsten Stelle 150 cm lang ist.
 
Wir haben 75x77, nur mit Vorhang, weil´s mit Kabine NOCH enger würde und ich HASSE sie; ich dusche so gut wie gar nicht, weil ich in dem Ding Beklemmungen kriege und bade lieber. Bei Bekannten haben sie 100x100 und das macht dann schon mehr Spaß!
Kaminofen braucht drum rum schon ein bisschen Platz und Luft, dann verteilt sich auch die Wärme besser, aber so neben der Couch ist schon schön:kiss:
 
Mir würde der Raum so auch gut gefallen. Man kommt rein, auch mal mit mehreren ;-) und alle können sich erstmal dorthin verteilen, wo sie hinwollen .. in die Couchecke, in die Tischecke, in den absoluten Küchenbereich oder direkt durchgehen zum Balkon. Und beim Balkon sollte es dann, wenn irgend möglich, eine Schiebetür sein.
 
Ich würde die Fehrnsehwand noch etwas offener gestalten, mit einem Raumteiler-Regal... Aber das ist natürlich Geschmackssache. :cool:
 

Anhänge

  • patrick.JPG
    patrick.JPG
    74,2 KB · Aufrufe: 192
So. Also wir waren nochmal im Badstudio. Uns reichen die 80x120, zu zweit, aus. Ich denke, du bist da etwas verwöhnt. :-)
Thema Schiebetüre Balkon hab ich mal mit aufgeschrieben für den Architekt morgen....

Ich ahne schon schlimmes von wegen Zusatzkosten :-(

Die Trennwand Essen/Wohnen: wir haben uns überlegt, sie nun sogar deckenhoch zu ziehen. Mehrere Gründe:
Kein Störendes Sonnenlicht von planunten direkt in die augen, wenn der plissee nicht zu ist beim tv sehen.
Wenn im Esszimmer eine Bank steht an der Wandseite, wird die 1,50 eventuell zu wenig sein um sich vernünftig anzulehnen mit dem Kopf, bzw. räumt man dann mit dem Kopf eventuell darauf abgestellte Gegenstände ab.
Bei 1,50m Höhe wird die Frau grad so noch drüber spitzeln können. Wenn wir es wegen Kopf/sonne etwas höher machen, sieht sie sowieso nicht mehr drüber.
Die grundsätzliche Frage ist ja, bringt das so viel mehr Licht in den Wohnbereich, und brauche ich das Licht dort. Denn offen ist der Raum trotzdem:



Eine offene Trennwand ist wieder ein Putzintensives Loch :-) Ich frag sie mal deswegen nochmal.
Aber im Prinzip hab ich mir da hinten im Eck meine Technik Ecke eingebildet, Receiver, Hifi, usw...


So Küche, ich konnte jetzt mit meiner Frau nicht mehr drüberschauen.

Aber kurz was dazugesagt, weil du dir ja auch Arbeit gemacht hast.

Nach der Trockenbauland Planlinks für den Kamin, das Regal wird nicht gehen, weil du einen Abstand einhalten musst, links und rechts neben dem Kamin. Muss ich aber dann genauer den Architekten fragen, vor allem ob der das Rohr etc alles Aufputz plant/macht oder Unterputz.

Wir haben gestern beim hießigen Küchenstudio angefragt was uns die US kosten beim Nachkaufen.

z.b. Als Antwort: "Unterschrank mit 3 Auszügen 90cm EUR 642,00"

Äh, aha... ja gut, die besorgen wir uns gebraucht...


Somit, müssen wir schauen, ich hab noch kein MUPL gefunden, ist wohl relativ selten/neu...

Aber grundsätzlich, cool, alle Schränke untergebracht, und trotzdem mehr Arbeitsfläche.

Den BO unter der Herdplatte sieht so "altbacken aus", aber ist denkt ich O.K.

Ob die Insel 1m breit sein darf, muss die Frau entscheiden, da Planunten ist sie um jeden cm arg wenn ich den verschiebe oder wo wegnehme... :-/

Heute abend mehr dazu, wir bequatschen das dann.
 
Also, ich denke, den eigentlichen Kaminschacht wird er nicht in tragender Wand etc. unterbringen können, sondern es entsteht eben dieser Mauervorsprung. "Regal" bis zur Trockenbauwand Küchenabtrennung (ich finde das sieht beim Reinkommen dann wohnlicher aus), könnte auch Metall sein oder sogar gemauert sein usw.

Ja, mit ganz hoher Wand habe ich auch mal probiert, könnte man machen.

Subversiver Vorschlag:
Wenn ihr euch entscheidet, die Insel wirklich so einzukoffern,
patrick_p_20150216_kb1-alt_ansicht1-jpg.178251

ich würde es schon wegen der Ansicht machen, dann evtl. alle Unterschränke von Küchenseite bei Ikea kaufen?
Da würde ich dann einen 60er Spülenschrank, 40er MUPL und 80er Auszugsunterschrank (zusammen knapp 500 Euro plus Griffe und Selberabholen, Schrauben etc.) wählen und die Insel dann auch von Balkonseite mit Trockenbau abschließen. Auf der Rückseite könnte dann immer noch euer tiefenreduzierter Unterschrank mit Regal untergebracht werden. Den Bau dieser quasi Trockenbaunische sollte man dann sehr genau kontrollieren, Breite 160 bis max. 161 cm, alles im rechten Winkel, dann klappt auch das Einschieben der Schränke. Höhe des Trockenbaus dann Höhe der Korpusse plus Sockel und über alles die APL drüber.

Aufgeben aus euren vorhandenen Möbeln müßte man dann den Spülenschrank und den 15er Handtuchschrank
 
So...

wir haben mal ein bisschen geschaut, der einzelne kaminschacht selbst kostet rund 3000-4000 euro? hui... is das realistisch?

Die Frau will die einkofferung der küchenzeile planlinks nicht haben... für was denn? ;-)

Ein regal neben dem kaminschacht ebenso nicht, "es muss doch nicht alles vollgestellt werden". ;-) was soll ich sagen...
 
Nein, es muss nicht vollgestellt sein. Aber ohne Regal habt ihr eine ziemlich tiefe Lücke zwischen Küchenzeile und Kaminschacht. Und irgendwo wollt ihr auch ein bisschen Holz für den Kamin stapeln, oder? Z.B. so wie hier:
img_Kamin3500_w700_h494.jpg

oder hier:
4010_21_kamin_referenz_ld-koeln.jpg
 
Danke, Isabella .. genau so hatte ich mir das in etwa vorgestellt und es grenzt den Küchenteil halt wohnlich ab.
 

Ähnliche Beiträge

Neff Hausgeräte Ballerina Küchen Blum Bewegungstechnologie Weibel - Intelligente Küchenlüftung

Neff Spezial

Blum Zonenplaner

Weibel Abluft-Tuning

Weibel Abluft-Tuning
Zurück
Oben