1. Idee zur neuen Küche - bitte um Anregungen/Verbesserungen

zweistein333

Mitglied
Beiträge
6
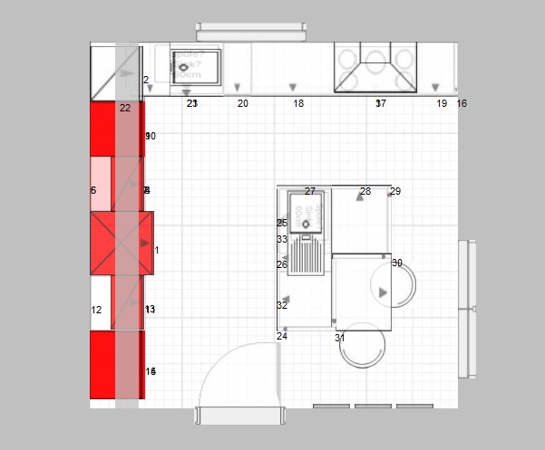
Hallo zusammen, demnächst soll es irgendwann eine neue Küche geben. Wir werden die Wohnung komplett aushöhlen und alle Anschlüsse, Fenster, Heizkörper, Leitungen usw. neu verlegen können. Diese Dinge müssen also nicht beachtet werden. Hier nun mal meine erste Idee für die neue Küche. Der Raum ist quadratisch 3,99 * 3,99m sprich 16qm. Die Türe wird vermutlich eine Schiebetüre. Was wir unbedingt wollen ist ein 70cm breiter Kühlschrank, ein hochgestellter Backofen und Geschirrspüler und eine 1,03 hohe Arbeitsfläche für die normale Arbeit und 94 cm beim Kochen. Dehalb habe ich eine 7er Raster Küche gebaut.
Außerdem hätte ich gerne einen Mülleimer unter der APL. Mit diesen Überlegungen ist nun dieser Entwurf herausgekommen. Was würdert Ihr anpassen/ändern und warum? Kühlschrank soll 2,01m hoch werden. Ach und ein Hochschrank soll 75cm breit sein, damit ich möglichst viele Getränkekisten darin unterbringen kann. Ich will nicht mehr in den Keller laufen.
Ist mein erster Versuch und Beitrag hier, ich hab schon super viel gelesen und gelernt von Euch. Hoffe ich habe alles richtig gemacht.


Checkliste zur Küchenplanung von zweistein333

Anzahl Personen im Haushalt : 2
Davon Kinder? : keine
Körpergrössen aller Hauptbenutzer (wegen Arbeitshöhe ) in cm : 1,87 und 1,71
Art des Gebäudes? : Neu-/Umbau, Planänderungen möglich
Brüstungshöhe des Fensters (in cm) : 1,03m, 50cm
Fensterhöhe (in cm) : 1,0 m
Raumhöhe in cm: : 2,45
Heizung : Fussbodenheizung
Sanitäranschlüsse : vollkommen variabel
Ausführung Kühlgerät? : Stand-Alone bis 75 cm Breite
Kühlgerät Größe : noch unbekannt
Ausführung Tiefkühl (TK)-Gerät : Nicht erforderlich bzw. steht woanders
Dunstabzugshaube? : Umluft
Hochgebauter Backofen ? : Ja
Hochgebauter Geschirrspüler ? : ja
Kochfeldart? : Induktion
Kochfeldbreite ca. (in cm)? : 80
Spülenform: : 1,5 Becken mit Abtropffläche
Weitere geplante Heißgeräte : Einbaumikrowelle
Küchenstil? : modern
Sitzmöglichkeit in der Küche / im Küchenbereich als : Arbeitsplatte in Tischhöhe
Sitzmöglichkeit: Für wieviel Personen? : für 3 Personen
Sitzmöglichkeit: Tisch - wenn gesonderter Tisch oder offene Küche : Keine
Gewünschte o. vorhandene Tischgröße : 40 - 50 cm Tiefe
Wofür soll der Sitzplatz in der Küche genutzt werden? Wie häufig? : Zum Frühstücken und Kleinigkeiten Essen, täglich
Welche Arbeitshöhe ist angedacht (in cm)? : 1,03m und 94cm zum Kochen
Was steht auf der Arbeitsplatte oder soll dort stehen? : Kaffeevollautomat, Messerblock, Obstschale
Welche weiteren Küchenmaschinen müssen in der Küche untergebracht werden? : Wasserkocher, Toaster, Schneidemaschine (z. B. in Schublade), Handrührgerät, Mixer, Pürierstab
Was soll in der Küche außer den Standards untergebracht werden? : ALLE Vorräte, Getränkekisten
Welchen Stauraum gibt es sonst noch? : Geschirr/Gläserschrank im Wohn-/Esszimmer, Keller
Was/wie wird gekocht? (Alltagsküche, Menüs, Snacks usw) : Alltagsküche
Wie häufig wird gekocht? : (fast) täglich 1x warm
Wird alleine gekocht? Oder auch gemeinsam? Mit und für Gäste? : Viel gemeinsam
Was stört an der bisherigen Küche und was soll die neue Küche unbedingt können? Warum? : Alte Küche hat zu wenig Stauraum, zu eng, zu niedrig
Steht schon ein Küchenhersteller fest oder wird bevorzugt? : nein
Steht schon ein Gerätehersteller fest oder wird bevorzugt? : nein, aber Bosch finde ich optisch schön
Preisvorstellung (Budget) : bis 25.000,-
 

Anhänge

  • Küche Grundriss.jpg
    Küche Grundriss.jpg
    33,5 KB · Aufrufe: 379
  • Küche1.jpg
    Küche1.jpg
    38,6 KB · Aufrufe: 264
  • Küche2.jpg
    Küche2.jpg
    54,1 KB · Aufrufe: 266
  • Küche3.jpg
    Küche3.jpg
    37,4 KB · Aufrufe: 272
  • Küche4.jpg
    Küche4.jpg
    55 KB · Aufrufe: 279
  • Küche5.jpg
    Küche5.jpg
    49,5 KB · Aufrufe: 287
  • PLAN1.KPL
    3,9 KB · Aufrufe: 217
  • PLAN1.POS
    11,2 KB · Aufrufe: 237
AW: 1. Idee zur neuen Küche - bitte um Anregungen/Verbesserungen

Hallöle, und erst Mal ganz herzlich :welcome: hier.

Tolle Thread-Eröffnung, und schon prima im Alno eingearbeitet:top: .

Bitte nicht nervös werden, wenn´s etwas dauert bis die Planungs-Mädels hier aufschlagen, aber es ist grade viel los im Planungsboard .

Bis dahin viel Spass hier und viel nützlichen Input wünscht

Samy
P.S.: grade bei dieser Planung finde ich es schade, dass das ne Kochinsel wird, aber das ist nur meine persönliche Vorliebe für Arbeitsinseln ;-).
 
AW: 1. Idee zur neuen Küche - bitte um Anregungen/Verbesserungen

Hallo und auch ein Herzliches Willkommen von mir
:welcome:

mit ist aufgefallen, dass die Arbeitshöhe doch extrem hoch ist - insbesondere für die 171 cm große Person. Liegt da ein Schreibfehler vor oder ist das so schon ausgetestet oder wurde die Arbeitshöhe nur auf Grund des 7-Rasters so ausgewählt ?

103 cm Arbeitshöhe für eine 171 cm große Person ist meiner Meinung eigentlich viel zu hoch ;-) Die 94 cm sind an der Kochstelle m.M. nach ok, aber bitte trotzdem austesten. Oder soll die 171 cm Person immer neben dem Kochfeld arbeiten ?
 
AW: 1. Idee zur neuen Küche - bitte um Anregungen/Verbesserungen

Hättet ihr noch einen Grundrissplan des Küchenraums und Gesamtgrundriss der Etage, wo die Küche steht?

Vom Küchenplan her wie gesehen, frage ich mich, in der schon der optimalste ist, was man aus dem Raum holen kann. Zur optimalen Planung werden die genannten Pläne noch benötigt.

Quardratischer Raum - mir fällt momentan keine Küche hier ein als BsP außer Nekos Küche, wohl kleiner als Deiner, aber auch quadratisch, welche Form die Küche letztendlich bekam.

Wird als Gerät nur Einbaumikro benötigt?

Habt Ihr schon eine Geräteliste wie hochgebautem GSP, BO, evtl. DGC, etc.?
Für Getränkekiste ist es kein Problem. In einem 3- Raster Auszug passen manche. Kisten auch u gar das Bodenmodel von Dyson Staubsauger.

Viel Erfolg bei der Küchenplanung !
H-C
 
AW: 1. Idee zur neuen Küche - bitte um Anregungen/Verbesserungen

Danke für Eure ersten Rückmeldungen. Die Gedanken, die Ihr geäußert habt, stelle ich mir ebenfalls, bzw. habe ich mir gestellt. Eine Kochinsel ist nicht nötig und will ich auch nicht unbedingt. Ich habe eine ganz tolle U-Küche gesehen, die mir optisch wahnsinnig toll gefallen hat. Leider bekomme ich bis jetzt in die U-Küche die Funktionalität, Laufwege usw. nicht so rein, wie ich sie gerne hätte. Der einzige Entwurf, den ich hinbekommen habe, der meiner Meinung nach halbwegs funktional war, war der mit der Insel. Für einen anderen Vorschlag wäre ich sehr aufgeschlossen.
Mir ist klar, dass die Arbeitsplattenhöhe für meine Freundin sehr grenzwertig ist. Momentan habe ich 97 und 98 cm Arbeitsplattenhöhe, was mir aber schon Rückenschmerzen bringt und für meine Freundin nicht zu hoch ist. In meinem jugendlichen Leichtsinn habe ich jetzt gedacht, dass die 5cm vielleicht auch für Sie noch gehen bzw. wenn's gar nicht geht, dass sie ja dann die Kochinsel hat. Aber der Punkt ist sehr berechtigt und ich werde mir dazu nochmal sehr genau Gedanken machen bzw. es ausprobieren oder den Teil rechts von der Spüle absenken.
Einen Gesamtplan der Etage muss ich noch zeichnen, den reiche ich noch nach. Liegt daran, dass es jetzt noch anders aussieht. Ich werde beide Pläne reinstellen. Geräteliste habe ich prinzipiell schon, stelle ich auch rein, wenn Ihr es für sinnvoll erachtet. Prinzipiell wäre ich an der Beurteilung der Funktionalität interessiert. Ob ich jetzt einen Bosch A oder Bosch B oder Miele C Geschirrspüler nehme sollte doch bei der Beurteilung der Grundaufteilung der Küche nicht relevant sein, ob irgendwelche Laufwege falsch sind usw. Aber wenn ich hier einen Gedankenfehler habe, einfach kurz erklären, dann kommt die Liste umgehend. Mir persönlich ist die Marke völlig egal, es gibt schon Marken, wo ich finde, dass das Preis Leistungsverhältnis besser ist als bei anderen, am wichtigsten ist mir aber die Funktionalität (an 500 € soll's bei der Küche nicht scheitern). Beispiel: Ich finde die versenkbare Türen von Neff Backöfen super. Pyrolyse finde ich aber auch genial. Wenn beides in einem Gerät geben würde, würde ich das wohl nehmen. So kann ich mich wohl nur für eines der Features entscheiden. Das würde ich aber gerne separat in einem Gerätethread diskutieren. Hier in diesem Thread geht's mir nur um die generelle Aufteilung der Küche. Ich hoffe, das ist ok. ??? :-)
 
AW: 1. Idee zur neuen Küche - bitte um Anregungen/Verbesserungen

Ich hab da mal ein bisschen geschubst - nur auf die Schnelle und ohne Sperenzchen mit 7 Rastern und so. ;D

Kochfeld an die planobere Wand gesetzt, vor dem Fenster schön Arbeitsfläche, links eine Spüle - alles in einer für die Köchin passenden Höhe, und das Kochfeld ist damit für den Koch angenehm tief. ;-)

Für den Koch dann einen Gattenblock in Form einer freistehenden Spüleninsel mit Stauraum, extra MUPL und einem Sitzeckchen. (Letzteres erfordert aber vermutlich nicht nur leicht erhöhte Stühle, sondern richtig hohe Barhocker - aber irgendeine Krot ist ja immer zu schlucken.)

Dir Durchgänge planunten und planrechts sind relativ eng - aber da es sich ja nur um den Zugang zu den Sitzplätzen handelt, ist das vertretbar. Ansonsten kann die Insel ja auch ein wenig kleiner ausfallen.
 

Anhänge

  • zweistein333_t01.KPL
    3,9 KB · Aufrufe: 210
  • zweistein333_t01.POS
    12,3 KB · Aufrufe: 216
  • zweistein_t01_draufsicht.jpg
    zweistein_t01_draufsicht.jpg
    50 KB · Aufrufe: 245
  • zweistein_t01_vontuer.jpg
    zweistein_t01_vontuer.jpg
    50,7 KB · Aufrufe: 248
  • zweistein_t01_grundriss.JPG
    zweistein_t01_grundriss.JPG
    43 KB · Aufrufe: 237
AW: 1. Idee zur neuen Küche - bitte um Anregungen/Verbesserungen

Die Idee des Gattenblocks sollten wir ausbauen :top: ... da kann ja sogar wie bei Doppelkeks die GSP integriert werden.(EDIT: wobei das eher unpraktisch ist) --> die Gattenblock-Küche an die wir hier denken.

Zweistein, Geräte an sich in einem Gerätethread ist ok. Mich würde nur mal interessieren, welchen 70 cm breiten Kühlschrank du ins Auge gefaßt hast. Von Liebherr kenne ich 75 cm.
 
AW: 1. Idee zur neuen Küche - bitte um Anregungen/Verbesserungen

Sollen es wirklich 3 Sitzplätze in Arbeitshöhe sein?

Und, kann auch die Brüstungshöhe der Fenster geändert werden? Vermutlich eher nein, da Wohnung- oder?
 
AW: 1. Idee zur neuen Küche - bitte um Anregungen/Verbesserungen

Kerstin, bei den Fenstern sollte sich laut Eingangspost noch was machen lassen: "Wohnung komplett aushöhlen und alle Anschlüsse, Fenster, Heizkörper, Leitungen usw. neu verlegen können".
 
AW: 1. Idee zur neuen Küche - bitte um Anregungen/Verbesserungen

Ja, aber, ob man deshalb die Brüstungshöhen ändern kann? Wenn das eine Wohnung in einem Mehrfamilienhaus ist, dann könnten die anderen Eigentümer da ein Wörtchen mitreden müssen.
 
AW: 1. Idee zur neuen Küche - bitte um Anregungen/Verbesserungen

Ach, so meintest du das. Ich hatte vorm geistigen Auge ein Haus mit Wohnung oben und Werkstatt/Laden unten. ;D Ok, warten wir, was der TE sagt.
 
AW: 1. Idee zur neuen Küche - bitte um Anregungen/Verbesserungen

Hi zusammen, die idee mit dem gattenblock kann ich mir vorstellen. Hat einige Vorteile, die mich bei meiner Lösung stören, zwar auch Nachteile aber eine sehr interessante Idee auf die ich nicht gekommen wäre. Fenster werden eh getauscht, da ist auch eine andere Brüstungshoehe möglich. Wenns gar nicht anders geht versetze ich die Dinger. Haus gehört der Familie und wir wohnen im Erdgeschoss da gibt's keine Probleme. Zwei Sitzplätze gehen auch. Bei meiner Lösung haben halt drei bis hingepasst.
 
AW: 1. Idee zur neuen Küche - bitte um Anregungen/Verbesserungen

Sorry dass ich heute nicht so Ausführlich schreiben kann. Hab nur das handy zur Verfügung. :(
 
AW: 1. Idee zur neuen Küche - bitte um Anregungen/Verbesserungen

Schon ok, wichtig wäre noch der 70 cm Kühlschrank .. oder doch 75 cm?

Und das mit den Fenstern ist doch prima :cool:. So ist es am schönsten, wenn wir einreißen und aufbauen können wie es die Planung schön macht;-);-) ... keine Angst ;-)

Wäre es denkbar und vielleicht sogar sinnvoll, planrechts statt Fenster eine Terrassentür anzudenken? Vielleicht sogar in der Breite, dass eine Schiebetür realisiert werden kann, damit kein Flügel im Raum steht?
 
AW: 1. Idee zur neuen Küche - bitte um Anregungen/Verbesserungen

...und die Insel quer stellen Taylor ? gäbe wohl an die 50 cm mehr Insellänge.

Edit: Seh grade, das ist der Ursprungsplan. Da könnte noch Zentimeterweise optimiert werden, speziell wenn ein Lösung a la Gattenblock ins Auge gefasst wird.
 
Zuletzt bearbeitet:
AW: 1. Idee zur neuen Küche - bitte um Anregungen/Verbesserungen

Aber nur als Halbinsel, ansonsten ist der Raum quadratisch und für die Inselbreite sollte es egal sein, ob echte Insel quer oder längs
 
AW: 1. Idee zur neuen Küche - bitte um Anregungen/Verbesserungen

Ich hab mich an der aktuellen Türposition orientiert, sodass man beim Reinkommen nicht gegen die Insel läuft. Wobei ich die Gangbreite zu den Hochschränken so schon fast zu großzügig finde. Wenn die Türöffnung weiter nach planlinks rutschen könnte, sollte das aber weniger der Inselgröße als breiteren Zugängen zu den Sitzplätzen bzw der Terrassentür (gute Anregung, Kerstin - Küchen sollten immer einen direkten Zugang zu Outdoor-Sitzplätzen und frischen Kräutern haben :cool:) zugute kommen, finde ich. Und ca 120x160 erlauben schon kommodes Arbeiten am Gattenblock , oder? Wobei mir persönlich im Zweifel eine etwas kleinere, aber freistehende Insel immer lieber wäre als eine Halbinsel, auch wenn die größer sein könnte - aber das ist Geschmackssache.
 
AW: 1. Idee zur neuen Küche - bitte um Anregungen/Verbesserungen

Ich unterschreibe zu 100% bei Taylor :top:
 
AW: 1. Idee zur neuen Küche - bitte um Anregungen/Verbesserungen

So ich bin noch die Antwort nach dem Kühlschrank schuldig. Siemens KG49EAI40 wäre ein mögliches Modell. Ist meiner Info nach 70cm breit. Türe kann auch beliebig an der Wand verschoben werden, ist aktuell eh noch woanders. Ich versuche den aktuellen Etagengrundriss und den neuen von mir angedachten in den nächsten Tagen mal reinzustellen, dann wird es wahrscheinlich klarer. Hab aber gerade Budgetphase im Geschäft, da leidet auch das Privatleben drunter. Terassentür ist per se auch kein Problem. Hatte ich auch schon mal drüber nachgedacht.
 
AW: 1. Idee zur neuen Küche - bitte um Anregungen/Verbesserungen

Ich habe Taylors Planung mal verfeinert.

Wandzeile planoben mit Arbeitshöhe ca. 94 cm, dazu die Fensterbrüstung entsprechend anpassen, damit APL dort reinlaufen kann. Bei Standardherstellern wäre das dann Sockelhöhe von ca. 12 cm

Insel in Arbeitshöhe ca. 102 cm, bei Standardherstellern, die 7 Raster erlauben, wäre das dann Sockelhöhe von ca. 7 cm

--------
Blick beim Reinkommen ohne Türverschieben:
zweistein333_20131127_kb1_Ansicht2.jpg

Hochschrankwand von links (Standardbreiten evtl. über Schreiner nachdenken):

zweistein333_20131127_kb1_Ansicht3.jpg
- 4 cm Blende
- 80 cm gut 7 rasteriger 2türiger Unterschrank für Getränkekisten, dadrüber Abstellplatz für KVA, nah zum Inselsitzplatz, zum Wohn/Essbereich
- Hänger obendrüber
- 50er Vorrats/Gläserschrank mit Innenauszügen
- 2,5 cm Wange um Abstand für Kühlschrank etc. zu schaffen
- 75 cm Stand-Alone
- 2,5 cm Wange um Abstand für Kühlschrank etc. zu schaffen und als Abdeckung f. hochgebaute GSP
- hochgebaute GSP mit Klappfach für Standmikrowelle, so hoch, dass hier auch ein 45cm hohes Gerät bündig mit Oberkante Backofen eingebaut werden könnte
- Backofenhochschrank, unten wieder Innenauszüge, falls noch nicht alle Getränkekisten Platz hatten :cool:;-)
- tote Ecke, dort Abstellplatz z. B. für Mixer oder evtl. mal Küchenmaschine etc.

Fensterzeile, Arbeitshöhe ca. 94 cm von links:
zweistein333_20131127_kb1_Ansicht4.jpg
- 90er Spülenschrank, großes 60er Becken ohne Abtropfe rechtsbündig eingebracht. Im oberen 3-rasterigem Auszug sollte dann noch Platz für Gelber Sack Müll und ansonsten Küchenputzmittel sein, unten Stauraum
- 30er Auszugsunterschrank. Im oberen 2-rasterigen Auszug 2 individuelle Behälter für Bio/Restmüll um am dortigen Arbeitsplatz zur Verfügung zu stehen
- 2x90er Auszugsunterschränke, einer fürs Kochfeld
- 30er Auszugsunterschrank für weiteren Kleinkram

Insel zunächst von Spülenseite, dann Rückseite, Arbeitshöhe ca. 102 cm, 7-rasterig und 7 cm Sockel :
zweistein333_20131127_kb1_Ansicht5.jpg zweistein333_20131127_kb1_Ansicht6.jpg
- 50er Spülenschrank mit 45er Becken rechtsbündig, damit nach links etwas Beckenauflägefläche ist
- dann Samyschrank, unten 80er 2-rasteriger Auszug, dadrüber
--- 30er Unterschrank, auch hier wieder 2 eher kleinere Müllbehälter für Bio/Restmüll, damit auch dieser Arbeitsplatz gut genutzt werden kann
--- 50er Unterschrank .. hier auch Platz für Öle/Essig etc. da 3rasteriger Auszug

Rückseite .. hinter Spülenschrank ein offenes Element Richtung Fensterzeile. Hier kann wie im Grundriss gekennzeichnet der Wasseranschluß aus dem Boden kommen, ansonsten könnte hier ein ausziehbarer Handtuchhalter integriert werden. Die Ecke dann als 1 Sitzplatz
Dann 7-rasteriger 80 cm breiter Auszugsunterschrank und nach planunten 30 cm APL-Überstand für einen zweiten, evtl. auch einen dritten Stuhl. Auf jeden Fall kann man so dann auch an der Insel sitzen und sich angucken beim Käffchen :cool:
 

Anhänge

  • zweistein333_20131127_kb1.kpl
    3,9 KB · Aufrufe: 211
  • zweistein333_20131127_kb1_Grundriss.jpg
    zweistein333_20131127_kb1_Grundriss.jpg
    81,2 KB · Aufrufe: 220
  • zweistein333_20131127_kb1_Ansicht1.jpg
    zweistein333_20131127_kb1_Ansicht1.jpg
    149,6 KB · Aufrufe: 229
  • zweistein333_20131127_kb1.POS
    16,4 KB · Aufrufe: 230

Ähnliche Beiträge

Neff Hausgeräte Ballerina Küchen Blum Bewegungstechnologie Weibel - Intelligente Küchenlüftung

Neff Spezial

Blum Zonenplaner

Weibel Abluft-Tuning

Weibel Abluft-Tuning
Zurück
Oben