Suche Inputs für fensterlose Küche

zahnfee

Mitglied
Beiträge
63
Hallo

Könntet ihr euch mal kritisch unseren Grundriss anschauen und mir eure Meinung dazu schreiben? Ich habe noch nie zuvor eine Küche geplant und kann mir meine neue Traumküche noch nicht so ganz vorstellen - vielleicht habt ihr ein paar Tipps für mich. Was ich jetzt schon weiß: Geschirrspüler hochgestellt, (Halb-)Insellösung, Rolloschrank.

Außerdem wird’s bei uns kein Fenster geben. Die Küche soll trotzdem irgendwie hell und nicht beengt wirken. Der Lichteinfall ist nur durch das Esszimmer möglich (siehe Plan).

Danke und liebe Grüße,
Zahnfee


Checkliste zur Küchenplanung von zahnfee

Anzahl Personen im Haushalt : 4
Davon Kinder? : 2
Körpergrössen aller Hauptbenutzer (wegen Arbeitshöhe ) in cm : 171, 192
Art des Gebäudes? : Neu-/Umbau, Planänderungen möglich
Brüstungshöhe des Fensters (in cm) : kein Fenster
Fensterhöhe (in cm) : kein Fenster
Raumhöhe in cm: : 250
Heizung : Fussbodenheizung
Sanitäranschlüsse : vollkommen variabel
Ausführung Kühlgerät? : Integriert im Hochschrank
Kühlgerät Größe : noch unbekannt
Ausführung Tiefkühl (TK)-Gerät : Im Kühlschrank als kleines Fach oben
Dunstabzugshaube? : Umluft
Hochgebauter Backofen ? : Wenn möglich
Hochgebauter Geschirrspüler ? : ja
Kochfeldart? : Induktion
Kochfeldbreite ca. (in cm)? : 60 - vorteilhafter, wenn breiter???
Spülenform: : 1 Becken ohne Abtropffläche
Weitere geplante Heißgeräte : Dampfgarer mit Wasseranschluß
Küchenstil? : modern
Sitzmöglichkeit in der Küche / im Küchenbereich als : Tresen in Barhöhe
Sitzmöglichkeit: Für wieviel Personen? : für 4 Personen
Sitzmöglichkeit: Tisch - wenn gesonderter Tisch oder offene Küche : Keine
Gewünschte o. vorhandene Tischgröße : für 6 Pers. + ausziehbar (im Esszimmer)
Wofür soll der Sitzplatz in der Küche genutzt werden? Wie häufig? : Frühstück, Essen mit Familie, Snacks
Welche Arbeitshöhe ist angedacht (in cm)? : 90
Was steht auf der Arbeitsplatte oder soll dort stehen? : Obstschale
Welche weiteren Küchenmaschinen müssen in der Küche untergebracht werden? : Wasserkocher, Toaster, Schneidemaschine (z. B. in Schublade), Pürierstab, Eierkocher
Was soll in der Küche außer den Standards untergebracht werden? : Geschirr komplett (nichts in Ess-/Wohnzimmer)
Welchen Stauraum gibt es sonst noch? : Speisekammer, Keller
Was/wie wird gekocht? (Alltagsküche, Menüs, Snacks usw) : Alltagsküche, Snacks
Wie häufig wird gekocht? : (fast) täglich 1x warm
Wird alleine gekocht? Oder auch gemeinsam? Mit und für Gäste? : alleine + gemeinsam
Was stört an der bisherigen Küche und was soll die neue Küche unbedingt können? Warum? : derzeit Mietwohnung - neue Einbauküche; in unserer Küche sollten die Wege optimiert sein.
Preisvorstellung (Budget) : bis 15.000,-
 

Anhänge

  • PLAN1.KPL
    4,1 KB · Aufrufe: 246
  • PLAN1.POS
    5,5 KB · Aufrufe: 254
  • Küche.pdf
    93,1 KB · Aufrufe: 362
  • Küche_detail.jpg
    Küche_detail.jpg
    41,9 KB · Aufrufe: 312
AW: Suche Inputs für fensterlose Küche

Hallo Zahnfee und erst Mal herzlich :welcome: hier


Bitte für Nichtalnorianer (wie mich) einen vermaßten Grundriss Fenstermaße, Türenpositionen etc.) zur Verfügung stellen.
Wenn Wasser/Abwasser vorhanden, bitte die Maße.

Ansonsten mal viel Freude und viel Input hier wünscht

Samy
 
AW: Suche Inputs für fensterlose Küche

Geht bei dir das pdf nicht? Da wären die Maße nämlich drin...
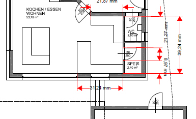
Also hier noch mal: Die Ost-Seite (von der Tür durchbrochen) ist 3,9m lang, links der Tür stehen 2,1m zur Verfügung, rechts davon 0,89m. Die Süd-Seite ist 3,1m lang, im Westen geht die Küche offen in den Essbereich über (wieder 3,9m). Im Norden beträgt die Länge 2,1m. So, ic hoffe, man kennt sich aus ;-)
LG, zahnfee
 
AW: Suche Inputs für fensterlose Küche

hallo zanfee,

was ist denn das was wie ein fenster aussieht im plan unten richtung garage?

ansonsten fällt mir ein, dass in new york küchen traditionell ohne fenster sind - vielleicht kennst du die küche von carry in sex and the city. googel mal nach new york kitchen und du findest sicher einiges. die sind allerdings auch meist sehrsehr klein (das ist der grund warum ich darauf gestossen bin)

du schreibst: "Art des Gebäudes? : Neu-/Umbau, Planänderungen möglich"
ein fenster kann man nicht machen?

und wegen umluft: was ich hier viel gelesen habe ist abluft umluft bei weitem vorzuziehen - kann man nicht irgendwo abluft machen, wenn ihr ohnehin umbaut? und, wie ich lese, die anschlüsse vaiabel sind?

lg
anna
 
AW: Suche Inputs für fensterlose Küche

In deinem Alnoplan ist die Küche allerdings 4 Meter breit und die Speisekammertür sitzt weiter unten - das stimmt so also nicht? Die korrekten Maße sind die in der pdf-Datei, nur das Fenster fällt weg?
 
AW: Suche Inputs für fensterlose Küche

Momentan ist ein Fenster eingezeichnet, aber das kommt weg, weil es direkt in Richtung Garage schaut (ja, die muss da leider sein) und das macht dann ohnehin wenig Sinn glauben wir.

Den Alnoplan hat mein Mann der Einfachheit halber mit 4m gezeichnet, im Grundriss beträgt diese Länge allerdings nur ca. 3,9m. Da wir neu bauen und die Tür zur Speis daher noch ein wenig variabel ist, haben wir uns gedacht, es muss nicht so genau sein :-[

Ich dachte, wenn man eine KWL hat, wird Umluft empfohlen, oder liege ich da falsch??
 
AW: Suche Inputs für fensterlose Küche

Hm, keine Ideen oder Kommentare?? :(
 
AW: Suche Inputs für fensterlose Küche

Hallo zahnfee,
wir arbeiten auch alle meist tagsüber :cool:

Aber, mal ein wenig Lesestoff :cool: und ein bisschen TODO.

--> Tote Ecken gute Ecken statt LeMans -Eckschrank oder ähnlichen Eckschränken.

--> Alnohilfe Kapitel 3 , damit du weißt, wie du die Planung aus deiner Alnodatei als 1 oder 2 Ansichten und Alnogrundriss anlegst. Es gibt nämlich Leute ohne Alnoplaner, insbesondere die Profis, die so keine Planung sehen können. Und für uns anderen ist es halt einfach einfacher, als wenn xxx Leser jedes Mal die beiden Alnodateien herunterladen müssen, den Alnoplaner starten müssen um dann deine Planung zu sehen und zu kommentieren ;-) ;-)

Ihr seid groß und kocht gemeinsam, also solltet ihr mal ernsthaft eure jeweils individuelle optimale Arbeitshöhe ermitteln:
ARBEITSHÖHE ermitteln
3 Methoden haben sich da etabliert:
- Ellbogen abwinkeln und von dort 15 cm runtermessen
- Höhe Beckenknochen messen
- z. B. Bügelbrett nehmen und in verschiedenen Höhen Probeschnippeln und messen, wenn es einem am bequemsten erscheint.
Idealerweise ergeben alle 3 Methoden ca. denselben Wert
und dann hier posten.
 
AW: Suche Inputs für fensterlose Küche

immer mit der Ruhe Zahnfee,
Kommentare gabs schon und alle in die gleiche Halbinselrichtung.
Es ist auch Urlaubszeit, und die Herstellung eines Alnogrundrisses aus deiner PDF dauert auch glaub nicht nur 5 Minuten (ich brauche in meinem 2-D-Programm dafür 20 Minuten), und dann ist noch nix mit Möbeln passiert.
Du bist ja auch immerhin schon 21 Stunden hier;-).

Nochmal zu der Halbinsel...
SO ist das Krampf *sorry* die sollte wenigsten 100 cm tief sein, dass nicht dauernd vorne der fettsabber runterläuft, und die Leut auf der Aussenseit nicht gleich mitfritiert werden.

Diese Art Insel ist
-das Gegenteil von komunikativ
-das Gegenteil von vernünftiger Arbeitsfläche
-die meisten Blechkasterln die da von der Decke hängen...:-X

Wenn schon, dann sollte so eine Halbinsel GROß sein und von beiden Seiten Stauraum bieten.

Ich hänge mal mein Lieblingszitat einer Forumsuserin an.

Zitat:
Ich vermisse bei meiner Küche kein Kochfeld an der Arbeitsinsel.
Da bei mir die "Insel" ja nur eine kleinere Halbinsel ist, stand ein Kochfeld
darin nie zur Debatte.
Mir war wichtig, viel Arbeitsplatz in der Insel zu haben, da ich deutlich mehr Zeit mit Schnippeln und Vorbereiten verbringe,als ich am Herd stehe.

Vor allem genieße ich, bei der Arbeitsinsel auf einer schönen Länge eine 90er Tiefe zu haben und so beim Teig ausrollen nirgends anzustoßen oder ans Ende der Arbeitsplatte zu kommen.
Ich kann sogar von drei Seiten mit dem Nudelholz an den Teig, das mag sich nicht wichtig anhören, ist aber einfach praktisch.
Wenn ich koche, dann dampft und spritzt es. Die
DAH ist eingeschaltet und die hört man nun einmal in den meisten Fällen. Kommunikation mit anderen ist dadurch sowieso erschwert und für Gäste ist die Insel dann sicher nicht der gemütlichste Platz.

Bei meiner Arbeitsinsel dagegen sitzen häufig Gäste auf den beiden Stühlen zur Esszimmerseite hin und unterhalten sich mit mir, während ich z.B. Pizza belege oder Salat anmache oder einfach Sachen kleinschneide.

Ich hätte nie gedacht, dass ich das so genießen würde. Entspanntes Plaudern während das Essen vorbereitet wird. Gelegentlich drehe ich mich mal um und gehe zum Kochfeld an der Wandseite, aber da muss ich nie lange stehen und bin dann wieder an der Arbeitsinsel und plaudere weiter

Zitat Ende

...und ich sag Dir was... Die Lady hat SOOO Recht !

*winke*
Samy
 
Zuletzt bearbeitet von einem Moderator:
AW: Suche Inputs für fensterlose Küche

Hallo Zahnfee,
noch nicht mal 24 Stunden nach dem Einstellen deiner Anfrage mal eine erste Variante.

Hochschrankblock - von links nach rechts:
- hochgebaute GSP
- Backofen / DG, unten drunter tiefenreduzierte Auszüge, damit dahinter der Wasseranschluß für GSP und DG wie bei Vanessa realisiert werden kann.
full

- Hochschrank für Kühlschrank
- Hochschrank für Geschirr, Vorräte und im oberen Bereich f. seltener genutztes. Unten vorzugsweise mit Innenauszügen
-

Spülenblock mit Hängeschränken, die könnte man vielleicht auch schmaler wählen, das hängt dann von der Stauraumplanung ab --> Korpushöhen - Rastermaße - Auszugs-Innenmaße - Stauraumplanung
Kochinsel in 120 cm Tiefe, ergibt viel Stauraum mit Auszügen und noch eine schön rundum nutzbare Arbeitsfläche.

Außerdem einen kleinen Tresenplatz zum Stehen oder auch Sitzen. Fürs richtige Essen ist ja der Tisch gleich daneben.
 

Anhänge

  • kf_zahnfee_20110427_kb_var1.kpl
    4,1 KB · Aufrufe: 203
  • kf_zahnfee_20110427_kb_var1.POS
    14,7 KB · Aufrufe: 208
  • kf_zahnfee_20110427_kb_var1_Ansicht1.jpg
    kf_zahnfee_20110427_kb_var1_Ansicht1.jpg
    28,3 KB · Aufrufe: 218
  • kf_zahnfee_20110427_kb_var1_Ansicht2.jpg
    kf_zahnfee_20110427_kb_var1_Ansicht2.jpg
    26,2 KB · Aufrufe: 231
  • kf_zahnfee_20110427_kb_var1_Ansicht3.jpg
    kf_zahnfee_20110427_kb_var1_Ansicht3.jpg
    19,3 KB · Aufrufe: 429
  • kf_zahnfee_20110427_kb_var1_Ansicht4.jpg
    kf_zahnfee_20110427_kb_var1_Ansicht4.jpg
    28,5 KB · Aufrufe: 230
  • kf_zahnfee_20110427_kb_var1_Ansicht5.jpg
    kf_zahnfee_20110427_kb_var1_Ansicht5.jpg
    32,5 KB · Aufrufe: 522
  • kf_zahnfee_20110427_kb_var1_Grundriss.jpg
    kf_zahnfee_20110427_kb_var1_Grundriss.jpg
    20 KB · Aufrufe: 392
AW: Suche Inputs für fensterlose Küche

Nix für Ungut, war ja nur eine Frage ;-)

@KerstinB: Danke schon mal für deine Ideen, werd sie morgen mal mit meinem Mann durchgehen.

Mein Alnoplaner spinnt leider grad mal wieder. Kann daher den Grundriss wohl erst morgen in Angriff nehmen.
 
AW: Suche Inputs für fensterlose Küche

Schön Kerstin! :top: Das einzige was die schöne Optik stört ist dieser Tresen zum sitzen. In meinen Augen echt überflüssig. ;-)

LG
Sabine
 
AW: Suche Inputs für fensterlose Küche

ich finde den Tresen hier nicht sooo übel Taylor,
-Buffetplatz
-Sichtsperre auf Kochfeld und optische Sperre zur Küche vom Esstisch her.

Hochschrankeinteilung müsste noch angepasst werden...
Spüma und die Geräte 1 Raster runter.

*winke*
Samy
 
AW: Suche Inputs für fensterlose Küche

Nee, ein Raster runter finde ich hier nicht unbedingt. DG müßte man ausprobieren.

Oberkante GSP wäre hier bei ca. 140 cm, damit man mal einen Wert hat. Ich habe allen Möbeln mal wieder den 17 cm Sockel auf 10 cm gekürzt.
 
AW: Suche Inputs für fensterlose Küche

Noch eine Stimme gegen den Tresen.

Da steht ein Tisch direkt daneben. Das muß doch nun wirklich nicht sein, dann da noch einen Tresen hinzubauen. Wenn es unbedingt sein muß (was ich verstehen kann) dann eine etwas überstehende Arbeitspatte, damit man sich da direkt an der Küche zum schnippeln und klönen hinsetzen kann. Diese Tresen sind einfach nur Schnickschnack für Bars oder Showküchen, aber nichts für gemütliche Familien oder Geselligkeitsküchen.

Die Dinger haben eine klare Ansage: Komm mir nur nicht zu nahe! Ich bin hinter dem Tresen und Du auf der anderen Seite und da bleibst auch! Guggen darfst Du und loben, aber alles andere is unerwünscht.

neko
 
AW: Suche Inputs für fensterlose Küche

Hallo!

Hm, irgendwie funktioniert es bei uns nicht, den von Kerstin (vielen Dank, dass du dir die Mühe gemacht hast) erstellten Plan zu öffnen. Da hängt sich das Alnoteil immer auf :(
Was ich bis jetzt erkennen konnte, sieht der Plan gut aus, allerdings würde die längs ausgerichtete Insel so zu weit in den Essbereich hineinragen. Ich denke, da wäre die quer ausgerichtete Insel glaub ich etwas platzsparender oder??

Grundsätzlich ist es natürlich eine Überlegung wert, eine Arbeitsinsel statt der Kochinsel zu machen - vor allem auch, was die Kosten betrifft. Nur - sieht die Insel dann nicht irgendwie "leer" aus? Die DAH hab ich bisher auch immer ein wenig als Designelement gesehen. ´

Unten angehängten Plan haben wir im Möbelhaus bekommen. Uns gefällt er soweit eigentlich ganz gut. Meint ihr, es ist genug Stauraum/Arbeitsfläche vorhanden? Oder braucht man gar nicht so viel? Seht ihr irgendwelche absoluten NoGos?

Danke und LG, die Zahnfee
 

Anhänge

  • PLAN1.POS
    9,2 KB · Aufrufe: 195
  • Zahnfee Ansicht.jpg
    Zahnfee Ansicht.jpg
    30,7 KB · Aufrufe: 236
  • Zahnfee Ansicht2.jpg
    Zahnfee Ansicht2.jpg
    30,7 KB · Aufrufe: 229
  • Zahnfee Ansicht3.jpg
    Zahnfee Ansicht3.jpg
    29,3 KB · Aufrufe: 228
  • Zahnfee Grundriss.JPG
    Zahnfee Grundriss.JPG
    59,4 KB · Aufrufe: 226
AW: Suche Inputs für fensterlose Küche

Hmm, etwas wenig Platz zwischen Spüle und Kochfeld, dafür an der Wand hinten der losgelöste Arbeitsplatz, bei dem man halt dann an die Wand guckt.

Mich stört ein wenig auch der Weg Küche/Terrasse. Wie würdet ihr denn dann den Rest des Raumes möblieren?

Der so aufgesetzte Tresen ... warum muß der sein? Das wäre doch als APL-Überstand gemütlicher. Dann höhenverstellbare Stühle dazu, die man auch am normalen Tisch als Ergänzung nutzen kann. Z. B. so wie bei Menorca:
full


Beispielsweise bei Amazon

Ihr müßt beide Dateien von mir (KPL und POS) in ein Verzeichnis auf eurem Computer herunterladen und dann den Alnoplaner starten und dann aus dem Alnoplaner heraus die KPL-Datei öffnen. Dann sollte es auch klappen.
 
AW: Suche Inputs für fensterlose Küche

Hallo zahnfee,

wenn Du so direkt fragst, dann frag ich mich, warum hier 50 mm und 25 mm Wangen und Abdeckböden so wild gemixt werden. Ich würde entweder mit 50 mm oder mit 25 mm arbeiten. Feiner sieht ggf. noch 16 mm Stärke aus.

Ist links vom Geschirrspüler auch eine Wange? Sonst stört ggf. der Türrahmen.

Den Kühlschrankanschlag würde ich ändern.

Warum sind die Schubkästen in den breiten Unterschränken nicht durchgehend?

Warum sind alle Unterschränke in der Insel rechts angeschlagen?

Ich würde zudem die Einbauhöhe des Geschirrspülers testen, ob der Oberkorb noch höhengerecht bestückt werden kann.
 
AW: Suche Inputs für fensterlose Küche

Cooki, was du da bemängelst wird hauptsächlich daran liegen, dass zahnfee den Alnoplaner noch nicht so gut beherrscht ;-)
 
Neff Hausgeräte Ballerina Küchen Blum Bewegungstechnologie Weibel - Intelligente Küchenlüftung

Neff Spezial

Blum Zonenplaner

Weibel Abluft-Tuning

Weibel Abluft-Tuning
Zurück
Oben