Welche Variante ist empfehlenswert?
Hallo liebes Forum,
nachdem unser Hausbau voranschreitet, haben wir unsere
Küchenplanung wieder aufgenommen und momentan gibt es 3 Varianten, von denen un saber noch keine vollständig zusagt.
Probleme:
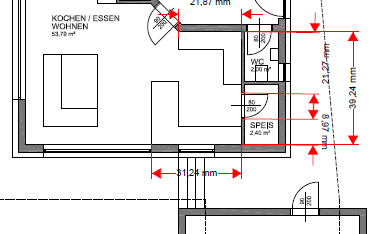
- In der Küche selbst gibt es kein Fenster, es soll aber trotzdem möglichst offen und hell wirken (bin auch dankbar für Beleuchtungstipps)
- Ich hätte gerne einen Rolloschrank, um Dinge wie Wasserkocher, Toaster und diesen ganzen Kleinelektrokram zu verstauen, aber der Schrank lässt sich anscheinend schlecht unterbringen
- Schön wäre auch ein höhergestellter
Geschirrspüler , doch auch dies zeigt sich schwierig
- eine Art Bar im Sinne einer vorgezogenen
Arbeitsplatte schwebt uns auch vor
- Stauraum und Arbeitsfläche sollten auch genügend vorhanden sein
Die Entwürfe sind nicht sehr detailliert oder professionell, in erster Linie wollen wir uns mal entscheiden, wo was hinkommt
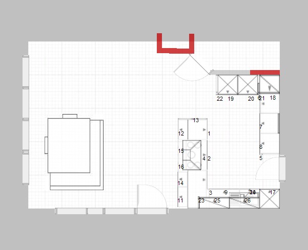
Variante 1: hat eigentlich alles, was gewünscht wird, finden wir aber optisch nicht sooo toll
Variante 2: die beiden Geräte übereinander sollen BO und DG sein, das daneben der höher gestellte GS (den wir leider im Alnoplaner nicht gefunden haben). Leider gibt es nebem dem GS keine Abstellfläche für schmutziges Geschirr.
Variante 3: Wir haben versucht, neben dem Rolloschrank Abstellfläche zu erzeugen
Variante 4: Die Abstellfläche vor dem Rolloschrank erscheint uns praktische als daneben, sieht aber etwas seltsam aus.
Ich hoffe, ihr könnt mir ein bisschen weiterhelfen!Danke und LG, zahnfee
Checkliste zur Küchenplanung von zahnfee
Anzahl Personen im Haushalt : 4
Davon Kinder? : 2
Körpergrössen aller Hauptbenutzer (wegen Arbeitshöhe ) in cm : 171, 191
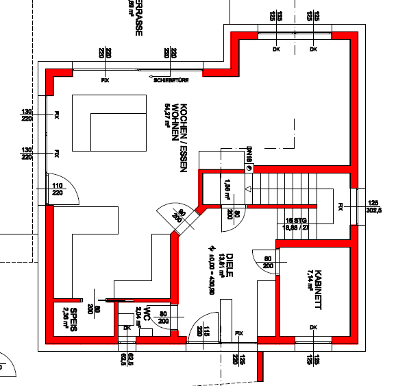
Art des Gebäudes? : Neu-/Umbau, Planänderungen nicht möglich
Brüstungshöhe des Fensters (in cm) : nicht vorhanden
Fensterhöhe (in cm) :
Raumhöhe in cm: : 260
Heizung : Fussbodenheizung
Sanitäranschlüsse : vollkommen variabel
Ausführung Kühlgerät? : Integriert im
Hochschrank
Kühlgerät Größe : bis 140 cm Höhe
Ausführung Tiefkühl (TK)-Gerät : Nicht erforderlich bzw. steht woanders
Dunstabzugshaube? : Umluft
Hochgebauter Backofen ? : Wenn möglich
Hochgebauter Geschirrspüler ? : wenn möglich
Kochfeldart? :
Induktion
Kochfeldbreite ca. (in cm)? : 60
Spülenform: : 1 Becken ohne Abtropffläche
Weitere geplante Heißgeräte : Dampfgarer ohne Wasseranschluß
Küchenstil? : modern
Sitzmöglichkeit in der Küche / im Küchenbereich als : Überstehende Arbeitsplatte
Sitzmöglichkeit: Für wieviel Personen? : für 2 Personen
Sitzmöglichkeit: Tisch - wenn gesonderter Tisch oder offene Küche : Wird nach Bedarf neu gekauft
Gewünschte o. vorhandene Tischgröße : 6 Personen
Wofür soll der Sitzplatz in der Küche genutzt werden? Wie häufig? : mal sehen
Welche Arbeitshöhe ist angedacht (in cm)? : 92
Was steht auf der Arbeitsplatte oder soll dort stehen? : Kaffeemaschine, Wasserkocher, Obstschale
Welche weiteren Küchenmaschinen müssen in der Küche untergebracht werden? : Toaster, Schneidemaschine (z. B. in Schublade), Handrührgerät, Pürierstab, Eierkocher
Was soll in der Küche außer den Standards untergebracht werden? : Geschirr komplett (nichts in Ess-/Wohnzimmer)
Welchen Stauraum gibt es sonst noch? : Speisekammer, Keller
Was/wie wird gekocht? (Alltagsküche, Menüs, Snacks usw) : hauptsächlich einfache, schnelle Küche
Wie häufig wird gekocht? : (fast) täglich 1x warm
Wird alleine gekocht? Oder auch gemeinsam? Mit und für Gäste? : meist alleine
Was stört an der bisherigen Küche und was soll die neue Küche unbedingt können? Warum? : genügend Stauraum (z.B. für ein zweites Service)
Preisvorstellung (Budget) : bis 15.000,-