Unbeendet Offene Küche für unser neues Haus

fischkopp

Mitglied
Beiträge
26
Hallo,

bei uns steht demnächst ein Umzug von der Wohnung in ein Haus an und da Ihr vor 4 Jahren die Traumküche für unsere Wohnung geplant habt, würden wir uns freuen, wenn Ihr uns wieder unterstützen würdet.

Es wird eine offene Küche, die Stellfläche ist allerdings recht begrenzt. Da es keine Vorratskammer gibt und wir doch einiges in der Küche unterbringen müssen, werden wir um eine Kochinsel wohl nicht herumkommen.

Wir haben den Grundriss im ALNO Planer erstellt und auch unsere ersten Ideen geplant.

Reicht der Platz um die Kochinsel? Habt Ihr Ideen für eine andere Ecklösung mit viel Stauraum?

Wir freuen uns auf Eure Ideen/Vorschläge.

Vielen Dank

Lea & Simon

Checkliste zur Küchenplanung

Anzahl Personen im Haushalt: 3
Davon Kinder?: 1
Art des Gebäudes?: Neu-/Umbau, Planänderungen möglich
Körpergrössen aller Hauptbenutzer (wegen Arbeitshöhe ) in cm: 180, 171, 80
Brüstungshöhe des Fensters (in cm):
Fensterhöhe (in cm):
Raumhöhe in cm:
250
Heizung: Fussbodenheizung
Sanitäranschlüsse: variabel an aktueller Wand
Ausführung Kühlgerät: Integriert im Hochschrank (60cm)
Kühlgerät Größe: noch unbekannt
Ausführung Tiefkühl (TK)-Gerät: Im Kühlschrank ab 3 Schubladen unten
Dunstabzugshaube: Umluft
Backofen etc. hochgebaut?: Ja
Hochgebauter Geschirrspüler ?: Nein
Kochfeldart: Induktion
Kochfeldbreite ca. (in cm)?: 90
Spülenform: 1 Becken mit Abtropffläche
Geplante Heißgeräte: Backofen
Küchenstil: Klassisch
Sitzmöglichkeit in der Küche / im Küchenbereich: Keine
Sitzmöglichkeit: Für wieviel Personen?: Nein
Sitzmöglichkeit: Tisch - wenn gesonderter Tisch oder offene Küche: Vorhandener Tisch
Gewünschte o. vorhandene Tischgröße:
Wofür soll der Sitzplatz in der Küche genutzt werden? Wie häufig?:
Welche Arbeitshöhe ist angedacht (in cm)?:
Was steht auf der Arbeitsplatte oder soll dort stehen?:
Kaffeevollautomat, Wasserkocher, Toaster
Welche weiteren Küchenmaschinen müssen in der Küche untergebracht werden?: Küchenmaschine, Allesschneider (z. B. in Schublade), Handrührgerät, Mixer, Pürierstab
Was soll in der Küche außer den Standards untergebracht werden?: ALLE Vorräte
Welchen Stauraum gibt es sonst noch?: Geschirr/Gläserschrank im Wohn-/Esszimmer
Was/wie wird gekocht? (Alltagsküche, Menüs, Snacks usw): Alltagsküche, gerne auch etwas aufwändiger aus Kochzeitschriften.
Wie häufig wird gekocht?: (fast) täglich 1x warm
Wird alleine gekocht? Oder auch gemeinsam? Mit und für Gäste?: Meistens zu zweit, manchmal auch mit Gästen
Was stört an der bisherigen Küche und was soll die neue Küche unbedingt können? Warum?: Dunstesse taugt nichts, ansonsten perfekt.
Welche Mülltrennung soll in der Küche vorgehalten werden?: Altpapier, Biomüll, Gelber Sack Müll, Restmüll
Steht schon ein Küchenhersteller fest oder wird bevorzugt?: nein
Steht schon ein Gerätehersteller fest oder wird bevorzugt?: nein
Preisvorstellung (Budget): bis 10.000,-
---------------------
Im Threadverlauf hinzugekommen:
Mehr Maße:

korrigiert-png.224045
 

Anhänge

  • Grundriss.KPL
    4,1 KB · Aufrufe: 251
  • Grundriss.POS
    3,5 KB · Aufrufe: 238
  • MeinPlan.POS
    6,6 KB · Aufrufe: 242
  • MeinPlan.KPL
    4,1 KB · Aufrufe: 257
  • Grundriss.png
    Grundriss.png
    49 KB · Aufrufe: 448
Zuletzt bearbeitet von einem Moderator:
Hallo und herzlich willkommen zurück im Forum.

Zieht ihr in eine Eigenheim? Steht das Haus schon? Schade, dass das Fenster in der Küche bodentief ist.

Wie gross ist euer Tisch?

Wo geht man auf die Terasse?

Lade zu deinen ALNO Planungen bitte noch den ALno Grundriss hoch (snippin tool von windows), damit man Abstände sieht. Und gönne jede Planung einn separaten Post, damit man sich darauf beziehen kann.

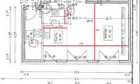
Leider hast du bei deinem Etagengrundriss die Fenstermasse planunten nicht gescannt. Wichtig wäre zu wissen, der Abstand zum 1. Fenster planlinks, und dann die Fensterbreite der anderen Fenster. Denn dein ALNO Plan reicht dafür nicht aus, schnell verrutscht mal was und man kann es nicht rückgangig machen.
 
Zuletzt bearbeitet:
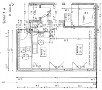
bitte überprüfe die roten Masse und ergänze das Fragezeichen.

Fischkopp0.JPG

und wie soll der Rest des Raumes möbliert werden? bitte zeiche das Möbel masstabsgerecht in den Etagen Grundriss oder liste die Teile auf.
 
Zuletzt bearbeitet:
Hallo Evelin,

es ist ein Eigenheim, allerdings waren Rohbau und Fester schon da, als wir es gekauft haben. Wir konnten nur noch Änderungen am Innenausbau vornehmen. Ich habe mal den Originalplan ergänzt, daraus lassen sich die Maße der Fenster entnehmen. Der HA Raum ist aber auf 140cm Breite erweitert worden. Die Tür zum HA entfällt und die Dusche aus dem Gäste WC gibt es nicht, dafür wird die Küche größer. Diese Änderungen sind auf dem Grundriss neu eingetragen. Allerdings ist die mit von als ? bezeichnete Wand in Summe nur 220cm statt 239,5cm.
Eine Terasse ist noch nicht geplant, aktuell gehen alle Türen in den Garten. Terasse wird geplant, wenn wir eingezogen sind.
Wir haben folgendes Mobiliar:
Esstisch 90x140
Couch 240x160
Vitrine 105x40
Kommode 105x40
Fernsehtisch 117x50

Ich habe versucht die gewünschten Maße zu ermitteln, wobei ich mir schwer tue die richtigen Werte im Plan abzulesen.
Maßekorrigiert.png

Habe keine Möglichkeit gefunden den Ausgangsthread zu bearbeiten.
 

Anhänge

  • GrundrissAlt.PNG
    GrundrissAlt.PNG
    314,6 KB · Aufrufe: 287
  • Planung.PNG
    Planung.PNG
    106,1 KB · Aufrufe: 288
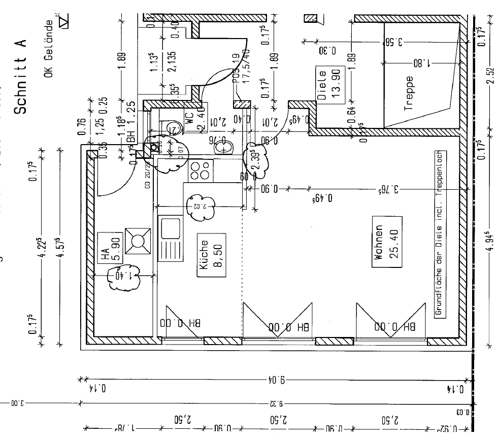
Nachdem mir die Maße doch etwas merkwürdig vorkamen, habe ich mit Sketchup nochmal nachgemessen und bin jetzt zu folgenden Werten gekommen.

korrigiert.png

Entsprechend habe ich auch den Alnoplan nochmal neu erstellt.
Sorry für das Chaos, aber Grundrisse lesen gehört definitiv nicht zu meinen Stärken. Hoffe jetzt passt alles.
 

Anhänge

  • Grundriss.KPL
    4,1 KB · Aufrufe: 248
  • Grundriss.POS
    4,2 KB · Aufrufe: 242
ich dachte der Bau steht, warum kannst du nicht vorort messen?

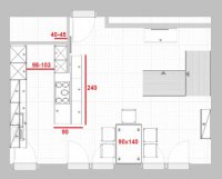
Hier mein Vorschlag.

Die Terassentür in der Küche, so praktisch sie auch sein mag, würde ich "etwas zustellen", denn Stauraum und AP Fläche erscheint mir wichtiger. Dh, in meinem Plan ist die Wandzeile 360cm + Blenden lang. Für mich würde ich die Zeile sogar noch etwas länger machen.

Das Kochfeld soweit an die mindertiefen HS rücken, dass ca 25-30cm Platz bleiben. Rechts vom Kochfeld soll ausreichend Platz sein, dass man Teller abstellen kann und dass es nicht Fett auf den Boden spritzt.

Die Wandzeile von planoben
Blende
60er HS mit KS
60er HS mit BO und Mikro 2-3
80er US 1-2-3, Getränke unten
40er US 3-3 mit MUPL oben, Ölflschen unten
60er US 3-3 mit Spüle, unterer Auszug für gelben Sack
60er GSP
Sichtseite

3 x 80er US

Die Kochseite von planoben
Blende
50er HS tiefenreduziert
45er US tiefenreduziert
90er US 1-1-2-2
90er US 1-1-2-2
Sichtseite

rückseitig 3 x 80er US, tiefenreduziert mit Türen.

Insgesamt hast du so ziemlich viel Stauraum.

Fischkopp1.JPG Fischkopp11.jpg Fischkopp2.JPG Fischkopp3.JPG Fischkopp4.JPG
 

Anhänge

  • Fischkopp_Evelin_PLAN1.KPL
    3,9 KB · Aufrufe: 256
  • Fischkopp_Evelin_PLAN1.POS
    10 KB · Aufrufe: 263
3:14 Uhr? Wann schläfst du? Mit dem Messen ist nicht so leicht, da zur Zeit nur die tragenden Wände stehen.
Vielen Dank für die Mühe, der Plan für die Küche gefällt uns sehr gut, nur der Abstand TV zur Couch ist uns zu eng. Da muss ich heut Abend noch etwas ausprobieren, wie man da mehr Platz gewinnt. Auf jeden Fall hätten wir viel Stauraum und keine Ecken, das ist toll.
Danke
 
well, das mit der Couch und TV musst du dir selbst zusammenbasteln, ich habe keine Idee, wie es am Besten ist. Hab nur die Möbel reingestellt und du schiebst sie.
 
Wir haben uns eine leicht abgewandelte Variante von Evelin von 2 Küchenstudios rechnen lassen und werden heute Mittag unterschreiben. Unser Budget hat leider nicht für alle unsere Wünsche gereicht. Wenn Interesse besteht kann ich die finale Planung hochladen. Ansonsten heißt es abwarten bis April 2017.
 
Ja, bitte lass uns die finale Planung sehen! Wie die Ente B schon sagte, ist es auch interessant, wieviel Forumsideen verwirklicht wurden.

Und nächstes Jahr wäre es toll, wenn du uns dann Bilder der fertigen Küche zeigst. Daher stell ich mal auf Warten um: du auf die Küche, wir auf die Fotos!
 
So gestern Abend haben wir den Vertrag unterschrieben. Wir haben uns nun doch dafür entschieden, dass wir die Balkontür noch öffnen wollen. Entsprechend haben wir nur 2x 45 Schränke und verzichten auf etwas Stauraum. An der kurzen Wand haben wir keine Hochschränke, sondern eine Arbeitsplatte , da man hier gut Elektrogeräte verstecken kann, die man täglich brauch (Toaster, Wasserkocher, Kaffeemaschine). Auf die Rückseite haben wir nichts gestellt, da wir an diese Wand den Fernseher hängen wollen.
Wir haben uns für ein Oranier Kochfeld KFL 2094 mit Muldenlüftung entschieden. Es sieht etwas schicker als das Bora aus, vor allem hat uns die Slider Bedienung überzeugt. Dafür müssen leider die verkürzten Auszüge in Kauf nehmen.
Fotos kommen dann an Ostern ;-) Danke für Eure Unterstützung.

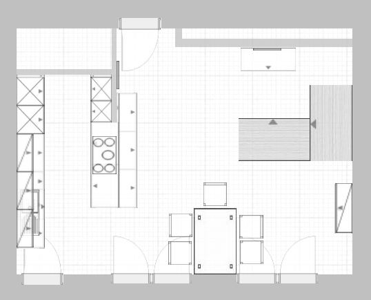
Hier der Grundriss im Alno Planer nachgebaut.
fischkopp_Grundriss.PNG


So soll sie dann aussehen

fischkopp1.PNG fischkopp2.PNG fischkopp3.PNG
 

Anhänge

  • Kuechenplan_fischkopp.KPL
    3,9 KB · Aufrufe: 229
  • Kuechenplan_fischkopp.POS
    8,9 KB · Aufrufe: 237

Ähnliche Beiträge

Neff Hausgeräte Ballerina Küchen Blum Bewegungstechnologie Weibel - Intelligente Küchenlüftung

Neff Spezial

Blum Zonenplaner

Weibel Abluft-Tuning

Weibel Abluft-Tuning
Zurück
Oben