Offene Küche auf 330x238

Uwe81

Mitglied
Beiträge
6
Hallo Forumsmitglieder,

wir planen für unseren Neubau eine offene Küche.
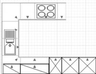
Den derzeitigen Stand der Planung ist in den angehängten Dokumenten sichtbar (habe das mit dem Häcker -Küchenplaner gemacht). Uns würde nun euer Feedback interessieren.

Dazu ist zu beachten, dass die in den Raum rein reichende Arbeitsplatte 90cm werden soll (konnte ich im Planer nicht umsetzen). Auch war es angedacht, statt der Toten Ecke oben links in den Essbereich einen Schubladenschrank für Besteck etc. einzubauen.

Folgendes ist gesetzt
  • Meine Frau möchte unbedingt das Kochfeld Richtung Esszimmer.
  • Ich möchte, dass man einen Topf vom Kochfeld zur Spüle ausschließlich über die Arbeitsplatte trägt (d.H. die Spüle muss zum Kochfeld über Eck sein, darf nicht auf der unteren Wandseite sein)
  • Der Durchgang in die Küche muss wegen eines Rollstuhlfahrers mindestens 1m sein.
  • Wir haben sehr viel Holz im Wohn/Esszimmer, daher sollte die Küche neutral sein. Helle Front mit dunkler Arbeitsplatte, aber kein Holzton.
  • Der Preis sollte 10000 (incl. allem) nicht deutlich übersteigen.

Fragen zur Geometrie:
  • Wir haben nun zwei tote Ecken. Es stand zur Debatte, unten Links ein Rondell zu verwenden. Dadurch würden die zwei 100cm-Schubladen zu einer 90cm und einer 80cm-Schublade und die Kochinsel weiter in den Raum reingeschoben. Gibt Stauraum, aber irgendwie auf Kosten der Zugänglichkeit.
  • Heute wurde uns bei einem Küchenstudio vorgeschlagen, statt der beiden toten Ecken zwei LeMans -Schränke und in der Mitte daher nur eine 100cm-Schublade zu nehmen. Weiß aber nicht, ob mir LeMans wirklich gefällt. Wenn dann ein Schrank ausgezogen ist, ist halt alles blockiert....
  • Reichen die 130cm Abstand als Arbeitsbereich?
  • Sollten wir ein Gefrierfach in die Küche bauen oder nur ein kleines Fach im Kühlschrank plus eine Truhe im Keller?

Allgemeine Fragen (die sich aber sicherlich auch durch intensivere Recherche selbst lösen lassen würden)
  • Welche bezahlbare Küchenfront ist robust gegenüber Rollstuhlkratzern, Bobbycar-Spuren und Fettfingern? Matt, Glänzend, Melaninharz, ...
  • Lohnt sich ein kleiner Mehrpreis für die 78cm Korpushöhe bei Schüller oder Häcker

Ansonsten sind wir für alle Anregungen dankbar.

Viele Grüße,
Uwe

PS: Ich habe versucht, mit dem Alno -Küchenplaner die Küche nachzubauen, hoffe, dass ich richtige Korpenhöhe etc. verwendet habe....



Checkliste zur Küchenplanung von Uwe81

Anzahl Personen im Haushalt : 4
Davon Kinder? : 2
Körpergrössen aller Hauptbenutzer (wegen Arbeitshöhe ) in cm : 165, 189
Art des Gebäudes? : Neu-/Umbau, Planänderungen möglich
Brüstungshöhe des Fensters (in cm) : 115
Fensterhöhe (in cm) : 100
Raumhöhe in cm: : 270
Heizung : Fussbodenheizung
Sanitäranschlüsse : vollkommen variabel
Ausführung Kühlgerät? : Integriert im Hochschrank (60cm)
Kühlgerät Größe : noch unbekannt
Ausführung Tiefkühl (TK)-Gerät : Im Kühlschrank als kleines Fach oben
Dunstabzugshaube? : Umluft
Hochgebauter Backofen ? : Ja
Hochgebauter Geschirrspüler ? : nein
Kochfeldart? : Induktion
Kochfeldbreite ca. (in cm)? : 80
Spülenform: : 1,5 Becken mit Abtropffläche
Weitere geplante Heißgeräte : Einbaumikrowelle
Küchenstil? : klassisch
Sitzmöglichkeit in der Küche / im Küchenbereich als : Keine
Sitzmöglichkeit: Für wieviel Personen? : nein
Sitzmöglichkeit: Tisch - wenn gesonderter Tisch oder offene Küche : Keine
Gewünschte o. vorhandene Tischgröße : -
Wofür soll der Sitzplatz in der Küche genutzt werden? Wie häufig? : -
Welche Arbeitshöhe ist angedacht (in cm)? : 92
Was steht auf der Arbeitsplatte oder soll dort stehen? : Kaffeevollautomat, Wasserkocher, Messerblock
Welche weiteren Küchenmaschinen müssen in der Küche untergebracht werden? : Toaster, Handrührgerät, Mixer, Pürierstab
Was soll in der Küche außer den Standards untergebracht werden? : Sonstiges (evtl. im Beitragstext benennen)
Welchen Stauraum gibt es sonst noch? : Geschirr/Gläserschrank im Wohn-/Esszimmer, Speisekammer, Keller
Was/wie wird gekocht? (Alltagsküche, Menüs, Snacks usw) : Schnell ein genießbares Essen (z.B. Spaghetti Bolognese mit Maggi-Fix...)
Wie häufig wird gekocht? : (fast) täglich 1x warm
Wird alleine gekocht? Oder auch gemeinsam? Mit und für Gäste? : Alleine, gelegentlich für Gäste
Was stört an der bisherigen Küche und was soll die neue Küche unbedingt können? Warum? : Eine Rollstuhlfahrerin (wenige Wochen im Jahr zu Besuch) muss Zugang zur Küche haben
Steht schon ein Küchenhersteller fest oder wird bevorzugt? : Angebote von Häcker/Schüller/Nobilia
Steht schon ein Gerätehersteller fest oder wird bevorzugt? : Mittlere Qualität (AEG , Simens, ...)
Preisvorstellung (Budget) : bis 10.000,-
 

Anhänge

  • Grundriss.jpg
    Grundriss.jpg
    47,9 KB · Aufrufe: 225
  • Top.jpg
    Top.jpg
    30,6 KB · Aufrufe: 219
  • View3d.jpg
    View3d.jpg
    43,1 KB · Aufrufe: 201
  • PLAN1.KPL
    3,9 KB · Aufrufe: 159
  • PLAN1.POS
    4,6 KB · Aufrufe: 156
Zuletzt bearbeitet:
AW: Offene Küche auf 330x238

Hi Uwe,

:welcome: im Küchenforum.

Erstmal kurzes Feedback, wir gehen gleich essen.
- Auf Rondelle verzichten und die Auszüge nehmen.
- Herd und Spüle sind zu nah beieinander, den Platz dazwischen nutzt man am meisten.
- Viele wollen zuerst zum WZ kochen, aber bei so wenig Inselplatz würde ich das Kochfeld auf die andere Seite setzen, somit hat man außenrum genug Platz und eine Wandhaube ist auch viel günstiger. Außerdem braucht man viel länger beim Vorbereiten und Schnibbeln, somit verbringt man dort mehr Zeit und das ist zum WZ netter. Außerdem kann man die Halbinsel dann auch als Buffett nutzen wenn Parties sind. Und so eine Halbinsel ist toll zum Plätzchen machen etc.

Bzgl Material ist Schichtstoff und Melamin zB günstiger und robust.

Schöne Grüße :-)
Muckelina
 
AW: Offene Küche auf 330x238

Hallo Uwe,

zu den Eckschränken gibt es hier noch was zu lesen: https://www.kuechen-forum.de/forum/themen/warum-tote-ecken-gute-ecken-sind.1616/

Das Kochfeld so dicht am Rand ist sehr ungünstig, da zum einen die Spritzer nicht nur davor, sondern auch noch daneben auf dem Boden landen. Und ein überstehender Pfannenstiel kann im Vorbeigehen leicht heruntergerissen werden. Abgesehen davon ist es beim Kochen praktischer, wenn man rund um das Kochfeld genügend Platz zum Abstellen hat.

Wie Muckelina schon geschrieben hat, ist die Hauptarbeitsfläche zwischen Spüle und Kochfeld. Bei deiner Planung ist da nur die Ecke, und da arbeitet man bestimmt nicht so gut.

Kannst du bitte mal einen komplett vermaßten Grundriss des gesamten Raums einstellen? Bei einer offenen Küche ist es sinnvoll, den kompletten Raum anzulegen und auch die anderen Möbel im Plan mit einzubauen um zu sehen, ob alles zusammenpasst. In Architektenplänen sind die Möbel oft nicht maßstabsgetreu eingezeichnet, damit alles größer wirkt.

Viele Grüße
Silke
 
AW: Offene Küche auf 330x238

Hallo
Was ist das Problem, wenn man den Topf vom Herd über einen Gang trägt? Oder haben eure Töpfe ein Loch im Boden? Bei mir tropft nix. Eine Kochinsel sollte nicht unter 90cm tief sein.

Deine Planung ist suboptimal: Du bekommst eine bessere Küche, wenn Du ein L mit Halbinsel planst. Zeilenabstand 90 - 120cm; die Halbinsel sollte ebenfalls 90cm - 120cm tief sein. Mit einer L-Küche eliminierst Du ausserdem nochmal 2 tote Ecken.

Besser als das Kochfeld ist i.d.R. die Spüle auf der Insel aufgehoben; wenn ihr euch mal beobachtet, verbringt man deutlich mehr Zeit rund um die Spüle als am Kochfeld. Ausserdem ist eine Wand-DAH günstiger und effizienter (Querströmungen).
 
AW: Offene Küche auf 330x238

Hallo!

Erstmal vielen Dank für eure Anregungen:

Zum Grundriss: Habe einen bemaßten Grundriss hochgeladen (mit Hand in Gimp die wichtigen Maße eingezeichnet)

Zur Kochinsel: Diese steht für meine Frau nicht zur Debatte... Sie soll 90cm tief sein, kann ich aber in den Programmen nicht zeichnen. Was wäre denn ein sinnvoller Abstand zum seitlichen Rand (derzeit haben wir etwa 20cm. da ein 80er Kochfeld in einem 90er-Tisch, daneben ein 15cm Auszugsschrank).

Platz zwischen Kochfeld und Spüle: Wir könnten Problemfrei Spüle und Spülmaschine tauschen, das würde zumindest etwas Arbeitsfläche zwischen Spüle und Herd schaffen.

Alternativer Plan: Ich mal einen Plan erstellt, in dem die Kochinsel etwas länger werden kann (hängt an). Kostet aber viel Stauraum.

Spüle und Kochfeld auf gegenüberliegenden Seiten: Finde ich unglücklich. So kann man halt einen Topf kochendes Wasser (z.B. Nudeln) vom Kochfeld zur Spüle transportieren, während er die ganze Zeit über der Arbeitsplatte ist. Drehe ich mich rum um durch den Raum zu gehen, kann da ein kleines Kind im Weg rumstehen.....
 

Anhänge

  • Top_Version2.jpg
    Top_Version2.jpg
    57,8 KB · Aufrufe: 172
  • PLAN2.POS
    5 KB · Aufrufe: 165
  • PLAN2.KPL
    3,9 KB · Aufrufe: 146
  • Grundriss_mit_massen.jpg
    Grundriss_mit_massen.jpg
    64,7 KB · Aufrufe: 176
AW: Offene Küche auf 330x238

Habe mal die L-Küche mit Insel geplant (siehe Anhang).
So richtig viel Arbeitsfläche bringt die gefühlt aber nicht. Sinnvoller nutzbar sind nur die 60cm neben dem Kochfeld, da nicht in der Ecke. Vorteilhaft hingegen ist, dass sich die Schränke (da nicht über Eck stehend) seltener in die quere kommen.

Welche gefällt euch besser?
 

Anhänge

  • PLAN3.POS
    5 KB · Aufrufe: 158
  • PLAN3.KPL
    3,9 KB · Aufrufe: 173
  • Top_Version3.png
    Top_Version3.png
    113,1 KB · Aufrufe: 170
AW: Offene Küche auf 330x238

Die Insel würde ich in diesem Fall 120cm tief bauen (entweder 2x normaltiefe U-Schränke oder von der Kochseite übertiefe (75cm) mit tiefenreduzierten Schränken (ca 40cm mit Tablaren) und Türchen von der Rückseite. Kochfeld dann mittig.

Abstand zwischen Insel & Spülenseite 100cm.
 
AW: Offene Küche auf 330x238

Wenn ihr euch nicht von der Kochhalbinsel abbringen laßt, dann solltet ihr aber wirklich ordentlich Arbeitsfläche zwischen Spüle und Kochfeld haben.

Ich würde da die Spüle dann doch an die Wand planhinten setzen. Man kann den Topf ja problemlos über der APL zur Spüle hinbewegen.

Dafür am Fenster dann einen 90er und den 30er MUPL .. für Bio-/Restmüll unter der APL. Ideal wäre hier eigentlich eine niedrigere Brüstungshöhe so dass man die APL gleich als Fensterbank in die Fensterlaibung laufen lassen könnte und damit dort eine auch etwas tiefere Arbeitsfläche hätte (Kekse backen oder so).

Gleich nach der toten Ecke den 60er Spülenschrank, dort im Auszug sowohl Küchenputzmittel als auch Behälter Gelber Sack Müll und evtl. Altpapier.

KVA kann dann die Nische bei den Hochschränken nutzen.

In eurer bisherigen Planung konnte ja niemand mal eben an die Spüle, wenn einer am Kochfeld steht.

Kochhalbinsel dann aus 80er plus 30er z. B. für Gewürze, Öle/Essig etc.

Halbinsel von Esszimmerseite in der toten Ecke mit einem normaltiefem 60er z. B. mit Innenauszügen bestückt, sonst tiefenreduziert.

Und ja, es lohnt sich auf die 78 cm hohen Korpusse umzusteigen, damit wird der Sockel dann nicht 16 cm sondern nur 10 cm hoch.

Außerdem kann man wie in meiner Planungsanpassung gezeigt die 6 Raster zur Aufteilung 2 Schubladen und 2 Auszüge nutzen.

6 Raster - was heißt das?

Und zum Angucken, wie Stauraum genutzt werden kann:
Gerbera mit ganz vielen übertiefen Auszügen
Stauraumnutzung von doppelkeks und die Küche dazu
Küche von Moiree
Küche von KerstinB und nach dem Umzug (hier kann man gut sehen, was man alles alleine in Schubladen unterbringen kann)
Küche von Jelena
Küche von Ulla
Nekos Küche
Darlas Küche
Magnolias Küche
Vanessas Küche
Hemerocallis Küche
Littlequeenies Küche
Angelikas Küche
Küche von atmos
Küche von biggimaus
Küche von Bodybiene
Küche von Missjenny
Küche von träumerle
Muckelinas Küche (interessante Variante mit aufgesetzten Griffen)
Mr. Woms (Esthers) ;-) Schreinerküche
Küche von Ullmann
 

Anhänge

  • uwe81_20140205_kb1.POS
    9,5 KB · Aufrufe: 145
  • uwe81_20140205_kb1.kpl
    3,9 KB · Aufrufe: 146
  • uwe81_20140205_kb1_Grundriss.jpg
    uwe81_20140205_kb1_Grundriss.jpg
    61,6 KB · Aufrufe: 302
  • uwe81_20140205_kb1_Ansicht6.jpg
    uwe81_20140205_kb1_Ansicht6.jpg
    140,4 KB · Aufrufe: 168
  • uwe81_20140205_kb1_Ansicht5.jpg
    uwe81_20140205_kb1_Ansicht5.jpg
    52,1 KB · Aufrufe: 173
  • uwe81_20140205_kb1_Ansicht4.jpg
    uwe81_20140205_kb1_Ansicht4.jpg
    117,6 KB · Aufrufe: 162
  • uwe81_20140205_kb1_Ansicht3.jpg
    uwe81_20140205_kb1_Ansicht3.jpg
    107,4 KB · Aufrufe: 168
  • uwe81_20140205_kb1_Ansicht2.jpg
    uwe81_20140205_kb1_Ansicht2.jpg
    113,2 KB · Aufrufe: 167
  • uwe81_20140205_kb1_Ansicht1.jpg
    uwe81_20140205_kb1_Ansicht1.jpg
    86,1 KB · Aufrufe: 183
AW: Offene Küche auf 330x238

Vielen Dank,

der Grundriss gefällt und wirklich gut. Besonders die Ecklösung mit dem Oberschrank hatten wir noch garnicht am Schirm. Vermutlich werden wir die Küche in der Art (mit 15er oder 20er-Unterschrank neben dem Kochfeld, um einen breiteren Durchgang zu haben) bauen.

Viele Grüße,
Uwe
 
AW: Offene Küche auf 330x238

Ich würde den 30er nicht zum 15er oder 20er reduzieren.

Da sollten auch so 95 bis 98 cm Durchgang sein. Ich habe jetzt eine recht breite Sichtseite dort eingeplant, die kann schmaler ausfallen.
 
AW: Offene Küche auf 330x238

Zu dem 15er/20er-Schrank: Meine Schwiegermutter ist einige Wochen im Jahr zu Besuch und sitzt im Rollstuhl. Da sind 95cm schon eher Eng und somit Kratzeranfällig. Ansonsten würden wir auch den breiteren Schrank nehmen, aber so können ein paar cm mehr zur Haltbarkeit der Küche beitragen.
 
AW: Offene Küche auf 330x238

Den Durchgang für die Schwiemu bekommt man breiter, wenn die Halbinsel keine Kochinsel mehr ist, sondern Anrichteinsel, Arbeitsinsel, Plätzchenausstechinsel, Tischabräuminsel,...

Deshalb hier mein Vorschlag, basierend auf Kerstins schöner Vorarbeit:
Keine Änderung an den Hochschränken.
Wandzeile: tote Ecke, 80cm US im Raster 1-1-2-2, 90cm 1-1-2-2 mit Kochfeld, 30cm US für Handtücher, Tabletts und Schneidebretter.
Festerzeile: tote Ecke, 60cm GSP, 60cm Spüle, tote Ecke
Halbinsel: 40cm MUPL 3-3, 60cm US 1-2-3
Halbinsel Zimmerseite: 50-60-50cm nach Belieben.

Der MUPL ist an dieser Stelle besser als in der Kochzeile, da man ihn dann auch bei offener GSP bedienen kann (nach dem Essen Teller abwischen).

Kochen an der Wand hat den Vorteil, dass die DAH nicht so querstömungsanfällig ist, abgesehen davon, dass eine Wand-DAH eher günstiger ist. Die Erfahrung von den langjährigen (Familien)Köchen/-innen hier ist die, dass man deutlich länger mit Schnibbeln und Vorbereiten und Herrichten und Schon-Mal-Aufräumen beschäftigt ist, als man Zeit direkt am Kochfeld mit Rühren verbringt. Und wenn man gerade konzentriert rührt, dann braucht man eh keine Ablenkung durch Topfgucker.
 

Anhänge

  • uwe81_mca_V1.POS
    9,8 KB · Aufrufe: 153
  • uwe81_mca_V1_A1.jpg
    uwe81_mca_V1_A1.jpg
    57 KB · Aufrufe: 162
  • uwe81_mca_V1_A2.jpg
    uwe81_mca_V1_A2.jpg
    51,5 KB · Aufrufe: 161
  • uwe81_mca_V1_A3.jpg
    uwe81_mca_V1_A3.jpg
    50,9 KB · Aufrufe: 168
  • uwe81_mca_V1_A4.jpg
    uwe81_mca_V1_A4.jpg
    53,8 KB · Aufrufe: 174
  • uwe81_mca_V1_G.JPG
    uwe81_mca_V1_G.JPG
    43,1 KB · Aufrufe: 161
  • uwe81_mca_V1.KPL
    3,9 KB · Aufrufe: 148
Zuletzt bearbeitet:
AW: Offene Küche auf 330x238

Vielen dank für den Vorschlag.

Mit gefällt der durchaus gut. Allerdings ist das mit meiner Frau leider nicht durchzusetzen. Als wir angefangen haben zu bauen, gab es zwei Aussagen von Ihr:

* Ich will ein freistehendes Einfamilienhaus
* Ich will eine offene Küche mit Kochinsel

Insofern steht die wirklich nicht zur Debatte, auch wenn alle im Forum uns die ausreden wollen.....
 
AW: Offene Küche auf 330x238

Tja, was soll man da sagen. Dann wird es eben die Kochhalbinsel mit wenig bis kaum nutzbarer Abstellfläche rechts vom Kochfeld ;-)

EDIT:
Ihr solltet dann aber wenigstens den größeren Abstand Kochfeld / Spüle berücksichtigen:
131982d1391585407-offene-kueche-auf-330x238-uwe81_20140205_kb1_grundriss.jpg
 
AW: Offene Küche auf 330x238

Es ist ja immer mal wieder gut, wenn man seine Wünsche hinterfragt bzw begründet. Woher kommt das unbedingte "ich will"?

Beim freistehenden Einfamilienhaus kann das zB sein, dass man garantiert keinen Nachbarn hinter der Wand hört, dass man an allen vier Seiten an die frische Luft kann usw.

Woher mag der Wunsch nach einer Kochinsel kommen?
Z.B. aus unserer Vergangenheit: man saß um das Lagerfeuer herum, dort war es warm, geschützt und es gab etwas zu essen. Archaisches Überbleibsel also.
Und ich denke, wir sind da alle zur Zeit von den vielen Kochshows im TV geprägt. Dort sind Kochinseln absolut sinnvoll: auf der einen Seite der Koch, auf der anderen Seite der Kameramann.
Außerdem spiegelt es so schön das Gegenteil von den "die Köchin ist weggesperrt"-Küchen unserer Eltern/Großeltern wider, wir wollen das heute anders haben, kommunikativer, familientauglicher.
Und hier ist der Ansatzpunkt: was genau ist familientauglicher? Eine offene Küche auf jeden Fall. Aber bei familientauglich punktet die leere Halbinsel eindeutig gegenüber der Kochhalbinsel bei euch, finde ich, siehe meine Aufzählung oben, was man daran alles machen kann, und noch mehr: Buffet für Gäste, die Kaffeemaschine steht viel näher am Esstisch, das Pfannen/Töpfe/Kochchaos ist mehr im Hintergrund.

Es gibt Beispiele von begeisterten Usern von Koch(halb)inseln. Deren Familienverhältnisse sind aber anders, oder die Inseln sind viel größer.

Vielleicht doch noch einmal ein Diskussionsrunde einlegen mit Für und Wider, mit Durchdenken der Arbeitsweisen in der Küche.
Sollte allerdings "ich will aber!" das entscheidende Argument sein, dann hilft alles nix.
Dann muss Schwiemu eben einen schmaleren Rollstuhl bekommen. Und Achtung, dass die Kinder keine Pfannen beim Durchrennen von der Insel reißen.
 
AW: Offene Küche auf 330x238

Mir gefallen sowohl Kerstin's als auch Annette's Vorschlag sehr gut.

Bei Annette's Plan hätte ich die Abtropfe (wenn verlangt, für mich total überflüssig) lieber auf der anderen Seite für mehr Arbeitsfläche am Stück.

Ich bin kein Fan von Kochinsels und mir würde die Abstellfläche auf der Halbinsel fehlen. Es werden Teller vom Tisch rüber gestellt oder eben andersrum. Oder die Einkäufe werden abgestellt und gleich in den Kühli auf der anderen Seite eingeräumt.

LG
Evelin
 

Ähnliche Beiträge

Neff Hausgeräte Ballerina Küchen Blum Bewegungstechnologie Weibel - Intelligente Küchenlüftung

Neff Spezial

Blum Zonenplaner

Weibel Abluft-Tuning

Weibel Abluft-Tuning
Zurück
Oben