Unbeendet neue Küche im Kaffeemühlenhaus

AW: neue Küche im Kaffeemühlenhaus

So ganz spontan würde ich sagen.

Arbeiten=Küche
Wohnen= Essen
Essen= Wohnzimmer

Aber die Frage ist ja immer, wo krieg ich Wasser und Abwasser her.
Da bin ich total überfragt. Manchmal kann man es ja über den Keller ziehen.
Strom ist ja nicht so das Problem.

Von den Kosten her, müsste man es dann mal erfragen. Aber ne Wand abreißen und Träger einziehen kostet ja auch etwas. Und was habt ihr dann mit den Lücken im bestehenden Fußboden vor?
 
AW: neue Küche im Kaffeemühlenhaus

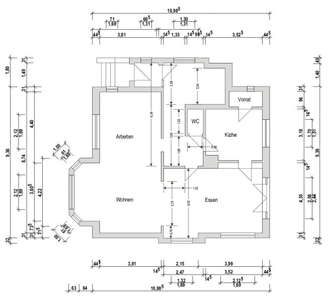
Grundriss mal als JPG, habe ich im ersten Beitrag so eingefügt:
130691d1390322269-neue-kueche-im-kaffeemuehlenhaus-kaffeemuehle_201401_grundriss.jpg



Taras Vorschlag würde viel Sinn machen.

Die Brüstungshöhen der Fenster auf der linken Hausseite dürften ja eher nur ca. 76 cm sein - oder?

Und ein Gartenzugang ist nur in dem Raum, der mit Esszimmer bezeichnet ist - oder?

Du hast die Raumhöhe mit 258 cm angegeben ... stimmt das?

Und wie ist der Ofen, der da am Schacht im Esszimmer steht?

Wenn du hast und magst wären auch manchmal 1 oder 2 Foto ganz schön, dann gewinnt man einen besseren Eindruck.

Taras Frage nach Fußbodenergänzung ist auch wichtig. Sprich, welche Böden sind in den einzelnen Räumen?

Wichtig wäre es auch nochmal die Heizkörper in allen Räumen einzuzeichen, zumindest halbwegs positionsgerecht.
 
AW: neue Küche im Kaffeemühlenhaus

Hallo Kerstin, danke für deine Antwort. :-)

Aaaalso: wir sind noch nicht eingezogen, das Haus wird noch bewohnt. Ich kann daher zu den Heizkörpern leider noch keine genauen Angaben machen. Aber ich bin mir sicher, dass der unter dem Fenster im Arbeitszimmer ist. Fotos kann ich leider auch nicht einstellen. Ich hab zwar welche aber ich könnte mir vorstellen, dass die Ex- Eigentümerin das nicht so gerne hätte, wenn sie ihr Wohnzimmer hier finden würde. Wenn das Haus geräumt ist wäre das aber kein Problem. Brüstungshöhe ist richtig, Garten geht vom Esszimmer aus planrechts. Die Raumhöhe ist eigentlich ca 3,00 m aber abgehängt auf 2,58. Der Ofen ist ca 50x50x100 und steht mittig vor dem Schacht ca 20 cm von der Wand entfernt.
Ach so, die Böden: Es liegt überall Buchenparkett im EG mit Ausnahme des Eingangsbereiches der Küche und des Gäste WCs. Da sind Fliesen die aber auch raus kommen.
Danke
 
AW: neue Küche im Kaffeemühlenhaus

ach so: in den anderen Räumen, also Wohnzimmer und Esszimmer sind die Heizkörper auch jeweils nur unter den Fenstern
 
AW: neue Küche im Kaffeemühlenhaus

Was wollt ihr denn alles so machen? Habt ihr da schon ein Konzept? Weil du ja auch geschrieben hast, Wasser voll variabel.

Ist denn planlinks auch Garten oder nur ein Minivorgarten zur Straße hin?

Wollt ihr die Originaldeckenhöhe wieder herstellen?

EDIT: Für alle, die zusätzlichen Infos habe ich alle auch noch im ersten Beitrag eingetragen. Dann findet man sie schneller wieder ;-)
 
AW: neue Küche im Kaffeemühlenhaus

ursprünglich war der Plan:

Böden neu in der Küche, Eingangsbereich, Gäste WC und erstes OG. Der Parkettboden ist noch 100% in Schuss und sollte eigentlich bleiben. Bäder müssen im ersten und zweiten OG neu und Malerarbeiten im gesamten Haus.
Garten ist planlinks nicht vorhanden, nur ein kleiner Vorgarten. Ich denke, wir werden die Originaldeckenhöhe nicht bzw noch nicht wieder herstellen. Ich denke, das ist energetisch nicht so clever und ausserdem würde das auch noch mal einen finanziellen Kraftakt darstellen. Die Decken sind von der Ex ET erst vor kurzem frisch lackiert worden, eine spezielle Lackierung die auch echt richtig geil aussieht. Die Bäder, Böden und Küche kosten ja auch schon ein paar Dollar. Im Übrigen muss man auch sagen, dass das Haus sehr gut in Schuss ist. Die Dinge die ich aufgezählt hab sind Maßnahmen die wir machen, weil wir die Böden und die 90er Jahre Bäder nicht mögen. Zwingend ist das alles eigentlich nicht. Nur die Küche, die ist zwingend notwendig :w00t:
Ich werd aber immer unsicherer ob das echt so clever ist, die Küche auf 4x4 m zu planen wenngleich wir zu zweit 225qm haben....aber letztlich muss das Finanzielle auch im Rahmen bleiben.
Bzgl. des Wassers: Vielleicht hab ich da in meiner laienhaften Unbekümmertheit einfach mal was behauptet, was gar nicht so einfach ist? Ich dachte immer, innerhalb eines Raumes kann man Leitungen verlegen wie man lustig ist wenn eh auch der Boden raus muss...im Mom ist Wasser in der Küche vor dem Fenster.
Grüße
 
AW: neue Küche im Kaffeemühlenhaus

Können Bäder aus den 90ern so schrecklich sein? ;D

Die Frage ist halt welchen Stellenwert die Küche/das Kochen für dich hat. Wenn der sehr groß ist wäre es schon etwas schade auf die kleine Küche beschränkt zu sein.
 
AW: neue Küche im Kaffeemühlenhaus

Die Wasserzuleitung ist nicht so das Problem, da kann man recht flexibel sein. Aber der Wasserabfluß hat einen Durchmesser von 5 cm und braucht Gefälle. Zwar nur 1 bis 2 cm auf den Meter, aber immerhin.

Und, 4x4 m ist die Küche ja noch nicht mal ... sondern 3,52x3,18m und da ist noch der Kaminschacht.

FRAGE:
Gibt es eigentlich einen Keller? Da ja keine FBH da ist, kann man Wasser/Abwasser meist auch an der Kellerdecke zum gewünschtem Punkt führen und dort dann durch den Boden nach oben kommen.

Ihr solltet euch wg. Nutzung der Räumlichkeiten echt nochmal Gedanken machen. Denn jetzt husch husch eine Küche in den "kleinen" Raum, um dann festzustellen, dass man das bei den großen Räumen auch anders organisieren kann, wäre halt schade.

Ich finde z. B., dass Kochen und Essen zusammengehören. Wohnen mit Lesen, in Ruhe Fernsehen oder auch gemütlich auf dem Sofa sitzen und reden (das passiert bei mir immer am Esstisch :kiss:) ist eher so der Rückzugspunkt.
 
AW: neue Küche im Kaffeemühlenhaus

So, jetzt habe ich die Küche mal am angestammten Platz gelassen und dafür die Vorratskammer gekillt. Maße in dem Bereich geschätzt.

Die rausgenommene Wand planrechts auf den unbedingt notwendigen Stummel von 25 bis 30 cm reduziert.

Ich würde also planrechts:
- 60er tiefenreduziert (ca. 50 cm) für Staubsauger/Wischer
- 60er tiefenreduziert (ca. 50 cm) für Vorräte mit Innenauszügen
- GSP
- 60er Spülenschrank mit 2 Auszügen, oberer Auszug tiefengekürzt wg. dem Becken und Abfluß für die küchenüblichen Putzmittel, unterer Auszug für einen großen Behälter gelber Sack
- 40er MUPL , oben Bio/Restmüll, evtl. noch ein bißchen Platz für Altpapier. Sonst unterer Auszug Altpapier/Altglas .. bzw. dies alternativ in den Auszügen unter dem Backofen .
- 60er Auszugsunterschrank insbesondere Messer, Küchenhelfer, Schüsseln etc, evtl. Gewürze. Halt alles, was man beim Vorbereiten so braucht.
- 135° Ecke
- 100er Auszugsunterschrank für Kochfeld linksbündig
- Sichtwange
- 60er Auszugsunterschrank. Das könnte auch einer mit Drehtür und Innenauszügen auch für Gläser oder so sein.
- Verblendung zur Wand hin.

Die Hochschränke planoben mit einem Querfach oben schon fast deckenhoch. Den Rest mit Korpusmaterial verkleidet. Daraus könnte dann auch die Abhängung über dem Fenster sein, so dass man Licht integrieren kann. Wobei die Decke ja eigentlich eh abgehängt ist, so dass man sich das wohl sparen kann und Lichter in die abgehängte Decke integriert.

Über dem Kochfeld dann eine Deckenabhängung für die Aufnahme einer Decken-DAH und gleichzeitig Verkleidung der Abluftführung zur Außenwand.
Beispiele für realisierte Deckenhauben
Und
Novy Deckenluefter-Montage und Installation- Thread von Michael
Decken-DAH-Montage bei Träumerle
Decken-DAH-Montage bei andrej
Oder aus Tinis Küche ... da gibt es ganz viele Aufbaubilder
Oder aus TheDudes Küche mit Schattenfuge der Abhängung und an der Fensterseite
Oder aus Toms Küche auch mit Schattenfuge der Abhängung. Hier ist die Abhängung einmal rundum geführt.
Oder aus Weis28 Küche ... in ganz besonderer Form

----------------
Links oben im Bereich der ehemaligen Abstellkammer 60er Kühlschrank und 60er Backofenhochschrank. Die werden über die Mauer planlinks oben drüberstehen. Da würde ich dann über die gesamte Nische eine Art Beleuchtungsregal in Tiefe des Überstandes setzen.

Dort dann auch 8rasterig noch ein 90er Auszugsunterschrank, insbesondere Geschirr, Besteck usw. Und unter dem angesetzen Bartisch ein Ablagefach für die Tageszeitung oder den Laptop und dadrunter Drehtür für selten gebrauchtes.
 

Anhänge

  • Kaffeemuehle_20140122_kb1-alt_Ansicht1.jpg
    Kaffeemuehle_20140122_kb1-alt_Ansicht1.jpg
    105,4 KB · Aufrufe: 164
  • Kaffeemuehle_20140122_kb1-alt_Grundriss.jpg
    Kaffeemuehle_20140122_kb1-alt_Grundriss.jpg
    49,5 KB · Aufrufe: 153
  • Kaffeemuehle_20140122_kb1-alt_Ansicht7.jpg
    Kaffeemuehle_20140122_kb1-alt_Ansicht7.jpg
    119,8 KB · Aufrufe: 152
  • Kaffeemuehle_20140122_kb1-alt_Ansicht6.jpg
    Kaffeemuehle_20140122_kb1-alt_Ansicht6.jpg
    77,7 KB · Aufrufe: 174
  • Kaffeemuehle_20140122_kb1-alt_Ansicht5.jpg
    Kaffeemuehle_20140122_kb1-alt_Ansicht5.jpg
    121,9 KB · Aufrufe: 176
  • Kaffeemuehle_20140122_kb1-alt_Ansicht4.jpg
    Kaffeemuehle_20140122_kb1-alt_Ansicht4.jpg
    94,6 KB · Aufrufe: 163
  • Kaffeemuehle_20140122_kb1-alt_Ansicht3.jpg
    Kaffeemuehle_20140122_kb1-alt_Ansicht3.jpg
    116,9 KB · Aufrufe: 157
  • Kaffeemuehle_20140122_kb1-alt_Ansicht2.jpg
    Kaffeemuehle_20140122_kb1-alt_Ansicht2.jpg
    124,4 KB · Aufrufe: 179
AW: neue Küche im Kaffeemühlenhaus

Und hier noch die Alnodateien:
 

Anhänge

  • Kaffeemuehle_20140122_kb1-alt.KPL
    4,1 KB · Aufrufe: 114
  • Kaffeemuehle_20140122_kb1-alt.POS
    17,8 KB · Aufrufe: 126
AW: neue Küche im Kaffeemühlenhaus

puh, ich bin platt....:w00t::top::clap:Daaaaaankeeee!!! Ich hab gerade nur ganz kurz Zeit und werd mich daher heute abend an den Plan setzen und das Ganze erstmal studieren. Ganz großes Tennis.
Grüße
 
AW: neue Küche im Kaffeemühlenhaus

So, nun hab ich Zeit und hab mir erstmal ganz in Ruhe die Planung von Kerstin angesehen. Ich find es echt toll, hab es meinem Männe gezeigt und er will partout weder die Abstellkammer killen noch die Küche in den Essraum "ziehen"...:rolleyes: Ihm gefällt Taras Planung viel besser. Ich selber weiss nicht genau, was mir besser gefällt. Was mir ehrlich gesagt nicht so gut gefällt ist die 135 Grad Ecke. Aber das ist rein optisch. Ich weiss, dass es nicht anders geht in diesem kleinen Kabuff aber ich bin ein Freund von geradeaus und 90 Grad...:rolleyes:. Ich weiss, ich hätte am liebsten die eierlegende Wollmilchsau (oder wie heisst das noch?) und hab auch schon ein total schlechtes Gewissen, dass Ihr euch so Mühe gebt und ich mit meinen Ideen dann um die Ecke komme. Ich denke, wir werden Taras Plan jetzt weiterverfolgen. Ich war heute bei meinem :kfb: der mir Taras Plan in Form eine SieMatic S2 geplant hat. Ich weiß, grifflos und Platz passt nicht zusammen aber ich bin in das Teil so schrecklich verliebt :kiss: Die Geräte die er vorgesehen hat waren von Neff bzw. Miele . Er meinte, egal was ich will, Neff und Miele kostet mich unterm Strich das Gleiche :-\ Ich hab mich noch nicht im Datail mit den Geräten auseinandergesetzt und die Planung von ihm bekomm ich erst in den nächsten Tagen. Da kommen bestimmt dann wieder Fragen...:-[
Euch auf jeden Fall schonmal ganz ganz herzlichen Dank, ihr habt mir schon sehr geholfen. Ich hab ne Menge gelernt und Tara, Dein Plan wird es wahrscheinlich ;-). Da wäre ich ohne Eure bzw. deine Hilfe nicht drauf gekommen...:-[
 
AW: neue Küche im Kaffeemühlenhaus

Ja, so 135° Ecken ;-)

Ich finde ja Taras Planung grundsätzlich nicht so schlecht. Aber, bei einem 80er Kochfeld wird die Insel mit Wangen und Blenden ca. 185 cm breit sein. Gegenüber einer Wand, die bis zur Tür vom Flur 175 breit ist.
129906d1389697498-neue-kueche-im-kaffeemuehlenhaus-grundriss.jpg


Sie wird an einer Wand mit 209 cm mind. 90 cm tief plus APL-Sitzüberstand von ca. 30 cm sein plus ca. 10 cm, damit der Gang zur Spüle breit genug ist.

Diesen Halbinselblock solltet ihr mal mit Kartons so stellen und dann die Eingangssituation betrachten.

Die Tür zur Abstellkammer wird immer irgendwie in den Raum stehen.

Und das waren die Gründe, warum ich durch hin- und herschieben auf die 135° gekommen bin. Es gibt irgendwie mehr Freiraum ohne unpraktisch zu werden.
Kaffeemuehle_20140122_kb1-alt_GrundrissKueche.jpg
 
AW: neue Küche im Kaffeemühlenhaus

In Taras Variante würde ich übrigens die Spülenzeile anders aufteilen:

129908d1389697498-neue-kueche-im-kaffeemuehlenhaus-kochen.jpg



von links nach rechts:
- 2 bis 4 cm Blende
- 60 cm Hochschrank , unten GSP, drüber Backofen . Vorteil, GSP kann in eine Richtung ausgeräumt werden, alle Schränke ohne Umschiffen der Klappe zu erreichen
- 80 cm Spülenschrank, Raster 3-3, Spüle rechtsbündig eingebaut. Im oberen Auszug links dann noch Platz für Gelber Sack Müll / Altpapier, sonst Spülmittel etc., unterer Auszug Stauraum
- 30 cm MUPL für Bio/Restmüll unter der APL, unten Stauraum
- 80er Auszugsunterschrank, Raster 1-2-3
- 60 cm Kühlschrank
- 2 bis 4 cm Blende ... damit ist Kühlschrank auch gut vom Esstisch und Küchensitzplatz zu erreichen
 
AW: neue Küche im Kaffeemühlenhaus

GSP unter dem Backofen ist eine super Idee! Auch hätte ich nach deinem Vorschlag den MUPL ... :kiss: Ich hab die Aufteilung des 80er Spülenschrankes nicht ganz verstanden. Hast du ein Foto? Ach so, ich möchte nur Restmüll in der Küche. Gelber Sack u Altpapier soll in den Vorratsraum
 
AW: neue Küche im Kaffeemühlenhaus

Na dann, kann im oberen Auszug eines 80er Spülenschranks, Becken wie gesagt nach rechts, damit nach links etwas Abstand zum Hochschrank ist, im rechten Bereich nur tiefenreduziert genutzt werden und links in voller Tiefe.

Aufteilung dann wie unten und, wenn der Hersteller das kann, kann der linke Teil quasi breiter sein.

full
 
AW: neue Küche im Kaffeemühlenhaus

Ok, geschnallt :-) Ich bin mir noch nicht so sicher, ob man in de kleinen Küche raumhohe Seitenschränke planen sollte ?! Wirkt das nicht zu erdrückend? Ich denke nämlich auch, dass die Oberschränke über dem Fenster nicht möglich sind, die Fenster sind 1,70m hoch. Was meinst du ?
 
AW: neue Küche im Kaffeemühlenhaus

Also, lt. Grundriss in der Küche:
BRH: 93 cm andere Räume 76 cm
Fensterhöhe: 151 cm, andere Räume 169
Raumhöhe 258 cm abgehangen von 300 cm

bleiben also in der Küche zwischen Fensteroberkante und Decke 14 cm .. und da passen keine Hängeschränke.
 

Ähnliche Beiträge

Neff Hausgeräte Ballerina Küchen Blum Bewegungstechnologie Weibel - Intelligente Küchenlüftung

Neff Spezial

Blum Zonenplaner

Weibel Abluft-Tuning

Weibel Abluft-Tuning
Zurück
Oben