Unbeendet neue Küche im Altbau

Judy20

Mitglied
Beiträge
3
neue Küche im Altbau

Hallo zusammen,

wir stehen ganz am Anfang der Renovierung eines alten Hauses. Mit der Küchenplanung tun wir uns gerade etwas schwer.
Es gibt die Überlegung die Wand Richtung Esszimmer aufzumachen. Diese Variante möchte ich in diesem Thread zur Diskussion stellen. Evtl. mache ich noch einen weiteren Thread auf um eine Küche mit geschlossener Wand Richtung EZ zu diskutieren.
Ursprünglich wollten wir in die Küche noch einen Speisekammer einplanen. Uns geht dabei weniger um Vorräte als um Dinge wie Staubsauger, Gelber Sack, eine Kiste Wasser, etc. die nicht einfach so in der Küche rumstehen sollen, wofür wir aber auch nicht immer in den Keller laufen wollen. Passt das in die Hochschränke alles rein und ist das praktisch?

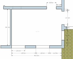
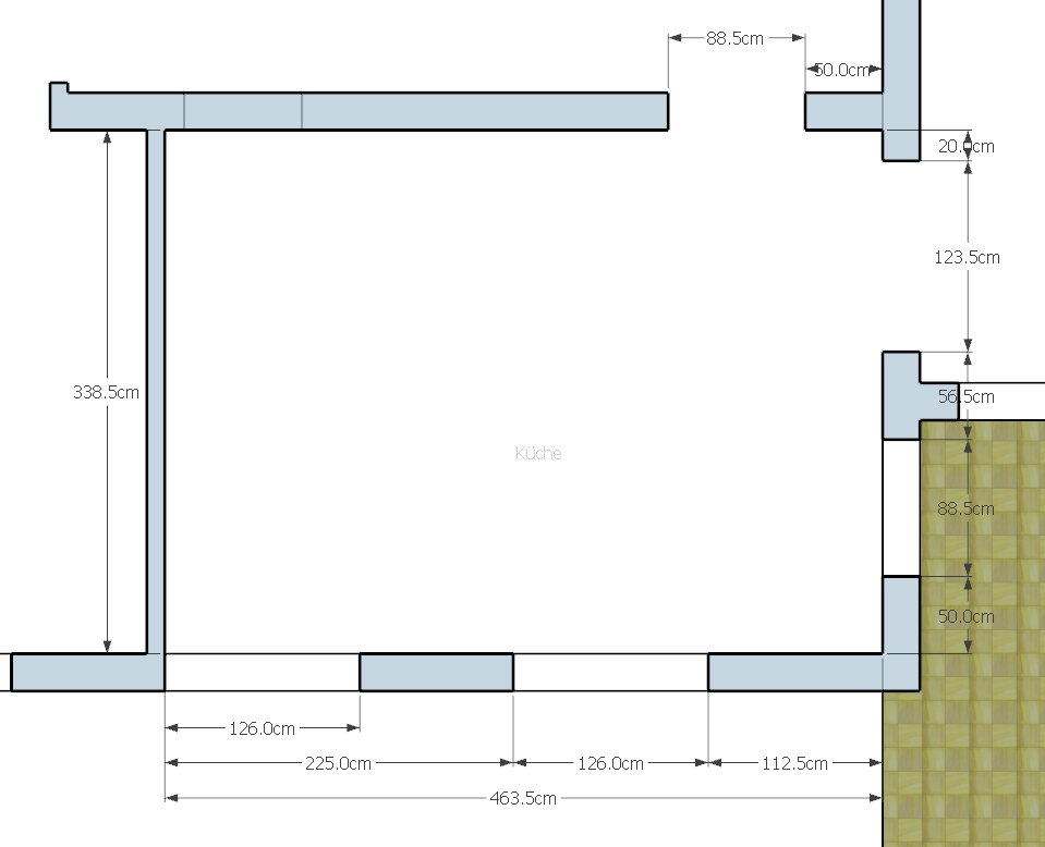
Anbei stelle ich mal unseren ersten Planungsentwurf ein. So richtig glücklich sind wir noch nicht...

Die Eingangstür (vom Flur kommend) wird nur als Durchgang geplant, genauso Richtung Esszimmer. Es gab auch schon die Idee die heutige Terassentür zu einem Fenster zu machen, da man ja über das Esszimmer auch über einen kurzen Weg zur Terasse kommt.

Wir sind gespannt auf Eure Kommentare und Ideen. Danke!!

Checkliste zur Küchenplanung

Personenkriterien und Ergonomie
Anzahl Personen im Haushalt: 4
Davon Kinder: 2
Körpergrößen aller Hauptbenutzer in cm (wegen Arbeitshöhe ): 161, 179
Welche Arbeitshöhe ist angedacht (in cm)?: 90

Gebäudekriterien
Art des Gebäudes: Neu-/Umbau > Planänderungen möglich, Eigentum
Brüstungshöhe des Fensters (in cm): aktuell zu klein, wird passend zur Arbeitshöhe gemacht
Fensterhöhe (in cm):
Raumhöhe in cm: 250
Heizung: Fußbodenheizung
Sanitäranschlüsse: vollkommen variabel

Einbaugerätekriterien
Ausführung Kühlgerät: Integriert im Hochschrank (60cm)
Einbaukühlgerät Größe: Noch unbekannt
Ausführung Tiefkühl (TK)-Gerät: Im Kühlschrank bis 2 Schubladen unten
Dunstabzugshaube: Umluft
Hochgebauter Backofen : wenn möglich
Geplante Heißgeräte: Backofen
Hochgebauter Geschirrspüler : nein
Art des Kochfeldes: Induktion
Kochfeldbreite (ca. in cm): breit

Sitzmöglichkeiten
Sitzmöglichkeit in der Küche / im Küchenbereich: Tresen in Barhöhe
Sitzmöglichkeit: Für wieviel Personen?: Für 2 Personen
Sitzmöglichkeit: Tisch - wenn gesonderter Tisch oder offene Küche: Keiner
Gewünschte oder vorhandene Tischgröße:
Wofür soll der Sitzplatz in der Küche genutzt werden und wie häufig: für die Kinder um Zuschauen beim Kochen oder mal einen schnellen Kaffee trinken, Frühstücken (wenn man schnell alleine frühstückt)

Stauraumplanung
Was steht auf der Arbeitsplatte oder soll dort stehen?: Wasserkocher, Messerblock, Küchenmaschine, Toaster
Welche weiteren Küchenmaschinen müssen in der Küche untergebracht werden: Küchenmaschine, Allesschneider (z.B. in Schublade), Pürierstab
Was soll in der Küche außer den Standards untergebracht werden: ALLE Vorräte, Getränkekisten, Staubsauger/Wischer etc., Geschirr komplett (nichts in Ess-/Wohnzimmer)
Welchen Stauraum gibt es sonst noch: Hauswirtschaftsraum, Keller

Kochgewohnheiten
Was/wie wird gekocht? (Alltagsküche, Menüs, Snacks usw): Alltagsküche, viel gebacken
Wie häufig wird gekocht: (fast) täglich 1x warm
Wird alleine gekocht? Oder auch gemeinsam? Mit und für Gäste?: alleine, mit den Kindern zusammen

Spülen und Müll
Spülenform: 1 1/2 Becken mit Abtropffläche
Welche Mülltrennung soll in der Küche vorgehalten werden: Biomüll, Gelber Sack Müll, Restmüll

Sonstiges
Steht schon ein Küchenhersteller fest oder wird bevorzugt:
Steht schon ein Gerätehersteller fest oder wird bevorzugt:
Küchenstil: Klassisch
Was stört an der bisherigen Küche und was soll die neue Küche unbedingt können? Warum?: heutige Küche ist sehr klein, aber dadurch sehr kurze Wege (auch zum Esstisch)
Preisvorstellung (Budget):

Angehängte Dateien
 

Anhänge

  • Grundriss_EG.jpg
    Grundriss_EG.jpg
    67,5 KB · Aufrufe: 223
  • Grundriss_Küche.jpg
    Grundriss_Küche.jpg
    42,4 KB · Aufrufe: 231
  • Plan1_Grundriss.jpg
    Plan1_Grundriss.jpg
    58,6 KB · Aufrufe: 223
  • Plan1_Ansicht.jpg
    Plan1_Ansicht.jpg
    81,2 KB · Aufrufe: 235
  • KücheMitBar.KPL
    3,9 KB · Aufrufe: 149
  • KücheMitBar.POS
    4,8 KB · Aufrufe: 142
Hallo und herzlich willkommen.

das planlinke Fenster soll so in der Ecke bleiben? Ich hätte ja eher gedacht, Büro und Küche zu Büro und Essen zu machen oder Wozi und Essen zu Küche und Essen zu machen.
 
Danke Evelin!
Eventuell könnte man das Fenster planunten links auch schließen. Es gab auch schon die Überlegung, dort noch eine Speisekammer einzuziehen (in Fensterbreite über den ganzen Raum).
Wozi/Essen zu Küche/Essen zu tauschen hatten wir uns auch mal überlegt, aber dann ist uns das Wozi (in der Küche) zu klein.
 
Mit Speise würde die Küche winzig werden.

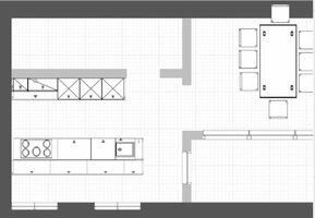
judy1.jpgjudy11.jpgjudy3.jpg

um die Haube herum weiß ich nicht, was am besten aussieht oder ob eine Flachschirmhaube vielleicht besser ist.
 
Man könnte auch Evelins Plan nehmen und statt der Zeile links die Insel zur linken Wand hin verlängern und da noch das Kochfeld drauf packen. An der Inselrückseite dann Sitzplätze.
Im Flur ist auch guter Schrankstellplatz an der Wand zum Treppenhaus. Falls da noch nichts geplant ist, kann man da ja auch Staubsauger etc unterbringen.
 
Wow. Danke für Eure Ideen. Uns gefällt die Insel-Idee recht gut. Besser als alles was wir bisher selbst geplant hatten und auch besser als vom ersten Küchenplaner...
Gibt es Vorteile, die Spüle auf die Insel zu packen? Oder würde das Kochfeld genauso gut gehen? Damit würde das dreckige Geschirr zumindest nicht mitten im Raum stehen ;-) Allerdings wirft es die Frage auf, ob der Dunstabzug nach unten dann auch so gut funktioniert?
 
du kannst die Küche auch so stellen

judy21.jpgjudy22.jpg

die Insel wäre 350cm lang

Bei mir steht kein schmutziges Geschirr nach dem Essen rum, das landet gleich im GSP. Einzig die Pfanne seht auf dem Kochfeld.
 

Ähnliche Beiträge

Neff Hausgeräte Ballerina Küchen Blum Bewegungstechnologie Weibel - Intelligente Küchenlüftung

Neff Spezial

Blum Zonenplaner

Weibel Abluft-Tuning

Weibel Abluft-Tuning
Zurück
Oben