Unbeendet Meterwaren Küche für neues EFH

Render86

Mitglied
Beiträge
3
Hallo zusammen,

wir sind momentan dran uns den Traum eines Hauses zu erfüllen und haben uns auch schon über das Thema Küche gedanken gemacht. Jetzt ist es allerdings so, dass wir überstürzt einem Meterpreis -Kaufvertrag der Firma Fischer aus Gutach zugestimmt haben und jetzt natürlich das beste daraus machen wollen von der Preis/Leistung her.
Da sich unser Haus ebenfalls noch in der Planungsphase befindet sind Änderungen bzgl. der Fenster- und Terassentürposition kein Problem, auch die Strom und Wasseranschlüsse sind variabel.
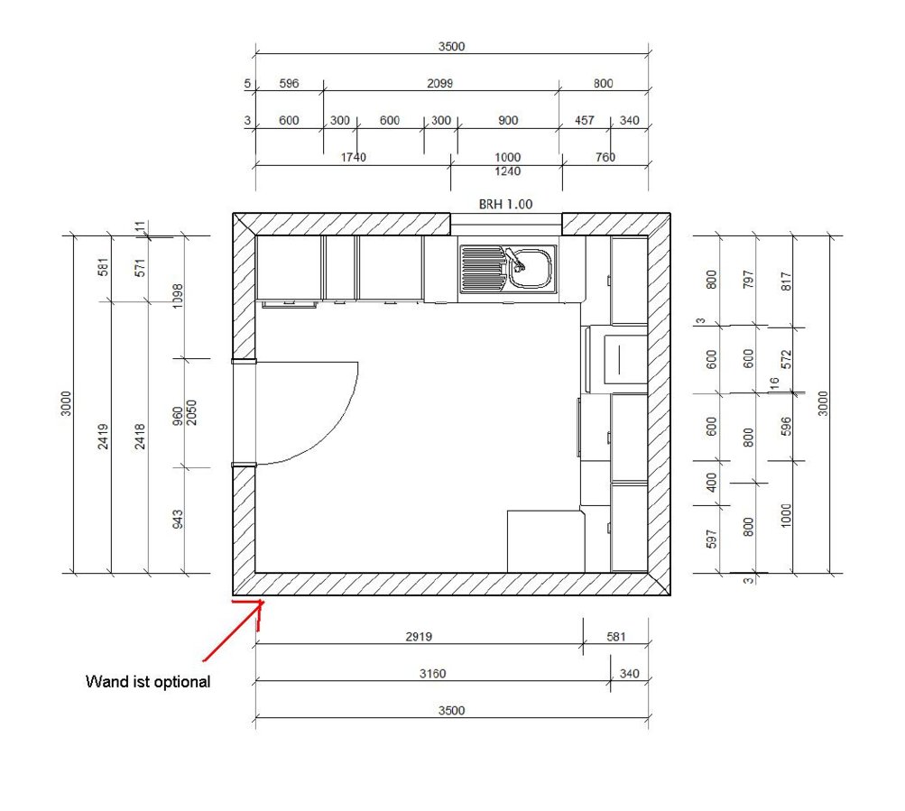
Ebenfalls optional ist die Wand "unten" (siehe Grundriss) ich denke aber, dass wir eher die Lösung einer offenen Küche bevorzugen werden.
Ich hoffe Ihr könnt uns helfen relativ positiv mit dem Metervertrag zu Arbeiten. Ich habe schon selber mal etwas rumgeplant (siehe Bild) aber bin gerne für Optimierungen bereit.
Falls es wichtig ist: der Meterpreis beläuft sich auf 1075€ Altano Küche.

Checkliste zur Küchenplanung

Anzahl Personen im Haushalt: 2
Davon Kinder?:
Art des Gebäudes?:
Neu-/Umbau, Planänderungen möglich
Körpergrössen aller Hauptbenutzer (wegen Arbeitshöhe ) in cm: 165 und 175
Brüstungshöhe des Fensters (in cm): variabel
Fensterhöhe (in cm): variabel
Raumhöhe in cm: 250cm
Heizung: Fussbodenheizung
Sanitäranschlüsse: vollkommen variabel
Ausführung Kühlgerät: Integriert im Hochschrank (60cm)
Kühlgerät Größe: noch unbekannt
Ausführung Tiefkühl (TK)-Gerät: Im Kühlschrank bis 2 Schubladen unten
Dunstabzugshaube: Abluft
Backofen etc. hochgebaut?: Ja
Hochgebauter Geschirrspüler ?: Wenn möglich
Kochfeldart: Ceran (herkömmlich)
Kochfeldbreite ca. (in cm)?: Normal (60cm?)
Spülenform: 1 Becken mit Abtropffläche
Geplante Heißgeräte: Standmikrowelle, Backofen
Küchenstil: Modern
Sitzmöglichkeit in der Küche / im Küchenbereich: Keine
Sitzmöglichkeit: Für wieviel Personen?: Nein
Sitzmöglichkeit: Tisch - wenn gesonderter Tisch oder offene Küche: Keiner
Gewünschte o. vorhandene Tischgröße:
Wofür soll der Sitzplatz in der Küche genutzt werden? Wie häufig?:
Welche Arbeitshöhe ist angedacht (in cm)?:
Normale Höhe?
Was steht auf der Arbeitsplatte oder soll dort stehen?: Kaffeemaschine, Wasserkocher, Brotbehälter
Welche weiteren Küchenmaschinen müssen in der Küche untergebracht werden?: Küchenmaschine, Toaster, Handrührgerät
Was soll in der Küche außer den Standards untergebracht werden?: Geschirr komplett (nichts in Ess-/Wohnzimmer)
Welchen Stauraum gibt es sonst noch?: Hauswirtschaftsraum, Keller
Was/wie wird gekocht? (Alltagsküche, Menüs, Snacks usw): Alltagsküche
Wie häufig wird gekocht?: (fast) täglich 1x warm
Wird alleine gekocht? Oder auch gemeinsam? Mit und für Gäste?: Meistens zu zweit
Was stört an der bisherigen Küche und was soll die neue Küche unbedingt können? Warum?: Apotheker-Schrank und Rondell sind pflicht
Welche Mülltrennung soll in der Küche vorgehalten werden?: Gelber Sack Müll, Restmüll
Steht schon ein Küchenhersteller fest oder wird bevorzugt?: Altano
Steht schon ein Gerätehersteller fest oder wird bevorzugt?: vsl. AEG
Preisvorstellung (Budget): bis 10.000,-
 

Anhänge

  • Küche.jpg
    Küche.jpg
    74,6 KB · Aufrufe: 393
  • Küche1.jpg
    Küche1.jpg
    553,7 KB · Aufrufe: 420
Bei einer Meterpreis -Küche sollte man jede Art von Ecken vermeiden - diese zahlt man nämlich doppelt. Deshalb das Haus so planen, dass die Küche ein 2-Zeiler wird. Deine Planung ist somit auch unter dem Aspekt Meterpreis suboptimal.

Ausserdem solltet ihr herausfinden welchen Küchenhersteller ihr überhaupt gekauft habt und was für eine Front (Material). Dann kann man auch einen Preisvergleich anstellen; unter Umständen ist es billiger aus dem Vertrag auszusteigen und die Küche woanders zu kaufen. Um das beurteilen zu können, müssten wir die Vertragsbedingungen kenne. In vielen Meterpreisverträgen werden teure Schränke und übertiefen genauso aus dem Vertrag ausgeklammert, wie die Frontauswahl auf PG1 festgelegt wird, was dann häufig eine Melaminfront ist und alles andere wird mit gehörig Aufpreis verrechnet.

Statt Apothekern empfehlen wir Schränke mit Innenauszügen, Apotheker sind Stauraumvernichter und ziemlich unpraktisch.

Da eure Küche ja noch nicht eilt, habt ihr genügend Gelegenheit im Forum einige Küchenplanungen zu verfolgen und euch in die Materie einzudenken.
 
Hi,
also wir bekommen die Fronten der PG2 für den Preis von PG1 (ist im Vertrag festgehalten) also wir hatten uns gedacht, dass die Fronten/Korpus Premiumweiss und die Arbeitsplatte /Sockel Natureiche-Sand werden sollen.

Noch eine andere Frage: habe gesehen, dass die Wangen extra kosten. Braucht man diese unbedingt oder kann man die auch weglassen wenn der Korpus eh die selbe Farbe hat wie die Front?

mfg
 
Ebenfalls optional ist die Wand "unten" (siehe Grundriss) ich denke aber, dass wir eher die Lösung einer offenen Küche bevorzugen werden.
Wie schon mehrfach geschrieben wäre da ein Gesamtgrundriss hilfreich, zumal noch geschoben werden kann.

Zu Eckschränken, macht euch deutlich, dass ein 90er Rondell-Schrank dann 1,8*1075 Euro kostet. = 1935 Euro.

ARBEITSHÖHE ermitteln
3 Methoden haben sich da etabliert:
- abgewinkelter Ellbogen bis Boden messen und 15 cm abziehen
- Höhe Beckenknochen messen
- z. B. Bügelbrett nehmen und in verschiedenen Höhen Probeschnippeln und messen, wenn es einem am bequemsten erscheint, wobei dies der wichtigste Test ist.
Idealerweise ergeben alle 3 Methoden ca. denselben Wert
Ausführlicher in
Optimale Arbeitshöhen beschrieben.
 

Ähnliche Beiträge

Neff Hausgeräte Ballerina Küchen Blum Bewegungstechnologie Weibel - Intelligente Küchenlüftung

Neff Spezial

Blum Zonenplaner

Weibel Abluft-Tuning

Weibel Abluft-Tuning
Zurück
Oben