Kochtfür4
Mitglied
- Beiträge
- 22
Hallo Küchen-Freunde,
nun lese ich schon ein paar Tage still mit und bin begeistert was hier für tolle Küchen geplant werden.
Hochmotiviert habe ich mich an den Alno -Planer gesetzt und auch angefangen meine eigene Küche zu planen, kämpfe da allerdings noch etwas mit den Möglichkeiten. Ich habe es nicht hinbekommen den von Euch so nett genannten "Ulla-Schrank" einzuplanen, also statt dessen einen Aufsatzschrank mit Rolladen eingesetzt.
Wie kann man denn überstehende Arbeitsplatten einplanen? Hätte ich gerne im Sitzbereich an der Insel gehabt...
Ansonsten habe ich einige tolle Tipps von Euch mit Freude in meine "Wunschliste" aufgenommen, u.a. Müll unter APL, Ulla-Schrank, Auszugs- statt Apothekerschrank usw.
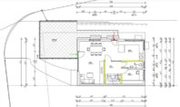
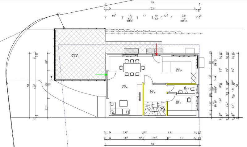
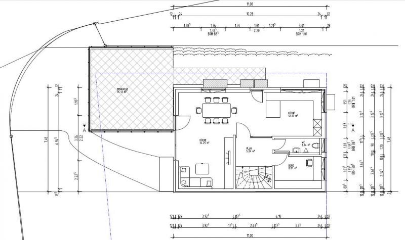
Kurz noch vorweg, unsere DHH ist noch in Planung, also die Wände und Fenster sind noch nicht fix. Auf dem aktuellen Grundriss haben wir eine Küchenbreite von 3,10 m, die Wand an der ich die Hochschränke geplant habe ist bis zur Tür 3,20 m lang.
Viele Grüße und danke vorab fürs mitlesen!
Simone

Checkliste zur Küchenplanung von Kochtfür4
Anzahl Personen im Haushalt : 4
Davon Kinder? : 2
Körpergrössen aller Hauptbenutzer (wegen Arbeitshöhe ) in cm : 160, 170
Art des Gebäudes? : Neu-/Umbau, Planänderungen möglich
Brüstungshöhe des Fensters (in cm) : noch nicht bekannt
Fensterhöhe (in cm) : noch nicht bekannt
Raumhöhe in cm: : 250
Heizung : Fussbodenheizung
Sanitäranschlüsse : vollkommen variabel
Ausführung Kühlgerät? : Integriert im Hochschrank (60cm)
Kühlgerät Größe : bis 175 cm Höhe
Ausführung Tiefkühl (TK)-Gerät : Im Kühlschrank bis 2 Schubladen unten
Dunstabzugshaube? : Abluft
Hochgebauter Backofen ? : Ja
Hochgebauter Geschirrspüler ? : wenn möglich
Kochfeldart? : Induktion
Kochfeldbreite ca. (in cm)? : 80-90
Spülenform: : Noch nicht festgelegt
Weitere geplante Heißgeräte : Einbaumikrowelle
Küchenstil? : modern
Sitzmöglichkeit in der Küche / im Küchenbereich als : Überstehende Arbeitsplatte
Sitzmöglichkeit: Für wieviel Personen? : für 2 Personen
Sitzmöglichkeit: Tisch - wenn gesonderter Tisch oder offene Küche : Vorhandener Tisch
Gewünschte o. vorhandene Tischgröße : 160x90 cm vorhanden
Wofür soll der Sitzplatz in der Küche genutzt werden? Wie häufig? : Snacks, gemeinsames Kochen, Frühstück
Welche Arbeitshöhe ist angedacht (in cm)? : 92 cm
Was steht auf der Arbeitsplatte oder soll dort stehen? : Kaffeemaschine, Küchenmaschine, Brotbehälter, Obstschale
Welche weiteren Küchenmaschinen müssen in der Küche untergebracht werden? : Wasserkocher, Toaster, Handrührgerät, Pürierstab, Eierkocher
Was soll in der Küche außer den Standards untergebracht werden? : ALLE Vorräte, Geschirr komplett (nichts in Ess-/Wohnzimmer)
Welchen Stauraum gibt es sonst noch? : Keller
Was/wie wird gekocht? (Alltagsküche, Menüs, Snacks usw) : Alltagsküche
Wie häufig wird gekocht? : (fast) täglich 1x warm
Wird alleine gekocht? Oder auch gemeinsam? Mit und für Gäste? : meist alleine, 1x Monat mit Gästen
Was stört an der bisherigen Küche und was soll die neue Küche unbedingt können? Warum? : eine Insel oder Halbinsel wäre schön
Steht schon ein Küchenhersteller fest oder wird bevorzugt? : nein
Steht schon ein Gerätehersteller fest oder wird bevorzugt? : nein
Preisvorstellung (Budget) : bis 20.000,-
nun lese ich schon ein paar Tage still mit und bin begeistert was hier für tolle Küchen geplant werden.
Hochmotiviert habe ich mich an den Alno -Planer gesetzt und auch angefangen meine eigene Küche zu planen, kämpfe da allerdings noch etwas mit den Möglichkeiten. Ich habe es nicht hinbekommen den von Euch so nett genannten "Ulla-Schrank" einzuplanen, also statt dessen einen Aufsatzschrank mit Rolladen eingesetzt.
Wie kann man denn überstehende Arbeitsplatten einplanen? Hätte ich gerne im Sitzbereich an der Insel gehabt...
Ansonsten habe ich einige tolle Tipps von Euch mit Freude in meine "Wunschliste" aufgenommen, u.a. Müll unter APL, Ulla-Schrank, Auszugs- statt Apothekerschrank usw.
Kurz noch vorweg, unsere DHH ist noch in Planung, also die Wände und Fenster sind noch nicht fix. Auf dem aktuellen Grundriss haben wir eine Küchenbreite von 3,10 m, die Wand an der ich die Hochschränke geplant habe ist bis zur Tür 3,20 m lang.
Viele Grüße und danke vorab fürs mitlesen!
Simone
Checkliste zur Küchenplanung von Kochtfür4
Anzahl Personen im Haushalt : 4
Davon Kinder? : 2
Körpergrössen aller Hauptbenutzer (wegen Arbeitshöhe ) in cm : 160, 170
Art des Gebäudes? : Neu-/Umbau, Planänderungen möglich
Brüstungshöhe des Fensters (in cm) : noch nicht bekannt
Fensterhöhe (in cm) : noch nicht bekannt
Raumhöhe in cm: : 250
Heizung : Fussbodenheizung
Sanitäranschlüsse : vollkommen variabel
Ausführung Kühlgerät? : Integriert im Hochschrank (60cm)
Kühlgerät Größe : bis 175 cm Höhe
Ausführung Tiefkühl (TK)-Gerät : Im Kühlschrank bis 2 Schubladen unten
Dunstabzugshaube? : Abluft
Hochgebauter Backofen ? : Ja
Hochgebauter Geschirrspüler ? : wenn möglich
Kochfeldart? : Induktion
Kochfeldbreite ca. (in cm)? : 80-90
Spülenform: : Noch nicht festgelegt
Weitere geplante Heißgeräte : Einbaumikrowelle
Küchenstil? : modern
Sitzmöglichkeit in der Küche / im Küchenbereich als : Überstehende Arbeitsplatte
Sitzmöglichkeit: Für wieviel Personen? : für 2 Personen
Sitzmöglichkeit: Tisch - wenn gesonderter Tisch oder offene Küche : Vorhandener Tisch
Gewünschte o. vorhandene Tischgröße : 160x90 cm vorhanden
Wofür soll der Sitzplatz in der Küche genutzt werden? Wie häufig? : Snacks, gemeinsames Kochen, Frühstück
Welche Arbeitshöhe ist angedacht (in cm)? : 92 cm
Was steht auf der Arbeitsplatte oder soll dort stehen? : Kaffeemaschine, Küchenmaschine, Brotbehälter, Obstschale
Welche weiteren Küchenmaschinen müssen in der Küche untergebracht werden? : Wasserkocher, Toaster, Handrührgerät, Pürierstab, Eierkocher
Was soll in der Küche außer den Standards untergebracht werden? : ALLE Vorräte, Geschirr komplett (nichts in Ess-/Wohnzimmer)
Welchen Stauraum gibt es sonst noch? : Keller
Was/wie wird gekocht? (Alltagsküche, Menüs, Snacks usw) : Alltagsküche
Wie häufig wird gekocht? : (fast) täglich 1x warm
Wird alleine gekocht? Oder auch gemeinsam? Mit und für Gäste? : meist alleine, 1x Monat mit Gästen
Was stört an der bisherigen Küche und was soll die neue Küche unbedingt können? Warum? : eine Insel oder Halbinsel wäre schön
Steht schon ein Küchenhersteller fest oder wird bevorzugt? : nein
Steht schon ein Gerätehersteller fest oder wird bevorzugt? : nein
Preisvorstellung (Budget) : bis 20.000,-
Anhänge
-
Kuechenforum_Grundriss_EG.jpg51,4 KB · Aufrufe: 433 -
PLAN2.KPL4,1 KB · Aufrufe: 190
-
PLAN2.POS8,5 KB · Aufrufe: 204
-
Kuechenforum_2D_Ansicht_oben.jpg15,9 KB · Aufrufe: 213 -
Kuechenforum_3D_Vorne_Esszimmer.jpg31,6 KB · Aufrufe: 216 -
Kuechenforum_3D_Vorne_Esszimmer2.jpg37,9 KB · Aufrufe: 225 -
Kuechenforum_3D_SuedWest.jpg36,5 KB · Aufrufe: 222
Zuletzt bearbeitet:


