Fragru
Mitglied
- Beiträge
- 8
Küchenplanung Bestandbau
Hallo Zusammen,
also durch die aktuelle Situation haben wir unser Küchenprojekt vorgezogen und benötigen hier ggf. mal Tipps und Tricks.
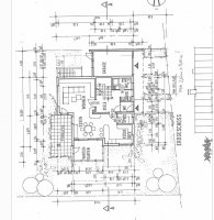
Zur Zeit haben wir eine alte U-Küche, aber wir sind überhaupt nicht mehr glücklich. ist einfach absolut Katastrophal.
Tendenziell fragen wir uns ob wir auf einen Zweizeiler gehen, um besser an das Fenster bzw. Ecken zu kommen.
Der Anschluss für die Spüle kann ggf. noch so um 50cm versetzt werden.
Idealerweise wäre der GSP hochgestellt und wenn möglich der Backofen darüber.
Wir wollen den Stauraum so gut wie möglich ausnutzen und haben uns mal einen Zweizeiler überlegt und um das ganz ggf. etwas offener zu gestalten.
Die lange Seite kann 75cm tief sein, um Stauraum zu bekommen.
Die kurze Seite kann bis zur Deckenhöhe gehen, also geschlossen werden.
Da wir eine offene Küche, also zum Wohnraum haben, bleibt der Tisch am Wintergarten stehen.
Vielleicht habe Ihr ja kreative Ideen und Tipps, wie wir das ganze optimieren können.
Meine Frau mag gerne die Holzoptik, so dass wir z.b. die Sommereiche von Häcker mit einer Granitarbeitsplatte versehen wollen. Soll auch alles flächenbündig sein.
Nun habe ich mal alle Eckdaten hochgeladen und hoffe, diese sind komplett?!
Wir würden uns sehr über kreative Ideen freuen.
Danke
LG
Frank
Checkliste zur Küchenplanung
Personenkriterien und Ergonomie
Anzahl Personen im Haushalt: 4
Davon Kinder: 2
Körpergrößen aller Hauptbenutzer in cm (wegen Arbeitshöhe ): 169, 165
Welche Arbeitshöhe ist angedacht (in cm)?: 92 Angepasst an die Fensterbank bzw. soll fliessend übergehen
Gebäudekriterien
Art des Gebäudes: Bestandsbau > (kleinere) Umbauten möglich, Eigentum
Brüstungshöhe des Fensters (in cm): 92
Fensterhöhe (in cm): 120
Raumhöhe in cm: 250
Heizung: Fußbodenheizung
Sanitäranschlüsse: fix
Einbaugerätekriterien
Ausführung Kühlgerät: Integriert im Hochschrank (60cm)
Einbaukühlgerät Größe: 178cm
Ausführung Tiefkühl (TK)-Gerät: Nicht erforderlich bzw. steht woanders
Dunstabzugshaube: Abluft
Hochgebauter Backofen : ja
Geplante Heißgeräte: N. a.
Hochgebauter Geschirrspüler : wenn möglich
Art des Kochfeldes: Induktion
Kochfeldbreite (ca. in cm): 80
Sitzmöglichkeiten
Sitzmöglichkeit in der Küche / im Küchenbereich: Separater Tisch
Sitzmöglichkeit: Für wieviel Personen?: Für 6 Personen
Sitzmöglichkeit: Tisch - wenn gesonderter Tisch oder offene Küche: N. a.
Gewünschte oder vorhandene Tischgröße: ist vorhanden
Wofür soll der Sitzplatz in der Küche genutzt werden und wie häufig: tägliche Leben
Stauraumplanung
Was steht auf der Arbeitsplatte oder soll dort stehen?: Kaffeemaschine, Wasserkocher, Toaster, Sonstiges (evtl. im Beitragstext benennen)
Welche weiteren Küchenmaschinen müssen in der Küche untergebracht werden: Handrührgerät, Mixer, Pürierstab
Was soll in der Küche außer den Standards untergebracht werden: ALLE Vorräte
Welchen Stauraum gibt es sonst noch: Speisekammer, Keller
Kochgewohnheiten
Was/wie wird gekocht? (Alltagsküche, Menüs, Snacks usw): ganz normal Bürgerlich
Wie häufig wird gekocht: (fast) täglich 1x warm
Wird alleine gekocht? Oder auch gemeinsam? Mit und für Gäste?: Alleine oder zu Zweit
Spülen und Müll
Spülenform: 1 Becken ohne Abtropffläche
Welche Mülltrennung soll in der Küche vorgehalten werden: Bio/Restmüll ungetrennt, Biomüll, Restmüll
Sonstiges
Steht schon ein Küchenhersteller fest oder wird bevorzugt: Nein, Tendenz geht zu Häcker Systemat oder vergleichbar
Steht schon ein Gerätehersteller fest oder wird bevorzugt: Backofen : Neff , GSP: Miele , Kühlschrank: Miele, Bosch , Spüle Blanco Etagon, Abluft: noch flexibel
Küchenstil: Klassisch
Was stört an der bisherigen Küche und was soll die neue Küche unbedingt können? Warum?: Viele ungenutzte Ecken, Spüle über Eck, Mülleimer unter der Spüle, Apothekerschrank
Preisvorstellung (Budget): 15-16Tsd.
Angehängte Dateien
Hallo Zusammen,
also durch die aktuelle Situation haben wir unser Küchenprojekt vorgezogen und benötigen hier ggf. mal Tipps und Tricks.
Zur Zeit haben wir eine alte U-Küche, aber wir sind überhaupt nicht mehr glücklich. ist einfach absolut Katastrophal.
Tendenziell fragen wir uns ob wir auf einen Zweizeiler gehen, um besser an das Fenster bzw. Ecken zu kommen.
Der Anschluss für die Spüle kann ggf. noch so um 50cm versetzt werden.
Idealerweise wäre der GSP hochgestellt und wenn möglich der Backofen darüber.
Wir wollen den Stauraum so gut wie möglich ausnutzen und haben uns mal einen Zweizeiler überlegt und um das ganz ggf. etwas offener zu gestalten.
Die lange Seite kann 75cm tief sein, um Stauraum zu bekommen.
Die kurze Seite kann bis zur Deckenhöhe gehen, also geschlossen werden.
Da wir eine offene Küche, also zum Wohnraum haben, bleibt der Tisch am Wintergarten stehen.
Vielleicht habe Ihr ja kreative Ideen und Tipps, wie wir das ganze optimieren können.
Meine Frau mag gerne die Holzoptik, so dass wir z.b. die Sommereiche von Häcker mit einer Granitarbeitsplatte versehen wollen. Soll auch alles flächenbündig sein.
Nun habe ich mal alle Eckdaten hochgeladen und hoffe, diese sind komplett?!
Wir würden uns sehr über kreative Ideen freuen.
Danke
LG
Frank
Checkliste zur Küchenplanung
Personenkriterien und Ergonomie
Anzahl Personen im Haushalt: 4
Davon Kinder: 2
Körpergrößen aller Hauptbenutzer in cm (wegen Arbeitshöhe ): 169, 165
Welche Arbeitshöhe ist angedacht (in cm)?: 92 Angepasst an die Fensterbank bzw. soll fliessend übergehen
Gebäudekriterien
Art des Gebäudes: Bestandsbau > (kleinere) Umbauten möglich, Eigentum
Brüstungshöhe des Fensters (in cm): 92
Fensterhöhe (in cm): 120
Raumhöhe in cm: 250
Heizung: Fußbodenheizung
Sanitäranschlüsse: fix
Einbaugerätekriterien
Ausführung Kühlgerät: Integriert im Hochschrank (60cm)
Einbaukühlgerät Größe: 178cm
Ausführung Tiefkühl (TK)-Gerät: Nicht erforderlich bzw. steht woanders
Dunstabzugshaube: Abluft
Hochgebauter Backofen : ja
Geplante Heißgeräte: N. a.
Hochgebauter Geschirrspüler : wenn möglich
Art des Kochfeldes: Induktion
Kochfeldbreite (ca. in cm): 80
Sitzmöglichkeiten
Sitzmöglichkeit in der Küche / im Küchenbereich: Separater Tisch
Sitzmöglichkeit: Für wieviel Personen?: Für 6 Personen
Sitzmöglichkeit: Tisch - wenn gesonderter Tisch oder offene Küche: N. a.
Gewünschte oder vorhandene Tischgröße: ist vorhanden
Wofür soll der Sitzplatz in der Küche genutzt werden und wie häufig: tägliche Leben
Stauraumplanung
Was steht auf der Arbeitsplatte oder soll dort stehen?: Kaffeemaschine, Wasserkocher, Toaster, Sonstiges (evtl. im Beitragstext benennen)
Welche weiteren Küchenmaschinen müssen in der Küche untergebracht werden: Handrührgerät, Mixer, Pürierstab
Was soll in der Küche außer den Standards untergebracht werden: ALLE Vorräte
Welchen Stauraum gibt es sonst noch: Speisekammer, Keller
Kochgewohnheiten
Was/wie wird gekocht? (Alltagsküche, Menüs, Snacks usw): ganz normal Bürgerlich
Wie häufig wird gekocht: (fast) täglich 1x warm
Wird alleine gekocht? Oder auch gemeinsam? Mit und für Gäste?: Alleine oder zu Zweit
Spülen und Müll
Spülenform: 1 Becken ohne Abtropffläche
Welche Mülltrennung soll in der Küche vorgehalten werden: Bio/Restmüll ungetrennt, Biomüll, Restmüll
Sonstiges
Steht schon ein Küchenhersteller fest oder wird bevorzugt: Nein, Tendenz geht zu Häcker Systemat oder vergleichbar
Steht schon ein Gerätehersteller fest oder wird bevorzugt: Backofen : Neff , GSP: Miele , Kühlschrank: Miele, Bosch , Spüle Blanco Etagon, Abluft: noch flexibel
Küchenstil: Klassisch
Was stört an der bisherigen Küche und was soll die neue Küche unbedingt können? Warum?: Viele ungenutzte Ecken, Spüle über Eck, Mülleimer unter der Spüle, Apothekerschrank
Preisvorstellung (Budget): 15-16Tsd.
Angehängte Dateien
Anhänge
-
Aufteilung lange Seite.JPG139,3 KB · Aufrufe: 159 -
Aufteilung kurze Seite.JPG70,4 KB · Aufrufe: 154 -
Aufteilung Schrank 100cm.JPG31,3 KB · Aufrufe: 148 -
Raum GW 19_05.KPL3,6 KB · Aufrufe: 86
-
Raum GW 19_05.POS6,7 KB · Aufrufe: 78
-
Grundriss Küche.JPG57,4 KB · Aufrufe: 160 -
Grundriss EG.JPG117,1 KB · Aufrufe: 169 -
image001.jpg56,9 KB · Aufrufe: 166 -
image002.jpg47,7 KB · Aufrufe: 158 -
image003.jpg49,5 KB · Aufrufe: 154
Zuletzt bearbeitet:





