g-filer
Mitglied
- Beiträge
- 16
- Wohnort
- Mannheim
Hi, wir haben infolge eines Umzugs eine neue Küche einzurichten und wollen die Investition im überschaubaren Rahmen halten. 2009 hatten wir eine neue Schüller -Küche gekauft und jetzt stellt sich die Frage: Mitnehmen oder neu kaufen?
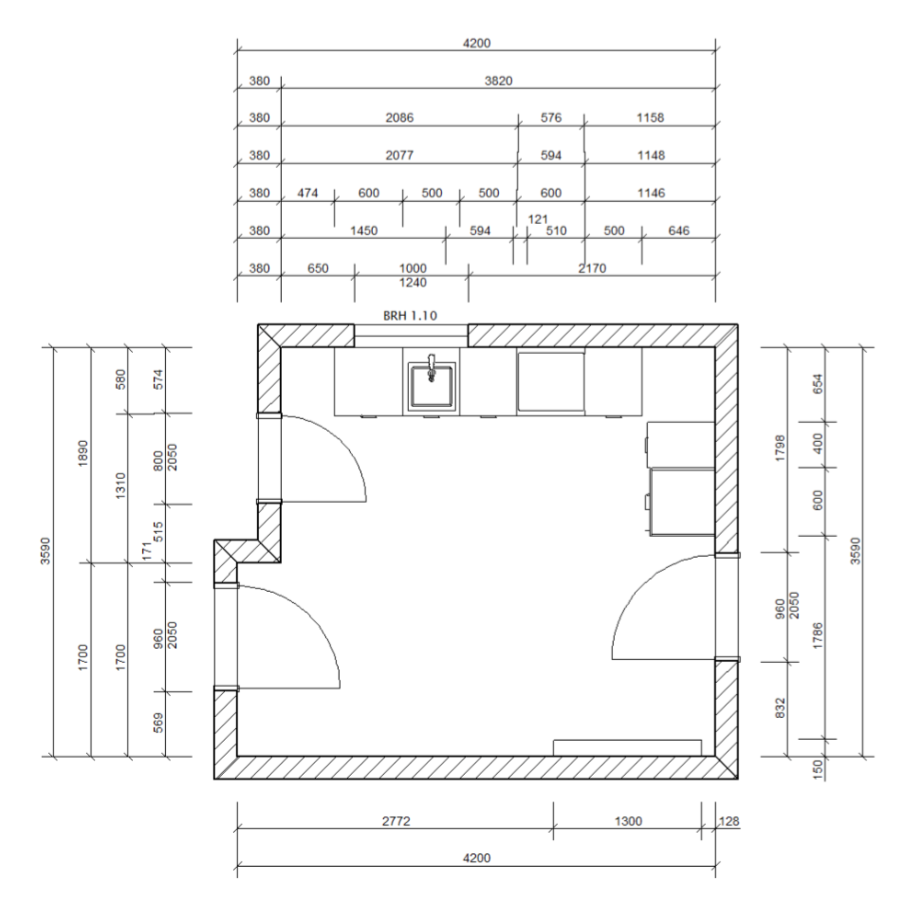
Mit den vorhandenen Möbeln (ein 60er-Unterschrank , ein 45er-Besenhochschrank und ein in der Tiefe gekürzter 50er-Vorratshochschrank sind nicht berücksichtigt) habe ich mal eine Planung angefangen, aber es fehlt einfach an Arbeitsfläche. Zudem fehlen zwischen Kühlschrank rechts und einem Lichtschalter ca. 5-10mm Platz. Und wenn ich zwischen Herd und Spüle etwas Arbeitsfläche einplane, liegen die Wasseranschlüsse nicht mehr hinter der Spüle. Einen Gasanschluss für den Herd können wir uns flexibel legen lassen. Links ist eine Tür zur Speisekammer, die 57 cm von der Wand entfernt liegt, d.h. hier kann keine normal breite Arbeitsfläche installiert werden.
Hat jemand vlt. eine tolle Idee, wie man die Küche für mehr Arbeitsfreude optimieren kann? Ein kleiner Essplatz fürs Frühstück sollte auch noch drin sein.

Checkliste zur Küchenplanung
Anzahl Personen im Haushalt: 2
Davon Kinder?:
Art des Gebäudes?: Neu-/Umbau, Planänderungen möglich
Körpergrössen aller Hauptbenutzer (wegen Arbeitshöhe ) in cm: 163 und 177cm
Brüstungshöhe des Fensters (in cm): 110cm
Fensterhöhe (in cm):
Raumhöhe in cm: 280
Heizung: Heizkörper wie im Grundriss
Sanitäranschlüsse: fix
Ausführung Kühlgerät: Integriert im Hochschrank (60cm)
Kühlgerät Größe:
Ausführung Tiefkühl (TK)-Gerät:
Dunstabzugshaube:
Backofen etc. hochgebaut?: Nein
Hochgebauter Geschirrspüler ?: Nein
Kochfeldart: Gas
Kochfeldbreite ca. (in cm)?: 60
Spülenform: 1 Becken mit Abtropffläche
Geplante Heißgeräte: Backofen
Küchenstil:
Sitzmöglichkeit in der Küche / im Küchenbereich: Gesonderter Tisch
Sitzmöglichkeit: Für wieviel Personen?: für 2 Personen
Sitzmöglichkeit: Tisch - wenn gesonderter Tisch oder offene Küche:
Gewünschte o. vorhandene Tischgröße: 120x80 cm
Wofür soll der Sitzplatz in der Küche genutzt werden? Wie häufig?:
Welche Arbeitshöhe ist angedacht (in cm)?: 92 cm
Was steht auf der Arbeitsplatte oder soll dort stehen?:
Welche weiteren Küchenmaschinen müssen in der Küche untergebracht werden?:
Was soll in der Küche außer den Standards untergebracht werden?:
Welchen Stauraum gibt es sonst noch?:
Was/wie wird gekocht? (Alltagsküche, Menüs, Snacks usw):
Wie häufig wird gekocht?: (fast) täglich 2x warm
Wird alleine gekocht? Oder auch gemeinsam? Mit und für Gäste?:
Was stört an der bisherigen Küche und was soll die neue Küche unbedingt können? Warum?:
Welche Mülltrennung soll in der Küche vorgehalten werden?:
Steht schon ein Küchenhersteller fest oder wird bevorzugt?: Schüller
Steht schon ein Gerätehersteller fest oder wird bevorzugt?:
Preisvorstellung (Budget):
----------
Im Threadverlauf hinzugekommen:
besser vermaßter Raum:
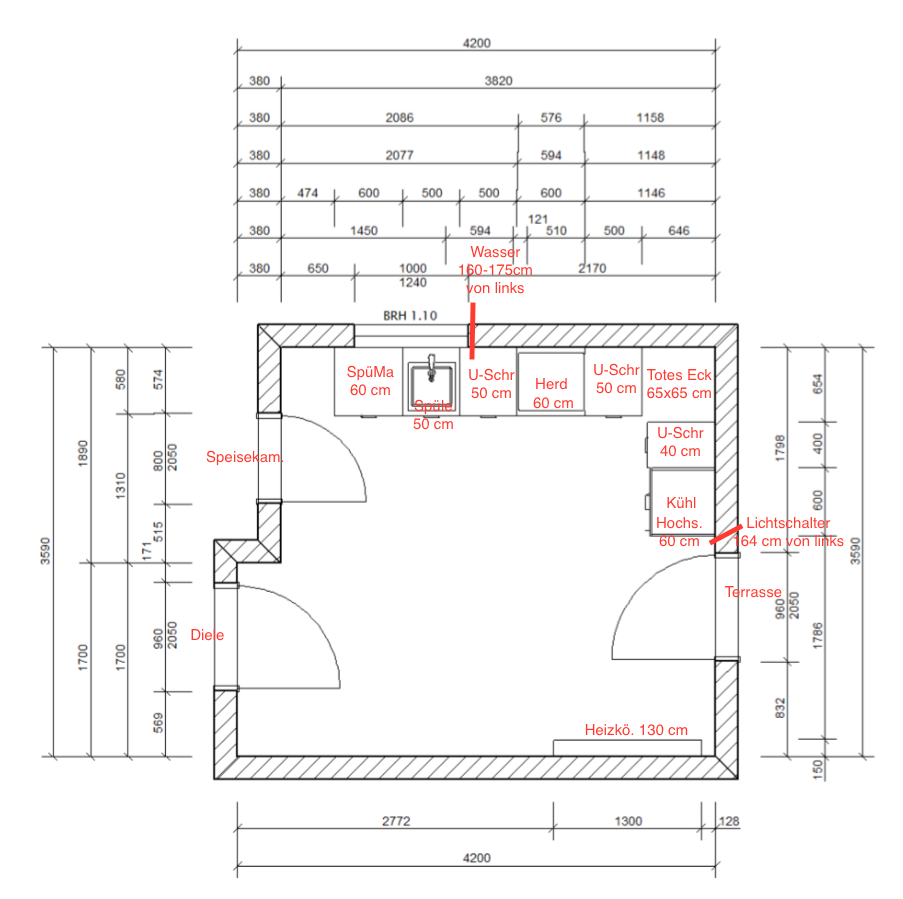
vorhandene Möbel:
Mit den vorhandenen Möbeln (ein 60er-Unterschrank , ein 45er-Besenhochschrank und ein in der Tiefe gekürzter 50er-Vorratshochschrank sind nicht berücksichtigt) habe ich mal eine Planung angefangen, aber es fehlt einfach an Arbeitsfläche. Zudem fehlen zwischen Kühlschrank rechts und einem Lichtschalter ca. 5-10mm Platz. Und wenn ich zwischen Herd und Spüle etwas Arbeitsfläche einplane, liegen die Wasseranschlüsse nicht mehr hinter der Spüle. Einen Gasanschluss für den Herd können wir uns flexibel legen lassen. Links ist eine Tür zur Speisekammer, die 57 cm von der Wand entfernt liegt, d.h. hier kann keine normal breite Arbeitsfläche installiert werden.
Hat jemand vlt. eine tolle Idee, wie man die Küche für mehr Arbeitsfreude optimieren kann? Ein kleiner Essplatz fürs Frühstück sollte auch noch drin sein.

Checkliste zur Küchenplanung
Anzahl Personen im Haushalt: 2
Davon Kinder?:
Art des Gebäudes?: Neu-/Umbau, Planänderungen möglich
Körpergrössen aller Hauptbenutzer (wegen Arbeitshöhe ) in cm: 163 und 177cm
Brüstungshöhe des Fensters (in cm): 110cm
Fensterhöhe (in cm):
Raumhöhe in cm: 280
Heizung: Heizkörper wie im Grundriss
Sanitäranschlüsse: fix
Ausführung Kühlgerät: Integriert im Hochschrank (60cm)
Kühlgerät Größe:
Ausführung Tiefkühl (TK)-Gerät:
Dunstabzugshaube:
Backofen etc. hochgebaut?: Nein
Hochgebauter Geschirrspüler ?: Nein
Kochfeldart: Gas
Kochfeldbreite ca. (in cm)?: 60
Spülenform: 1 Becken mit Abtropffläche
Geplante Heißgeräte: Backofen
Küchenstil:
Sitzmöglichkeit in der Küche / im Küchenbereich: Gesonderter Tisch
Sitzmöglichkeit: Für wieviel Personen?: für 2 Personen
Sitzmöglichkeit: Tisch - wenn gesonderter Tisch oder offene Küche:
Gewünschte o. vorhandene Tischgröße: 120x80 cm
Wofür soll der Sitzplatz in der Küche genutzt werden? Wie häufig?:
Welche Arbeitshöhe ist angedacht (in cm)?: 92 cm
Was steht auf der Arbeitsplatte oder soll dort stehen?:
Welche weiteren Küchenmaschinen müssen in der Küche untergebracht werden?:
Was soll in der Küche außer den Standards untergebracht werden?:
Welchen Stauraum gibt es sonst noch?:
Was/wie wird gekocht? (Alltagsküche, Menüs, Snacks usw):
Wie häufig wird gekocht?: (fast) täglich 2x warm
Wird alleine gekocht? Oder auch gemeinsam? Mit und für Gäste?:
Was stört an der bisherigen Küche und was soll die neue Küche unbedingt können? Warum?:
Welche Mülltrennung soll in der Küche vorgehalten werden?:
Steht schon ein Küchenhersteller fest oder wird bevorzugt?: Schüller
Steht schon ein Gerätehersteller fest oder wird bevorzugt?:
Preisvorstellung (Budget):
----------
Im Threadverlauf hinzugekommen:
besser vermaßter Raum:
vorhandene Möbel:
Anhänge
Zuletzt bearbeitet von einem Moderator:


