- Beiträge
- 21.248
- Wohnort
- München
Zu deinen Frage: Fliesen kann man notfalls selber abschlagen, eine Nischenrückwandplatte verdeckt eine nicht perfekt gespachtelte Wand zwischen Unter- und Oberschränken. Die muss ja nicht APL-Farbe haben, es gibt sie auch in neutralem Weiß und vielen anderen Mustern und Farben.
Und falls ihr das doch Handwerkern überlasst: wenn schon neue Küche, dann sollte es doch nicht an zwei oder drei Wochen "küchenlos" scheitern, angesichts der vermutlichen Lebensdauer der neuen Küche, und in eurem Alter wahrscheinlich die letzte?
Zur Eckschrank-Frage: ja, das tudio hat Recht. Nachzulesen in unserem Thread * Tote Ecken - gute Ecken *
.
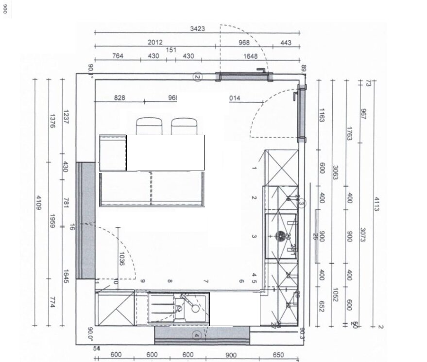
Ich schlage vor, über folgende Änderungen nachzudenken:
- 30er Apo neben dem Backofen weg
- GSP und Spülenschrank an den Backofen stellen
- so wird aus dem 30er und dem 60er ein 90cm Unterschrank
- was gleichzeitig bedeutet, dann mehr Hauptarbeitsfläche zwischen Kochfeld und Spüle entsteht, vor allem, ...
- ... wenn die Abtropffläche zum Backofen hin zeigt (wenn es denn überhaupt eine braucht!)
- Das Höhengewirr der Oberschränke vereinheitlichen.
- Die Insel um 90 Grad drehen und mit einem kleinen Wischabstand vor die eine Terrassentür stellen. So zeigen die Unterschränke zum GSP und zur Hauptarbeitsfläche, und beim Sitzen kann man in den Garten schauen, mit dem Rücken zur Wand.
Die Unterschränke könnten sogar 2x 80cm breit werden, dann wird zu dritt sitzen aber eng.
Durchgänge: zwischen Halbinsel und Kühlschrank ~100cm, zwischen Spülenzeile und Halbinsel ~130cm.
Und falls ihr das doch Handwerkern überlasst: wenn schon neue Küche, dann sollte es doch nicht an zwei oder drei Wochen "küchenlos" scheitern, angesichts der vermutlichen Lebensdauer der neuen Küche, und in eurem Alter wahrscheinlich die letzte?
Zur Eckschrank-Frage: ja, das tudio hat Recht. Nachzulesen in unserem Thread * Tote Ecken - gute Ecken *
.
Ich schlage vor, über folgende Änderungen nachzudenken:
- 30er Apo neben dem Backofen weg
- GSP und Spülenschrank an den Backofen stellen
- so wird aus dem 30er und dem 60er ein 90cm Unterschrank
- was gleichzeitig bedeutet, dann mehr Hauptarbeitsfläche zwischen Kochfeld und Spüle entsteht, vor allem, ...
- ... wenn die Abtropffläche zum Backofen hin zeigt (wenn es denn überhaupt eine braucht!)
- Das Höhengewirr der Oberschränke vereinheitlichen.
- Die Insel um 90 Grad drehen und mit einem kleinen Wischabstand vor die eine Terrassentür stellen. So zeigen die Unterschränke zum GSP und zur Hauptarbeitsfläche, und beim Sitzen kann man in den Garten schauen, mit dem Rücken zur Wand.
Die Unterschränke könnten sogar 2x 80cm breit werden, dann wird zu dritt sitzen aber eng.
Durchgänge: zwischen Halbinsel und Kühlschrank ~100cm, zwischen Spülenzeile und Halbinsel ~130cm.
