waldhase
Mitglied
- Beiträge
- 16
U-Küche in kernsanierter Scheune
Hallo zusammen,
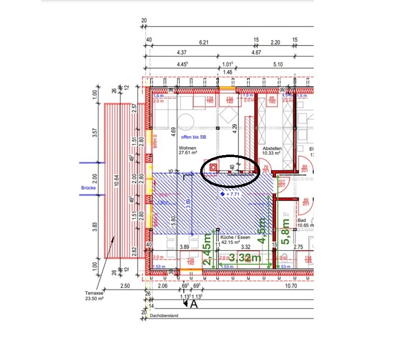
wir (Paar mit Kleinkind und Baby unterwegs) beginnen nun nach langer Planung mit der Sanierung einer alten Scheune. Die Wohnung befindet sich im OG, dadurch gibt es überall Dachschrägen. Der Kniestock beträgt 153cm, nach ca. 55cm ist eine Raumhöhe von 2m erreicht. Es ist ein offener Wohn-Ess-Küchenbereich geplant. Dieser befindet sich an der Giebelseite. Dort wird es große bodentiefe Fenster und eine Balkontür geben. Der Raum ist somit sehr lichtdurchflutet. Die Küche ist auf der Westseite. Ein großes Dachfenster (134x140cm) ist im Bereich der Küche angedacht. Da es sich um eine alte Scheune handelt, sind wir durch die großen Fachwerkbalken bei der Raumaufteilung gebunden. Ein solcher Balken soll auch als Raumtrenner zwischen Küche und Essbereich sichtbar bleiben.
Mein Mann kocht sehr gerne und viel und ich helfe immer mal wieder dabei. Unser Kind wuselt auch immer in der Küche mit rum.
Fronten: helles beige bzw. warmes weiß in matt
Arbeitsplatte: angedacht ist eine schwarze Granitarbeitsplatte
Rückwand: im Bereich der Dachschräge soll die Rückwand einen warmen Holzton haben
Planung Küchenstudio
Das Küchenstudio machte uns ein Angebot von 24.000 € (ohne Kühlschrank). Die angehängte Planung haben wir selbst erstellt nach der Vorlage des Studios. Hierbei war eine große Schrankwand mit integrierten Side-by-Side Kühl- und Gefrierschrank mit Eisfach und Wasserspender angedacht. Der Kühlschrank ist hierbei nicht durch Fronten verdeckt, sondern mit Blenden im Schrank integriert. Bei der nachgebauten Planung war dies leider nicht umsetzbar.
Der letzte Schrank (an der Dachschräge) war hierbei ein langgezogener Schrank mit einem Le mans Auszugsystem. Von dem System bin ich nicht begeistert, mein Mann schon.
Im Preis enthalten
- Korpus Ratiomat
- Abtropfbereich in das Granit gefäßt und mit Übergang in die große Spüle
- Bora Induktionskochfeld
- Siemens Einbaugeräte
- Montage
Eigene Überlegungen
Den Kühl-/Gefrierschrank an die Seite zu setzen empfand ich als flexibler, sollte in vielen Jahren ein neues Gerät benötigt werden. So ist man nicht an genaue Maße gebunden. Die lange Schrankfront habe ich eingekürzt und dafür mehr Arbeitsfläche eingeplant.
Die Arbeitsplatte habe ich unter der Dachschräge auf 90cm Tiefe verlängert. Wir hatten die Idee bei Ikea gesehen. Es machte das ganze etwas offener und nicht so gedrungen unter der Dachschräge.
Mein Mann würde lieber die Arbeitsfläche beim Kochfeld tiefer haben. Ggf. wird es ein Kompromiss, indem beide Flächen tiefer als Standart 60cm sind.
Mein Mann hatte weiterhin die Überlegung die Arbeitsplatte im Bereich des Kochfeldes zu verlängern, sodass dort noch 1-2 Personen sitzen können und ggf. hier auch eine tiefere Arbeitsplatte von 90cm zu montieren.
Grundsätzlich unterscheiden sich beide Planungen nicht gewaltig voneinander. Die Spüle ist unter dem Fenster angebracht, der Geschirrspüler daneben. Das Kochfeld (angedacht ist ein Bora-Induktionskochfeld) ist vor dem Fachwerkbalken geplant. Hierbei mache ich mir Gedanken wegen des Spritzens beim Kochen. Wie könnte man den Balken am besten schützen? Wir würden ihn gerne offen sichtbar lassen und nicht durch eine Wand verbauen. Lohnt es sich hierbei die Arbeitsplatte tiefer zu gestalten, sodass hinter dem Kochfeld noch ein wenig Abstand ist? Es wäre schade, sollte der Balken über die Zeit hinweg optisch Schaden nehmen.
Was haltet ihr von der Planung?
Wir freuen uns schon auf eure Ideen, Anmerkungen und Verbesserungsvorschläge. Lieben Dank schonmal im Voraus!
Checkliste zur Kuechenplanung
Personenkriterien und Ergonomie
Anzahl Personen im Haushalt: 4
Davon Kinder: 2
Körpergrößen aller Hauptbenutzer in cm (wegen Arbeitshoehe): 183, 173
Welche Arbeitshöhe ist angedacht (in cm)?: noch nicht klar
Gebäudekriterien
Art des Gebäudes: Neu-/Umbau > Planänderungen möglich
Bruestungshöhe des Fensters (in cm): Dachfenster, Kniestock 153
Fensterhöhe (in cm): Oberkante 225
Raumhöhe in cm: 331, Galerie oberhalb
Heizung: Fußbodenheizung
Sanitäranschlüsse: vollkommen variabel
Einbaugerätekriterien
Ausführung Kühlgerät: Side by Side (ca. 90cm breit)
Einbaukühlgerät Größe: Noch unbekannt
Ausführung Tiefkühl (TK)-Gerät: Im Kühlschrank ab 3 Schubladen unten
Dunstabzugshaube: keine
Hochgebauter Backofen : ja
Geplante Heißgeräte: Einbaumikrowelle, Backofen
Hochgebauter Geschirrspüler : nein
Art des Kochfeldes: Induktionskochfeld
Kochfeldbreite (ca. in cm): 80
Sitzmöglichkeiten
Sitzmöglichkeit in der Küche / im Küchenbereich: Überstehende Arbeitsplatte
Sitzmöglichkeit: Für wieviel Personen?: Für 2 Personen
Sitzmöglichkeit: Tisch - wenn gesonderter Tisch oder offene Küche: Vorhandener Tisch
Gewünschte oder vorhandene Tischgröße: 150x100, ausziehbar
Wofür soll der Sitzplatz in der Küche genutzt werden und wie häufig: Küchenarbeiten
Stauraum-Planung
Was steht auf der Arbeitsplatte oder soll dort stehen?: Kaffeevollautomat, Wasserkocher, Messerblock, Toaster, Brotbehälter, Obstschale
Welche weiteren Küchenmaschinen müssen in der Küche untergebracht werden: Küchenmaschine, Allesschneider (z.B. in Schublade), Handrührgerät, Mixer, Pürierstab
Was soll in der Küche außer den Standards untergebracht werden: Geschirr komplett (nichts in Ess-/Wohnzimmer)
Welchen Stauraum gibt es sonst noch: Speisekammer
Kochgewohnheiten
Was/wie wird gekocht? (Alltagsküche, Menüs, Snacks usw): Alltagsküche, ein paar Mal im Jahr auch Menüs
Wie häufig wird gekocht: (fast) täglich 1x warm
Wird alleine gekocht? Oder auch gemeinsam? Mit und für Gäste?: oft zu zweit, die Kleine wuselt auch in der Küche rum, perspektivisch zu dritt. Selten mit Gästen
Spülen und Müll
Spülenform: 1 Becken mit Abtropffläche
Welche Mülltrennung soll in der Küche vorgehalten werden: Altpapier, Biomüll, Gelber Sack Müll, Restmüll
Sonstiges
Steht schon ein Küchenhersteller fest oder wird bevorzugt: nein
Steht schon ein Gerätehersteller fest oder wird bevorzugt: nein
Küchenstil: Klassisch
Was stört an der bisherigen Küche und was soll die neue Küche unbedingt können? Warum?: Die neue Küche soll unbedingt einen Induktionsherd haben. Aktuell haben wir teilweise Schränke mit Böden und Auszüge. Wir favorisieren Auszüge und möchten keine Böden. Früher hatten wir eine Holzarbeitsfläche, nun MDF Arbeitsplatte. Aufgrund der Langlebigkeit möchten wir eine Granitarbeitsplatte
Preisvorstellung (Budget): 25.000
Angehängte Dateien
Anhänge
-
Fachwerkstaender.jpg272,8 KB · Aufrufe: 173 -
Grundriss.jpg114,1 KB · Aufrufe: 167 -
Küchenfarben.JPG208,8 KB · Aufrufe: 172 -
Planung_Kuechenstudio.jpg54,7 KB · Aufrufe: 169 -
Planung_Kuechenstudio_2.jpg60,5 KB · Aufrufe: 163 -
Eigene_Planung.jpg56 KB · Aufrufe: 156 -
Eigene_Planung_2.jpg58,6 KB · Aufrufe: 167



