Unbeendet Neuplanung Wellmann neo lack

tobiaswand

Mitglied
Beiträge
2
Liebes Forum,

wir planen gerade eine neue Küche für ein gekauftes Haus. Wir haben nun eine Planung eines Küchenstudios bekommen, welche uns alllerdings noch nicht 100% gefällt.

Ich habe im Anhang die Planungen hochgeladen. Entgegen der Planung würden wir gerne alternativ einmal das Kochfeld auf die Insel planen und anstatt der Dunstabzugshaube weitere Hochschränke.

Wir haben zur Zeit ein Angebot über 9.000,- EUR, wobei Änderungen bei Schränken inkl. sind. Des Weiteren sind alle Rückwände, Spüle, Amatur, Abschlüsse inkl. Die Arbeitsplatte ist Kunststoff. Geräte kommen noch extra.

Wie seht ihr die Planung und das Angebot? Habt ihr noch Alternativen?

Freu mich auf eure Rückmeldungen.

Viele Grüße

Tobias


Checkliste zur Küchenplanung von tobiaswand

Anzahl Personen im Haushalt : 3
Davon Kinder? : 1
Körpergrössen aller Hauptbenutzer (wegen Arbeitshöhe ) in cm : 175
Art des Gebäudes? : Bestandsbau, Umbauten ausgeschlossen
Brüstungshöhe des Fensters (in cm) : 100
Fensterhöhe (in cm) : 100
Raumhöhe in cm: : 230
Heizung : Keine Heizung
Sanitäranschlüsse : vollkommen variabel
Ausführung Kühlgerät? : Integriert im Hochschrank (60cm)
Kühlgerät Größe : bis 122 cm Höhe
Ausführung Tiefkühl (TK)-Gerät : Nicht erforderlich bzw. steht woanders
Dunstabzugshaube? : Abluft
Hochgebauter Backofen ? : Ja
Hochgebauter Geschirrspüler ? : nein
Kochfeldart? : Induktion
Kochfeldbreite ca. (in cm)? : 60
Spülenform: : 1,5 Becken mit Abtropffläche
Weitere geplante Heißgeräte :
Küchenstil? : modern
Sitzmöglichkeit in der Küche / im Küchenbereich als : Überstehende Arbeitsplatte
Sitzmöglichkeit: Für wieviel Personen? : für 2 Personen
Sitzmöglichkeit: Tisch - wenn gesonderter Tisch oder offene Küche : Vorhandener Tisch
Gewünschte o. vorhandene Tischgröße : 160
Wofür soll der Sitzplatz in der Küche genutzt werden? Wie häufig? : Essen
Welche Arbeitshöhe ist angedacht (in cm)? : 93
Was steht auf der Arbeitsplatte oder soll dort stehen? : Kaffeevollautomat, Wasserkocher, Messerblock, Toaster
Welche weiteren Küchenmaschinen müssen in der Küche untergebracht werden? : Wasserkocher, Toaster, Mixer, Pürierstab, Eierkocher
Was soll in der Küche außer den Standards untergebracht werden? : Getränkekisten, Geschirr komplett (nichts in Ess-/Wohnzimmer), Sonstiges (evtl. im Beitragstext benennen)
Welchen Stauraum gibt es sonst noch? : Geschirr/Gläserschrank im Wohn-/Esszimmer, Speisekammer, Keller
Was/wie wird gekocht? (Alltagsküche, Menüs, Snacks usw) : Alltagsküche
Wie häufig wird gekocht? : (fast) täglich 1x warm
Wird alleine gekocht? Oder auch gemeinsam? Mit und für Gäste? : Beides
Was stört an der bisherigen Küche und was soll die neue Küche unbedingt können? Warum? : Tresen zum Kaffee trinken.
Steht schon ein Küchenhersteller fest oder wird bevorzugt? : Wellmann, Schüller , Alno , Nolte
Steht schon ein Gerätehersteller fest oder wird bevorzugt? : Miele , Siemens
Preisvorstellung (Budget) : bis 15.000,-
 

Anhänge

  • Anhang 4.jpg
    Anhang 4.jpg
    84,7 KB · Aufrufe: 230
  • Anhang 3.jpg
    Anhang 3.jpg
    45,5 KB · Aufrufe: 217
  • Anhang 2.jpg
    Anhang 2.jpg
    62,5 KB · Aufrufe: 226
  • Anhang 1.jpg
    Anhang 1.jpg
    75,6 KB · Aufrufe: 220
AW: Neuplanung Wellmann neo lack

:welcome:

im Küchenforum!

Würest du noch bitte einen vermaßten Geschossgrundriss hochladen, da es sich allem Anschein nach um eine offene Küche handelt.

Zum Kochen ist die geplante Insel eindeutig zu klein. Du hättest nur auf einer Seite einen Plattenüberstand von 30 cm.

Warum einen Eckschrank. Lies einmal warum tote Ecken gute Ecken sind.
 
AW: Neuplanung Wellmann neo lack

Zu den von dir in der Checkliste aufgezählten Herstellern:
da gibt es doch ganz schöne Unterschiede, sieh dir dazu mal Das Hersteller Ranking - Qualitätsmerkmale der Küchenhersteller an!
9000€ für Wellmann ohne Geräte finde ich (so ohne Kenntnis aller Details) eher üppig. Dafür solltest du auch einen Hersteller mit 6er Raster bekommen.

Bei Wellmann handelt es sich um eine günstigere Linie von Alno . Wellmann bekommst du nur im 5er und Alno im 6er Raster.

Erklärungen zum Raster findest du hier:
https://www.kuechen-forum.de/forum/themen/link-liste.12434/#post-261127

Viele Grüße
Silke
 
AW: Neuplanung Wellmann neo lack

Wellmann ist kein schlecher Hersteller...
Die Neo Front hat eine ordentliche Qualität. In dem Preisbereich gibt es meines Wissens keine bessere. Übrigens ist die Rückseite der Front auch lackiert, allerdings matt. Da muß man in dem Preisbereich erst einmal einen anderen Hersteller finden der das so anbietet.

Den Preis von 9 k finde ich allerdings für die paar Schränke schon weit oben. Allerdings kommt es darauf an, wie der Korpus ausgeführt wird. Ist dieser auch lackiert (Sichtseiten) wird es allgemein ein bißchen teurer.

Aber noch mal zur Korpushöhe von Wellmann:
Ja, der Korpus ist 715 mm hoch. Es ist aber kein Problem den Korpus ohne Fuge höher zu bestellen. Kostet halt ein bißchen mehr.
 
AW: Neuplanung Wellmann neo lack

Hallo Zusammen,

vielen Dank für die Rückmeldungen! Uns kam der Preis auch recht hoch vor.

Zu der alternativ geplanten Kochinsel:

Für diesen Fall würden wir den Unterschrank auch auf 1,20 m erweitern und die Platte nur nach hinten überstehen lassen.

Wir sind uns nur nicht sicher pb für diese Küche eine Kochinsel so gelungen ist.

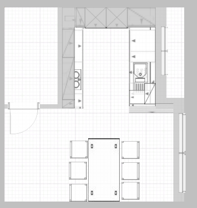
Im Anhang findet ihr die Grundrisse der Küche.

Für jede Anregung sind wir dankbar!

Viele Grüße

Tobias
 

Anhänge

  • Foto.JPG
    Foto.JPG
    80,5 KB · Aufrufe: 206
AW: Neuplanung Wellmann neo lack

Wenn so ein Raum in einen anderen Nutzungsbereich übergeht, der auch nicht so groß ist, muss man das immer mal als Gesamtheit anlegen.

Dann erkennt man schnell, dass jede Art von Halbinsel eigentlich den Koch/Essbereich nur eng macht.

Die planunten angehängten Planungsgrundriss beinhalten jeweils einen Tisch mit 90x180 cm.

Deshalb jetzt mal ein U mit den Hochschränken planoben.

Die Zeile am Fenster übertief, und die Zeile planlinks mit einem Lüfterbaustein.
- 120er ziemlich hoch hängender Hängeschrank, dort ein Lüfterbaustein wie die Novy Minihighline eingebaut. Das gewährleistet Kopffreiheit, beruhigt aber in dieser kleinen Küche die Hängeschransicht und ist auch putzfreundlicher. Das kann dann so ähnlich wie hier in Martins Küche aussehen:
83258d1340301107-7-88m-brauchen-viel-stauraum-pict3053.jpg


Ansonsten in der Fensterzeile auch der MUPL und noch ein übertiefer 60er Auszugsunterschrank.

Alles mit 78 cm Korpushöhe.

Die Abluft über den Hängeschränken nach planoben rausgeführt. Dazu die Hängeschränke bis unter die Decke verkleidet.
 

Anhänge

  • tobiaswand_20140124_kb1-alt.KPL
    4,1 KB · Aufrufe: 173
  • tobiaswand_20140124_kb1-alt_GrundrissGehtnicht.jpg
    tobiaswand_20140124_kb1-alt_GrundrissGehtnicht.jpg
    68,9 KB · Aufrufe: 168
  • tobiaswand_20140124_kb1-alt_Grundriss.jpg
    tobiaswand_20140124_kb1-alt_Grundriss.jpg
    68,1 KB · Aufrufe: 167
  • tobiaswand_20140124_kb1-alt_Ansicht5.jpg
    tobiaswand_20140124_kb1-alt_Ansicht5.jpg
    124,5 KB · Aufrufe: 180
  • tobiaswand_20140124_kb1-alt_Ansicht4.jpg
    tobiaswand_20140124_kb1-alt_Ansicht4.jpg
    100,2 KB · Aufrufe: 168
  • tobiaswand_20140124_kb1-alt_Ansicht3.jpg
    tobiaswand_20140124_kb1-alt_Ansicht3.jpg
    96,1 KB · Aufrufe: 181
  • tobiaswand_20140124_kb1-alt_Ansicht2.jpg
    tobiaswand_20140124_kb1-alt_Ansicht2.jpg
    120,1 KB · Aufrufe: 177
  • tobiaswand_20140124_kb1-alt_Ansicht1.jpg
    tobiaswand_20140124_kb1-alt_Ansicht1.jpg
    129 KB · Aufrufe: 177
  • tobiaswand_20140124_kb1-alt.POS
    10,2 KB · Aufrufe: 194

Ähnliche Beiträge

Neff Hausgeräte Ballerina Küchen Blum Bewegungstechnologie Weibel - Intelligente Küchenlüftung

Neff Spezial

Blum Zonenplaner

Weibel Abluft-Tuning

Weibel Abluft-Tuning
Zurück
Oben