- Beiträge
- 142
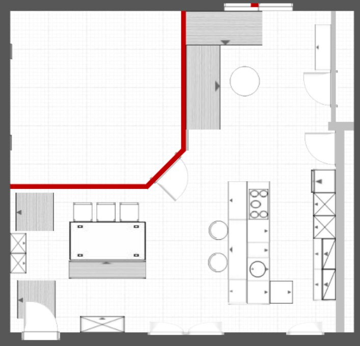
Okay, dann mach ich wohl doch nochmal ne Rolle rückwärts und durchdenke eine Küche ohne HS 
Spontan gäbs so einige Optionen:
1) Meinen Stauraumplan auf Herz und Nieren prüfen und schauen, ob es vielleicht doch noch was gibt, was sich in den Keller auslagern ließe. Nebendran der Raum ist nur sehr bedingt zum Lagern geeignet.
2) Die Inselsitzplätze weg nehmen und durch einen weiteren US ersetzen.
3) Probieren, ob es mit OS an der Stelle funktioniert, oder ob ich damit die selbe optische Problematik habe.
4) Probieren, ob vllt ein halbhoher Schrank eine Lösung ist.
5) Kochfeld an die Wand klassisch über den BO setzten und einen breiten Auszug in der Halbinsel dazugewinnen.
Spontan gäbs so einige Optionen:
1) Meinen Stauraumplan auf Herz und Nieren prüfen und schauen, ob es vielleicht doch noch was gibt, was sich in den Keller auslagern ließe. Nebendran der Raum ist nur sehr bedingt zum Lagern geeignet.
2) Die Inselsitzplätze weg nehmen und durch einen weiteren US ersetzen.
3) Probieren, ob es mit OS an der Stelle funktioniert, oder ob ich damit die selbe optische Problematik habe.
4) Probieren, ob vllt ein halbhoher Schrank eine Lösung ist.
5) Kochfeld an die Wand klassisch über den BO setzten und einen breiten Auszug in der Halbinsel dazugewinnen.





