ArtemisCoco
Mitglied
- Beiträge
- 6
Neubauküchenplanung im EFH
Hallo liebes Küchen-Forum!
Aktuell sind meine Partnerin und ich in der Planungsphase für unser neues Eigenheim.
Wir sind beide viel in der Küche und kochen + backen sehr gerne (Brot, Pizza, Kuchen). Die Küche haben wir dementsprechend groß geplant.
In rund 2 Wochen steht der Termin zum Finalisieren von Wänden, Fenstern und Co. an.
Daher sind wir aktuell noch einmalintensiv in die Küchenplanung eingestiegen, da wir noch „um die Küche“ planen können.
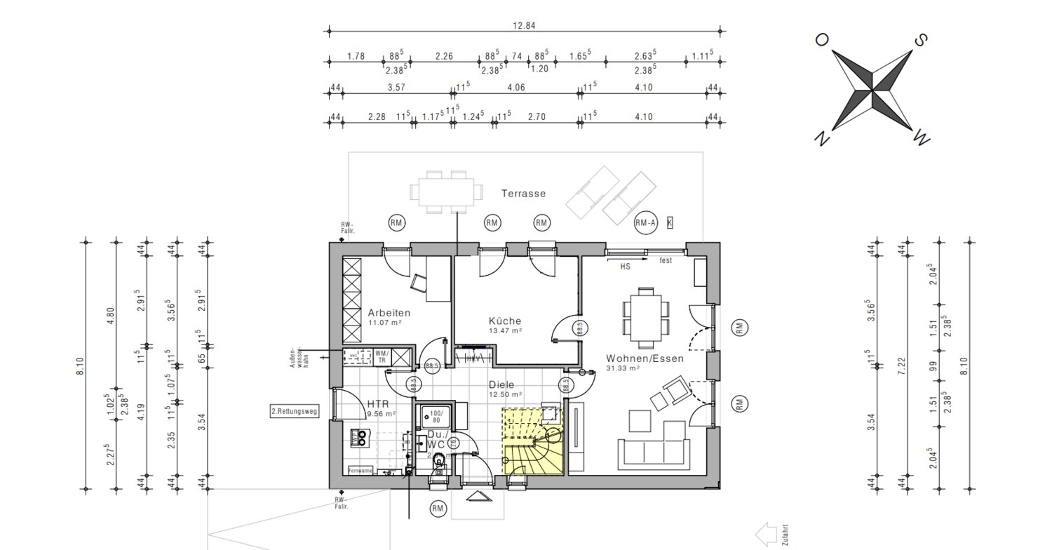
Die angehängten Zeichnungen des Grundriss EG sind noch nicht ganz korrekt. Anstatt ins Wohnzimmersoll eine Tür direkt in den Flur.
Im Küchengrundriss habe ich dies bereits „angepasst“. Ebenfalls ist das Fenster nicht fix. Hier sind wir am überlegen auf ein schmaleres bodentiefes Fenster zu wechseln. (Mauermaß von ~58cm ) Das ist auch so schon in der ALNO Planung berücksichtigt.
Bei der Arbeitsplattenhöhe sind wir uns noch unsicher. Wir sind zwar beide rund 1,80m groß, leider kommt die Größe bei mir eher aus dem Oberkörper und bei meiner Partnerin aus den Beinen.
Die von ihr getesteten 98cm sind mir dann doch einen Ticken zu hoch.
Der angehängte Entwurf ist eine Weiterentwicklung aus einem zurückliegenden Besuch in einem Küchenstudio .
Zu verstauende Geräte
In den Schränken müssen zusätzlich noch das Zubehör für die Küchenmaschine, eine Eismaschine, eine Philips Nudelmaschine und eine Heißluftfriteuse unterkommen. In den Schrank soll außerdem die Küchenmaschine und weitere Backutensilien(Formen und Co.) einen Platz finden.
E-Geräte
Bei den E-Geräten müssen Dampfbackofen, Herd, Dunstabzug sowie Geschirrspüler neu angeschafft werden. Ein Kühlschrank ist vorhanden und soll später durch einen Frenchdoor ersetzt werden.
Der Dampfbackofen soll höher gestellt werden. Die vorhandene Mikrowelle wollen wir dann einfach in ein Fachdarüber stellen und die Tür zu machen.
Wand mit Hängeschränken
In die Hängeschänke soll Geschirr und Schüsseln/Dosen etc. untergebracht werden.
Unten befindet sich die Spülmaschine und Spüle. Daneben die Hauptarbeitsfläche.
Unter dieser Arbeitsfläche sollen sich dann ein MUPL und ein Schrank für Besteck und Co. befinden.
Kochinsel
Auf der Insel soll ein 90cm Kochfeld von Neff seinen Platz finden. Mich hat der Drehknauf überzeugt.
Da ich möglichst 5 Zonen möchte und eine davon mindestens 28cm haben soll, ist ein Neff Abzug mit ausfahrbarer Glasscheibe geplant.
In den Schränken sollen Untersetzter, Topflappen, Kochbesteck oder auch Öl und Gewürze ihren Platz finden. In die großen Auszügen unterhalb des Kochfeldes sollen Töpfe und Pfannen.
Wand mit Hochschränken
Die Fläche neben den Hochschränken ist für Kaffevollautomat, Wasserkocher, Schneidemaschine und Toaster geplant. Die Schränke darunter für Nudelmaschine, Eismaschine und Heißluftfriteuse.
Die beiden Hochschränke daneben sollen für die Vorräte, Süßigkeiten und Co. herhalten.
Meine kleine Mehlsammlung soll dort ebenfalls Platz finden.
In dem freien Platz der dann folgt, soll ein Stuhl und später eventuell ein Akkusauger an der Wandbefestigt werden.
Dass der Platz zwischen Kochinselrückseite und Vorratsschrankwand nicht unbedingt für 2 Leute geeignet ist, ist uns bewusst.
Seht ihr in der Planung noch grobe Schnitzer oder irgendwas essentielles was wir vergessen haben?
Checkliste zur Kuechenplanung
Personenkriterien und Ergonomie
Anzahl Personen im Haushalt: 2
Davon Kinder: keine
Körpergrößen aller Hauptbenutzer in cm (wegen Arbeitshoehe): 180
Welche Arbeitshöhe ist angedacht (in cm)?: 90cm-95cm
Gebäudekriterien
Art des Gebäudes: Neu-/Umbau > Planänderungen möglich
Bruestungshöhe des Fensters (in cm):
Fensterhöhe (in cm):
Raumhöhe in cm: ~250cm
Heizung: Fußbodenheizung
Sanitäranschlüsse: vollkommen variabel
Einbaugerätekriterien
Ausführung Kühlgerät: Frenchdoor (ca. 90cm breit)
Einbaukühlgerät Größe: N. a.
Ausführung Tiefkühl (TK)-Gerät: Im Kühlschrank bis 2 Schubladen unten
Dunstabzugshaube: Umluft
Hochgebauter Backofen : ja
Geplante Heißgeräte: Standmikrowelle, Dampfbackofen (DGC) ohne Wasseranschluß
Hochgebauter Geschirrspüler : nein
Art des Kochfeldes: Induktionskochfeld
Kochfeldbreite (ca. in cm): 90cm
Sitzmöglichkeiten
Sitzmöglichkeit in der Küche / im Küchenbereich: Keine
Sitzmöglichkeit: Für wieviel Personen?: nein
Sitzmöglichkeit: Tisch - wenn gesonderter Tisch oder offene Küche: N. a.
Gewünschte oder vorhandene Tischgröße:
Wofür soll der Sitzplatz in der Küche genutzt werden und wie häufig:
Stauraum-Planung
Was steht auf der Arbeitsplatte oder soll dort stehen?: Kaffeevollautomat, Wasserkocher, Messerblock, Allesschneider, Toaster, Obstschale
Welche weiteren Küchenmaschinen müssen in der Küche untergebracht werden: Küchenmaschine, Handrührgerät, Pürierstab, Sonstiges (evtl. im Beitragstext benennen)
Was soll in der Küche außer den Standards untergebracht werden: ALLE Vorräte, Geschirr komplett (nichts in Ess-/Wohnzimmer)
Welchen Stauraum gibt es sonst noch: N. a.
Kochgewohnheiten
Was/wie wird gekocht? (Alltagsküche, Menüs, Snacks usw): Alltagsküche, Brot, Kuchen
Wie häufig wird gekocht: (fast) täglich 1x warm
Wird alleine gekocht? Oder auch gemeinsam? Mit und für Gäste?: Entweder allein oder zu zweit
Spülen und Müll
Spülenform: 1 Becken mit Abtropffläche
Welche Mülltrennung soll in der Küche vorgehalten werden: Biomüll, Gelber Sack Müll, Restmüll
Sonstiges
Steht schon ein Küchenhersteller fest oder wird bevorzugt:
Steht schon ein Gerätehersteller fest oder wird bevorzugt: Neff
Küchenstil: Grifflose Küche
Was stört an der bisherigen Küche und was soll die neue Küche unbedingt können? Warum?: zu klein, zu wenig Stauraum (als Mietswohnungsküche auch kleiner)
Preisvorstellung (Budget): 15000-20000
Angehängte Dateien
Anhänge
