tina688
Mitglied
- Beiträge
- 6
Hallo,
wir sind gerade am Hausplanen und uns wurde empfohlen zuerst die Küche zu planen bevor alle Anschlüsse fix verlegt werden.
Nun haben wir eine Küche geplant wie sie uns gefällt und würden uns über eure Meinung bzw. Feedback freuen.
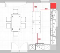
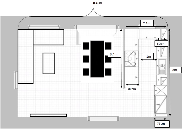
Die Küche wäre 5m lang / Breite 60cm bzw. 73cm ganz rechts wo der Herd ist und der Kühlschrank hinkommt (bei der leer gelassen Stelle ist ein Kühlschrank, Doppeltürig, vorgesehen).
Die Insel wäre 3,4m lang / Breite 80cm
Vor dem Fenster wäre es eine Länge von 2,4m / Breite 60cm
Die Terrassentür wird eine Schiebetür sein.
Die Tür zum Wohn-/Essbereich wird auch eine Schiebetür sein (kann aber auch sein das es komplett offen bleibt.
Danke vorab für eure Antworten
LG
Tina
Checkliste zur Küchenplanung
Anzahl Personen im Haushalt: 3
Davon Kinder?: 1
Art des Gebäudes?: Neu-/Umbau, Planänderungen möglich
Körpergrössen aller Hauptbenutzer (wegen Arbeitshöhe ) in cm: 178 und 183cm
Brüstungshöhe des Fensters (in cm): 100
Fensterhöhe (in cm): 130
Raumhöhe in cm: 250
Heizung: Fussbodenheizung
Sanitäranschlüsse: vollkommen variabel
Ausführung Kühlgerät: Side by Side ca. 90cm breit
Kühlgerät Größe: bis 178 cm Höhe
Ausführung Tiefkühl (TK)-Gerät: Nicht erforderlich bzw. steht woanders
Dunstabzugshaube: Abluft
Backofen etc. hochgebaut?: Ja
Hochgebauter Geschirrspüler ?: Wenn möglich
Kochfeldart: Induktion
Kochfeldbreite ca. (in cm)?: 90cm
Spülenform: 1,5 Becken mit Abtropffläche
Geplante Heißgeräte: Einbaumikrowelle, Backofen
Küchenstil: Modern
Sitzmöglichkeit in der Küche / im Küchenbereich: Keine
Sitzmöglichkeit: Für wieviel Personen?: Nein
Sitzmöglichkeit: Tisch - wenn gesonderter Tisch oder offene Küche: Wird nach Bedarf neu gekauft
Gewünschte o. vorhandene Tischgröße:
Wofür soll der Sitzplatz in der Küche genutzt werden? Wie häufig?:
Welche Arbeitshöhe ist angedacht (in cm)?: 94cm
Was steht auf der Arbeitsplatte oder soll dort stehen?: Kaffeemaschine
Welche weiteren Küchenmaschinen müssen in der Küche untergebracht werden?: Wasserkocher, Mixer, Pürierstab
Was soll in der Küche außer den Standards untergebracht werden?: Geschirr komplett (nichts in Ess-/Wohnzimmer)
Welchen Stauraum gibt es sonst noch?: Hauswirtschaftsraum, Keller
Was/wie wird gekocht? (Alltagsküche, Menüs, Snacks usw): Alltagsküche
Wie häufig wird gekocht?: (fast) täglich 1x warm
Wird alleine gekocht? Oder auch gemeinsam? Mit und für Gäste?: meistens alleine, später mit Kind
Was stört an der bisherigen Küche und was soll die neue Küche unbedingt können? Warum?: zu wenig Arbeitsfläche
Welche Mülltrennung soll in der Küche vorgehalten werden?: Biomüll, Restmüll
Steht schon ein Küchenhersteller fest oder wird bevorzugt?: nein
Steht schon ein Gerätehersteller fest oder wird bevorzugt?: nein
Preisvorstellung (Budget): bis 20.000,-
wir sind gerade am Hausplanen und uns wurde empfohlen zuerst die Küche zu planen bevor alle Anschlüsse fix verlegt werden.
Nun haben wir eine Küche geplant wie sie uns gefällt und würden uns über eure Meinung bzw. Feedback freuen.
Die Küche wäre 5m lang / Breite 60cm bzw. 73cm ganz rechts wo der Herd ist und der Kühlschrank hinkommt (bei der leer gelassen Stelle ist ein Kühlschrank, Doppeltürig, vorgesehen).
Die Insel wäre 3,4m lang / Breite 80cm
Vor dem Fenster wäre es eine Länge von 2,4m / Breite 60cm
Die Terrassentür wird eine Schiebetür sein.
Die Tür zum Wohn-/Essbereich wird auch eine Schiebetür sein (kann aber auch sein das es komplett offen bleibt.
Danke vorab für eure Antworten
LG
Tina
Checkliste zur Küchenplanung
Anzahl Personen im Haushalt: 3
Davon Kinder?: 1
Art des Gebäudes?: Neu-/Umbau, Planänderungen möglich
Körpergrössen aller Hauptbenutzer (wegen Arbeitshöhe ) in cm: 178 und 183cm
Brüstungshöhe des Fensters (in cm): 100
Fensterhöhe (in cm): 130
Raumhöhe in cm: 250
Heizung: Fussbodenheizung
Sanitäranschlüsse: vollkommen variabel
Ausführung Kühlgerät: Side by Side ca. 90cm breit
Kühlgerät Größe: bis 178 cm Höhe
Ausführung Tiefkühl (TK)-Gerät: Nicht erforderlich bzw. steht woanders
Dunstabzugshaube: Abluft
Backofen etc. hochgebaut?: Ja
Hochgebauter Geschirrspüler ?: Wenn möglich
Kochfeldart: Induktion
Kochfeldbreite ca. (in cm)?: 90cm
Spülenform: 1,5 Becken mit Abtropffläche
Geplante Heißgeräte: Einbaumikrowelle, Backofen
Küchenstil: Modern
Sitzmöglichkeit in der Küche / im Küchenbereich: Keine
Sitzmöglichkeit: Für wieviel Personen?: Nein
Sitzmöglichkeit: Tisch - wenn gesonderter Tisch oder offene Küche: Wird nach Bedarf neu gekauft
Gewünschte o. vorhandene Tischgröße:
Wofür soll der Sitzplatz in der Küche genutzt werden? Wie häufig?:
Welche Arbeitshöhe ist angedacht (in cm)?: 94cm
Was steht auf der Arbeitsplatte oder soll dort stehen?: Kaffeemaschine
Welche weiteren Küchenmaschinen müssen in der Küche untergebracht werden?: Wasserkocher, Mixer, Pürierstab
Was soll in der Küche außer den Standards untergebracht werden?: Geschirr komplett (nichts in Ess-/Wohnzimmer)
Welchen Stauraum gibt es sonst noch?: Hauswirtschaftsraum, Keller
Was/wie wird gekocht? (Alltagsküche, Menüs, Snacks usw): Alltagsküche
Wie häufig wird gekocht?: (fast) täglich 1x warm
Wird alleine gekocht? Oder auch gemeinsam? Mit und für Gäste?: meistens alleine, später mit Kind
Was stört an der bisherigen Küche und was soll die neue Küche unbedingt können? Warum?: zu wenig Arbeitsfläche
Welche Mülltrennung soll in der Küche vorgehalten werden?: Biomüll, Restmüll
Steht schon ein Küchenhersteller fest oder wird bevorzugt?: nein
Steht schon ein Gerätehersteller fest oder wird bevorzugt?: nein
Preisvorstellung (Budget): bis 20.000,-
Anhänge
-
Küche3.jpg130,8 KB · Aufrufe: 268 -
Küche mit Griffe neu 20.08.16.POS7,1 KB · Aufrufe: 153
-
Küche mit Griffe neu 20.08.16.KPL4,1 KB · Aufrufe: 158
-
Küche12.jpg69,1 KB · Aufrufe: 270 -
Küche10.jpg93,1 KB · Aufrufe: 278 -
Küche9.jpg115,6 KB · Aufrufe: 265 -
Küche8.jpg102,5 KB · Aufrufe: 281 -
Küche7.jpg127,7 KB · Aufrufe: 265 -
Küche6.jpg122,8 KB · Aufrufe: 267 -
Küche5.jpg95,7 KB · Aufrufe: 280













