Unbeendet Küchenplanung im Neubau

berawel

Mitglied
Beiträge
6
Küchenplanung im Neubau

Hallo zusammen,

In ca. 6 Wochen ist Spatenstich und dann geht's mit dem Hausbau los. Da wir in 4 Wochen unser erstes Kind erwarten dachten wir uns, schonmal mit der Küchenplanung loszulegen. Ist bestimmt nicht spassig in ein paar Monaten mit Säugling stundenlang im Küchenstudio rumzusitzen.

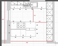
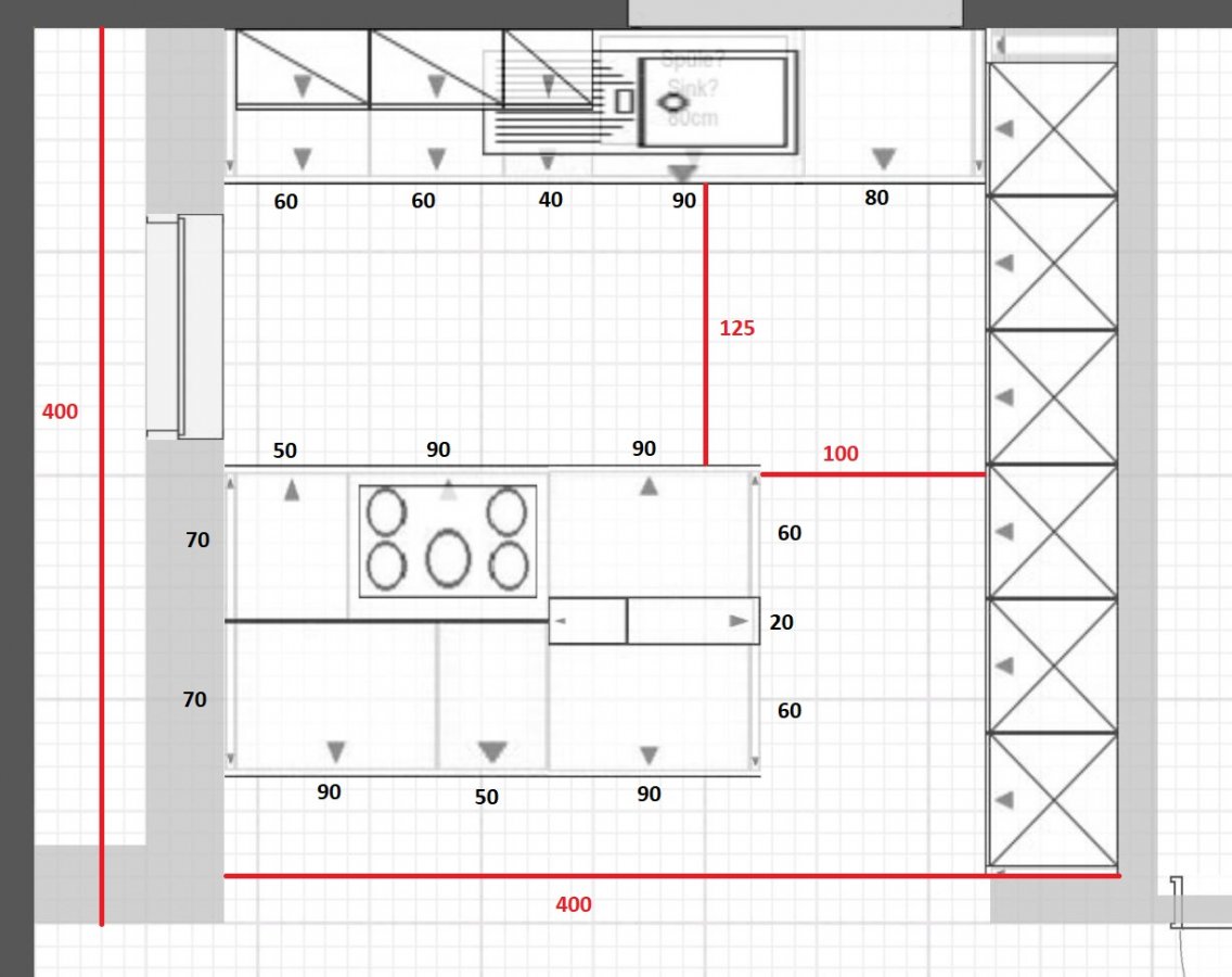
Wir hatten ursprünglich eine geschossene Küche geplant, mit viel-zu-vielen Türen, 2 Fenstern sowie einer Hobbithöhle als Speisekammer. Nachdem wir von 2 Küchenstudios gehört haben, doch besser nochmal den Grundriss zu überdenken, haben wir die Speisekammer, 3 Türen und 1 Fenster entfernt.
Leider sind diese im vermassten Küchenplan der Architektin noch drin, da wir erst am Donnerstag den Küchenplan geändert hatten. Das Fenster planlinks haben wir auf 2m Breite geändert. Hoffe es ist dennoch verständlich.

Die geplanten Elektrogeräte sind:
IKBPi 3564 Premium BioFresh
PUXU | BORA
Miele G 7595 SCVi XXL AutoDos Vollintegrierter Geschirrspüler XXL
BO + DG von Siemens (hier kein Link, da die Modelle noch nicht feststehen)

Nun habe ich einen 1.Entwurf im Alno Küchenplaner erstellt. Ich würde mich freuen, wenn mal jemand drüberschauen könnte.

In der Küche müssen nicht alle Vorräte aufbewahrt werden, im Keller wird dafür ein Räumchen geplant, in dem auch ein Getränkekühlschrank sowie ein Gefrierschrank stehen soll.

Vorallem sind wir uns unsicher, ob wir die Halbinsel in den Essbereich reinragen lassen sollen, oder ob es dann im Sitzbereich zu eng werden könnte. In der ursprünglichen Planung sollte an der Wand im Esszimmer zur Küche einen kleine Anrichte (36er Tiefe) für's Geschirr stehen (wäre dann bestimmt auch beengt um den Esstisch geworden).

Als Spüle würden wir gerne die Blanco Etagon 8 verbauen. Falls es sinnvoller ist die Halbinsel zu verschieben, muss zuerst der Spülschrank dran glauben und auf 60 cm verschmälert werden. Würden dann eine Etagon 6 einbauen.

MUPL wollen wir auch einplanen. Rechts oder links der Spüle ist noch unklar.

Die Beladung der Schränke ist noch nicht bekannt. Wir haben erstmal die 3 Seiten der Küche mit breiten Schränken geplant denn 1x 90er kostet bestimmt weniger als 1x40 + 1x50, k.a. ob das wirklich sinvoll ist.

Die Anordnung der Hochschränke planoben wären von rechts nach links: Besenschrank, Kühlschrank, Backofen , Dampfgarer, Spülmaschine.

Die Wand planrechts muss noch verschoben werden, sonst passt es mit den Hochschränken nicht. Reichen 5 cm?

Vielen Dank,
Bernd

Checkliste zur Küchenplanung

Personenkriterien und Ergonomie
Anzahl Personen im Haushalt:
3
Davon Kinder: 1
Körpergrößen aller Hauptbenutzer in cm (wegen Arbeitshöhe ): 168, 184
Welche Arbeitshöhe ist angedacht (in cm)?: 95cm. Bei den Messungen kamen bei meiner Frau Werte zwischen 92cm (Ellbogen minus 15) und Beckenknochen 97cm raus. Meine Werte lagen bei +100cm. Die Testhöhe von 95cm fand Sie angenehm. Derzeit haben wir 93cm und es könnte ein Stückchen höher sein.

Gebäudekriterien
Art des Gebäudes:
Neu-/Umbau > Planänderungen möglich
Brüstungshöhe des Fensters (in cm): 91
Fensterhöhe (in cm): 140
Raumhöhe in cm: 257
Heizung: Fußbodenheizung
Sanitäranschlüsse: vollkommen variabel

Einbaugerätekriterien
Ausführung Kühlgerät:
Integriert im Hochschrank (60cm)
Einbaukühlgerät Größe: 178cm
Ausführung Tiefkühl (TK)-Gerät: Im Kühlschrank als kleines Fach oben
Dunstabzugshaube: Umluft
Hochgebauter Backofen : ja
Geplante Heißgeräte: Standmikrowelle, Dampfgarer ohne Wasseranschluß, Backofen
Hochgebauter Geschirrspüler : ja
Art des Kochfeldes: Induktion
Kochfeldbreite (ca. in cm): 80

Sitzmöglichkeiten
Sitzmöglichkeit in der Küche / im Küchenbereich:
Tresen in Barhöhe
Sitzmöglichkeit: Für wieviel Personen?: Für 2 Personen
Sitzmöglichkeit: Tisch - wenn gesonderter Tisch oder offene Küche: Vorhandener Tisch
Gewünschte oder vorhandene Tischgröße: 165cm x 80cm ist vorhanden
Wofür soll der Sitzplatz in der Küche genutzt werden und wie häufig: Für ein Kaffee und Brötchen vor der Arbeit, zum Snacken, als Zwischenablage zum Kühlschrank Ein- und Ausräumen.

Stauraumplanung
Was steht auf der Arbeitsplatte oder soll dort stehen?:
Kaffeemaschine, Wasserkocher, Messerblock, Toaster, Brotbehälter, Obstschale
Welche weiteren Küchenmaschinen müssen in der Küche untergebracht werden: Küchenmaschine, Allesschneider (z.B. in Schublade), Handrührgerät, Pürierstab, Eierkocher, Sonstiges (evtl. im Beitragstext benennen)
Was soll in der Küche außer den Standards untergebracht werden: Staubsauger/Wischer etc., Geschirr komplett (nichts in Ess-/Wohnzimmer)
Welchen Stauraum gibt es sonst noch: Geschirr/Gläserschrank im Wohn-/Esszimmer, Hauswirtschaftsraum, Keller

Kochgewohnheiten
Was/wie wird gekocht? (Alltagsküche, Menüs, Snacks usw):
Alltagsküche, Snacks, Hausmannskost. Meine Mahlzeiten sind eher fleischlastig, die meiner Frau eher gemüselastig. Daher sollte ein Dampfgarer eingebaut werden.
Wie häufig wird gekocht: (fast) täglich 1x warm
Wird alleine gekocht? Oder auch gemeinsam? Mit und für Gäste?: Gerne zusammen, evtl. auch mit Gästen. Das war leider in unserer derzeitigen 8m² Küche mit Schräge leider nicht möglich.

Spülen und Müll
Spülenform:
1 Becken ohne Abtropffläche
Welche Mülltrennung soll in der Küche vorgehalten werden: Biomüll, Gelber Sack Müll, Restmüll

Sonstiges
Steht schon ein Küchenhersteller fest oder wird bevorzugt:
Gerne Ballerina , wird aber wohl am Buget scheitern. Korpus sollte so um die 80 cm hoch sein. Somit wird es wohl eine nobilia Küche.
Steht schon ein Gerätehersteller fest oder wird bevorzugt: Bora , Miele , Liebherr , Siemens
Küchenstil: Grifflose Küche
Was stört an der bisherigen Küche und was soll die neue Küche unbedingt können? Warum?: Mit 8m² viel zu klein, da steht man sich mit 2 Leuten schon auf den Füssen. Und zudem noch total verplant (war schon drin, hatten keinen Einfuß auf die Anordnung). Bei geöffnetem Geschirrspüler kommt man kaum ans Spülbecken. Die neue Küche sollte sinnvoller angeordnet sein.
Preisvorstellung (Budget): 18.000 €

Angehängte Dateien
 

Anhänge

  • Entwurf1.JPG
    Entwurf1.JPG
    66,1 KB · Aufrufe: 459
  • Entwurf1.KPL
    4,1 KB · Aufrufe: 304
  • Entwurf1.POS
    7,3 KB · Aufrufe: 318
  • Grundriss EG Links.JPG
    Grundriss EG Links.JPG
    71,1 KB · Aufrufe: 489
Zuletzt bearbeitet:
Hallo und herzlich willkommen

warum dieses layout? in Wirklichkeit wird das sehr komisch aussehen, mit 10m2 Leerraum in der Mitte? das einsame Tischlein macht das auch nicht besser.

Für ein Kaffee und Brötchen vor der Arbeit, zum Snacken, ...
das wird so nie genutzt werden

Die Küche reicht auch zu weit in den Essbereich, der Weg vom Kochfeld zu KS ist weit.

da steht man sich mit 2 Leuten schon auf den Füssen
das wird bei diesem layout genauso passieren.

wenn du Gerätetypen vorstellst, bitte zur Herstellerseite verlinken.

Die BRH dann netsprechend der AP Höhe anpassen, damit die AP in die Fensterbrüstung weitergeführt werden kann.

MUPL wollen wir auch einplanen. Rechts oder links der Spüle ist noch unklar
das Konzept des MUPLs hast du noch nicht ganz verstanden. Die Idee des MUPLs ist, dass man da, wo man schnippelt, die Reste einfach in den oberen Auszug schiebt.

Muckelina MUPL.jpg
dh, der MUPL macht nur da sind, wo gearbeitet wird.
 
persönlich finde ich, dass das layout anders sein sollte, die Küche ist zu tief, der Tisch für den Raum zu klein.

ber1.PNG ber11.PNG ber2.PNG ber3.PNG

wäre es meine Küche, wollte ich das Kochfeld nicht in der Insel, es wird zu selten genutzt, an die Spüle muss man sehr viel häufiger. Auch wenn man einen DGC einplant, gibt es nicht mehr viel, was auf dem Kochfeld stattfindet.

Für mich würde ich die Insel von Fenster beginnend so planen
60er GSP
60er US mit Spüle
40er US mit MUPL
80er US

der GSP ist aus dem Weg, neben der Spüle bleiben min 120cm AP Fläche.

Wenn der GSP wie von mir oben geplant im HS und daneben der KS ist, kommt es öfter zum Konflikt, weil die GSP Tür im Weg steht. Rutscht der KS aber weiter in die Mitte, ist er mitten im Durchgang, was bei 100cm Durchgang ok-ish ist. Persönlich habe ich GSP und KS nicht so nah beeinander, weil GSP/KS/Müll/Spüle die Teile sind, die mehrmals täglich bedient werden.
 

Anhänge

  • bera-evelin-PLAN1.KPL
    3,9 KB · Aufrufe: 309
  • bera-evelin-PLAN1.POS
    9,5 KB · Aufrufe: 314
Hallo Evelin,

Vielen Dank für deine schnelle Antwort. Dachte erst, zur welchen gruseligen Zeit bist Du denn hier aktiv, bis ich gesehen habe, das Du in Australien lebst.

Deine Planung sieht echt super aus. Keine Ahnung warum wir so versteift waren, die Schrankwand planoben aufzubauen. Ich werde das heute Abend mit meiner Frau besprechen und dann auch die Links ergänzen.

Viele Grüße,
Bernd
 
du kannst schon eine Schrankwand planoben haben (möglichst mit Nische) und eben dann eine längere, angedockte Insel davor mit Zeilenabstand von ca 120-130cm. Auf der Insel dann Spüle und Kochfeld.

Nur was ihr geplant habt, hätte einen sehr großen, optisch unschönen Leerraum produziert und halt viel Lauferei.
 
Evelins Ansatz/Vorschlag ist perfekt. Wir haben einen ähnlichen Küchenraum-Grundriss und sind nach jetzt 3 Jahren super Glücklich mit der damaligen Entscheidung und würden alles genau so wieder machen.
Hier unser Planungsthread:
Neubau Zweifamilienhaus 2xgleiche Küche - Fertig mit Bildern -
Bilder fertige Küche kurz vor dem Umzug:
Neubau Zweifamilienhaus 2xgleiche Küche - Fertig mit Bildern -

Mittlerweile sind auch hinten links und rechts neben dem Fenster über der Spüle die Rückwände inkl. Regalbrettern montiert, ich mache mal Bilder und stelle sie hier dann ein.
 
Zuletzt bearbeitet:
@Evelin: Die Planung von Dir mit der Schrankwand planrechts ist viel besser als planoben, wird auf jeden Fall übernommen.

@ralfs1969: Danke für die Info. Habe mir deinen Planungsthread fast komplett durchgelesen. Wie ich sehen konnte, ist die Speisekammer auch recht schnell aus der Planung geflogen. Deine Küche ist echt schick geworden. Unsere Elektroinstallation wird übrigens auch mit KNX/DALI ausgeführt aber das gehört hier nicht her...

Edit: Links zu den E-Geräten im Eröffnungsthread ergänzt

Liebe Grüße
Bernd
 
Zuletzt bearbeitet:
Der Plan von Evelin kam auch bei meiner Frau gut an. Sie hatte aber ein paar Änderungswünsche, die ich in den ALNO Planer übernommen habe.

Da nun die Schrankwand planrechts stehen soll, konnten wir zu unserem ursprünglichen Plan zurückkehren, mit einem Fenster planoben. Man kann wieder auf die Strasse schauen und die Ansicht der Hausfront ist so auch harmonischer, ohne eine 4m breite fensterlose Wand.

Planlinks wurde das 2m breite Fenster gegen ein bodentiefes Element getauscht. Wir haben nun einen direkten Zugang zur Terrasse. Der Weg zur geplanten Grillecke wäre auch kürzer.

Den GSP haben wir erhöht in einem Highboard in die Ecke gesetzt. Uns ist bewusst das wir damit 60cm Arbeitsfläche neben der Spüle "verlieren" aber uns gefällt das so und der Komfortgewinn zählt hier.

DG überm BO gefiel meiner Frau garnicht. Sie hat die Bedienung im Küchenstudio ausprobiert. Der BO war zu niedrig und der DG zu hoch. Optisch finden wir es auch schöner, wenn beide Geräte in der Flucht zur Insel stehen. Deshalb haben wir die Schrankwand planrechts um ein Element erweitert. Am Platz wo der GSP stand, soll nun ein Vorratsschrank hin.

Kopfschmerzen bereitet uns allerdings 2 Sachen:

Die Verbreiterung der Küche um 15cm. Auf der Rückseite der Wand planrechts sollte eigentlich eine Flurgarderobe stehen. Am Samstag waren wir bei der Badplanung, da mussten wir das Gäste WC auch schon 5cm verbreitern. Wird langsam etwas eng rechts und links von der Eingangstür.

Die Küche soll gefliesst werden. Der Essbereich bekommt den gleichen Boden wie der Rest vom WZ. Ich hoffe wir dürfen die Wand planlinks noch verändern, so das sie mit der rechten Küchenwand in der gleichen Flucht liegt.

Werde morgen mal die Architektin anrufen und ihr die Probleme schildern.
 

Anhänge

  • bera-evelin-PLAN2.JPG
    bera-evelin-PLAN2.JPG
    92,4 KB · Aufrufe: 366
  • bera-evelin-PLAN2.POS
    11,8 KB · Aufrufe: 319
  • bera-evelin-PLAN2.KPL
    3,9 KB · Aufrufe: 312
es ist praktisch immer besser, wenn die BOs nebeneinander eingebaut werden, wenn man Platz hat. Außerdem ist es oft so, dass eine DGC in 45er Höhe genommen wird, man muss dann eine 15cm hohe Blende/Schublade des Herstellers dazukaufen, damit das ordentlich aussieht.

die 15cm Wandlänge mehr müssen nicht unbedingt sein, man muss die Insel entsprechend kürzen.

Ein hochgestellter GSP "Huppel" finde ich halt immer, naja. Wollte ich für mich nicht. Aber, er steht bei dir auch an der falschen Stelle, bzw die Spüle und der MUPL stehen an der falschen Stelle. Das funktioniert so nicht. Auch fehlt die Deckseite (2cm) zwischen dem Huppel und den US, der GSP fällt sonst raus. Ein GSP steht nicht in einem Schrank, egal wo, er steht zwischen Schränken.

Wenn der GSP planlinks steht, wandert in der Zeile alles weiter nach planrechts, dh, das Kochfeld muss auch weiter nach planrechts, sonst läuft man zickzack beim Kochen.

Man würde auch keinen 120er OS hängen, der hängt durch und ist an der Stelle auch optisch zu breit.

Die Inselrückseite wird in Wirklichkeit etwas anders aussehen, kommt auf die Umluftführung des Kochfeldes an.

Wo sollen denn die Fliesen enden?

Nur mal zur Info, der "logische" Ablauf beim Kochen ist so

Gemüse (beispiel) aus dem KS planrechts entnehmen, rechts von der Spüle ablegen, in der Spüle waschen, links neben der Spüle (über MUPL) schneiden, daneben dann in den Topf/Pfanne oder 180 Grad drehen und in den Topf. Oder das ganze umgekehrt.

Am bequemsten sind die Abläufe, wenn Spüle und Kochfeld fortlaufend in einer Zeile sind, Beispiel spexs Küche.
 

Anhänge

  • bera21.PNG
    bera21.PNG
    153,5 KB · Aufrufe: 378
  • bera22.PNG
    bera22.PNG
    523 KB · Aufrufe: 376
  • bera-evelin-PLAN2.KPL
    3,9 KB · Aufrufe: 310
  • bera-evelin-PLAN2.POS
    13,3 KB · Aufrufe: 303
wollt ihr wirklich den verlinkten KS? da ist kaum Platz drin, weil oben noch ein kleines Gefrierfach ist. Wäre mir mit 2 Personen viel zu klein.
 
Die Küche wird ja unserer immer ähnlicher ;-)

Wieso den Geschirrspüler nicht hochgebaut in die HS-Wand so wie bei mir...der GS-Höcker in der hinteren Küchenzeile zerstört die ganze schöne Optik und zudem ist die Postition in der HS-Wand die optimale, hat sich bei uns super bewährt.

Die Spüle würde ich auch wie bei uns weiter Richtung HS-Wand verschieben, die Spüle sollte nie direkt hinter dem Kochfeld sein sondern leicht versetzt, hat sich auch in der Praxis super bewährt.

WIr sind mit der Aufteilung Ullaschrank (+Schublade, die ist genial)/GS-XXL+MW/DGC/BO/KS(178cm ohne Gefrierfach)/Besenschrank super zufrieden.

Auch kann ich nur empfehlen den Durchgang zwischen Kochinsel und HS-Wand eher etwas größer zu machen, 1m reicht und hatte ich eigentlich auch vorgesehen. Aber aus optischen Gründen sind wir wie im Rest der Küche auf 1,2m gegangen und sind wirklich froh darüber, ist einfach mehr Platz wenn sich mal 2 Personen dort begegnen was wirklich häufig vorkommt. Unsere Insel ist mit 2,20m trotzdem groß genug. Auch würde ich das Kochfeld mehr in Richtung Aussenwand verschieben damit am Kopfende der Insel eine schöne grosse Arbeitsfläche entsteht, die schätzen wir bei uns sehr und möchten die nicht mehr missen.

In der hinteren Zeile bitte möglichst große 80/90/100er versuchen unterzubringen!
Wir haben da folgende US: 100/40-MUPL/90-Spüle/100 und diese alle übertief 70 statt 60cm, kostet nur wenig Aufpreis und wahnsinn was man da an Stau- und Arbeitsfläche rausholt. Dann geht natürlich auch der GS-Höcker dort nicht mehr...

Auch auf der Kochinselinnenseite haben wir links und rechts vom Kochfeld auch 70 tiefe US, dann kann man unter dem Kochfeld beim Bora oder anderen Muldenlüftern einen 60er US nehmen und hat auf der Rückseite dann 10cm für die Luftkanalführung.
Auf der Inselaussenseite haben wir dann 45cm tiefe Regalschränke genommen, damit ist die Insel fast 1,2m breit.

In den Aufbaubildern in meinem Thread sieht man ganz gut die Schrankaufteilung und welchen Platz man darin hat.

Bodenbelagswechsel...würde ich mir gut überlegen, die Diskussion stand bei uns auch an aber wir sind froh den Belag im ganzen offen Küchen/Ess/Wohnbereich einheitlich gemacht zu haben. Was plant ihr für den Rest, wir haben uns für Vinyl entschieden und das ist super, gerade in der Küche. Pflegeleicht, warm und unempfindlich, sieht aus wie am ersten Tag...
 
Zuletzt bearbeitet:
@Evelin Super was Du hier für Arbeit reinsteckst und Vorschläge machst. Wir haben nun verstanden das Spüle, MUPL und GS eine "Einheit" bilden sollten. Es gab noch keine Rückmeldung der Architektin, favorisieren jedoch deine Planung mit der 4,15m Küchenbreite.

Der GS soll nun wieder in einen HS. Haben mal in die Schrankübersicht von nobilia geschaut. Der Schrank mit dem passenden Nischenmaß für einen XXL-GS hat unten 2 Auszüge a 285mm. Mit einem Sockel von 12mm wäre die Besteckschublade auf etwa 140cm Höhe, oder?

Das mag für mich passen aber meine Frau würde verständlicherweise meckern. Man plant doch keine Elemente ergonomisch zueinander um dann die Besteckschublade auf "Schulterhöhe" zu haben.

Wie es bei anderen Küchenherstellern aussieht, die preislich passen und einen 80er Korpus anbieten, müssen wir noch prüfen.

Bisher haben wir eine KS/TK Kombi mit 3 TK Schubladen unten und einem KS Teil mit 122cm Höhe oben und kamen zu zweit gut zurecht. Ein TK Fach sollte der neue auf jeden Fall haben. Man möchte ja nicht für jedes Kräuterlein in den Keller huschen. Werden alternativ aber mal im 213cm Nischenmaß schauen.

Das mit dem 120er OS ist notiert und wird geändert, danke.

Laut Bora HP, muss für's PUXU am US nichts gekürzt oder modifiziert werden. Die Umlufteinheit ist unterhalb vom Kochfeld womit man ca. 20cm verliert. Die Schublade darunter hat die volle Auszugstiefe. Damit können wir leben.

Wir haben in unserer aktuellen Wohnung in fast allen Räumen bis auf SZ+KZ Fliesen und sind vollstens zufrieden. Am Sa. ist Bemusterung beim Fliesenleger für Bäder, Küche und Flure. Wenn die Fliesen feststehen, werden wir uns überlegen, wie der Rest gehandhabt wird.

@ralfs1969 Da Ihr einen KS in Höhe von 178cm ohne TK Fach habt, wie macht ihr das mit der TK Ware? Bei dem Foto mussten wir ein wenig schmunzeln. Die extragroß geplante Arbeitsfläche steht ja ganz schön voll. Wird das bei jedem Kochvorgang weg geräumt ?
Ansonsten aber eine echt schicke Küche mit einem stimmigen Gesamtkonzept.
 
Kochsachen stehen bei Ralf ja kaum rum, nur Deko ohne Ende. Die Deutschen lieben ihre Pflanzen in der Küche ohne Zweifel, sogar meine Tochter in London hat min 2 Töpfe in der Küche, auch unter anderem auf einem Regal.

Also der GSP wäre dann nur 285mm höher, alles andere wäre zu hoch. Bei 78-80er Korpus und Grifflos wäre die Erhöhung dann 39-40cm, damit es mit dem Raster passt.

Meine Tochter hat auch einen 178er Kühlschrank und separat einen kleineren TK in der Küche. Einbau KS + TK sind halt mini, wäre auch uns zu zweit zu wenig Stauraum. Hinten im Bild Kochfeld, in der Insel GSP/Spüle/MUPL. Übrigens der GSP ist unten, der Mann des Hauses ist 192cm groß.

merce Küche.PNG
der HS links im Bild ist der KS (der 2. Griff hat keine Funktion, ist nur passend zu den anderen HS), danach folgen noch 2 x HS, im letzten ist dann der TK mir 3 Fächern. Allerdings gibt es dafür wenig Auswahl, einer von Liebherr , einer von Miele .
 
Danke @Evelin für die Umplanung auf 4m. Dabei wird es auch bleiben. Die Statik verlangt 17.5er statt 11.5er Wände.

Die Zeile planoben soll 70cm Tief werden mit angepassten US und tieferen Auszügen. Wäre es dann besser den Zeilenabstand zu vergößern (evtl. 130cm) ?

Meine Frau hätte gerne einen Auszug für Backbleche auf der Kopfseite der Kochinsel. (Es ist der 20cm breite Streifen zwischen den 90er US). Ich bin mir nicht sicher, ob das so überhaupt umsetzbar ist. Ausserdem wäre sie mit 140cm Tiefe bestimmt ziemlich wuchtig. Falls die Idee totaler Käse ist, würde ich die obere Seite der Insel anpassen (30er +60er anstatt 90er US).

Die Zeile mit den HS soll nicht nur oberhalb sondern auch rechts eingekoffert werden. Mit dem Trockenbau sind wir flexibler, als wenn die Wand gemauert wird.

Wird der 5cm Seitenabschluß rechts an der HS Zeile trotzdem benötigt?
Passt das überhaupt mit der Belüftung der E-Geräte?

Lüftungsgitter in der Sockelleiste sehen nicht so dolle aus. Darauf wollen wir möglichst verzichten.


PS: Den Belags- und Farbwechsel in der Küche deiner Tochter findet meine Frau todschick :2daumenhoch:
 

Anhänge

  • Küche Neu 4m breit.JPG
    Küche Neu 4m breit.JPG
    82,3 KB · Aufrufe: 366
  • Screenshot Küche Neu 4m breit.JPG
    Screenshot Küche Neu 4m breit.JPG
    122 KB · Aufrufe: 367
  • Planung Neu 4m breite Küche.KPL
    3,9 KB · Aufrufe: 317
  • Planung Neu 4m breite Küche.POS
    13,9 KB · Aufrufe: 313
Wieso wird die Insel 140cm tief? Hab noch nie eine Planung mit mehr Tiefe als 120cm gesehen, stelle mir das sehr massig vor.
Die Backblechschublade gefällt mir nicht, da an diese Inselseite ja eigentlich eine durchgehende Deckseite kommt und der Auszug wäre dann eine Unterbrechung.
 
Zuletzt bearbeitet:
ok, ich habe eine nackte Insel, 200 x 120cm. Bevor ich die gestellt habe, war ich in Panik wegen der Tiefe und habe mir die Fläche zurechtgeschnitten, um zu sehen, wie das aussieht.

Ich habe die Insel dann max lang gemacht, so dass an der Seite nur ein Durchgang von ca 85cm ist (Nebeneingang). heute, nach 6 Jahren finde ich 120cm immer noch monströs und würde mir, wenn ich den Stauraum nicht bräuchte, keine 120cm tiefe Insel stellen, es sei denn sie ist zB 370cm lang, weil es dann nicht mehr so klotzig aussieht.

Um es kurz zu machen, 140cm Tiefe wollte ich nie und nimmer. Du hast aber dann noch ein anderes Problem, nicht jede AP ist in der Tiefe erhältlich.

Wie ich weiter oben schon geschrieben habe, ist der Raum mit 4m zu tief, man hat Probleme mit dem Bodenbelag, falls er anders sein soll und es sieht auch etwas komisch aus, wenn die Küche in den 4 Metern verschwindet mit einer traditionellen Küchenform (L+Insel). Bei meiner Tochter ist die Küche 2.75cm tief plus die Wandstärke neben der Theke. In meinen Augen hat ihre Küche immer noch eine der besten Küchenform (Sanierung).

Ich habe für Backbleche, große Kuchengitter und Pizzasteine einen Auszug neben dem BO, der 4 Raster hoch ist, im Prinzip musste ich das wegen einem Kuchengitter so machen, weil das nur quer reinpasst.

Es gibt aber sowas, haben einige, im Bild von Schüller .

Backblechaufbewahrung.JPG
 
@ralfs1969 Da Ihr einen KS in Höhe von 178cm ohne TK Fach habt, wie macht ihr das mit der TK Ware? Bei dem Foto mussten wir ein wenig schmunzeln. Die extragroß geplante Arbeitsfläche steht ja ganz schön voll. Wird das bei jedem Kochvorgang weg geräumt ?
Ansonsten aber eine echt schicke Küche mit einem stimmigen Gesamtkonzept.

Das ist die Küche meiner Mutter, sie liebt halt Deko und das ist Geschmackssache. Man muss aber auch das Alter mit Mitte 70 berücksichtigen, das ist eine andere Generation und für ihr Alter ist die Küche trotzdem sehr modern und sie kommt auch mit der ganzen Touchbedienung super zurecht. da hatten wir die meisten bedenken...selbst die Miele 68xx BO+DGC bedient sie alleine ;-)
KS ohne TK-Fach...Da sie einen grossen Gemüsegarten hat würde ihr das Gefrierfach eh nicht reichen und deshalb steht eine Etage tiefer im Keller im Vorratskeller eh noch ein Gefrierschrank.

Nun zu deiner aktuellen Planung. Wie schon mehrfach erwähnt ist eine Inselbreite von 1,40m zu gross, wir haben auf der Inselaußenseite 46er Regalschränke und 70er US auf der Innenseite das ergibt dann 1,16m und das reicht völlig aus. Wie auch schon hingewiesen ist bei 1,20m Breite bei den meisten Arbeitsplatten eh schluss, somit schränkt es die Auswahl extrem ein wenn man über dieses Maß hinaus geht und es wird zudem unnötig teuer.

Der Abstand zwischen der hinteren Küchenzeile und der Kochinsel ist mit 1,25m finde ich auch zu gross, mehr als 1,2m sollte es nirgens sein, sonst werden die Wege zu lang. Optimal sind irgendwas zwischen 1,00-1,20m, bei uns sind es genau 1,14m und das hat sich in den 3 Jahren super bewährt, auch mit den übertiefen Auszügen auf beiden Seiten.

Bei der hinteren Arbeitszeile würde ich die Planlinks 2x60er US durch einen 100er US ersetzten, den 40-Mupl und den 90-Spülenunterschrank nach links verschieben und rechts statt des 80er US einen 100er US einplanen, genauso wie bei uns. Immer möglichst grosse US, aber nicht über 100er, 120er sind zu gross. Das spart Geld, jeder US kostet wieder mehr und man verschenkt durch mehr US-Seitenwände und Auszugsmechanik unnötig Stauraum.

Beim Durchgang HS-Wand zur Kochinsel würde ich euch empfehlen von 1m auf 1,1-1,2m zu gehen, dafür einfach die Kochinsel von 2,30 auf 2,20m verringern, das reicht trotzdem. Wir haben auch lange zu ca. 1m tendiert was im Prinzip ausreicht, uns aber wegen der Optik dann für 1,20m entschieden (real dann 1,15m > wegen den 2x25mm Wangen der Insel ist diese real dann 2,35m lang). Wir sind mit dieser Entscheidung heil froh da sich dort doch öfters zwei Personen begegnen und es eine Hauptverkehrsfläche in der Küche ist, gerade wenn jemand schnell an den KS will.

Diesen 20cm Schrank an der Kochinselseite unbedingt weglassen, das sieht optisch wirklich nicht gut aus und wird auch technisch so wahrscheinlich garnicht realisierbar sein, am Inselkopfende muss ja eine durchgängige Wange sein. Ihr werdet genug Schubladen haben wo man Backbleche unterbringen kann. Bei meiner Mutter haben die beiden Hochschränke wo die Heissgeräte BO+DGC drin sind jeweils im unteren Teil 3 Innenschubladen (auf dem Aufbaubildern in meinem Thread zu sehen), da befinden sich in einer Schublade die Backbleche.

Wichtig, wenn das Plan-/Rohbaumass 4,00m sind müsst ihr da noch ca. 2-3cm (1-1,5cm pro Seite) Putz abziehen, bei der Planung muss das berücksichtigt werden. Bei uns war das Rohbaumass 4,02m und das Fertigmass genau 4,00m.

Bzgl. Preisbudget 18.000, da sehe ich eher Probleme damit hinzukommen, alleine die grosse Anzahl Möbel stellt schon einen enormen Umfang dar...wir hatten ursprünglich auch so mit 15t geplant mussten aber schnell feststellen dass das bei so einer grossen Küche nicht reicht. Wir haben eine Schüller 78er Korpus mit 6er-Raster und eine günstige Front PGR1 mit Stangengriffen, sowie einfacher 25mm Nolte Schichtstoff -APL und lagen inkl. Blanco Spüle, Blanco Amatur, Miele GSP-XXL, Miele KS, Oranier KF+Muldenlüfter aber ohne Miele BO+DGC (die hatten wir schon) bei über 20t. Und das war ein Freundschaftsspezialpreis da ich den Chef sehr gut kenne und mit dem auch geschäftlich zusammenarbeite, normal wären eher in Richtung 25t gewesen.
 
Zuletzt bearbeitet:

Ähnliche Beiträge

Neff Hausgeräte Ballerina Küchen Blum Bewegungstechnologie Weibel - Intelligente Küchenlüftung

Neff Spezial

Blum Zonenplaner

Weibel Abluft-Tuning

Weibel Abluft-Tuning
Zurück
Oben