Nordhaus
Mitglied
- Beiträge
- 3
Küchenplanung im Neubau - Koch-, Essbereich nicht rechtwinklig
Liebe Küchenexperten,
wir sind gerade in der finalen Planung unserer Doppelhaushälfte und stehen kurz vor Einreichung des Bauantrags. Bezüglich der Küchenplanung sind wir noch sehr unsicher. Ich hänge einmal unseren Grundriss der ersten Etage an. Wir sind aktuell zu dritt (mein Mann, meine Tochter (1,5 J.) und ich) und unser zweites Kind kommt im Mai.
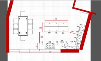
Das Haus wird am Hang gebaut, sodass der Eingangsbereich und die Garage im "Keller" des Hauses sind und man eine Treppe hochgeht zur ersten Etage mit Wohnzimmer, Esszimmer und Küche (siehe Grundriss). Der Garten wird dann im Nordosten des Hauses liegen, der Zugang ist über das Wohnzimmer (und das Gästezimmer) geplant. Der Bereich, in dem Esszimmer und Küche geplant sind, liegt über der Garage und dem Garagenhof mit Zugang zum Südwestbalkon.
Wir haben schon verschiedene Ideen durchdacht, wie man die Küche in den südlichen Bereich des Wohn-/Essbereichs einplanen kann und sind mit keiner Lösung so richtig zufrieden. Der nicht ganz rechtwinklige Schnitt des Raums macht es uns nicht so leicht. Besonders wichtig ist uns, dass wir viel Platz für Gäste haben und sich auch mehrere Personen in der Küche gut bewegen können. Unser großer Tisch für 8 Personen ist in Nicht-Corona-Zeiten mehrmals in der Woche voll belegt.
Zum aktuellen Zeitpunkt geht es uns um eine allgemeine Anordnung/Platzierung der Küche im Raum. Welche Form bietet sich an? Ist eine Kücheninsel möglich/sinnvoll? Sollte die Küche nach rechts oder links?
Sowohl bei allen Anschlüssen als auch bei den Fenstern sind wir noch sehr offen. Da jedoch das Wohnzimmer nach Norden ausgerichtet ist, sollte im Essbereich viel Licht hereinkommen, um auch für Licht im Wohnzimmer zu sorgen. Außerdem muss irgendwo ein Zugang zum Balkon bestehen bleiben.
Angehängt ist einmal der "leere", bemaßte Grundriss und zwei Skizzen mit unseren Ideen (Küche links bzw. rechts). Bitte ignoriert die gedruckten Maße. Die sind nicht mehr aktuell.
Ich freue mich sehr auf Eure Kommentare und Anregungen. Falls ich etwas vergessen habe, liefere ich das natürlich sehr gerne nach.
Viele Grüße
Lisa und das Nordhaus
Checkliste zur Küchenplanung
Personenkriterien und Ergonomie
Anzahl Personen im Haushalt: 4
Davon Kinder: 2
Körpergrößen aller Hauptbenutzer in cm (wegen Arbeitshöhe ): 186,187
Welche Arbeitshöhe ist angedacht (in cm)?: ca. 95cm
Gebäudekriterien
Art des Gebäudes: Neu-/Umbau > Planänderungen möglich
Brüstungshöhe des Fensters (in cm): nicht festgelegt
Fensterhöhe (in cm): nicht festgelegt
Raumhöhe in cm: 260
Heizung: Fußbodenheizung
Sanitäranschlüsse: vollkommen variabel
Einbaugerätekriterien
Ausführung Kühlgerät: Integriert im Hochschrank (60cm)
Einbaukühlgerät Größe: Noch unbekannt
Ausführung Tiefkühl (TK)-Gerät: Im Kühlschrank ab 3 Schubladen unten
Dunstabzugshaube: Abluft
Hochgebauter Backofen : ja
Geplante Heißgeräte: Standmikrowelle, Backofen
Hochgebauter Geschirrspüler : wenn möglich
Art des Kochfeldes: Induktion
Kochfeldbreite (ca. in cm): 80
Sitzmöglichkeiten
Sitzmöglichkeit in der Küche / im Küchenbereich: Separater Tisch
Sitzmöglichkeit: Für wieviel Personen?: Für 8 Personen
Sitzmöglichkeit: Tisch - wenn gesonderter Tisch oder offene Küche: Vorhandener Tisch
Gewünschte oder vorhandene Tischgröße: 1m x 2,1m
Wofür soll der Sitzplatz in der Küche genutzt werden und wie häufig: Sehr häufige Nutzung (tägliche Mahlzeiten), sehr viel Besuch mit Aufenthalt am Tisch (Spieleabende, etc.)
Stauraumplanung
Was steht auf der Arbeitsplatte oder soll dort stehen?: Kaffeemaschine, Kaffeevollautomat, Wasserkocher, Messerblock, Küchenmaschine, Toaster, Brotbehälter, Obstschale
Welche weiteren Küchenmaschinen müssen in der Küche untergebracht werden: Handrührgerät, Mixer, Pürierstab
Was soll in der Küche außer den Standards untergebracht werden: Geschirr komplett (nichts in Ess-/Wohnzimmer)
Welchen Stauraum gibt es sonst noch: Hauswirtschaftsraum, Keller
Kochgewohnheiten
Was/wie wird gekocht? (Alltagsküche, Menüs, Snacks usw): Alltagsküche, Snacks, normalerweise keine Menüs
Wie häufig wird gekocht: (fast) täglich 1x warm
Wird alleine gekocht? Oder auch gemeinsam? Mit und für Gäste?: Sowohl alleine, als auch gemeinsam und mit und für Gäste (auch schnell mal 6-8 Personen)
Spülen und Müll
Spülenform: Noch nicht festgelegt
Welche Mülltrennung soll in der Küche vorgehalten werden: Bio/Restmüll ungetrennt, Gelber Sack Müll
Sonstiges
Steht schon ein Küchenhersteller fest oder wird bevorzugt: Aktuelle Küche von Alma-Küchen, Umzug der Küche evtl. möglich, falls preislich interessant.
Steht schon ein Gerätehersteller fest oder wird bevorzugt: nein
Küchenstil: Klassisch
Was stört an der bisherigen Küche und was soll die neue Küche unbedingt können? Warum?: Unsere aktuelle Küche in L-Form misst 3m x 4m, davon 2 Hochschränke (jeweils am Rand) für Kühlschrank und Backofen und ca. 1,5m Hängeschränke. Die Küche ist sehr gut gefüllt und die Arbeitsfläche reicht häufig nicht aus, sodass wir viel Essensvorbereitung am Esstisch machen. Allerdings haben wir in der aktuellen Wohnung auch keinen HWR bzw. Speisekammer.
Preisvorstellung (Budget): Nicht festgelegt
Angehängte Dateien
Liebe Küchenexperten,
wir sind gerade in der finalen Planung unserer Doppelhaushälfte und stehen kurz vor Einreichung des Bauantrags. Bezüglich der Küchenplanung sind wir noch sehr unsicher. Ich hänge einmal unseren Grundriss der ersten Etage an. Wir sind aktuell zu dritt (mein Mann, meine Tochter (1,5 J.) und ich) und unser zweites Kind kommt im Mai.
Das Haus wird am Hang gebaut, sodass der Eingangsbereich und die Garage im "Keller" des Hauses sind und man eine Treppe hochgeht zur ersten Etage mit Wohnzimmer, Esszimmer und Küche (siehe Grundriss). Der Garten wird dann im Nordosten des Hauses liegen, der Zugang ist über das Wohnzimmer (und das Gästezimmer) geplant. Der Bereich, in dem Esszimmer und Küche geplant sind, liegt über der Garage und dem Garagenhof mit Zugang zum Südwestbalkon.
Wir haben schon verschiedene Ideen durchdacht, wie man die Küche in den südlichen Bereich des Wohn-/Essbereichs einplanen kann und sind mit keiner Lösung so richtig zufrieden. Der nicht ganz rechtwinklige Schnitt des Raums macht es uns nicht so leicht. Besonders wichtig ist uns, dass wir viel Platz für Gäste haben und sich auch mehrere Personen in der Küche gut bewegen können. Unser großer Tisch für 8 Personen ist in Nicht-Corona-Zeiten mehrmals in der Woche voll belegt.
Zum aktuellen Zeitpunkt geht es uns um eine allgemeine Anordnung/Platzierung der Küche im Raum. Welche Form bietet sich an? Ist eine Kücheninsel möglich/sinnvoll? Sollte die Küche nach rechts oder links?
Sowohl bei allen Anschlüssen als auch bei den Fenstern sind wir noch sehr offen. Da jedoch das Wohnzimmer nach Norden ausgerichtet ist, sollte im Essbereich viel Licht hereinkommen, um auch für Licht im Wohnzimmer zu sorgen. Außerdem muss irgendwo ein Zugang zum Balkon bestehen bleiben.
Angehängt ist einmal der "leere", bemaßte Grundriss und zwei Skizzen mit unseren Ideen (Küche links bzw. rechts). Bitte ignoriert die gedruckten Maße. Die sind nicht mehr aktuell.
Ich freue mich sehr auf Eure Kommentare und Anregungen. Falls ich etwas vergessen habe, liefere ich das natürlich sehr gerne nach.
Viele Grüße
Lisa und das Nordhaus
Checkliste zur Küchenplanung
Personenkriterien und Ergonomie
Anzahl Personen im Haushalt: 4
Davon Kinder: 2
Körpergrößen aller Hauptbenutzer in cm (wegen Arbeitshöhe ): 186,187
Welche Arbeitshöhe ist angedacht (in cm)?: ca. 95cm
Gebäudekriterien
Art des Gebäudes: Neu-/Umbau > Planänderungen möglich
Brüstungshöhe des Fensters (in cm): nicht festgelegt
Fensterhöhe (in cm): nicht festgelegt
Raumhöhe in cm: 260
Heizung: Fußbodenheizung
Sanitäranschlüsse: vollkommen variabel
Einbaugerätekriterien
Ausführung Kühlgerät: Integriert im Hochschrank (60cm)
Einbaukühlgerät Größe: Noch unbekannt
Ausführung Tiefkühl (TK)-Gerät: Im Kühlschrank ab 3 Schubladen unten
Dunstabzugshaube: Abluft
Hochgebauter Backofen : ja
Geplante Heißgeräte: Standmikrowelle, Backofen
Hochgebauter Geschirrspüler : wenn möglich
Art des Kochfeldes: Induktion
Kochfeldbreite (ca. in cm): 80
Sitzmöglichkeiten
Sitzmöglichkeit in der Küche / im Küchenbereich: Separater Tisch
Sitzmöglichkeit: Für wieviel Personen?: Für 8 Personen
Sitzmöglichkeit: Tisch - wenn gesonderter Tisch oder offene Küche: Vorhandener Tisch
Gewünschte oder vorhandene Tischgröße: 1m x 2,1m
Wofür soll der Sitzplatz in der Küche genutzt werden und wie häufig: Sehr häufige Nutzung (tägliche Mahlzeiten), sehr viel Besuch mit Aufenthalt am Tisch (Spieleabende, etc.)
Stauraumplanung
Was steht auf der Arbeitsplatte oder soll dort stehen?: Kaffeemaschine, Kaffeevollautomat, Wasserkocher, Messerblock, Küchenmaschine, Toaster, Brotbehälter, Obstschale
Welche weiteren Küchenmaschinen müssen in der Küche untergebracht werden: Handrührgerät, Mixer, Pürierstab
Was soll in der Küche außer den Standards untergebracht werden: Geschirr komplett (nichts in Ess-/Wohnzimmer)
Welchen Stauraum gibt es sonst noch: Hauswirtschaftsraum, Keller
Kochgewohnheiten
Was/wie wird gekocht? (Alltagsküche, Menüs, Snacks usw): Alltagsküche, Snacks, normalerweise keine Menüs
Wie häufig wird gekocht: (fast) täglich 1x warm
Wird alleine gekocht? Oder auch gemeinsam? Mit und für Gäste?: Sowohl alleine, als auch gemeinsam und mit und für Gäste (auch schnell mal 6-8 Personen)
Spülen und Müll
Spülenform: Noch nicht festgelegt
Welche Mülltrennung soll in der Küche vorgehalten werden: Bio/Restmüll ungetrennt, Gelber Sack Müll
Sonstiges
Steht schon ein Küchenhersteller fest oder wird bevorzugt: Aktuelle Küche von Alma-Küchen, Umzug der Küche evtl. möglich, falls preislich interessant.
Steht schon ein Gerätehersteller fest oder wird bevorzugt: nein
Küchenstil: Klassisch
Was stört an der bisherigen Küche und was soll die neue Küche unbedingt können? Warum?: Unsere aktuelle Küche in L-Form misst 3m x 4m, davon 2 Hochschränke (jeweils am Rand) für Kühlschrank und Backofen und ca. 1,5m Hängeschränke. Die Küche ist sehr gut gefüllt und die Arbeitsfläche reicht häufig nicht aus, sodass wir viel Essensvorbereitung am Esstisch machen. Allerdings haben wir in der aktuellen Wohnung auch keinen HWR bzw. Speisekammer.
Preisvorstellung (Budget): Nicht festgelegt
Angehängte Dateien
Anhänge



