Küchenplanung für Neubau

einhubo

Mitglied
Beiträge
70
Hallo in die Runde,
bin ganz neu hier und versuche mich in dem Forum zu recht zu finden, also bitte nachsichtig sein ;-)
Wir bauen selbst und zur Zeit wird die Bodenplatte gegossen, also haben wir im Prinzip noch Zeit für die Küchenplanung , nur habe ich beim Querlesen einiges festgestellt, das ich noch nicht bedacht habe und es eventuell noch ändern kann (zb Brüstungshöe nur 90cm geplant).
Ich versuche heute noch alle Grundrisse reinzustllen. Mit dem Küchenplaner habe ich die Küche bereits geplant, aber weiss nicht, wie ich das in jpg speichern kann?! Vielleicht hat jmd einen Tipp?
LG Einhubo

Checkliste zur Küchenplanung

Anzahl Personen im Haushalt: 4
Davon Kinder?: 2
Art des Gebäudes?: Neu-/Umbau, Planänderungen möglich
Körpergrössen aller Hauptbenutzer (wegen Arbeitshöhe ) in cm: 163 und 173
Brüstungshöhe des Fensters (in cm): 90
Fensterhöhe (in cm): 120
Raumhöhe in cm: 250
Heizung: Fussbodenheizung
Sanitäranschlüsse: vollkommen variabel
Ausführung Kühlgerät: Stand-Alone bis 75 cm Breite
Kühlgerät Größe: bis 178 cm Höhe
Ausführung Tiefkühl (TK)-Gerät: Im Kühlschrank ab 3 Schubladen unten
Dunstabzugshaube: Abluft
Backofen etc. hochgebaut?: Wenn möglich
Hochgebauter Geschirrspüler ?: Nein
Kochfeldart: Induktion
Kochfeldbreite ca. (in cm)?:
Spülenform: 1 Becken mit Abtropffläche
Geplante Heißgeräte: Backofen
Küchenstil: Modern
Sitzmöglichkeit in der Küche / im Küchenbereich: Überstehende Arbeitsplatte
Sitzmöglichkeit: Für wieviel Personen?: für 2 Personen
Sitzmöglichkeit: Tisch - wenn gesonderter Tisch oder offene Küche:
Gewünschte o. vorhandene Tischgröße:
Wofür soll der Sitzplatz in der Küche genutzt werden? Wie häufig?: Frühstück für die kids
Welche Arbeitshöhe ist angedacht (in cm)?: 90
Was steht auf der Arbeitsplatte oder soll dort stehen?: Kaffeemaschine, Wasserkocher, Obstschale
Welche weiteren Küchenmaschinen müssen in der Küche untergebracht werden?: Toaster, Mixer
Was soll in der Küche außer den Standards untergebracht werden?: ALLE Vorräte, Geschirr komplett (nichts in Ess-/Wohnzimmer)
Welchen Stauraum gibt es sonst noch?: Hauswirtschaftsraum
Was/wie wird gekocht? (Alltagsküche, Menüs, Snacks usw): alltagsküche
Wie häufig wird gekocht?: (fast) täglich 1x warm
Wird alleine gekocht? Oder auch gemeinsam? Mit und für Gäste?: 1-2 personen
Was stört an der bisherigen Küche und was soll die neue Küche unbedingt können? Warum?:
Welche Mülltrennung soll in der Küche vorgehalten werden?:
Steht schon ein Küchenhersteller fest oder wird bevorzugt?:
Steht schon ein Gerätehersteller fest oder wird bevorzugt?: Neff Backofen , Geschirrspüler (teilintegriert) vorhanden, Kühlschrank 2030*70*60 in weiss freistehend vorhanden
Preisvorstellung (Budget): bis 10.000,-
 
Hallo nochmal,
habe jetzt endlich alle Bilder hochladen können. Würde mich sehr über neue Ideen und Vorschläge freuen. Was denkt ihr, macht es Sinn den GS unter den Backofen zu setzen? Wollen uns ungern einen vollintergrierbaren kaufen, da der GS noch recht neu ist.
Liebe Grüße
Einhubo
 

Anhänge

  • Küche.jpg
    Küche.jpg
    132,1 KB · Aufrufe: 330
  • Küche2.jpg
    Küche2.jpg
    127,4 KB · Aufrufe: 338
  • Grundriss.jpg
    Grundriss.jpg
    89,5 KB · Aufrufe: 612
Nochmal ein liebes Hallo in die Runde!

Warte ganz sehnsüchtig auf Ideen und Vorschläge wie man meine Küchenplanung optimieren kann :-) hat keiner eine Idee oder mag mir helfen?

Hier noch ein paar Infos zu unserem Projekt:
Die Anschlüsse sind alle noch veränderbar
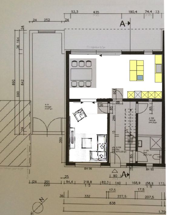
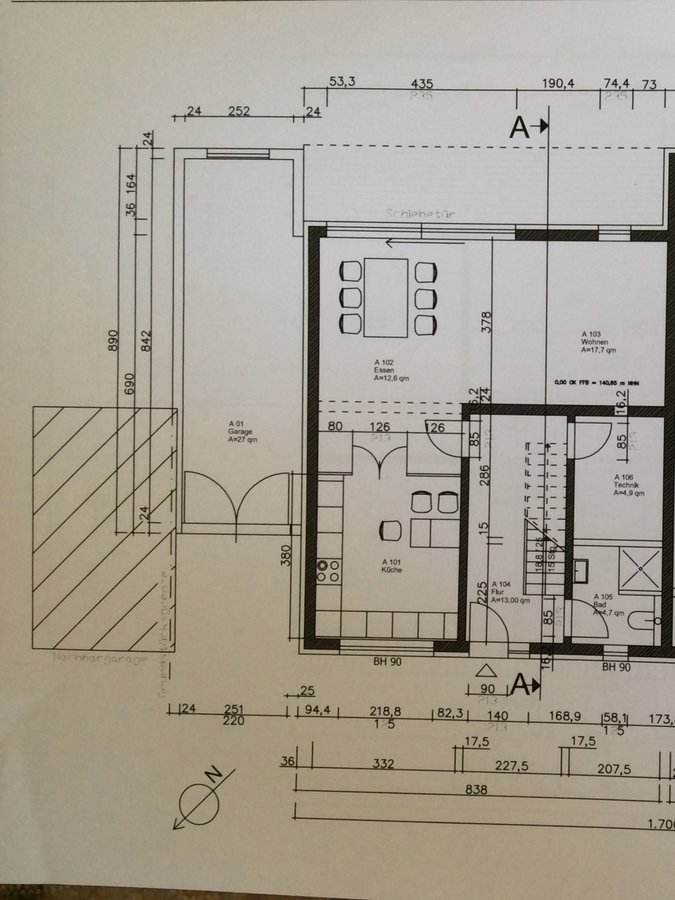
Der Durchgang zum Esszimmer soll eine Schiebetür werden.
Das Fenster ist im Grundriss größer als in meiner Planung, aber da wir selbst bauen und die Fenster noch nicht final bestellt sind, sind wir da auch noch etwas flexibel was die Breite angeht. Es soll auf jeden Fall ein großer festverrglaster Teil und ein schmalerer zum Öffnen auf dem Plan Links werden.
Das Kochfeld ist an der linken Wand geplant, Abluft.
Der KS ist bereits vorhanden, in weiß und in 2m Höhe und das ist wahrscheinlich die größte Herausforderung ihn farblich zu integrieren. Dafür hatten wir entweder uns ein weiß im gleichen/ähnlichen Ton für die Fronten überlegt oder einen Kontrast zu wählen. Schön finde ich da helle Grautöne....

Ich bin für jeden neuen Vorschlag dankbar und würde mich sehr freuen wenn sich jmd die Planung anschauen würde, ob man Schränke vielleicht besser stellen kann und wo welche Leitungen am Ende gebraucht werden, damit wir gleich alles richtig legen können beim Hausbau.

Also vielen vielen Dank im Voraus!!!!!
 
Die Ecke soll eine tote Ecke darstellen, wusste nicht wie ich das im Programm besser darstellen kann
 
Hallo @einhubo und ein herzliches :welcome: im Küchenforum!

Könntest Du bitte einen Screenshot der 2D-Grundrissansicht des Alno -Plans machen und hier posten? So kann man sofort Abstände usw. erkennen.

Ich würde die Höngeschränke links und rechts der DAH einfach weglassen, das ist ziemlich unbequemes Stauraum und sieht auch nicht soooo super aus. Den Backofenschrank hoch und neben dem Kühlschrank und den Kühlschrank könnte man "einrahmen" damit es etwas integriert aussieht. Das würde den Raum auf jeden Fall ruhiger machen. Aber vielleicht kommen ganz anderen Ideen im Threadverlauf.

Den Kühlschrank könnte man auch relativ günstig folieren lassen, es gab vor nicht allzu langer Zeit eine Userin, die ihr Kühlschrank fliederfarben umgestaltet hat - über die Farbe kann man geteilter Meinung sein, aber die Idee hat was. Wenn Interesse besteht, kann ich versuchen, den Thread wieder zu finden.
 
Hallo Isabella,
Vielen lieben Dank für deine schnelle Antwort zu so später Stunde. Das mit den Hängeschränken stimmt, ich dachte nur es wäre praktisch um mehr Stauraum zu gewinnen. Da ich ja doch recht klein bin, habe ich gar nix dagegen auf Hängeschränke zu verzichten.
Das mit dem Kühlschrank einrahmen wäre eine Idee, aber ich könnte mir vorstellen, dass es nur bei einem KS in Edelstahl schön aussieht. Habe unseren neuen KS mal verlinkt. Leider hat mich mein Mann zu dem weißen überredet.

Produkte - Kühlen & Gefrieren - Kühl-Gefrier-Kombinationen - Freistehende Kühlgeräte (mit Gefrierfach unten) - KGE49AW41 - Robert Bosch Hausgeräte GmbH

Den Grundriss stelle ich gleich noch rein.

Deine Küche ist übrigens wunderschön!!! Bis ins kleinste mit viel Liebe geplant gefällt mir richtig gut.

Liebe Grüße
Einhubo
 
Ich habe auch einen weißen Kühlschrank "eingebaut" und finde, dass es nicht schlecht aussieht. Ich habe aber weiße Möbel und kein creme- oder magnoliefarben. Das würde dann nicht gut aussehen.
 
Hallo Anett,
Das stimmt, dein Kühlschrank schaut erstaunlich gut aus eingebaut! Danke! Darf ich fragen wie hoch dein KS ist?
 
Habe nun nochmal umgestellt und versucht den GSP ganz links und hochgestellt (zu hoch, ich weiß aber nicht wie ich das mit dem Programm besser machen kann)

Jetzt weiß ich aber nicht, ob das vielleicht wegen der Blende blöd aussieht!?

Den KS habe ich versucht einzubauen wie bei Anett. Da Gefällt es mir sehr gut, dass er nicht an erster Stelle steht sondern wirklich eingebaut/umbaut wurde.

Für den MUPL habe ich nun auch Platz gefunden.

Was mich jetzt allerdings stört, ist, dass ich kaum Möglichkeiten mehr habe etwas an Vorräten zu verstauen und die vielen schmaleren Schieber sind auch unpraktisch.

Hat jemand noch eine Idee?
Die neue DAH von Neff gefällt mir übrigens sehr, da haben wir mit unseren Betondecken und Wänden gleich eine gute Lösung für schönes Licht.

Allen einen schönen Tag
image.jpg
 
grundriss-jpg.241168


Irgendwie finde ich die Grundrissaufteilung noch nicht so ganz gelungen.
Der Bereich, wo man Essen/Wohnen/Kochen betritt, ist irgendwie im Grunde nichts anderes als zusätzlicher Flur. Die Tür dort sollte in jedem Fall andersherum anschlagen.

Schiebetür zur Küche .. wo soll die laufen? Wirklich 126 cm breit?

Wie breit ist denn das Fenster?

Terrassentür ... welches ist denn der öffnende Teil der Schiebetür? Planrechts? Das 74,4 cm breite Fenster soll bodentief aber festverglast werden?

---------------------
Für mich wäre das ja wieder ein Fall für Raumtausch ;-)
Einhubo_20170421_V1.jpg
 
Guten Morgen liebe Kerstin,
Danke für deine Antwort zu so später Stunde!
Da hast du viele Punkte angesprochen.
Die Tür ins Wohnzimmer wird natürlich den Anshlag links bekommen.
Die Schiebetür zur Küche liegt in einer Trockenbauwand und kann dadurch von uns so breit gestaltet werden, wie wir wollen.
Das Fenster ist bodentief, 74cm und zum öffnen. Die Schiebetür geht so auf wie eingezeichnet, also planrechts.
Der Bereich den du "extra Flur" genannt hast soll tatsächlich genutzt werden. Dort sollen an den Wänden zur Küche Bücherregale stehen und an der Wand zur Garage ein großes Klavier und außerdem soll später dort noch eine Tür zur Garage eingebaut werden.
Wir haben uns ganz bewusst gegen ein offenes Konzept bei der küchenplanung entschieden und wollen es mit der Schiebetür halboffenen gestalten. Außerdem wäre mir in deinem Plan der Abstand Fernseher und Sofa zu klein. Die hauptwasserleitung liegt schon in der planunteren wand wo die Küche sein soll und kann nicht mehr durch ganzes Haus verlegt werden, außerdem sind die Leitungen für den Fernseher zwischen der Schiebetür und dem 74er Fenster ebenso verlegt.

Ich weiß, dass die Küche einen eher stiefmütterlichen Platz bekommen hat, aber ich hoffe dass sie trotzdem wunderschön werden kann.
Was sagst du denn zu meiner Planung?
Liebe Grüße und ein schönes Wochenende
 
Na ja, mir fehlt halt bei der Küche total der Terrassenbezug ... ich sehe Wohnen immer als den beruhigten Bereich. Ich sehe da auch meine Teenager-Nichte, die gerne mit ein paar Freundinnen kocht und dann zusammen isst ... ja, da haben Eltern dann wenigstens noch den Wohnbereich schön getrennt ;-).

Im Essbereich dann einen Garagenzugang zu machen, was soll das bitte bringen?

Dann zu diesem Plan ... wie ist denn die Fensterwand nun definiert? (Bitte Grundrisse immer in einheitlicher Ausrichtung einstellen, Basis ist dabe immer der Gesamtgrundriss, sonst spricht man mal von links und meint rechts und umgekehrt). Fensterwand .. Wand ?cm - Fenster ? cm- Wand ? cm?
Einhubo_201704EigPlanGrundriss.jpg
 
Das Fenster ist in einer Brüstungshöhe von 90cm geplant und da es von der Aussenansicht das einzige Fenster auf der Seite ist, sind wir minimal flexibel bei der genauen Breite. Vom Architekten sind 2,18 Breite angesetzt. Wir bauen komplett selbst und der Einbau der Fenster ist für September geplant, dh die Fenster werden demnächst bestellt und bis dahin muss ich das genaue Maß wissen. Viel verändern geht allerdings nicht, weil wir sonst Probleme mit dem Bauamt bekommen. Also sollte das Fenster schon um die 2m breit werden. Dachte es wäre sinnvoll einen Abstand nach rechts von 70cm zu lassen, dann kann in die Ecke planrechts(?) noch ein höherer Schrank.

Hoffe das war verständlich?
 
Bei euer Größe würde ich v.a. versuchen, die BRH noch zu erhöhen auf 1 Meter, ginge das denn auch noch?
 
Ja würde auch gehen, aber ich dachte ich lasse die Arbeitsplatte ins Fenster laufen und dann würde ja 90cm ideal sein oder trotzdem zu niedrig? Hab mit Bügelbrett und Ellenbogen getestet und 90cm sind gut, haben aktuell 87cm
 
@Nörgli ...warum Brüstungshöhe höher?

Wenn du 90 cm Arbeitshöhe erreichen willst, dann sollte die Brüstungshöhe 86 bis 87 cm sein, das ist nämlich der Wert Oberkante FERTIG!!!-Boden bis Unterkante normalerweise Fensterbrett ... also Unterkante APL.
 

Ähnliche Beiträge

Neff Hausgeräte Ballerina Küchen Blum Bewegungstechnologie Weibel - Intelligente Küchenlüftung

Neff Spezial

Blum Zonenplaner

Weibel Abluft-Tuning

Weibel Abluft-Tuning
Zurück
Oben