Küchenplanung für Neubau

Hmm .. die DAH .. ich weiß nicht, die schwarze Platte beginnt nach ca. 20 cm von der Wand weg .. ob das seitlich so ein toller Blick ist? Und die Wirkung, ok.

Und eine Bitte, entweder richtig zitieren (das habe ich in deinem Beitrag jetzt nachgeholt) oder am besten, wenn die Fragen nicht etliche Seiten weg sind, einfach nur antworten, im Zweifel evtl. den User ansprechen, dem man antwortet .. so wie ich dich jetzt anspreche @einhubo ;-) Danke.

Und Grundrissansichten einer Planung macht man ganz einfach als Screenshot z. B. mit dem Sniping Tool und Erläuterungen zu einer Planung macht man ganz einfach so, wie ich es in Beitrag 22 gemacht habe .. oder hier jetzt gleich ;-)

----------------
Jetzt mit der
Neff - PRODUKTE - Dunstabzugshauben - Wandessen - D95FRW1S0

  • keine Hängeschränke
  • Abhängung über Kochfeldseite in kompletter Breite mit unterem Brett wie am Fenster um dort auch Licht zu integrieren. Verkleidung dieser Abhängung nach oben mit Trockenbauplatte, hinter der der Abluftkanal zur Fensterseite geführt wird.
einhubo_20170423_kb1b_12b_Ansicht1.jpg einhubo_20170423_kb1b_12b_Ansicht3.jpg

-----------------
Ob man die Hängeschränke braucht, ergibt eine explizite * Stauraumplanung *

-----------------

Ja, man wird das Geschirr nach dem Essen evtl. schnell mal auf die Insel abtragen. In aller Regel wird eine zweite Person es dann aber auch gleich in der GSP verstauen. Hat man Gäste und will das dann nicht weiter sehen oder gleich bearbeiten, gibt es ja immer noch die Schiebetüren, die man schließen kann ... dafür waren sie ja wohl gedacht, sonst kann man sich die Wandkonstruktion gleich sparen ;-).
 

Anhänge

  • einhubo_20170423_kb1b_12b.KPL
    4,1 KB · Aufrufe: 136
  • einhubo_20170423_kb1b_12b.POS
    18,7 KB · Aufrufe: 115
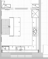
  • einhubo_20170423_kb1b_12b_Grundriss.jpg
    einhubo_20170423_kb1b_12b_Grundriss.jpg
    20,3 KB · Aufrufe: 415
  • einhubo_20170423_kb1b_12b_Ansicht2.jpg
    einhubo_20170423_kb1b_12b_Ansicht2.jpg
    25,4 KB · Aufrufe: 172
Hallo nochmal in die Runde!

Ich war heute in unserem Küchenstudio und habe die Planung dort besprochen. Müll unter einer Arbeitsplatte hat er noch nie gehört, aber er will das realisieren. Ansonsten ist mir mal wieder aufgefallen, wie toll doch so ein HS für Vorräte ist und wie gern ich so einen haben möchte.
Habe mich mal an eine neue Planung gemacht und mir gefällt die Küche jetzt wirklich richtig gut. Was denkt ihr? Hat jemand noch einen Verbesserungsvorschlag oder noch eine Idee?
Die US in der Insel sind in 70cm Tiefe geplant, der Arbeitsplattenüberstand dann nur noch 30cm.

Freue mich über Lob und Kritik ;-)
 

Anhänge

  • plana1.jpg
    plana1.jpg
    61,6 KB · Aufrufe: 156
  • planA2.jpg
    planA2.jpg
    84,9 KB · Aufrufe: 149
  • planA3.jpg
    planA3.jpg
    57,9 KB · Aufrufe: 147
  • PLANa.KPL
    3,4 KB · Aufrufe: 91
Warum ist der Plan jetzt spiegelverkehrt? Und der Grundriss gedreht? So ist es schwierig zu vergleichen.
 
Habe den Plan gedreht, jetzt stimmt die Ausrichtung wieder.

Spiegelverkehrt wollten wir nicht, weil wir wir das Abluftrohr nicht verlegen wollten, sondern einfach nur eine Öfnnung an entsprechender Stelle vornehmen wollten. Ich finde das persönlich schöner so und die Argumente wegen dem Laufbereich sind zwar richtig, aber ich möchte es dennoch nicht.

Ausserdem wird wahrscheinlich noch ein Rohr (10cm) Durchmesser planrechts unten ins OG verlegt und das sieht in der Ecke besser aus, wenn dort nicht die tote Ecke ist oder?
 

Anhänge

  • planA3.jpg
    planA3.jpg
    64,7 KB · Aufrufe: 389
Der KS würde dann von oben noch eingebaut, aber das habe ich mit dem Programm nicht geschafft.

Wollen unsere Küche bei Schmidt Küchen kaufen, hat da vielleicht jmd bereits Erfahrungen oder weiss wie die Qualität ist? Ein Vergleichsangebot gibt es von Häcker , aber das war preislich etwas höher und der KFB ist bei Schmidt ist viel sympatischer.

Liebe Grüße
Katharina
 
ja ich weiss, aber das hat er noch nie gehört. er fand es auch sehr praktisch und was für bequeme leute... aber ich bin da gern bequem, hab mit zwei kids und job genug um die ohren :cool:
 
Habe ich das richtig verstanden, planunten rechts ein Rohr von oben nach unten?
plana3-jpg.242392


Das wäre eigentlich prädestiniert für die tote Ecke, denn so klaut es dir ja rechts mind. 10 cm, wird es durch die tote Ecke geführt, dann klaut es keinen Schrankplatz.

Wie wird in deiner Variante die Beleuchtung über der Fensterzeile realisiert?

Und, hier sieht man auch kein DAH-Rohr:
einhubo_20170423_kb1b_12b_ansicht1-jpg.241428

Da wäre dann auch das zusätzliche Rohr nach oben gleich gut versteckbar, in dem die Ecke mit abgekoffert wird.
 
Du gibst nicht auf :-) ich bin jede freie Minute hier im Forum und jedes Mal, wenn jmd deine Ideen nicht umsetzt, denke ich "nein warum? Die Idee war doch so genial!" Aber nun geht's mir genauso und ich wollte mich doch so gern eines besseren belehren lassen

Rohr planunten rechts stimmt erstmal.

Was denkst du, ist ein HS für Vorräte auch machbar? Denn dann hätte ich weniger Arbeitsfläche und würde ungern mir die tote Ecke verbauen um eventuell irgendwann mal einen Kaffeevollautomaten dort zu platzieren?

War eigentlich ganz stolz auf meine letzte Planung (habe nur mittlerweile an der fensterseite den 90US und den MUPL getauscht)... Aber die Planung scheint nicht gut anzukommen
 
Beleuchtung ist noch ein großes Fragezeichen bei uns, also für das komplette Haus. Wollen ungern die Decken abhängen, weil wir auch so schon keine hohen Decken haben, aber in der Küche müssen wir das wohl so machen, eventuell sogar die komplette Decke abhängen.
 
Es ist ja nicht schlecht, wenn du meine Planung vom Grunde her spiegelst.

Ich hatte allerdings bewußt den Kühlschrank als Stand-Alone am Zeilenende geplant. Gefällt mir für Stand-Alone Geräte eben immer noch am besten. Hochschränke rechts und links, und einer davon noch mit Heißgeräten, finde ich irgendwie nicht so gelungen.

Und, wie gesagt, mir würde einfach der Blick, der sich aus Sofa-Position ergibt:
einhubo_20170422_kb1_12b_ansicht2-jpg.241354

besser gefallen.

Ob du nun einen Vorratsschrank brauchst, ergibt die explizite * Stauraumplanung * .. am besten immer für jede in Frage kommende Planung. Dabei überprüft man auch gleich Arbeitsabläufe, da man sich ja Gedanken macht, wo in der Planung was am praktischsten untergebracht ist. Deshalb machen wir ja meist schon rudimentäre Angaben in unseren Planungen, was wir in etwa wo gedacht haben, insbesondere für Sondersachen etc.

Auch finde ich immer noch, dass "mein Hauptarbeitsdreieck" etwas gelungener ist:
einhubo_20170422_kb1_12b_grundriss-jpg.241347


ggü.
plana3-jpg.242392


Auch am Kochfeld kann in meiner Lösung problemlos mal zu Zweit stehen. Es kann auch einer am Kochfeld stehen und der andere an der Hauptarbeitsfläche zwischen Kochfeld und Spüle .. das wird in deiner Lösung schon eng. Weg MUPL - Spüle - GSP recht weit auseinander gezogen in deiner Planung.

Wenn man an der Insel zum Arbeiten steht, ist in meiner Lösung ein gerader Weg zur Spüle nach planunten .. bei dir ist es mehr um die Ecke.

Und dann .. ich denke übertiefe Schränke für die Insel sind nicht so gut. Sie verengen den Hauptarbeitsgang.

Den KVA würde ich in meiner Planung übrigens zwischen Spüle und Backofenhochschrank setzen.
 
Danke dir für die ausführliche Antwort.

KVA als HS dort klappt leider wegen dem Fenster nicht. Noch eine andere Idee wohin der passen würde?

MUPL hatte ich bereits vor mit dem 90er US zu tauschen.

Mit übertiefen Schränken wäre der Durchgang zwischen Insel und Zeile genau 1m, ist das zu wenig?
 
Ich sehe grad, dass der Abstamd zwischen Insel und Zeile bei uns gleich ist, weil unser Küchenplaner bei Schmidt gesagt hat, dass ein Arbeitsplattenüberstand von 30cm für die Beine reicht. Wäre 60er Tiefe und 40cm Überstand besser?
 
Ich stehe ja auf umbauten StandAlone ;D
Ich finde deine Planung nicht schlecht, die würde gespiegelt ja auch funktionieren.

Mir wäre allerdings die Insel mit zwei US zu wuchtig für den Raum.

Würde nicht 1x100 US reichen mit Arbeitsplatte bis zur Wand mit zwei Stühlen gegenüber. Ergibt quasi eine Halbinsel mit 1,4x1,0 m.
 
Hallo russini,
Danke für dein Feedback. Ein 100 US würde reichen, aber ich habe mich jetzt wirklich in diese Sitzbank von Kerstin mit den 60er US verliebt :kiss: und die Idee war es ja die Kids auf den Plätzen frühstücken zu lassen und dafür wäre die Bank ja perfekt. Mein Mann findet die Insel auch sehr wuchtig, aber durch die großen Schiebetüren die ja eigentlich fast immer offen stehen sollen, hätte ich gehofft dem Raum mehr Luft zu geben. Außerdem wollte ich die Insel mit weißen Fronten eher unaufdringlich gestalten.
Nächste Woche habe ich einen Termin wegen der Arbeitsplatte . Ein heller Stein würde das ganze eventuell etwas weniger wuchtig aussehen lassen.

Ich könnte die inselschränke in 60 er Tiefe machen und einen 30cm überstand, dann wäre die Insel kleiner, fändest du das besser?
 
Ich weiß ja nicht wie alt die Kinder sind, aber die sitzen auch ganz gern auf den Barhockern. Mein bald 4-jähriger sitzt jetzt auch auf dem Barhocker mit Rückenlehne.
 
ich denke wenn Barhocker, dann würde ich eher wieder auf meine Ausgangsplanung zurück gehen und eine Halbinsel planen, wo die Schieber Richtung Fenster aufgehen, aber dann müsste ich auf die breite Schiebetür verzichten
 
Ich finde die Insel in dieser Form:
einhubo_20170422_kb1_12b_grundriss-jpg.241347


einfach integrativer für die Küchenarbeit, als wenn die Schränke als Halbinsel gedreht stehen.

Man könnte evtl. auf 2x60er in Übertiefe gehen, statt 2x80er oder 1x60 und 1x80 ...
Ich hatte übrigens knapp 110 cm als Gang geplant.
 
Ich finde den Durchgang zwischen Spüle und Insel zu knapp, da ist doch mehr Verkehr als auf der anderen Seite zum auf die Bank schlupfen.
 
Würde 40-50 cm tiefe Bank nicht reichen? Stuhlsitzfläche hat auch nur 40 cm.

Sogar wen ich Lehne beim 60 cm abziehe, so ist es immer noch zu tief. Entweder man kann sich an die Wand anlehnen mit ausgestreckten Beinen oder weiter vorne sitzen um Beine anwinkeln zu können.

Ich würde da die Tiefe mit Kindern und auch Erwachsenen ausprobieren, denn Kinder wachsen schnell.
 

Ähnliche Beiträge

Neff Hausgeräte Ballerina Küchen Blum Bewegungstechnologie Weibel - Intelligente Küchenlüftung

Neff Spezial

Blum Zonenplaner

Weibel Abluft-Tuning

Weibel Abluft-Tuning
Zurück
Oben