Unbeendet Küche aus Alt und Neu im Neubau

Jochen

Mitglied
Beiträge
27
Wohnort
Pfälzer-Südliche Weinstrasse
Hallo, ich bin schon seit längerem am rumprobieren, wie ich die Küche in unserem bald entstehenden Neubau aufbauen sollte.
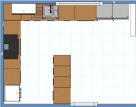
Im letzten Jahr sind wir in unsere momentane Wohnung gezogen und haben uns beim Schweden eine neue Küche geholt. Momentan noch etwas klein, im Haus haben wir aber knappe 17,5qm zur Verfügung. Da wir ja quasi eine neue Küche haben, wollen wir diese einfach erweitern. Arbeitsplatte neu und das 60er Kochfeld wird gegen ein 80-90cm Induktionsfeld getauscht. Die erste Planung fand nur mit Insel statt. Wir merkten aber schnell das ohne zusätzliches Becken auf der Schnibbelseite der Insel was fehlen würde und wir immer zur Spüle laufen müssten. Also müsste eine kleine Spüle auf die Insel.
Das es ein Neubau ist sind die Wasser An- und Abflüsse relativ flexibel gestaltbar. Lediglich das Fenster ist ziemlich fest, da es aus optischen Gründen eine Linie mit dem Fenster im OG haben sollte( Dort sitz ein Bad). Das lassen wir aber noch prüfen vom Architekten.
Rechts gehts über einen durchgang zum Esszimmer (Ist per Glasschiebeelemente abtrennbar). Die Tür ist leider auch fix.
Die Spülmaschine wollen wir hoch setzen, der Kühlschrank ist mometan noch ein 180x60cm Stand-Alone Gerät. Soll aber im Haus gegen einen 120cm Side by Side getauscht werden.
Die mit dem Roten V gekennzeichneten Schränke sind vorhanden.
Meiner Frau gefällt die Insel sehr gut, ich wäre aber eher für eine Variante mit Halbinsel, wie ich auch mal ein Bild aus dem Ikea Planer angehängt habe. Das Problem ist nur, es fehlt dann ein Schrank, der eigentlich für fast die gesamten Geräte verwendet werden sollte, die man eher seltener braucht (Brotbackautomat, Dampfgarer, Handrührer, Küchenmaschine, Eierkocher usw. usw.) Dafür brauchte man dann schon einen kompletten Eckschrank, den ich momentan nicht reinbekomme.
Hat einer von euch da eine Idee wie man das lösen könnte.

Küchen Alno Vollbild.jpgAlternative Küche mit Halbinsel.JPGAlno Küche mit zweitem Becken.jpgAlno Draufsicht_2.JPGAlno Draufsicht.JPGKüche.JPGAnhang anzeigen PLAN1.KPL
Anhang anzeigen PLAN1.POS


Checkliste zur Küchenplanung von Jochen

Anzahl Personen im Haushalt : 2
Davon Kinder? : keine
Körpergrössen aller Hauptbenutzer (wegen Arbeitshöhe ) in cm : 175, 173
Art des Gebäudes? : Neu-/Umbau, Planänderungen möglich
Brüstungshöhe des Fensters (in cm) : 89, mit unterem Festelement
Fensterhöhe (in cm) : 126
Raumhöhe in cm: : 250-260
Heizung : Fussbodenheizung
Sanitäranschlüsse : vollkommen variabel
Ausführung Kühlgerät? : Side by Side ca. 90cm breit
Kühlgerät Größe : noch unbekannt
Ausführung Tiefkühl (TK)-Gerät : Nicht erforderlich bzw. steht woanders
Dunstabzugshaube? : Umluft
Hochgebauter Backofen ? : Ja
Hochgebauter Geschirrspüler ? : ja
Kochfeldart? : Induktion
Kochfeldbreite ca. (in cm)? : 90
Spülenform: : 1 Becken mit Abtropffläche
Weitere geplante Heißgeräte :
Küchenstil? : modern
Sitzmöglichkeit in der Küche / im Küchenbereich als : Keine
Sitzmöglichkeit: Für wieviel Personen? : nein
Sitzmöglichkeit: Tisch - wenn gesonderter Tisch oder offene Küche : Keine
Gewünschte o. vorhandene Tischgröße : keiner
Wofür soll der Sitzplatz in der Küche genutzt werden? Wie häufig? : kein Tisch
Welche Arbeitshöhe ist angedacht (in cm)? : 89
Was steht auf der Arbeitsplatte oder soll dort stehen? : Kaffeevollautomat, Wasserkocher, Messerblock, Toaster, Obstschale
Welche weiteren Küchenmaschinen müssen in der Küche untergebracht werden? : Küchenmaschine, Handrührgerät, Mixer, Pürierstab, Eierkocher, Sonstiges (evtl. im Beitragstext benennen)
Was soll in der Küche außer den Standards untergebracht werden? : ALLE Vorräte, Geschirr komplett (nichts in Ess-/Wohnzimmer)
Welchen Stauraum gibt es sonst noch? : Geschirr/Gläserschrank im Wohn-/Esszimmer, Hauswirtschaftsraum
Was/wie wird gekocht? (Alltagsküche, Menüs, Snacks usw) : Alltagsküche, Kochabende mit Freunden
Wie häufig wird gekocht? : (fast) täglich 1x warm
Wird alleine gekocht? Oder auch gemeinsam? Mit und für Gäste? : Mal alleine, mal mit 5-6 Leuten
Was stört an der bisherigen Küche und was soll die neue Küche unbedingt können? Warum? : Eng, Dunkel, zu zweit wirds schon eng
Steht schon ein Küchenhersteller fest oder wird bevorzugt? : IKEA
Steht schon ein Gerätehersteller fest oder wird bevorzugt? :
Preisvorstellung (Budget) : bis 3.000,-
 

Anhänge

  • Grundriss für Küche.JPG
    Grundriss für Küche.JPG
    55,4 KB · Aufrufe: 515
Zuletzt bearbeitet:
AW: Küche aus Alt und Neu im Neubau

Hallo Jochen und ein Herzliches Willkommen hier
:welcome:

so auf den schnellen Blick ist mir aufgefallen, dass das Kochfeld so nicht gut postioniert ist. Rechts und links ist m.M. nach einfach zu wenig Platz.
Bedenke hierbei, dass z.B. auch ein Pfannenstiel überstehen kann, was doch große Risiken bietet.
 
AW: Küche aus Alt und Neu im Neubau

Hallo Jochen, herzlich Willkommen hier im Forum! :welcome: Viel Spaß und viel Erfolg bei der Küchenplanung !

Ich schließe mich Magnolia an, die Insel ist viel zu klein! Das Kochfeld braucht mindestens 30cm Platz zu jeder Seite, das Spülbecken auf der viel zu kleinen Insel raubt euch zusätzlich Platz. Wo wollt ihr dort noch schnibbeln? ;-) :cool:

Auch halte ich die gewünschte Arbeitshöhe für eure Körpergröße, zu niedrig.

ARBEITSHÖHE ermitteln:
3 Methoden haben sich da etabliert:
- Ellbogen abwinkeln und von dort 15 cm runtermessen
- Höhe Beckenknochen messen
- z. B. Bügelbrett nehmen und in verschiedenen Höhen Probeschnippeln und messen, wenn es einem am bequemsten erscheint. Sich Vorbeugen, dann ist's zu niedrig, die Schultern hochziehen, dann ist's zu hoch.
Idealerweise ergeben alle 3 Methoden ca. denselben Wert.

Schade das ihr schon auf Ikea festgelegt seid, für euch wäre eine Küche im 6er Raster ideal.

Eure eingeplanten Eckschränke sind leider auch nicht sehr praktisch, lest euch mal in das Thema "Warum tote Ecken, gute Ecken sind" ein.

Zum Grundriss, der erscheint mir als wäre es eine zum Wohnraum hin, offenene Küche? Wenn dem so ist, hänge bitte deinem Eingangspost, einen Gesamtgrundriss des Geschosses an, das wir die Laufwege einschätzen können.

P.S. hatte überlesen, dass der Wohnraum duch eine Schiebetür abgetrennt wird. Ein Gesamtgrundriss wäre trotzdem wünschenswert. ;-)
 
Zuletzt bearbeitet:
AW: Küche aus Alt und Neu im Neubau

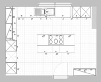
Hier einmal eine Stellprobe. Der Durchgang ist etwas eng geworden, hab jetzt aber keine Zeit das zu ändern.... Bis auf den Eckschrank und Korpus + Auszüge des 40er Auszugschrankes habe ich alles verbaut... In den rückseitigen Inselschränken ist jede Menge Stauraum für selten benötigte Küchengeräte, für Kochen mit Freunden ist auch genügend Arbeitsplatz vorhanden. Die Tür hab ich allerdings ein paar Zentimeter verschieben müssen...:rose: Ich würde sie nach Außen aufgehen lassen, oder eine Schiebetür einbauen.

Ich lasse jetzt einfach mal die Bilder sprechen, hab keine Zeit mehr!
 

Anhänge

  • jochen.jpg
    jochen.jpg
    26,1 KB · Aufrufe: 187
  • jochen1.jpg
    jochen1.jpg
    25,4 KB · Aufrufe: 183
  • jochen2.jpg
    jochen2.jpg
    24,8 KB · Aufrufe: 190
  • PLAN1-jochen-conny.KPL
    3,9 KB · Aufrufe: 173
  • PLAN1-jochen-conny.POS
    8,4 KB · Aufrufe: 179
  • jochen grundriss.JPG
    jochen grundriss.JPG
    26,4 KB · Aufrufe: 181
AW: Küche aus Alt und Neu im Neubau

Hallo Jochen,

die Inselplanung ist sehr unergonomisch, wenn du tatsächlich auf der Inselrückseite schnibbeln willst:
Zutaten aus Kühlschrank - zur Spüle, waschen - zur Inselrückseite, schnibbeln - zur Inselvorderseite, kochen. Du merkst selber, das geht gar nicht, und noch dazu in so einer großen Küche.

Ein Sbs hat seine Kühlhälfte rechts, da wäre es besser, wenn er an einer rechten Wand steht und du von/nach links ein/ausräumen kannst.

Einen vorhandenen Eckschrank weiterverwenden ist ja okay, aber einen neuen Schrank zu kaufen, in den man krabbeln muss, statt bequemer Auszüge ist nicht praktisch.

Arbeitshöhe 89 ist für euch zu niedrig, denke ich.
ARBEITSHÖHE ermitteln
3 Methoden haben sich da etabliert:
- Ellbogen abwinkeln und von dort 15 cm runtermessen
- Höhe Beckenknochen messen
- z. B. Bügelbrett nehmen und in verschiedenen Höhen Probeschnippeln und messen, wenn es einem am bequemsten erscheint. Sich Vorbeugen, dann ist's zu niedrig, die Schultern hochziehen, dann ist's zu hoch.
Idealerweise ergeben alle 3 Methoden ca. denselben Wert.

Gegen eine Insel spricht ja erstmal nichts, wenn man sich von den Fernsehküchen löst, wo Kochinseln für Koch herüben und Kameramann drüben nötig sind. Als Vorbereitungs- und Arbeitsinsel ist das prima.

Da ist eine Menge Verbesserungsbedarf.
 
AW: Küche aus Alt und Neu im Neubau

Könnte man die planuntere Eingangstür (vom Flur?) noch nach rechts veschieben?
Und überhaupt: unten rechts sind in der Küche eine ganze Menge völlig ungenutzter Quadratmeter. Schade eigentlich, und teuer erbaut.
Wie breit ist die Glasschiebetür ins WZ und wieviel Wand ist dann planrechts unten noch?
 
AW: Küche aus Alt und Neu im Neubau

Man man, bei Euch geht das Aber flott, hätte ich nicht erwartet!:-)

Also um mal auf die Fagen einzugehen.

Das die Insel recht knapp bemessen ist wissen wir, nur leider konnten wir bisher noch keine vernünftige Lösung finden. Aber nun bin ich ja hier und sehe schon das das bestimmt was wird.

Die Arbeitshöhe haben wir momentan auch. Und unterm Arm habe ich genau 15cm und stehe mit dem Becken an der Apl an, passt also perfekt.

Ikea ist eben günstig. Ja klar, man hat hier und da ein paar Einschränkungen, aber wir dennoch begeistert. Zur selben Zeit als wir uns unsere geholt haben, bekamen Schwiegereltern für knapp 7000€ eine von Alno . Unsere kostetet damals, (ohne Geräte, die haben wir separat gekauft) knappe 1000. Und für die Differrent kaufen wir leiber in ein paar Jahren eine noch besser angepasste Küche.;-)

Das mit den Toten Ecken leuchtet mir ein. Den einen Eckschrank mit Auszug (LeMans ?) haben wir bereits. Der andere für die Küchenmaschinen würde einer werden mit einem Einlegeboden. Klar, man müsste ein oder zweimal im Monat etwas graben, aber der Raum wäre ja dennoch genutz. Ich lass den aber auch gerne weg wenns passt.

Den Grundriss habe ich beigefügt. Das Stück Wand beim Durchgang zum Esszimmer hat 2 Funktionen. Einmal ist es tragend und dann verschwinden davor die Glasschiebeelemente.
Die Eingangstür vom Flur kann leider nicht mehr verschoben werden. Der Eingang ist jetzt schon etwas doof geraten (die dünne Wand zum Abstellraum kommt weg und die Treppe wir offener), aber dadurch das das Stück Wand daneben auch tragend ist, geht da nix. Es ist aber eine Schiebetür geplant. An das Stück Wand rechts am Durvchgang kann immer noch eine Kommode oder noch ein Schrank hin, der Durchgang ist ja breit genug.



@Conny
Der Plan gefält mir schon ganz gut. Den durchgang könnte man ja verbreitern indem man einfach einen schmaleren Schrank nimmt. Anstatt eines 80er einen 60er und schon sind wir bei über 1m Breite, zum laufen ja genug.

@menorca

Der geplante Sbs kühlt Links
Robert Bosch Hausgeräte GmbH - Produkte - Kühlen und Gefrieren - Kühl-Gefrier-Kombinationen - Side by Side - KAN99AW35

So und für mich jetzt auch schon Zeit zur Arbeit zu fahren. Schönen Tag wünsche ich euch noch
 
AW: Küche aus Alt und Neu im Neubau

Hier auch ein Vorschlag von mir, doch mit Kochinsel ;-), und unveränderten Türen. Eine gute Insel-Umluft-DAH kostet leider einiges. Grob gesagt: je günstiger, desto lauter und ineffizienter, leider.

Rechts und links vom BO-Schrank sind zwei große Vorrats- oder auch Geräteschränke.

Der hochgestelle Geschirrspüler ist hier jedoch nicht verwirklicht.
Du weißt, dass ein hochgestellter GSP eine Sonderkonstruktion ist? Da er ja schon selber 60cm breit ist, wird er nicht einfach wie ein Backofen (nur die Front ist 60cm breit) in einen Schrank geschoben, sondern steht auf einem Sockel , der aussieht wie ein Auszug, aber nicht in der vollen Tiefe nutzbar ist. Hier mal ein Bild von der Seite:
-
Seitlich benötigt diese Konstruktion dann auch Seitenwangen, oder steht zwischen zwei Hochschränken, da man sonst die nackten GSP-Seiten sieht.

Edit: Mist, jetzt sehe ich, dein SbS funktioniert andersherum. ;-) Aber er ist ja noch nicht gekauft, oder? ;D
 

Anhänge

  • Jochen_V2_G.JPG
    Jochen_V2_G.JPG
    53,1 KB · Aufrufe: 202
  • Jochen_V2_A3.jpg
    Jochen_V2_A3.jpg
    42,6 KB · Aufrufe: 178
  • Jochen_V2_A2.jpg
    Jochen_V2_A2.jpg
    40,1 KB · Aufrufe: 184
  • Jochen_V2_A1.jpg
    Jochen_V2_A1.jpg
    46 KB · Aufrufe: 199
  • Jochen_V2.KPL
    3,9 KB · Aufrufe: 219
  • Jochen_V2.POS
    8,7 KB · Aufrufe: 166
AW: Küche aus Alt und Neu im Neubau

Annette, funktionieren die SBS nicht alle gleich? Frosterseite links und Kühlseite rechts? Dann wäre dein SBS doch richtig...;-)...aber hat er an dem Standort genug Platz, um ihn zu öffnen?
 
AW: Küche aus Alt und Neu im Neubau

Conny sein Sbs ist anders herum. Schau mal seinen Link an.

LG
Sabine
 
AW: Küche aus Alt und Neu im Neubau

Conny, dachte ich auch! Und ich hatte ja geplant, während Jochen geantwortet hat und ich habe seinen Sbs-Link erst danach gesehen. Sein ausgesuchtes Gerät ist die Stecknadel im Heuhaufen bzw die große Ausnahme!
Diesen Sbs sollten wir uns merken, wenn ein anderer User wieder unbedingt einen Sbs möchte, ihn aber nur am linken Ende einer Zeile stellen kann.
 
AW: Küche aus Alt und Neu im Neubau

Ok, den Link hatte ich mir natürlich nicht angeguckt, hab immer mal zwischendurch geguckt...:-[...leider steht im Link nicht, wieviel Platz er zum öffnen braucht.

Den Link sollten wir uns wirklich merken! :top:
 
AW: Küche aus Alt und Neu im Neubau

Und ich sehe gerade: 120cm hatte ich auch nicht eingeplant, sondern "nur" 90cm. Die Wand neben dem Fenster hat 100cm.

Wenn ich daran denke, dass wir mit einer 60cm breiten und 174cm hohen Kühlkomi zu sechst auskommen...;-)))
 
AW: Küche aus Alt und Neu im Neubau

Hm, er hat in der Checkliste auch nur 90cm geschrieben...:-\...aber er braucht seitlich keinen Platz zum Öffnen.
 
AW: Küche aus Alt und Neu im Neubau

Ich hab meine 1. Planung jetzt mal angepasst. Ganz ideal ist sie nicht, ich stelle sie aber trotzdem ein.

Hab den Durchgang verbreitert indem ich den 60er Unterschrank gegen den übriggebliebenen 40er getauscht habe. Der SBS ist jetzt 120cm breit und passt knirsch an die Wand zum Essbereich.
Die Tür zum Flur habe ich wieder an ihren neuen Platz geschoben und eine Schiebetür eingebaut, dem Durchgang zum Essbereich habe ich auch Schiebeelemente spendiert.



Verbaut habe ich in der Wandzeile

- Blende
- 3 x 80er Unterschränke mit Auszügen
- Backofenhochschrank
- Hochschrank mit GSM, dieser muss als Sonderanfertigung zusammengestellt werden, nach der Anleitung die Menorca weiter oben schon erklärt hat.
- Wange
- Blende

Insel, Plan links beginnend

- Blende
- 2 x 80er Unterschränke mit Auszügen
- 60er Spülenschrank
- 40er Unterschrank mit Auszügen
- Wange

Inselrückseite

- Blende 10cm Breit, damit man Schiebetür zum Flur und Inselschrank nicht in Konflik geraten
- 80er Unterschrank mit Drehtüren 37cm tief
- 2 x 50er Unterschränke mit Drehtür 37cm tief
- 80er Unterschrank mit Drehtüren 37cm tief
- Wange
 

Anhänge

  • jochen grundriss.JPG
    jochen grundriss.JPG
    38,2 KB · Aufrufe: 181
  • jochen1.jpg
    jochen1.jpg
    28,9 KB · Aufrufe: 193
  • jochen-a.jpg
    jochen-a.jpg
    23,9 KB · Aufrufe: 194
  • PLAN1-jochen-conny a.KPL
    3,9 KB · Aufrufe: 169
  • PLAN1-jochen-conny a.POS
    9,3 KB · Aufrufe: 182
  • jochen2.jpg
    jochen2.jpg
    24,2 KB · Aufrufe: 179
AW: Küche aus Alt und Neu im Neubau

Eine weitere Stellprobe. Dieses mal passen die Hochschränke, leider nur knirsch an die Wand. Wangen und Blenden sind aber mit eingerechnet. Wieder sind alle Schränke, mit Ausnahme des Eckschranks :rose: verbaut...

Mit der Hochschrankwand beginnend...

- Wange
- Backofenhochschrank
- Wange
- SBS
- Wange
- Hochschrank für GSP
- Wange

Insel, an der Wand beginnend

- Blende
- 80er Auszugschrank
- 60er Spülenschrank - bei Verzicht auf eine Abtropfläche erhält man an dort auch noch einen Arbeitsplatz
- 80er Auszugschrank
- 80er Kochfeldschrank
- 40er Auszugschrank
- Wange

Inselrückseite

- Blende
- 4 x 80er Unterschränke 37cm tief
- 20er Flaschenregal
- Wange
 

Anhänge

  • jochen grundriss.JPG
    jochen grundriss.JPG
    33,6 KB · Aufrufe: 183
  • jochen.jpg
    jochen.jpg
    27,6 KB · Aufrufe: 189
  • jochen1.jpg
    jochen1.jpg
    27 KB · Aufrufe: 182
  • jochen2.jpg
    jochen2.jpg
    28,5 KB · Aufrufe: 174
  • PLAN1-jochen-conny-1.KPL
    3,9 KB · Aufrufe: 168
  • PLAN1-jochen-conny-1.POS
    10,4 KB · Aufrufe: 165
  • jochen3.jpg
    jochen3.jpg
    22,2 KB · Aufrufe: 170
AW: Küche aus Alt und Neu im Neubau

Also ich bin echt total baff wie flott das bei euch geht! Bei euch kann man spenden? Da könnt ihr euch einer guten Spenden sicher sein!
Also die Planung von Conny gefällt mir schon sehr gut, muss das nur Zuhause nochmal genauer anschauen. Hier auf dem Handy geht das nur bedingt.
Die 90cm beim Sbs hab ich nur angegeben weil keine 120cm Variante verfügbar war, oder hab ich das übersehen? Ich schau gleich nochmal.
Den Bosch haben wir eigentlich eher wegen dem Design gewählt. Kein Edelstahl War uns wichtig. Und den gibt on Weiß und Schwarz glaub ich.
Und ja, die Wand rechts neben dem Fenster hat nur 100cm weil sich die Fensterlinie an der im OG orientiert. Ich muss aber noch mit dem Architekten reden, evtl lässt sich da noch schieben.

Vielen vielen Dank schon mal! Ihr dürft aber gerne noch weiter Planen. ;-)


Tante Edit
Also die Planung von gerade eben gefällt mir nun nicht so.
Muss mur Zuhause mal gedanken machen wie das dann eingeräumt wird für ergonomisches arbeiten. :-)
 
AW: Küche aus Alt und Neu im Neubau

...über Spenden freuen wir uns natürlich sehr! :kiss: Hier kannst du das tun. :rose:
 
AW: Küche aus Alt und Neu im Neubau

Wie willst du die Ecke sauberhalten? :cool: Das wird auch nicht schön aussehen, so inmitten der Zeilen.
Schränke ohne Blende an die Wand funktioniert nicht. Wände sind in den wenigsten Fällen gerade... Der Backofen ganz an die Wand platziert ist unbequem, die Bewegungfreiheit, die du benötigst, um ein beladenes Blech aus dem Ofen zu holen, fehlt. Die Insel finde ich nicht tief genug. :rose:
 

Ähnliche Beiträge

Neff Hausgeräte Ballerina Küchen Blum Bewegungstechnologie Weibel - Intelligente Küchenlüftung

Neff Spezial

Blum Zonenplaner

Weibel Abluft-Tuning

Weibel Abluft-Tuning
Zurück
Oben