Unbeendet Küche aus Alt und Neu im Neubau

AW: Küche aus Alt und Neu im Neubau

@KerstinB

Also bei 120cm wäre das schon das äußerste was machbar wäre. Da wäre das Fenster oben schon fast am WC angekommen und wer will schon vor dem Fenster sitzen. Silhouetten sieht ja man auch bei Milchglas noch.

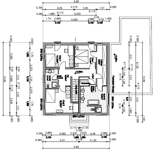
Dein Entwurf ist auch super, der von Conny aus Beitrag 29 ist aber immer noch mein Favorit. Dort habe ich bisher alles vereint. Kochstelle mit einem guten Blick, mehr als genug Arbeitsfläche, kurze Wege und auf der Apl noch genug Stellfläche für Vollautomat, Toaster und Wasserkocher.

97808d1355139956-kueche-aus-neu-und-neu-im-neubau-grundriss-fuer-kueche.jpg

Wenn es geht, würde ich die Wand zum Wohnzimmer noch ca. 50 cm weiter nach planoben setzen (klappt hoffentlich im Zusammenhang mit dem OG, im EG sehe ich da kein Problem, da es im WZ eh größtenteils toter Raum ist.). Das entspannt doch den Zugang zur Küche ganz enorm, die Tür zur Küche könnte auch weiter nach planoben rutschen, damit wäre die Insel mit 120 cm Tiefe dann überhaupt kein Problem.

Also das mit der Tür zur Küche können wir erst klären wenn wir die Berechnungen vom Statiker haben.
Die planobere Küchenwand nach Oben versetzen geht nicht. Es würde uns das Esszimmer zu sehr verkleinern, die Wand links im Esszimmer würde zu klein werden für die Fensteranordnung und das wichtigste, die tragende Wand im OG müsste mit rutschen, was das Kinderzimmer (welches schon das kleinere der beiden ist), auf ca 11-12m² verkleiner würde.

Wir wissen das der Eingang zur Küche nicht optimal ist. Eine Änderung würde aber weitreichende Folgen für die gesamte Planung mit sich ziehen. Und der Rest gefällt uns eigentlich ganz gut. An der linken Eingangseite der Tür beträgt die Höheca 2,2m, was vollkommend ausreichend ist.

Den HWR nach oben zu rutschen würde bedeuten das das Wohnzimmer kleiner wird und das sich unser Durchgang zur Garage verschiebt. Dieser ist so geplant das er direkt am Heck der Autos ist.
Das ''Gästezimmer'' soll eher ein Notzimmer sein. Für kurzfristige Nachtgäste reicht das allemal. In das Zimmer wird aber eher ein kleines Büro rein kommen.

Das mit der Berechnung im Möbelhaus müssten wir uns aber mal überlegen, sind aber mit Ikea schon ganz zufrieden.
Bei meinem ersten Plan müsste wir (nur bei den Schränken) ca 2600€ ausgeben und hätten mit unseren vorhandenen dann keine 4000€ bezahlt.
Was schätzt ihr würden wir (ganz grob) im Möbelhaus bezahlen?
 
Zuletzt bearbeitet von einem Moderator:
AW: Küche aus Alt und Neu im Neubau

Kerstin meint nicht die Wand zwichen Küche und Essen zu versetzen, sondern die zwischen Diele & Wohnzimmer ;-)

Die Türen in den HWR sässen aber auch besser mittiger im Raum - dann könnte man an die Wand planunten wenigstens noch flache Regale stellen und dort z.B: Schuhe oder so stapeln.

Das die Türe am Heck ist, finde ich nicht ganz so wichtig, wie dass man den HWR gut nutzen kann.
 
AW: Küche aus Alt und Neu im Neubau

Ich verstehe deinen Satz mit dem Fenster und dem WC nicht. Sieh dir den Grundriss einfach nochmal genau an. Und, klar meine ich es so, wie Vanessa schreibt. Das Hochrutschen der Esszimmerwand bringt doch wohl gar nichts

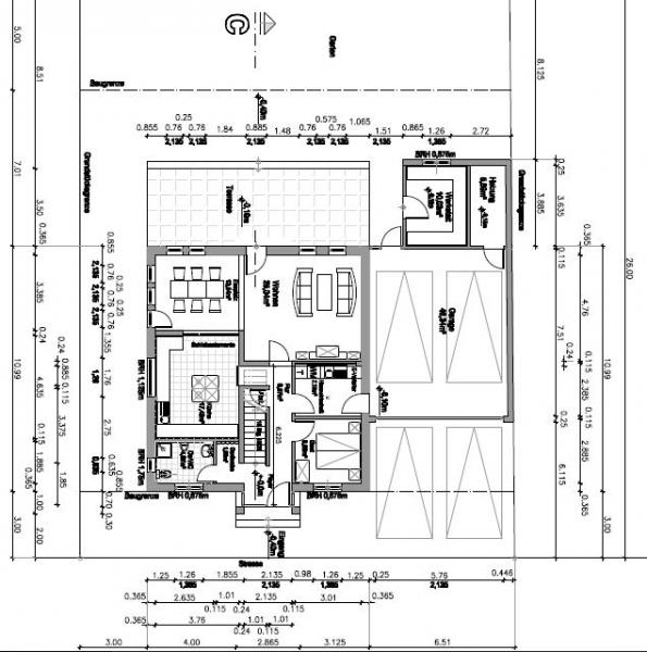
98035d1355381713-kueche-aus-neu-und-neu-im-neubau-kf_jochen_20121213_kb_var1_grundriss.jpg


Connys Plan:
97990d1355302410-kueche-aus-neu-und-neu-im-neubau-jochen-alnogrundriss.jpg


Da würde mich folgendes stören:
- relativ enger Gang in einem großen Küchenraum zwischen Kochfeld und Hochschränken, das nur damit die Tür noch klappt. Auch hier wäre ein Verrutschen der WZ-Wand und damit ein Verrutschen der Küchentür nach planrechts sehr sinnvoll.

- Kühlschrank etc. steht in der Ecke, man muss durch die Engstelle an der Spüle, wo beim Kochen mit mehreren auch immer viel los ist.

- einen großen freien recht unnützen Platz in der Küche, der auch nicht hilfreich ist, wenn man mit mehreren kocht.

- Stellfläche wird ja auch hier hauptsächlich die Zeile planoben sein. Ich stelle mir den KVA eigentlich bei beiden Planungen oben links vor. Eine Küchenmaschine kann auch wundervoll im Auszug unter der APL stehen und bei Bedarf einfach auf die APL gehoben werden.

- Was versprichst du dir vom Kochblick bei Connys Planung?
 
AW: Küche aus Alt und Neu im Neubau

Die Wände von denen ihr sprecht sind Dick gezeichnet. D.h. sie sind tragend. Die Wand zwischen Wohnzimmer und Diele würe ich gerne versetzen, muss aber warten was der Architekt sagt wenn er die Berechnungen des Statikers hat. Wände sollten übeinander in der Stockwerken stehen. D.h. verändern wir eine Wand im EG, müssen wir die Wand im OG auch verändern. Da wir uns bei der Wand Rechts am Eingang der Küche an einer tragenden Eck Wand befinden, habe ich noch Hoffnung das man da noch 20 oder 30cm schieben kann. Ich möchte aber noch nicht davon ausgehen, weils wenn es nicht geht muss die Planung wieder verworfen werden.

Stimmt, die Türen vom HWR könnten wir noch 30 oder 40cm verstzen, das wäre kein Problem.

Fenster OG Bad.JPG
Links ist das Fenster über dem Küchenfenster. Die Planobere Kante ist in einer Linie mit der des Küchenfensters. Verschiebe ich das Küchenfenster, muss ich auch das Badfenster verschieben um die Aussenoptik beizubehalten. Bei 20cm wäre ich schon fast an der Vorderkante des WC. Bei 35cm wäre man, wenn man vor dem WC steht, schon direkt vor dem Fenster.

- Kühlschrank etc. steht in der Ecke, man muss durch die Engstelle an der Spüle, wo beim Kochen mit mehreren auch immer viel los ist.

Stimmt.hmm,

- einen großen freien recht unnützen Platz in der Küche, der auch nicht hilfreich ist, wenn man mit mehreren kocht.
Würde mich weniger stören. Ich habe gerne Platz

- Stellfläche wird ja auch hier hauptsächlich die Zeile planoben sein. Ich stelle mir den KVA eigentlich bei beiden Planungen oben links vor. Eine Küchenmaschine kann auch wundervoll im Auszug unter der APL stehen und bei Bedarf einfach auf die APL gehoben werden.
- Was versprichst du dir vom Kochblick bei Connys Planung?

Du machst mir deinen Plan wirklich schmackhaft!:top:
Ich würde den Eckschrank allerdings oben links verbauen. Mit einem Einlegeboden ist der Plan ja ausgenutzt.
Bei deinem Plan kann ich KAV&co. ja nur links oben hinstellen. Ganz in die Ecke würde ich allerdings noch den Rolladenschrank stellen, der wurde schon für die Kochbücher verplant.;-)

Die DAH als Lüfterbaustein zu machen wäre kostentechnisch wohl eine größere Sache. Besser wäre wohl eine Wand/Kopffreihaube. Könnt ihr da was empfehlen?
Die DAH wird zusätzlich auch durch die Lüftungsanlage unterstützt, welche die Luft in der Küche abzieht.
 
AW: Küche aus Alt und Neu im Neubau

Mach doch mal einen Stauraumplan mit meiner Planung... ich würde ja wirklich versuchen den Eckschrank rauszulassen. Und wenn, dann scheint er die falsche Ausrichtung zu haben, denn du hast doch wohl einen, der dann lang planlinks stehen müßte. D. h., der Backofenschrank aus meiner Planung müßte woanders hin und die hochgebaute GSP braucht eine entsprechende Wange. Das wollte ich ja mit meiner Planung vermeiden.

Rolladenschrank .. gibt es den schon? Platz für Kochbücher wäre auch im 60 cm Hochschrank mit den Vorräten oder im Drehtürfach über der GSP.
kf_jochen_20121213_kb_var1_Grundriss.jpg

Zu der Fensterproblematik .. du verstehst jetzt, warum wir gerne möglichst vermaßte Komplettgrundrisse haben ... dazu kann dann auch schon mal der Grundriss eines OG gehören, wenn noch Optionen von Wandverschiebungen sind. Hatte ich ja auch bei meinem Verschiebevorschlag schon als Einschränkung gegeben.

Wand-DAH geht natürlich nur, wenn das Fenster so wie in meiner Planung sitzt. Denn das Kochfeld würde ich nicht weiter nach rechts setzen wollen.

Kopffreihauben ... da würde ich eine normale Wand-DAH bevorzugen, einfach, weil ich den schrägen Abzugsflächen nicht so traue.

Kühlschrank, braucht ihr wirklich 120 cm Breite? Es wäre ja auch die Möglichkeit einen großen Kühlschrank mit kleinem TK-Fach für die Küche zu wählen und einen Stand-Alone-TK für den HWR . Da fällt mir übrigens auf, wo kommt denn Heizung etc. hin? Da erscheint mir der HWR ja etwas klein. Keller wird es ja keinen geben - oder?
 
AW: Küche aus Alt und Neu im Neubau

Mal als Skizze ... Kochfeld planlinks, große Spüle planrechts, Wand dort jetzt wieder nur 100 cm (in Variante 1 = 137 cm)

Planlinks jetzt noch dein Eckschrank ;-) ... dafür einen Kühlschrank raus. GSP wieder zwischen Kühlschrank und BO-Hochschrank .

Spüle auf der Insel jetzt planlinks .. hier sollte man wg. GSP dann überlegen, ob man Bio/Restmüll planrechts der Inselspüle platziert.

Was ich hier nachteilig finde für das Kochen mit mehreren ist die Kochfeldposition, weil man nicht zu zweit am Kochfeld stehen kann.
kf_jochen_20121214_kb_var2_Grundrissskizze.jpg
 
AW: Küche aus Alt und Neu im Neubau

Die Staraumplanung mach ich heute mittag bei der Arbeit mal, da hab ich Zeit.
Was hast du gegen den Eckschrank? Einer mit einem Auszugsboden hat viel Verlust, klar, aber wieso soll ich den leeren Raum in der Ecke nicht mit einem Eckschrank mit Einlegeboden nutzen? Unserer hat einen Auszug drin, den würde ich tauschen gegen einen Einlegeboden (sofern das geht, bei IKEA denke ich aber das das alles die selben Korpusse sind). Die Öffnungsseite zu tauschen wird bestimmt auch möglich sein.

Den GSP müsste ich, laut deiner Planung, ja beidseitig mit einer Blende für die Front versehen. Die Front wäre ja auch zu klein. Den GSP beidseitig zu verkleiden wird bei IKEA wohl einige Probleme bereiten. Wäre es nicht einfacher wenn ich nur eine Seite mit einer Blende bestücken müsste, welche eben die 2-3cm mehr Breite des GSP ausgleicht. Diese 2-3cm würde dann Recht neben dem GSP überstehen.

Den Rolladenschrank hätten wir genommen, weil die Ecke auf der APL ganz hinten eh nicht genutzt werden kann.

Grundriss EG.jpgGrundriss OG.JPG


Stimmt, mit Wandhaube würde es eng werden. Aber was für Möglichkeiten hätten wir mit 100 oder 120cm Wandbreite?

Was haltet ihr davon? Kochfeld in der Ecke
Eck-Kochfeld.JPG

Kühlschrank, braucht ihr wirklich 120 cm Breite? Es wäre ja auch die Möglichkeit einen großen Kühlschrank mit kleinem TK-Fach für die Küche zu wählen und einen Stand-Alone-TK für den HWR . Da fällt mir übrigens auf, wo kommt denn Heizung etc. hin? Da erscheint mir der HWR ja etwas klein. Keller wird es ja keinen geben - oder?[/QUOTE]

Von dem 120cm sind wir doch schon länger weg. 2x60cm brauchen wir aber schon. Mit einem reinen Kühlschrank+140cm TK wären wir bedient. Im HWR ist kein Platz dafür, da kommt die Entsalzungsanlage+Lüftungsanlage noch hin.
Die Heizung (WP mit Tiefenbohrung) wird komplett aus dem Haus ausgelagert, ist kein Problem laut Fachmann (der nix mit dem Einbau zu tun hat).
Anhang anzeigen 98107
Find ich jetzt nicht so toll, genau wegen deinen Ausführungen.
 
AW: Küche aus Alt und Neu im Neubau

Die Sache mit dem hochgebauten Geschirrspüler hast du noch nicht richtig verstanden: auch Ikea verkauft die Fronten für einen GSP in GSP-Breite (60cm oder 45cm).

Wenn so ein hochgebauter GSP zwischen zwei anderen Hochschränken steht, dann sind die gleichzeitig die "Blenden", die verhindern, dass man die Metall-Seiten vom GSP sieht, und die die ganze Konstruktion zusammenhalten.

Wenn auf einer oder sogar beiden Seiten nichts hohes steht, dann benötigt man das, was bei Ikea "Deckseite" heißt.

Statt eines Eckschrankes mit Einlegebrettern, der unbequem zu bedienen ist und nur zwei Stauebenen bietet, und erst recht statt eines Eckschrankes mit irgendwelchen Auszugsspielereien auf ebenfalles nur zwei Ebenen, die nicht toll belastbar sind, ist eine tote Ecke mit bequemen und belastbaren Schubladen/Auszügen fast immer besser.
Ausführlich nachzulesen hier: https://www.kuechen-forum.de/forum/themen/warum-tote-ecken-gute-ecken-sind.1616/
 
Zuletzt bearbeitet:
AW: Küche aus Alt und Neu im Neubau

:-[ Stimmt ja, unser vollintegrierter Gsp steht ja auch zwischen 2 Schränken, da hatte ich einen Denkfehler.
Aber mit einer Deckseite (haben wir jetzt auch) hätte ich kein Problem. Muss mir das am WE mal mit meiner Frau überlegen, hab nun endlich Urlaub und kann mich besser mit den Sachen befassen.
 
AW: Küche aus Alt und Neu im Neubau

Die Deckseite muß aber dafür geeignet sein, ein Schrankmodul, was über der GSP ist, seitlich zu halten.

Sieh dir mal den Schrankaufbau meiner hochgebauten GSP an.
>>>>
 
AW: Küche aus Alt und Neu im Neubau

Oh da hab ich ja ganz vergessen zu Antworten.:-[

Also das Thema stockte etwas die Tage, der Weihnachtsstress hatte auch uns erwischt.
Das mit der tragenden Seitenwand habe ich auch verstanden, das hatte ich natürlich nicht bedacht.

Also wir waren gester mal im Möbelhaus und haben uns mal eine Küche planen lassen. Bisher nur auf Papier, die Tage will er sie auf den PC bringen und Freitag nächster Woche haben wir erneut einen Termin, dann schauen wir mal.

Der Berater fand aber noch einen neue Anordnung heraus, welche uns auch sehr gut egfällt, was haltet ihr davon. Ich habs mal schnell in den Planer gemacht, ohne Esszimmerplanung. Die Spüle soll noch etwas zum Fenster hin und der Block soll eigentlich Dunkelgrau sein. Nur wie mache ich nur den Block dunkelgrau? Die Schrankwand soll Weiß werden.
Und der Doppelte Backofen hinten sollte den hochgesetzen Geschirrspüler darstellen, hatte das ganz vergessen das es dir fertigen gibt

Anhang anzeigen Nach Küchenstudio.KPL
Anhang anzeigen Nach Küchenstudio.POSDraufsicht neue Küche.JPGBlick SüdOsten.jpg
 
AW: Küche aus Alt und Neu im Neubau

Hallo Jochen,

selbst wenn Du die Spüle um 50 cm oder mehr Richtung Fenster verschiebst, wo willst du dann Arbeiten ? ;-) Da ist m.M. nach noch immer zu wenig Platz.

Oder willst Du immer um die Halbinsel rumlaufen zum Schnippeln ?
 
AW: Küche aus Alt und Neu im Neubau

Also ganz ehrlich?? Spüle und Kochfeld so nah zusammen zu quetschen wo du doch eigentlich so viel Platz in den anderen Planungen hattest. :-X Richtig Platz zum vorbereiten hast du so nur auf der Rückseite. Ich hätte keine Lust da ständig drum herum zu laufen.

LG
Sabine
 
AW: Küche aus Alt und Neu im Neubau

Ach Du grüne Schnecke ... das ist zwar eine Anordung, wie wir sie hier nicht hatten, das aber mit gutem Grund :rolleyes:.

Da gab es hier im Thread aber schon deutlich praktischere und ergonomischere Vorschläge ...
 
AW: Küche aus Alt und Neu im Neubau

Nach der Küchenarbeit brauchst du bei dieser Anordnung nicht mehr zum Sport du hast dann schon genug gelaufen
Grüßle Hanna
 
AW: Küche aus Alt und Neu im Neubau

Ihr habt absolut recht, ich versteh gar nicht warum wir das nicht gesehen haben.???

Ich hatte zwischenzeitlich mal eine Planung mit 2 Spülen, ungewöhnlich, aber machbar.
Blick SW vor Küchenplanung.jpgBlick SO vor Küchenplanung.jpg
Anhang anzeigen 2 Spülbecken.KPL
Anhang anzeigen 2 Spülbecken.POS

Aus der vermurksten Planung hab ich jetzt mal das gemacht
Draufsicht.JPGBlick SüdWest.jpgBlick SüdOsten.jpg
Anhang anzeigen Nach Küchenstudio.POS
Anhang anzeigen Nach Küchenstudio.KPL

Grobe Preisschätzung vom Berater waren min 14000€, inkl Geräte. Oranier Mendo Isola Dunstesse, Siemens 90er Induktionsfeld mit Slider und Kühlschrank + Gefrierschrank 140cm. Wunsch wäre eine freihängende Miele Dunstesse gewesen, aber die liegt bei über 2500€, was dann doch zu viel ist.
Er rechnet es aber einmal von Schüller und einmal von Brinkmeier weils da ja günstiger ist.
Ich glaube aber nicht das bei Brinkmeier ein Preis herauskommt der uns von IKEA abbringen könnte. Bei IKEA kommen wir, inklusive aller Geräte auf ca 8000€, ohen APL.
Wir waren dann heute nochmal in einem anderen Möbelhaus und haben gefragt wegen der APL von Brinkmeier, die Dubai Ebony hatte es uns angetan. Aber alleine für die Arbeitsplatte (ohne Einbau) 1300€ für Sperrholz mit einem Materialwert von nicht mal 10€/m² zu bezahlen sehen wir irgendwie nicht ein. Suchen wir uns eben eine andere. Von Getalit z.B. bekommen wir die ganze Fläche für ca 400-600€, da können wir in ein paar Jahren tauschen und sind immernoch günstiger dran.
 
AW: Küche aus Alt und Neu im Neubau

Warum seit ihr von der L-Planung plus Insel abgerückt? Das scheint mir für den Raum immer noch die sinnvollste Lösung zu sein.

Die Arbeitszeile vor dem Fenster würde ich in Uebertiefe bauen und die Insel als reine Vorbereitungsinsel lassen. Das dürfte günstiger werden, nicht nur, weil ihr dort weniger (dafür breitere) U-Schränke verbauen könnt, sondern auch von den Laufwegen und der Ergonomie.


Zu eurem Badezimmer: der Durchgang zwischen Waschbecken und Badewanne scheint mir deutlich zu eng zu sein - warum nicht lieber nur EIN Waschbecken, dafür schön breit, wählen und dort einen grosszügigeren Durchgang lassen. Wenn jmd am Waschbecken steht, kommt der andere nicht auf Klo durch.
 
AW: Küche aus Alt und Neu im Neubau

Sorry, aber für das Kochen mit mehreren, noch dazu, wenn man auch mal zu zweit am Kochfeld stehen will, ist der Plan ja wohl gar nicht geeignet:
99157d1356822465-kueche-aus-neu-und-neu-im-neubau-draufsicht.jpg


Wenn da 2 am Kochfeld stehen, ist die Spüle auch noch blockiert.

Da ist der Platz ums Kochfeld in meiner Variante 2 aber üppiger .. auch für 2 und es könnten noch 3 weitere Leute in der Küche arbeiten:



98107d1355463164-kueche-aus-neu-und-neu-im-neubau-kf_jochen_20121214_kb_var2_grundrissskizze.jpg
 
AW: Küche aus Alt und Neu im Neubau

Kerstin
Stimmt, aber da gefällt mir der Platz vom Kochfeld nicht so recht.


Zu eurem Badezimmer: der Durchgang zwischen Waschbecken und Badewanne scheint mir deutlich zu eng zu sein - warum nicht lieber nur EIN Waschbecken, dafür schön breit, wählen und dort einen grosszügigeren Durchgang lassen. Wenn jmd am Waschbecken steht, kommt der andere nicht auf Klo durch.

Der Plan ist nicht auf dem neuesten Stand und die Waschbecken sind viel zu groß eingefügt. Der Waschtisch mit 2 Waschbecken wird ca 130cm breit, was dann mindestens 80cm Platz bedeutet, auch wenn jemand da steht.


Was haltet ihr von dieser Planung
Blick Südwest 30.12..jpgBlick SüdOst 30.12..jpgDraufsicht 30.12..JPG
Anhang anzeigen Nach Küchenstudio.POS
Anhang anzeigen Nach Küchenstudio.KPL
 
Zuletzt bearbeitet von einem Moderator:
AW: Küche aus Alt und Neu im Neubau

Ich finde jedwedes T in dieser Planung irgendwie unpraktisch. Jetzt hast du zwar planrechts noch die Spüle, aber die Hauptausstattung von dem, was man zum sinnvollen Arbeiten dort braucht, wird sicherlich auf der anderen Hälfte des Ts liegen.

Warum ist die Position des Kochfeldes in meiner zitierten Planung nicht ok? Versuche das mal in Worte zu fassen, denn ich sehe da nur Vorteile .. günstigere Haube, alle Arbeitspositionen jeweils gut und auf mehreren Wegen zu erreichen. Materialien, Küchenwerkzeuge etc. können bedarfsgerecht untergebracht werden usw.
 

Ähnliche Beiträge

Neff Hausgeräte Ballerina Küchen Blum Bewegungstechnologie Weibel - Intelligente Küchenlüftung

Neff Spezial

Blum Zonenplaner

Weibel Abluft-Tuning

Weibel Abluft-Tuning
Zurück
Oben