Unbeendet Kreative Lösung gesucht

danig

Mitglied
Beiträge
8
Hallo!
Wir sind derzeit mit Zu-/Umbau unseres Hauses beschäftigt und jetzt dabei die Küche zu planen.

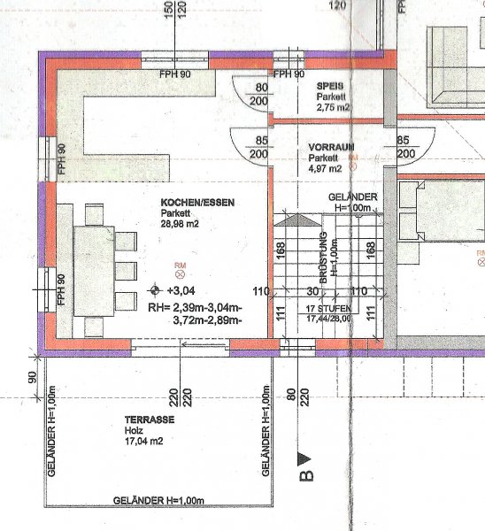
Unsere Küche hat zwei Fenster und eine große Terrassentür.
Ich würde mir alle Geräte hochgestellt wünschen, was in diesem Fall etwas schwierig scheint.
Wir haben schon 2 Planer aufgesucht, aber das Ergebnis war nicht zufriedenstellend.
Wichtig ist mir, dass der Abstand vom Oberschrank zum Fenster ca. 15 cm beträgt, ich will dort Gardinen, Raffrollo o.ä. anbringen. (2 cm Abstand sind mir eindeutig zu wenig - das wäre bei den Planern so gewesen.)

Die Tür in die Speis ist noch variabel. Auch der Durchgang in die Küche ist noch variabel -
hier kommt wahrscheinlich eine Schiebetür oder bleibt offen.

Ich hätte gerne einen Sichtschutz, aber keine Theke. Gedacht haben wir an eine Kochinsel mit höheren, vorgelagerten Kästen. Sonst käme auch eine halbhohe Trennmauer in Frage.
Ob U-Form oder Kochinsel, alles offen.

Hoffe auf ein paar gute Tipps.

lg danig

Bilder:
Ansicht Architekt - so war es zuerst gedacht
Grundriss - so wirds wahrscheinlich
Musterküche - so in etwa Front + Korpus


Checkliste zur Küchenplanung von danig

Anzahl Personen im Haushalt : 3
Davon Kinder? : 1
Körpergrössen aller Hauptbenutzer (wegen Arbeitshöhe ) in cm : 165, 175
Art des Gebäudes? : Neu-/Umbau, Planänderungen möglich
Brüstungshöhe des Fensters (in cm) : 95
Fensterhöhe (in cm) : 120
Raumhöhe in cm: : 230-ansteigend
Heizung : Fussbodenheizung
Sanitäranschlüsse : vollkommen variabel
Ausführung Kühlgerät? : Integriert im Hochschrank (60cm)
Kühlgerät Größe : bis 158 cm Höhe
Ausführung Tiefkühl (TK)-Gerät : Im Kühlschrank bis 2 Schubladen unten
Dunstabzugshaube? : Abluft
Hochgebauter Backofen ? : Ja
Hochgebauter Geschirrspüler ? : ja
Kochfeldart? : Induktion
Kochfeldbreite ca. (in cm)? :
Spülenform: : 1 Becken mit Abtropffläche
Weitere geplante Heißgeräte : Dampfgarer mit Wasseranschluß
Küchenstil? : modern
Sitzmöglichkeit in der Küche / im Küchenbereich als : Keine
Sitzmöglichkeit: Für wieviel Personen? : nein
Sitzmöglichkeit: Tisch - wenn gesonderter Tisch oder offene Küche : Wird nach Bedarf neu gekauft
Gewünschte o. vorhandene Tischgröße : 160
Wofür soll der Sitzplatz in der Küche genutzt werden? Wie häufig? : -
Welche Arbeitshöhe ist angedacht (in cm)? : 91
Was steht auf der Arbeitsplatte oder soll dort stehen? : Kaffeemaschine
Welche weiteren Küchenmaschinen müssen in der Küche untergebracht werden? : Küchenmaschine, Wasserkocher, Mixer, Pürierstab
Was soll in der Küche außer den Standards untergebracht werden? : Geschirr komplett (nichts in Ess-/Wohnzimmer)
Welchen Stauraum gibt es sonst noch? : Speisekammer, Hauswirtschaftsraum, Keller
Was/wie wird gekocht? (Alltagsküche, Menüs, Snacks usw) : Alltagsküche
Wie häufig wird gekocht? : (fast) täglich 1x warm
Wird alleine gekocht? Oder auch gemeinsam? Mit und für Gäste? :
Was stört an der bisherigen Küche und was soll die neue Küche unbedingt können? Warum? : viel Arbeitsfläche, hochgestellte Geräte, Auszug für Flaschen (z.B. Essig, Öl), Mülltrennung unter Spüle
Steht schon ein Küchenhersteller fest oder wird bevorzugt? : -
Steht schon ein Gerätehersteller fest oder wird bevorzugt? : -
Preisvorstellung (Budget) : bis 20.000,-
 

Anhänge

  • Grundriss.jpg
    Grundriss.jpg
    84,2 KB · Aufrufe: 245
  • Ansicht Architekt.jpg
    Ansicht Architekt.jpg
    74,9 KB · Aufrufe: 258
  • Musterküche.jpg
    Musterküche.jpg
    85,1 KB · Aufrufe: 302
  • Küche1.KPL
    3,9 KB · Aufrufe: 184
  • Küche1.POS
    2,8 KB · Aufrufe: 189
Zuletzt bearbeitet:
AW: Kreative Lösung gesucht

:welcome:

im Küchen-Forum.

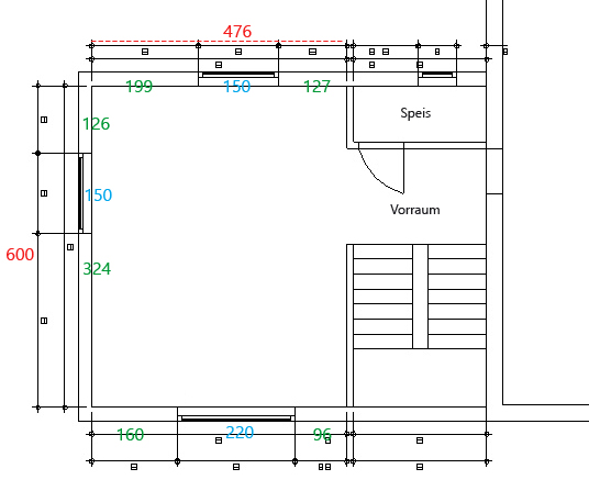
Welche Breite hat die Speisekammer? Wenn du die Tür wie im Grundriss setzt, dann hast du nicht viel davon. Bestände die Möglichkeit, darauf zu verzichten?

Besteht zusätzlich die Möglichkeit die Brüstungshöhe der Fenster zu verringern, so dass die AP die Fensterbank ersetzen könnte?

Welche Möbel sollen noch untergebracht werden? Sind die bereits vorhanden, wenn ja, wie sind die Maße?
 
AW: Kreative Lösung gesucht

Danke erst mal für deine Antwort.

Die Speisekammer hat eine Breite von ca. 1,20 m, die Tür kommt im Vorraum, ohne Tür gefällt mir nicht.

Die Brüstungshöhe könnte man versetzen, aber ich glaub ich will Fensterbänke.
Möbel sind keine vorhanden, wir tendieren aber eher zu einer Eckbank.

lg
 
AW: Kreative Lösung gesucht

Hallo Danig,

könntest du uns bitte ein paar Bilder deiner Alnoplanung gönnen? Schön wäre auch ein Bild des Grundrisses, mit dem snipping tool von windows geht das gut.

LG
Evelin
 
AW: Kreative Lösung gesucht

Und was heißt

Raumhöhe in cm: : 230-ansteigend

Wo ist die Raumhöhe 230 und auf welche Höhe steigt das dann in welche Richtung an? Und, fällt es dann auch wieder ab auf 230 cm?


Und
Wird alleine gekocht? Oder auch gemeinsam? Mit und für Gäste? :

Wie sieht es damit aus?
 
AW: Kreative Lösung gesucht

Speisekammer. Da die Breite ja minimal ist, würde ich keine Trennwand zum Treppenhaus bauen, sondern dahin mit Schiebetüren abtrennen, so kann die Tiefe gut genutzt werden und der Zugang ist auf der ganzen Länge möglich. Die Küche wird dadurch auch besser möblierbar und Du hast die Möglichkeit Deinen GSP & die Heissgeräte hochzusetzen.


Um einen Sichtschutz zu haben, müsste dieser ca 120-140cm hoch sein - das wäre schon massiv und würde a) die Vorteile einer Insel zerstören (von allen Seiten dran Arbeiten, grosse Teige ausrollen können, Buffett aufbauen) und b) dahinter würde es ziemlich dunkel. Und jeder der zur Tür reinkommt sieht trotzdem das 'Chaos' ... also das bringt wenig, verhindert aber viel.

Besser wäre es, wenn ihr z.B. ein sehr grosses Spülbecken hättet, in dem man so manches mal schnell den Blicken entziehen kann. Man kann sich auch angewöhnen mit offenem GSP zu kochen, und alles was nichtmehr benötigt wird verschwindet sofort im Gerät, anstatt erst Zwischengelagert zu werden.
 
AW: Kreative Lösung gesucht

So, ich versuche jetzt alle Fragen zu beantworten:

Der Raum hat ein versetztes Pultdach, ist außen ca. 2,30 m hoch (bei der Terrassentür und am gegenüberliegenden Fenster) und steigt bis etwa zur Mitte auf 3 m.

Ich koche hauptsächlich für 3 Personen, vorwiegend allein. Eine Insel muss nicht unbedingt sein, baue sicher nie ein Buffet auf und rolle auch keine großen Teige aus. Viel Arbeitsfläche brauche ich eigentlich nur weil ich gerne beim Kochen alles vollräume;-). Irgendwo sollte Platz sein für die Kaffeemaschine und ev. Wasserkocher.

Der Sichtschutz war eher gedacht, dass die Gäste - beim Sitzen - nicht direkt den Blick auf die Arbeitsfläche haben. Beim Reinkommen sieht man natürlich alles. Habe eher an eine Höhe von 1,20 m gedacht. Dass es dunkel wird glaube ich nicht, die Fenster sind doch sehr groß.

Ein Esstisch mit Platz für ca. 6 Personen soll auch vorhanden sein.
 
AW: Kreative Lösung gesucht

Ich schmeiße mal die 1. Planung in den raum, deinen Grundriss habe ich um den Vorraum ergänzt und der Speiß die Schiebetüren verpasst;-)
Soweit erst mal nur eine Stellprobe:
danig1-1.jpg
Den Durchgang zum Vorraum habe ich dir auch etwas verkleinert, damit ich mit den Hochschränken da um die Ecke komme, man könnte den Kühlschrank aber auch planoben mit in die Zeile stellen und dann die Insel etwas länger, wie gesagt, erst mal Ideen sammeln. Auch kann man höhere Schränke nehmen, so neben dem Fenster fand ich das aber nicht ganz so schön.
danig1-2.jpg
Insel ohne Sichtschutz, dafür halt zwei große Becken zum Verstecken, es macht einfach mehr Spaß an einer großen Fläche ;-)

danig1-3.jpg
 

Anhänge

  • danig1.POS
    8,5 KB · Aufrufe: 178
  • danig1.KPL
    3,9 KB · Aufrufe: 176
AW: Kreative Lösung gesucht

Danke Angelika für die Planung.
Das mit dem Durchgang hat nur den einen Haken, dass rechts neben der Speisekammer der Gang weitergeht u.a. ins Wohnzimmer und so wäre der Gang dann versetzt. Obwohl es eine Überlegung wert währe, Arbeitsfläche wäre super so.

Hab jetzt auch meine Vorstellung im Alno Planer so einigermaßen hinbekommen. War doch recht schwierig für mich.

Würde mich über weitere Vorschläge und Verbesserungen freuen.
 

Anhänge

  • Kücheneu.JPG
    Kücheneu.JPG
    46,6 KB · Aufrufe: 229
  • Kücheneu.KPL
    3,9 KB · Aufrufe: 182
  • Kücheneu.POS
    8,4 KB · Aufrufe: 170
  • Alno.JPG
    Alno.JPG
    33,5 KB · Aufrufe: 208
Zuletzt bearbeitet:
AW: Kreative Lösung gesucht

Wenn du das so haben willst, dann auf jeden Fall OHNE Hängeschränke!!! Das sieht :-Xaus, sorry :rose:.
Und die Insel kann auch etwas mehr Breite vertragen, so wie ich das ohne Alnogrundriss überblicken kann (bitte immer mit einstellen, damit man auch gleich die Abstände sehen kann, die 3D-Ansicht ist ja auch gerne mal verzerrt).

Zu den versetzen Durchgängen; die sind gut fürs Chi ;-), zumindest nach der Lehre des Feng Shui, wenn man so sehr gerade Fluchten in seinem *Bau* hat, soll das nicht so gut sein. Kann man glauben oder nicht, aber es ist nicht immer gemütlich, wenn man so gerade durchs ganze Haus gucken kann.
 
AW: Kreative Lösung gesucht

Hab meinen Grundriss jetzt angefügt.
Geschmäcker sind ja verschieden und zwischen Planung und fertigem Produkt liegen oft ja Welten. Außerdem bin ich kein Experte. Und gewisse Sachen weiß ich auch nicht z.B. kann der Kühlschrank, Geschirrspüler oder Backofen direkt an der Wand stehen...?

lg
 
AW: Kreative Lösung gesucht

Ja klar sind Geschmäcker verschieden, deswegen ja auch:rose:

So, im Grundriss sieht man auch schön, dass dein Zeilenabstand etwas zu großzügig ist, der sollte so min. 90, max 120 cm sein, damit es komfortabel ist und auch planlinks neben der Insel (wenn sie denn nicht andocken soll) reichen 80 cm bestimmt locker aus (normale Türen sind so zwischen 70-90 cm breit, so als Vergleich).
Nimm am besten mal einen Topf in die Hand und dreh´ dich einmal um, wo du dann landest um den Topf bequem ab zu stellen und dass man zu zweit noch gut Po an Po stehen kann, ohne sich zu berühren;-)
Und ein bisschen breiter darf die Insel ja auch werden, so knapp 3 x 90-er passen bestimmt und dann von der Küchenseite aus in Übertiefe (siehe meinen Plan), das sind Stauraumwunder!

Meinst du mit direkt an der Wand jeweils in den Ecken? Da hast du ja schon schön Blenden eingearbeitet, neben Geräten finde ich 10 cm ganz angenehm, wenn ein BO in der Ecke steht, dann wird es mit dem Ellbogen manchmal unbequem.

Wenn du eine lange Schrankwand haben möchtest, mit den Geräten sozusagen aus den Ecken raus, dann müsste die Essecke nach planoben, was für eine Eckbank ja auch nicht schlecht wäre zwischen den Fenstern! Und die Schrankwand planrechts und die Insel nicht quer, sondern hochkant.
Mal schnell zur Ansicht, ob du dir das so vorstellen könntest, ich fände es gar nicht so schlecht, auch im Hinblick auf Grillen im Sommer...

danig2-1.jpg

danig2-2.jpg
 

Anhänge

  • danig2.KPL
    3,9 KB · Aufrufe: 171
  • danig2.POS
    8,3 KB · Aufrufe: 170
AW: Kreative Lösung gesucht

:rose:danke:cool:
Ich finde, der Raum bietet sich dafür an, weil die Gänge auch schön bequem breit bleiben, so dass der Zugang zur Terrasse so gut wie gar nicht beeinträchtigt ist und man sich im Sommer aber schnell mit kühlen Getränken und Snacks versorgen kann und die Eckbank oben zwischen den Fenstern ist ein bisschen geschützt und bietet trotzdem Ausblick.
Und bei Grillfeten kann man die empfindlicheren Salate im Schatten aufbauen, sie stehen aber trotzdem nicht zuuu weit weg:cool:
 
AW: Kreative Lösung gesucht

so, das wollte ich doch wohl sagen...

wenn eine kreative Lösung gewünscht wird, schreit dieser Raum doch gerade zu nach einer Insel...

wobei ich denTisch an die Insel setzen würde... Platte entweder durchgehend oder
abgestuft... schön ist was gefällt...

mfg

Racer
 
AW: Kreative Lösung gesucht

Danke erst mal für Planung und Vorschläge.
Ich weiß, ich hab "modern" angegeben beim Stil, aber mit diesen geraden Blöcken kann ich mich gar nicht anfreunden. Das ist mir einfach zu modern - auch wenn das gerade "in" ist. Deswegen: kein Flugzeugträger . Uns gefällt es eher wenn es etwas unterschiedlicher wäre z.B. unterschiedliche Höhen, zwischendurch ein offenes Regal... keine Ahnung...
Die Aufteilung wäre so natürlich toll, aber auch gar kein Sichtschutz.
 
AW: Kreative Lösung gesucht

Und was ist mit der Grundidee, die Küche Richtung Terrasse zu orientieren?

Und was soll unter Sichtschutz gestellt werden?
 
AW: Kreative Lösung gesucht

Wegen Richtung Terrasse sind wir noch am überlegen, weil auch die Wasserleitungen hier sehr weit zu verlegen wären - hier kenn ich mich zu wenig aus, da müssen wir nochmal Rücksprache halten. Gefallen tät es mir schon.
Sichtschutz sollte zumindest für eine kleinere Fläche gegeben sein, beim letzten Plan ist alles frei einsehbar.
 

Ähnliche Beiträge

Neff Hausgeräte Ballerina Küchen Blum Bewegungstechnologie Weibel - Intelligente Küchenlüftung

Neff Spezial

Blum Zonenplaner

Weibel Abluft-Tuning

Weibel Abluft-Tuning
Zurück
Oben