Nati_0512
Mitglied
- Beiträge
- 19
Hallo,
ich benötige bitte eure Hilfe.
habe meine küche Planen lassen und würde von euch jetzt gerne wissen ob die Planung so gut ist oder ich was verändern sollte.
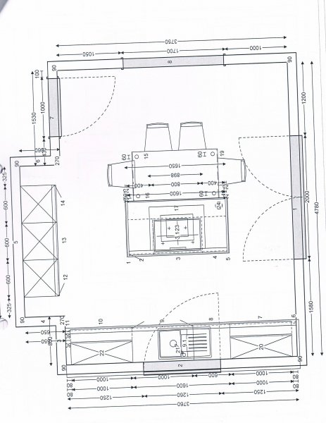
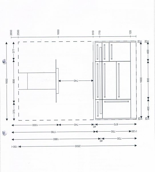
Also in der Küche sollte es auf jedenfall einen Esstisch geben... Es gibt auch noch ein Septettes esszimmer wenn Besuch da ist.
wäre echt dankbar für jede Anregung.
bilder sind in meinem Album... Weiß leider nicht wie ich die hier anhängen kann.
Checkliste zur Küchenplanung von Nati_0512
Anzahl Personen im Haushalt : 3
Davon Kinder? : 1
Körpergrössen aller Hauptbenutzer (wegen Arbeitshöhe ) in cm : 170-180 cm
Art des Gebäudes? : Neu-/Umbau, Planänderungen möglich
Brüstungshöhe des Fensters (in cm) : 91
Fensterhöhe (in cm) :
Raumhöhe in cm: :
Heizung : Fussbodenheizung
Sanitäranschlüsse : vollkommen variabel
Ausführung Kühlgerät? : Integriert im Hochschrank (60cm)
Kühlgerät Größe : noch unbekannt
Ausführung Tiefkühl (TK)-Gerät : Im Kühlschrank bis 2 Schubladen unten
Dunstabzugshaube? : Abluft
Hochgebauter Backofen ? : Ja
Hochgebauter Geschirrspüler ? : nein
Kochfeldart? : Induktion
Kochfeldbreite ca. (in cm)? : 80
Spülenform: : 1 Becken mit Abtropffläche
Weitere geplante Heißgeräte : Standmikrowelle
Küchenstil? : modern
Sitzmöglichkeit in der Küche / im Küchenbereich als : Arbeitsplatte in Tischhöhe
Sitzmöglichkeit: Für wieviel Personen? : für 4 Personen
Sitzmöglichkeit: Tisch - wenn gesonderter Tisch oder offene Küche : Wird nach Bedarf neu gekauft
Gewünschte o. vorhandene Tischgröße : 120
Wofür soll der Sitzplatz in der Küche genutzt werden? Wie häufig? : Zum essen für die familie
Welche Arbeitshöhe ist angedacht (in cm)? : 91
Was steht auf der Arbeitsplatte oder soll dort stehen? : Kaffeemaschine, Wasserkocher, Messerblock, Küchenmaschine, Brotbehälter, Obstschale
Welche weiteren Küchenmaschinen müssen in der Küche untergebracht werden? : Toaster, Schneidemaschine (z. B. in Schublade), Mixer
Was soll in der Küche außer den Standards untergebracht werden? : Geschirr komplett (nichts in Ess-/Wohnzimmer)
Welchen Stauraum gibt es sonst noch? : Speisekammer
Was/wie wird gekocht? (Alltagsküche, Menüs, Snacks usw) : Alltagsküche
Wie häufig wird gekocht? : (fast) täglich 1x warm
Wird alleine gekocht? Oder auch gemeinsam? Mit und für Gäste? : Alleine und für gäste
Was stört an der bisherigen Küche und was soll die neue Küche unbedingt können? Warum? : Zu klein, kein stauraum, gefrierfach zu klein, kaum Arbeitsfläche
Steht schon ein Küchenhersteller fest oder wird bevorzugt? :
Steht schon ein Gerätehersteller fest oder wird bevorzugt? :
Preisvorstellung (Budget) : bis 10.000,-
ich benötige bitte eure Hilfe.
habe meine küche Planen lassen und würde von euch jetzt gerne wissen ob die Planung so gut ist oder ich was verändern sollte.
Also in der Küche sollte es auf jedenfall einen Esstisch geben... Es gibt auch noch ein Septettes esszimmer wenn Besuch da ist.
wäre echt dankbar für jede Anregung.
bilder sind in meinem Album... Weiß leider nicht wie ich die hier anhängen kann.
Checkliste zur Küchenplanung von Nati_0512
Anzahl Personen im Haushalt : 3
Davon Kinder? : 1
Körpergrössen aller Hauptbenutzer (wegen Arbeitshöhe ) in cm : 170-180 cm
Art des Gebäudes? : Neu-/Umbau, Planänderungen möglich
Brüstungshöhe des Fensters (in cm) : 91
Fensterhöhe (in cm) :
Raumhöhe in cm: :
Heizung : Fussbodenheizung
Sanitäranschlüsse : vollkommen variabel
Ausführung Kühlgerät? : Integriert im Hochschrank (60cm)
Kühlgerät Größe : noch unbekannt
Ausführung Tiefkühl (TK)-Gerät : Im Kühlschrank bis 2 Schubladen unten
Dunstabzugshaube? : Abluft
Hochgebauter Backofen ? : Ja
Hochgebauter Geschirrspüler ? : nein
Kochfeldart? : Induktion
Kochfeldbreite ca. (in cm)? : 80
Spülenform: : 1 Becken mit Abtropffläche
Weitere geplante Heißgeräte : Standmikrowelle
Küchenstil? : modern
Sitzmöglichkeit in der Küche / im Küchenbereich als : Arbeitsplatte in Tischhöhe
Sitzmöglichkeit: Für wieviel Personen? : für 4 Personen
Sitzmöglichkeit: Tisch - wenn gesonderter Tisch oder offene Küche : Wird nach Bedarf neu gekauft
Gewünschte o. vorhandene Tischgröße : 120
Wofür soll der Sitzplatz in der Küche genutzt werden? Wie häufig? : Zum essen für die familie
Welche Arbeitshöhe ist angedacht (in cm)? : 91
Was steht auf der Arbeitsplatte oder soll dort stehen? : Kaffeemaschine, Wasserkocher, Messerblock, Küchenmaschine, Brotbehälter, Obstschale
Welche weiteren Küchenmaschinen müssen in der Küche untergebracht werden? : Toaster, Schneidemaschine (z. B. in Schublade), Mixer
Was soll in der Küche außer den Standards untergebracht werden? : Geschirr komplett (nichts in Ess-/Wohnzimmer)
Welchen Stauraum gibt es sonst noch? : Speisekammer
Was/wie wird gekocht? (Alltagsküche, Menüs, Snacks usw) : Alltagsküche
Wie häufig wird gekocht? : (fast) täglich 1x warm
Wird alleine gekocht? Oder auch gemeinsam? Mit und für Gäste? : Alleine und für gäste
Was stört an der bisherigen Küche und was soll die neue Küche unbedingt können? Warum? : Zu klein, kein stauraum, gefrierfach zu klein, kaum Arbeitsfläche
Steht schon ein Küchenhersteller fest oder wird bevorzugt? :
Steht schon ein Gerätehersteller fest oder wird bevorzugt? :
Preisvorstellung (Budget) : bis 10.000,-








