Hilfe beim Küchengrundriss benötigt

frankie

Mitglied
Beiträge
4
Hallo Forum,

Zurzeit verbringe ich meine Nächte statt mit Schlafen mit Zeichnungsversuchen :( Aber Ihr könnt mir da sicher weiter helfen :-)
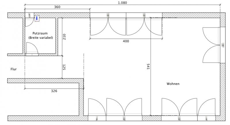
Mein grösstes Problem liegt vor allem darin, dass ich viel Fenster und wenig Wand habe. Sobald ich eine offene Küche zeichne wirkt sie sehr dominant und bei einer geschlossenen gibt es wie eine (gefühlte) kleine Besenkammer. Im Anhang findet Ihr den Vorschlag, welcher mir zurzeit am Besten gefällt.
Wie würdet Ihr da vorgehen?

Noch zwei, drei Informationen:
- der Bau besteht bereits, es können aber noch kleine Änderungen vorgenommen werden
- den Putzraum möchte ich zusätzlich einbauen lassen, würde ihn aber gegebenenfalls für zwei raumhohe Schäfte eintauschen
- der Wasseranschluss ist blau markiert und sollte an dieser Wand verschiebbar sein
- eigentlich ist Abluft, in der Nähe vom Wasserrohr, vorgesehen

Im Anhang findet Ihr wie bereits erwähnt meinen derzeitigen Favoriten, und den Grundriss für den Alno -Planer. Meine Zeichnungen habe ich im Sweet Home 3D gezeichnet. Falls diese gewünscht sind, bitte melden.

Vielen Dank im Voraus!
frankie


Checkliste zur Küchenplanung von frankie

Anzahl Personen im Haushalt : 1
Davon Kinder? : keine
Körpergrössen aller Hauptbenutzer (wegen Arbeitshöhe ) in cm : 187
Art des Gebäudes? : Bestandsbau, Umbauten ausgeschlossen
Brüstungshöhe des Fensters (in cm) : 105
Fensterhöhe (in cm) : 100
Raumhöhe in cm: : 245
Heizung : Fussbodenheizung
Sanitäranschlüsse : variabel an aktueller Wand
Ausführung Kühlgerät? : Integriert im Hochschrank
Kühlgerät Größe : noch unbekannt
Ausführung Tiefkühl (TK)-Gerät : Nicht erforderlich bzw. steht woanders
Dunstabzugshaube? : Umluft
Hochgebauter Backofen ? : Wenn möglich
Hochgebauter Geschirrspüler ? : wenn möglich
Kochfeldart? : Induktion
Kochfeldbreite ca. (in cm)? : 60
Spülenform: : Noch nicht festgelegt
Weitere geplante Heißgeräte :
Küchenstil? : grifflos
Sitzmöglichkeit in der Küche / im Küchenbereich als : Keine
Sitzmöglichkeit: Für wieviel Personen? : nein
Sitzmöglichkeit: Tisch - wenn gesonderter Tisch oder offene Küche : Wird nach Bedarf neu gekauft
Gewünschte o. vorhandene Tischgröße : für vier Personen
Wofür soll der Sitzplatz in der Küche genutzt werden? Wie häufig? : -
Welche Arbeitshöhe ist angedacht (in cm)? : 100
Was steht auf der Arbeitsplatte oder soll dort stehen? : Wasserkocher, Toaster, Obstschale
Welche weiteren Küchenmaschinen müssen in der Küche untergebracht werden? :
Was soll in der Küche außer den Standards untergebracht werden? : Sonstiges (evtl. im Beitragstext benennen)
Welchen Stauraum gibt es sonst noch? : Geschirr/Gläserschrank im Wohn-/Esszimmer
Was/wie wird gekocht? (Alltagsküche, Menüs, Snacks usw) : Alltagsküche, Snacks
Wie häufig wird gekocht? : ab und zu
Wird alleine gekocht? Oder auch gemeinsam? Mit und für Gäste? : alleine und für Gäste
Was stört an der bisherigen Küche und was soll die neue Küche unbedingt können? Warum? : -
Preisvorstellung (Budget) : bis 25.000,-
 

Anhänge

  • KF-Grundriss_komplett.jpg
    KF-Grundriss_komplett.jpg
    34 KB · Aufrufe: 244
  • KF-Grundriss_Kueche.jpg
    KF-Grundriss_Kueche.jpg
    39,5 KB · Aufrufe: 243
  • KF-Vorschlag_oben2.jpg
    KF-Vorschlag_oben2.jpg
    21,2 KB · Aufrufe: 234
  • KF-Vorschlag_oben1.jpg
    KF-Vorschlag_oben1.jpg
    28,1 KB · Aufrufe: 242
  • KF-Vorschlag.jpg
    KF-Vorschlag.jpg
    39,6 KB · Aufrufe: 231
  • KF-Vorschlag_innen.jpg
    KF-Vorschlag_innen.jpg
    17,2 KB · Aufrufe: 233
  • grundriss.KPL
    4,1 KB · Aufrufe: 241
  • grundriss.POS
    4,9 KB · Aufrufe: 215
Zuletzt bearbeitet:
AW: Hilfe beim Küchengrundriss benötigt

Hallöle, und erst mal herzlich :welcome: hier.

Schöne Threaderöffnung:top: , und, Deine Planung finde ich nichtmal so übel.

Evtl könnte man die Hochschrankanlage noch in Trockenbau einkoffern, da verliert sie viel von ihrer Dominanz.
Eine Insel darf dagegen schon Wirkung entfneuen.
Was für Materialien sind denn angedacht ?.

Ansonsten mal viel Spass und viel Input hier wünscht

Samy
 
AW: Hilfe beim Küchengrundriss benötigt

Hallo Frankie,
es wäre sehr sinnvoll, wenn du wenigstens beschreibst (möglichst mit Maßen, wenn schon vorhanden), wie du dir die Einrichtung im WZ-Bereich vorstellst. Was da also alles noch hin soll.

EDIT:
Gibt es das Abluftloch schon? Oder ist das auch relativ beliebig an der Wand planoben setzbar?
 
AW: Hilfe beim Küchengrundriss benötigt

Hallo allerseits,

Wow, Ihr habt aber eine Geschwindigkeit :-)

Schreinersam hat gesagt.:
Hallöle, und erst mal herzlich :welcome: hier.
Dankeschön :-) Man wird hier auch super empfangen.

Die Einkofferung werde ich näher verfolgen (kann erst Zuhause wieder zeichnen).

Welche Materialien? Vorgestellt habe ich mir ähnlich wie die von dir verlinkten Küche (sieht übrigens super aus!) mit weissem Glanz (Material offen) und einer Quarzkomposit-Arbeitsplatte in knalligem rot. Wobei ich hier noch anfügen muss ist, dass ich diese Farbkombination noch nicht in Natura angesehen habe. Was denkt Ihr dazu?

KerstinB hat gesagt.:
es wäre sehr sinnvoll, wenn du wenigstens beschreibst (möglichst mit Maßen, wenn schon vorhanden), wie du dir die Einrichtung im WZ-Bereich vorstellst. Was da also alles noch hin soll.
Neue Wohnung mit neuen Möbeln (wenn mich die Küche nicht ruiniert ;-) ). Vorgesehen ist an der rechten Mauer ein Sideboard, ca. in der Mitte ein 2er-Sofa mit einem kleinen Tisch und einem Fernseher an der linken Wand. Wenn ihr zur Möblierung noch Vorschläge/Ideen habt, nur zu! Bin für Input immer dankbar.

Super... Zum Glück habe ich nachgefragt. Beim letzten Treffen hiess es, dass es eine Ablufthaube wäre. Nun habe ich aber die schriftliche Bestätigung, dass es sich um eine Umlufthaube handelt.

Besten Dank und Gruss
frankie
 
Zuletzt bearbeitet:
AW: Hilfe beim Küchengrundriss benötigt

Hier gibt es eine weiße Küche mit roter Quarzkompositplatte anzusehen.
 
AW: Hilfe beim Küchengrundriss benötigt

Hi,
Annette, an diese Küche mußte ich auch denken-und sie würde mich kirre machen.
Rote Sofas, rote Wände, rote Küchenfronten, Rotwein...alles ok. Nur keine roten Arbeitsplatten .

Der Grundriß ist witzig. Ist das ein Hausboot?;D

Den Ansatz für die Küche finde ich erstmal sehr gut. Aber er hängt sicher noch von der weiteren Möblierung ab.

Grüße,
Jens
 
AW: Hilfe beim Küchengrundriss benötigt

Gell, Jens, rote APL ist so selten, das merkt man sich.;D
 
AW: Hilfe beim Küchengrundriss benötigt

Rote Arbeitsplatte , da ist mir auch nur die Küche, die Menorca verlinkt hat, eingefallen.

Genau, Jens, den Küchenansatz finde ich auch gut, aber ich finde, man muss den WZ-Bereich mal möblieren um zu probieren, wo Engstellen entstehen.
 
AW: Hilfe beim Küchengrundriss benötigt

Danke für den Link menorca.

mozart hat gesagt.:
Annette, an diese Küche mußte ich auch denken-und sie würde mich kirre machen. Rote Sofas, rote Wände, rote Küchenfronten, Rotwein...alles ok. Nur keine roten Arbeitsplatten
menorca hat gesagt.:
Gell, Jens, rote APL ist so selten, das merkt man sich.;D
KerstinB hat gesagt.:
Rote Arbeitsplatte, da ist mir auch nur die Küche, die Menorca verlinkt hat, eingefallen.

:-) da hab ich ja ins schwarze getroffen. So schlimm?

Der Grundriß ist witzig. Ist das ein Hausboot?;D
:cool:
 
AW: Hilfe beim Küchengrundriss benötigt

Ob Farben schlimm sind, liegt im Auge des Betrachters. Wenn die rote AP dein Wunschtraum ist, dann mach es!
Das Forum ist mehr für die Planungsoptimierung da und nicht dafür, jedem Benutzer seine ungewöhnlichen Farbwünsche auszureden!
Magnoliefarbene Küchen mit Holznachbildung-AP gibt es außerdem schon genügend.;-)
 
AW: Hilfe beim Küchengrundriss benötigt

rote APL... goil:-)
Rosso cristallo by Lechner
oder
die rote Glasplatte Spita by Lechner

Es gibt glaub auch schöne rote Steine

*schwelg*:dance:

Samy
 
AW: Hilfe beim Küchengrundriss benötigt

Hallo zusammen,

Habe nun die Möblierung gezeichnet, wie ich sie mir in etwa vorstelle. Was meint ihr?

Danke und Gruss
frankie
 

Anhänge

  • KF-Vorschlag_Wohnen_2-1.jpg
    KF-Vorschlag_Wohnen_2-1.jpg
    53,2 KB · Aufrufe: 217
  • KF-Vorschlag_Wohnen_2-2.png
    KF-Vorschlag_Wohnen_2-2.png
    46,5 KB · Aufrufe: 222
  • KF-Vorschlag_Wohnen_2-3.jpg
    KF-Vorschlag_Wohnen_2-3.jpg
    27,8 KB · Aufrufe: 233
  • KF-Vorschlag_Wohnen_2-4.jpg
    KF-Vorschlag_Wohnen_2-4.jpg
    20 KB · Aufrufe: 225
AW: Hilfe beim Küchengrundriss benötigt

Ich würde wohl den Esstisch mit dem Sofa-Platz tauschen - beim Fernsehen braucht man eigendlich keine grossen Fenster ;-) zur Küche hin würde ich einen Raumtrenner zwischen Sofa & Küche stellen - so dass es eine ruhige, gemütlich Ecke gibt.
 
Neff Hausgeräte Ballerina Küchen Blum Bewegungstechnologie Weibel - Intelligente Küchenlüftung

Neff Spezial

Blum Zonenplaner

Weibel Abluft-Tuning

Weibel Abluft-Tuning
Zurück
Oben